• Mẫu thiết kế cải tạo biệt thự 3 tầng kiến trúc hiện đại ở Hà Nội BT1833
  • Mẫu thiết kế cải tạo biệt thự 3 tầng kiến trúc hiện đại ở Hà Nội BT1833
  • Mẫu thiết kế cải tạo biệt thự 3 tầng kiến trúc hiện đại ở Hà Nội BT1833
  • Mẫu thiết kế cải tạo biệt thự 3 tầng kiến trúc hiện đại ở Hà Nội BT1833
  • Mẫu thiết kế cải tạo biệt thự 3 tầng kiến trúc hiện đại ở Hà Nội BT1833
  • Mẫu thiết kế cải tạo biệt thự 3 tầng kiến trúc hiện đại ở Hà Nội BT1833
  • Mẫu thiết kế cải tạo biệt thự 3 tầng kiến trúc hiện đại ở Hà Nội BT1833
  • Mẫu thiết kế cải tạo biệt thự 3 tầng kiến trúc hiện đại ở Hà Nội BT1833
“Một sai lầm nhỏ cả đời không vui

Bỏ nhiều tiền để xây dựng ngôi nhà, nhưng có thể 1 sai lầm nhỏ mà bạn có được căn nhà không như ý

Thuê thiết kế yếu kém
Từ Liêm- Hà Nội

Mẫu thiết kế cải tạo biệt thự 3 tầng kiến trúc hiện đại ở Hà Nội BT1833

Vinavic - 27/09/2018
2-2.5 tỷ
16626
1
Tổng quan
Chủ đầu tư
Ông Nhuận
Địa điểm
Từ Liêm- Hà Nội
Các phòng
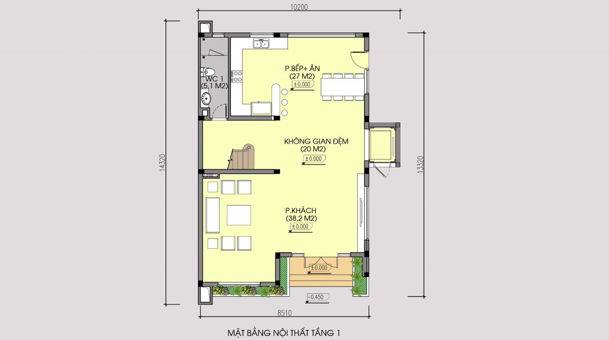
Tầng 1: khách, bếp, 1 ngủ, wc. Tầng 2: 3 ngủ kín (1 ngủ master). Tầng 3: p.thờ, sân phơi, sân chơi, kho
Kích thước
8m x 12m
Đơn vị thực hiện
Vinavic
Năm thi công
2019
  • Mẫu thiết kế cải tạo biệt thự 3 tầng được thiết kế cho anh Nhuận. Sinh ra và lớn lên ở vùng đất Từ Liêm Hà Nội, một quận ngoại thành của Thủ đô. Anh Nhuận chủ đầu tư bằng số tiền tích lũy của mình đã được ngôi nhà ở địa điểm thích hợp. Nơi đây thuận tiện cho việc đi làm của anh chị, đi học của các con và anh rất ưng ý. Tuy nhiên anh nhận thấy ngôi nhà còn chưa phù hợp với sở thích và phong thủy của anh. Vì thế anh muốn thuê một đơn vị tư vấn thiết kế cải tạo lại biệt thự của mình. Được một người quen giới thiệu đến Vinavi. Sau thời gian nghiên cứu, tìm tòi, tham khảo về công ty. Anh đặt trọn niềm tin ở công ty và đội ngũ kiến trúc sư của vinavic để cải tạo lại ngôi nhà của mình.
  • Vậy là Mẫu thiết kế cải tạo biệt thự 3 tầng đã được 2 bên làm việc và thống nhất phương án để có được một ngôi nhà lung linh ở đất Từ Liêm Hà Nội.Mẫu thiết kế cải tạo biệt thự 3 tầng được thiết kế đặc trưng với phong cách hiện đại. Với những hình khối được gọt dũa sắc nét mà không kém phần trang nhã. Được trang trí với các vật liệu ốp tường, vật liệu kính cường lực trong hệ thống cửa. Hệ thống lan can tay vịn hay hệ thống đèn chiếu sáng của ngôi nhà đều mang hơi thở của kiến trúc hiện đại.

    Chúng ta cùng nhìn ngắm ngôi nhà sau khi đã được chúng tôi cải tạo nha.

Mẫu thiết kế cải tạo biệt thự 3 tầng kiến trúc hiện đại ở Hà Nội Mẫu thiết kế cải tạo biệt thự 3 tầng kiến trúc hiện đại ở Hà Nội

Vị trí cổng nhà

  • Đầu tiên phải kể đến vị trí đặt cổng nhà Mẫu thiết kế cải tạo biệt thự 3 tầng. Cổng nhà quan trọng lắm đó, hướng cổng đặt vị trí nào cho phù hợp với phong thủy nhà. Không phải là bạn muốn đặt cổng ở vị trí nào là đặt ở vị trí đó đâu. Nếu cổng nhà trực tiếp chiếu thẳng vào cửa chính thường làm hao tốn tài lộc của gia chủ. Sinh ra luồng khí không tốt nên tránh thiết kế. Mẫu thiết kế cải tạo biệt thự 3 được đặt lệch về bên phải so với cửa chính tính từ ngoài nhìn vào, vừa đẹp lại hợp phong thủy.

Chất liệu cổng

  • Tiếp đến là chất liệu cổng của Mẫu thiết kế cải tạo biệt thự 3 tầng. Thiết kế hiện đại mà nên cổng cũng phải có hơi hướng hiện đại chứ. Hiện đại thể hiện ở chiếc cổng sắt đầy tinh tế, vừa kín vừa hở. Giúp không khí lưu thông tốt, thoáng đãng cho người bên trong và bên ngoài nhà.

Cột cổng và tường rào

  • Thật là thiếu sót nếu không nói đến cột cổng và tường rào xung quanh của Mẫu thiết kế cải tạo biệt thự 3 tầng. Lựa chọn chất liệu gạch ngoại thất bền đẹp với thời gian. Là lựa chọn mang tính kinh tế cao, không chỉ đẹp về kiến trúc như mặt thẩm mỹ. Hay dễ lau chùi hơn sơn mà ốp gạch ngoại thất vừa sạch, vừa bền, và đẹp. Chỉ mất kinh tế lần đầu, từ lần sau không phải sơn lại, không sợ tô vẽ lên tường. Đúng là rất có lợi, nếu bạn đang có nhu cầu làm cổng nên cân nhắc phương án ốp gạch nha.

Phối cảnh các góc nhìn mẫu thiết kế cải tạo biệt thự 3 tầng

Phối cảnh góc nhìn chính của Mẫu thiết kế cải tạo biệt thự 3 tầng Phối cảnh góc nhìn chính của Mẫu thiết kế cải tạo biệt thự 3 tầng

Góc nhìn chính

Ở góc nhìn chính cổng nhà mẫu thiết kế cải tạo biệt thự 3 tầng đồng điệu với toàn nhà. Màu gạch ốp của cổng, kết hợp với màu sơn của nhà và màu sắc của các bức tường cổng. Đều đi theo tông màu chung của của Mẫu thiết kế cải tạo biệt thự 3 tầng. Từ mái ngói đến sơn nhà, cổng mang đến không gian đẹp lung linh. Thể hiện được vẻ đẹp hiện đại đầy tinh tế của chủ đầu tư khi lựa chọn cho mình một ngôi nhà như thế. Mẫu thiết kế cải tạo biệt thự 3 tầng ở góc nhìn chính chúng ta thấy các đường nét trên ngôi nhà. Đơn giản, không cầu kỳ nhưng rất đẹp phải không ạ??? Chỉ đơn giản là những mảng tường ốp gạch.Với màu sắc bắt mắt như vàng, nâu, xám kết hợp. Với lan can kính chịu lực, cửa kính chịu lực đã mang đến nét quyến rũ không thể cưỡng lại. Ai cũng muốn có một ngôi nhà như thế phải không ạ. Phối cảnh góc nhìn tổng thể của Mẫu thiết kế cải tạo biệt thự 3 tầng Phối cảnh góc nhìn tổng thể của Mẫu thiết kế cải tạo biệt thự 3 tầng

Góc tổng thể Mẫu thiết kế cải tạo biệt thự 3 tầng

Góc tổng thể Mẫu thiết kế cải tạo biệt thự 3 tầng ở góc nhìn tổng thể cho ta thấy một không gian xanh. Nổi bật lên giữa những tầng lớp ngói mái thái. Quanh ngôi nhà luôn có chậu cây, hay thảm xanh. Vừa có tác dụng trang trí vừa mát mắt người nhìn. Thêm không gian uống trà ở ban công tầng 2. Đây là điểm nhấn ấn tượng cho công trình cũng là mong muốn của Anh Nhuận. Một người yêu thích không gian sống hiện đại và được tận hưởng cuộc sống những ngày cuối tuần thư thái cùng vợ con và gia đình, bạn bè của mình.

Mặt bằng công năng mẫu thiết kế cải tạo biệt thự 3 tầng

Với phối cảnh vô cùng thu hút người nhìn thì cũng khiến chúng ta không khỏi tò mò về công năng sử dụng trong nhà bố trí như thế nào. Không để bạn đọc chờ lâu Vinavic sẽ dẫn bạn đọc tham quan công năng của mẫu thiết kế cải tạo biệt thự 3 tầng.  Mặt bằng tổng thể mẫu thiết kế cải tạo biệt thự 3 tầng kiến trúc hiện đại Mặt bằng tổng thể mẫu thiết kế cải tạo biệt thự 3 tầng kiến trúc hiện đại Mặt bằng tầng 1 mẫu thiết kế cải tạo biệt thự 3 tầng kiến trúc hiện đại Mặt bằng tầng 1 mẫu thiết kế cải tạo biệt thự 3 tầng kiến trúc hiện đại Mặt bằng tầng 2 mẫu thiết kế cải tạo biệt thự 3 tầng kiến trúc hiện đại Mặt bằng tầng 2 mẫu thiết kế cải tạo biệt thự 3 tầng kiến trúc hiện đại Mặt bằng tầng 3 mẫu thiết kế cải tạo biệt thự 3 tầng kiến trúc hiện đại Mặt bằng tầng 3 mẫu thiết kế cải tạo biệt thự 3 tầng kiến trúc hiện đại Mặt bằng mái mẫu thiết kế cải tạo biệt thự 3 tầng kiến trúc hiện đại Mặt bằng mái mẫu thiết kế cải tạo biệt thự 3 tầng kiến trúc hiện đại Hãy gọi 0975 6789  30 Mẫu thiết kế cải tạo biệt thự 3 tầng được kiến trúc sư Vinavic triển khai lên phương án cực kỳ tỉ mỉ. Với sự kết hợp chặt chẽ giữa đội ngũ kiến trúc sư và kỹ sư kết cấu. Để làm sao vừa cải tạo được ngôi nhà theo đúng phong thủy. Vừa đảm bảo tính bền vững. Đội ngũ cán bộ công ty Vinavic với kinh nghiệm thiết kế hàng trăm, hàng nghìn ngôi nhà. Được khách hàng đánh giá cao với sự tư vấn nhiệt tình và ấn tượng. Chúng tôi theo sát công trình từ khi công trình bắt đầu lên phương án mặt bằng, phối cảnh mặt tiền. Đến giai đoạn thi công và hoàn thiện, bất cứ lúc nào khách hàng cần chúng tôi đều hỗ trợ. Công nghệ 4.0 đưa chúng ta càng ngày càng gần nhau hơn nữa, nên nếu bạn cần tư vấn thiết kế dù ở Cà Mau, hay Hà Giang chỉ cần bạn trao niềm tin chúng tôi sẽ cho bạn quả ngọt.                           

Liên hệ tư vấn
Liên hệ tư vấn

Chuyên viên tư vấn sẵn sàng hỗ trợ!

Tư vấn hoàn toàn miễn phí

Hoặc
Gửi yêu cầu tư vấn miễn phí
Đánh giá - Bình luận
1 bình luận, đánh giá về Mẫu thiết kế cải tạo biệt thự 3 tầng kiến trúc hiện đại ở Hà Nội BT1833

HTNguyễn huy Toàn

Mẫu này hoàn thiện chi phí hết bao nhiêu ạ ?

Trả lời.
Thông tin người gửi
Nhấn vào đây để đánh giá
Thông tin người gửi
Phong thủy
Những gì chúng
tôi thực sự làm

Đáp ứng nhu cầu xây dựng với nhiều phong cách thiết kế đa dạng như : Kiến trúc Cổ điển, Kiến trúc Tân cổ điển, Kiến trúc Hiện đại, Á đông hay truyền thống...Cùng với trang thiết bị hiện đại được trang bị cho công tác khảo sát, đo đạc mặt bằng, diện tích xây dựng nhằm mang đến một không gian sống lý tưởng nhất cho chủ đầu tư.

Những gì chúng tôi thực sự làm
Thư viện video
Thư viện hình ảnh
Cảm nhận khách hàng
Nhà hiện đại 500m2 2 tầng có hồ cá koi và bể bơi ở Mộc Châu Sơn La
Nhà hiện đại 500m2 2 tầng có hồ cá koi và bể bơi ở Mộc Châu Sơn La
Nhà Hiện Đại  3 Tầng 270M2 3 Tầng Mức Đầu Tư 3 Tỷ
Nhà Hiện Đại 3 Tầng 270M2 3 Tầng Mức Đầu Tư 3 Tỷ
Khám Phá "Biệt Thự Hiện Đại" 5 Tầng 15 Tỷ 1000m2 Ở Hạ Long- Quảng Ninh
Khám Phá "Biệt Thự Hiện Đại" 5 Tầng 15 Tỷ 1000m2 Ở Hạ Long- Quảng Ninh
Khám phá biệt thự đẹp nhất Biển Sầm Sơn cùng MC Tú Anh
Khám phá biệt thự đẹp nhất Biển Sầm Sơn cùng MC Tú Anh
Biệt Thự Hiện Đại 3 Tầng 530m2 Chi Phí Đầu Tư 4,5 Tỷ Ở Bình Dương
Biệt Thự Hiện Đại 3 Tầng 530m2 Chi Phí Đầu Tư 4,5 Tỷ Ở Bình Dương
Nhà Biệt Thự Hiện Đại 3 Tầng 486m2 3.5 Tỷ
Nhà Biệt Thự Hiện Đại 3 Tầng 486m2 3.5 Tỷ
Phạm Chí Điện
Tôi rất hài lòng về Vinavic, tư vấn nhiệt tình và hỗ trợ tận tình làm tôi rất ưng ý. Sẽ hợp tác lâu dài cùng Vinavic. Tôi rất hài lòng về Vinavic, tư vấn nhiệt tình và hỗ trợ tận tình làm tôi...
Phạm Chí Điện
Phạm Chí Điện
Phạm Chí Điện
BT1901 - Sơn La
Ngô Hữu Khánh
Tôi rất hài lòng về công trình, Vinavic đáp ứng được yêu cầu về tiến độ, và chất lượng công trình, rất chuyên nghiệp. Tôi rất hài lòng về công trình, Vinavic đáp ứng được yêu cầu về tiến độ, và...
Ngô Hữu Khánh
Ngô Hữu Khánh
Ngô Hữu Khánh
BT1911- Sầm Sơn
Nguyễn Trung Kiên
Chất lượng, Giá trị, Khả năng phản hồi nhanh, Tính chuyên nghiệp, Đúng giờ Chất lượng, Giá trị, Khả năng phản hồi nhanh, Tính chuyên nghiệp, Đúng...
Nguyễn Trung Kiên
Nguyễn Trung Kiên
Nguyễn Trung Kiên
BT1908 - Hạ Long
Trần Văn Trung
Vinavic làm việc rất tốt, thiết kế nhà phù hợp với diện tích sử dụng, thiết kế đẹp, đơn giá hợp lý,so với thị trường thì... Vinavic làm việc rất tốt, thiết kế nhà phù hợp với diện tích sử dụng, thiết...
Trần Văn Trung
Trần Văn Trung
Trần Văn Trung
BT1909 - Nam Định
12+

Năm kinh nghiệm xây dựng

 
100+

Cán bộ, nhân viên có trình độ

 
1K+

Khách hàng

tin yêu

60

Tỉnh thành có công trình Vinavic

Chúng tôi có thể hỗ trợ bạn!
0.15302 sec| 2595.281 kb