• Thiết kế biệt thự tân cổ điển 2 tầng 680m2 (20x34m) 4 phòng ngủ BT2427
  • Thiết kế biệt thự tân cổ điển 2 tầng 680m2 (20x34m) 4 phòng ngủ BT2427
  • Thiết kế biệt thự tân cổ điển 2 tầng 680m2 (20x34m) 4 phòng ngủ BT2427
  • Thiết kế biệt thự tân cổ điển 2 tầng 680m2 (20x34m) 4 phòng ngủ BT2427
“Một sai lầm nhỏ cả đời không vui

Bỏ nhiều tiền để xây dựng ngôi nhà, nhưng có thể 1 sai lầm nhỏ mà bạn có được căn nhà không như ý

Thuê thiết kế yếu kém
Bạc Liêu

Thiết kế biệt thự tân cổ điển 2 tầng 680m2 (20x34m) 4 phòng ngủ BT2427

vinavic - 05/11/2025
360
0
Tổng quan
Chủ đầu tư
Mr Cường
Địa điểm
Bạc Liêu
Các phòng
- Tầng 1: phòng khách, phòng bếp + ăn, phòng ngủ master, phòng ngủ 02, sảnh chính, sản phụ - Tầng 2: phòng ngủ 03, phòng ngủ 04, khu sinh hoạt chung, phòng thờ, kho, sân chơi BBQ
Kích thước
20m x 34m
Đơn vị thực hiện
Vinavic
Năm thi công
2025

Tuyệt tác kiến trúc BT2427 là một minh chứng cho sự giao thoa hoàn hảo giữa vẻ đẹp nghệ thuật kinh điển châu Âu và chuẩn mực sống đương đại. Với quy mô 680m2 trên 2 tầng lầu, công trình này không chỉ là một ngôi nhà, mà còn là một biểu tượng cho vị thế và gu thẩm mỹ tinh tế của chủ đầu tư - Anh Cường tại Bạc Liêu. Hãy cùng Vinavic phân tích chi tiết thiết kế biệt thự tân cổ điển đẳng cấp này.

Thông tin thiết kế biệt thự tân cổ điển 2 tầng 20x34mBT2427

Chủ đầu tư: MR Cường

Địa điểm: Bạc Liêu

Kích thước khu đất: 20x46m (900m2)

Diện tích xây dựng: 20x34m (680m2)

Quy mô: 2 tầng

Phong cách thiết kế: Tân cổ điển

Bố trí công năng:

  • Tầng 1: Phòng khách, phòng bếp + ăn, phòng ngủ master, phòng ngủ 02, sảnh chính, sảnh phụ.
  • Tầng 2: Phòng ngủ 03, phòng ngủ 04, khu sinh hoạt chung, phòng thờ, kho, sân chơi BBQ.
Phối cảnh mặt tiền biệt thự tân cổ điển 2 tầng 680m2 4 phòng ngủ BT2427
Phối cảnh mặt tiền biệt thự tân cổ điển 2 tầng 680m2 4 phòng ngủ BT2427

Cũng với phong cách tân cổ điển nhưng ở quy mô 2 tầng, bạn có thể tham khảo thêm mẫu thiết kế biệt thự 2 tầng để thấy rõ sự linh hoạt trong thiết kế của Vinavic

Ý tưởng thiết kế biệt thự tân cổ điển 2 tầng 680m2 4 phòng ngủ BT2427

Là một doanh nhân thành đạt tại Bạc Liêu, anh Cường ấp ủ mong muốn về một tổ ấm không chỉ sang trọng, bề thế mà còn phải trường tồn với thời gian. Anh đã tham khảo rất nhiều đơn vị thiết kế, nhưng vẫn chưa tìm được tiếng nói chung. Anh chia sẻ rằng, nhiều thiết kế anh xem qua hoặc quá rườm rà, nặng nề chi tiết cổ điển, hoặc quá đơn giản, thiếu "chất" riêng.

Hành trình của anh dừng lại khi vô tình xem được một dự án biệt thự tân cổ điển của Vinavic. Anh bị chinh phục bởi sự tinh tế trong cách xử lý tỷ lệ, sự chắt lọc hoa văn và đặc biệt là giải pháp không gian thông minh, tối ưu công năng. Anh Cường đã liên hệ ngay và bày tỏ: "Anh muốn một ngôi nhà vừa phô diễn được vị thế, vừa phải thật sự ấm cúng và tiện nghi cho cả gia đình".

  • Yêu cầu của CĐT: Anh Cường cần một không gian sảnh khách thật hoành tráng để tiếp đón đối tác, bạn bè. Các không gian riêng tư (phòng ngủ) phải đảm bảo sự sang trọng và tiện nghi tuyệt đối. Đặc biệt, anh mong muốn có một khu vực giải trí ngoài trời (sân BBQ) để gia đình quây quần.

  • Giải pháp tư vấn của Vinavic: Chúng tôi đề xuất phương án thiết kế tân cổ điển tập trung vào sự đối xứng, uy nghi. Giải pháp của chúng tôi là đẩy lùi công trình về phía sau khu đất, tạo một khoảng sân vườn và sảnh đệm lớn phía trước, nâng tầm đẳng cấp cho biệt thự. Chúng tôi sử dụng các hệ cột thông tầng và sảnh chính cao vút để tạo ấn tượng thị giác mạnh mẽ ngay từ cái nhìn đầu tiên

Toàn cảnh kiến trúc biệt thự tân cổ điển 2 tầng 680m2 4 phòng ngủ BT2427
Toàn cảnh kiến trúc biệt thự tân cổ điển 2 tầng 20mx34m BT2427

Vẻ đẹp Tân cổ điển Uy nghi & Tinh tế

Mẫu biệt thự BT2427 là điển hình cho phong cách tân cổ điển, nơi các nguyên tắc về tỷ lệ vàng và trục đối xứng được tuân thủ nghiêm ngặt. Công trình toát lên vẻ đẹp kiên cố, bề thế nhưng không hề nặng nề.

  • Tính đối xứng: Trục đối xứng được thể hiện rõ nét, lấy sảnh chính làm trung tâm. Hai bên cánh của biệt thự được thiết kế lặp lại một cách cân bằng, tạo nên sự hài hòa và chuẩn mực.
  • Hệ cột kinh điển: Biệt thự sử dụng hệ cột Ionic thông tầng, vươn cao, mạnh mẽ. Thân cột được kẻ rãnh nhẹ nhàng, kết hợp với đầu cột trang trí hoa văn mềm mại, vừa tạo sự vững chãi, vừa mang lại nét duyên dáng.
  • Chi tiết phào chỉ, hoa văn: Các chi tiết phào chỉ (molding) được đắp nổi tinh xảo, chắt lọc. Chúng chỉ xuất hiện ở những vị trí "đắt giá" như viền mái, diềm cửa, đầu cột, tạo điểm nhấn nghệ thuật mà không gây rối mắt.
Cận cảnh vẻ đẹp ngoại thất biệt thự tân cổ điển 2 tầng 20mx34m BT2427
Cận cảnh vẻ đẹp ngoại thất biệt thự tân cổ điển 2 tầng 20mx34m BT2427

Màu sắc và Vật liệu chủ đạo

  • Màu sắc: Tông màu trắng kem được chọn làm chủ đạo. Đây là màu sắc đặc trưng của kiến trúc cổ điển, giúp tôn lên sự thanh lịch, sang trọng và làm nổi bật các chi tiết điêu khắc, hoa văn.
  • Hệ mái: Tương phản với màu tường, hệ mái dốc lợp ngói màu xám đen cao cấp (có thể là ngói Fuji hoặc tương đương) tạo nên một tổng thể hài hòa. Hệ mái được thiết kế giật cấp, kết hợp với các cửa sổ áp mái nhỏ, vừa tăng tính thẩm mỹ, vừa giúp tản nhiệt và thông gió.
  • Vật liệu:
    • Cửa vòm: Toàn bộ hệ cửa, đặc biệt là cửa sảnh chính, sử dụng kết cấu vòm cung (arches) kinh điển, kết hợp vật liệu kính cường lực và khung nhôm/thép mỹ thuật sơn tĩnh điện màu tối, tạo chiều sâu và sự sang trọng.
    • Lan can: Lan can ban công bằng sắt mỹ thuật với hoa văn uốn lượn đồng bộ, là chi tiết "mềm" cân bằng lại sự vững chãi của các mảng tường.
    • Ánh sáng: Hệ thống đèn tường và đèn chùm (đặc biệt là chiếc đèn chùm lớn tại sảnh chính) được bố trí khoa học, biến biệt thự thành một "ngọn hải đăng" rực rỡ và ấm áp khi đêm về.
Một góc phối cảnh sảnh chính biệt thự tân cổ điển 2 tầng 20mx34m BT2427
Một góc phối cảnh sảnh chính biệt thự tân cổ điển 2 tầng 20mx34m BT2427

Bố cục tổng thể và Cảnh quan

Như hình ảnh 2 (phối cảnh từ trên cao) cho thấy, biệt thự không đứng đơn độc. Nó là trái tim của một quần thể được quy hoạch bài bản, bao gồm:

  • Sân trước và Garage: Lối vào rộng rãi với khu vực garage riêng biệt có mái che, đảm bảo sự riêng tư và thuận tiện.
  • Sảnh chính & Sảnh phụ:Thiết kế sảnh chính với mái vòm cao vút và sảnh phụ bên hông giúp phân luồng di chuyển linh hoạt, phù hợp với cả sinh hoạt gia đình và khi có khách.
  • Sân chơi BBQ (Tầng 2): Một không gian "chill" lý tưởng ở tầng 2, được che chắn bởi giàn pergola bằng gỗ, là nơi tổ chức tiệc tùng ngoài trời hoặc thư giãn ngắm cảnh.
Toàn cảnh kiến trúc biệt thự tân cổ điển 2 tầng 680m2 4 phòng ngủ BT2427
Toàn cảnh kiến trúc biệt thự tân cổ điển 2 tầng 20mx34m BT2427

Bố trí mặt bằng công năng biệt thự tân cổ điển 2 tầng 680m2 BT2427

Công năng của BT2427 được bố trí khoa học, phân tách rõ ràng khu vực chung - riêng, động - tĩnh, đảm bảo sự tiện nghi tối đa.

Mặt bằng tầng 1

Tầng 1 được định hướng là không gian giao tiếp xã hội và sinh hoạt chung.

  • Sảnh chính: Là một không gian đệm hoành tráng, thiết kế thông tầng, tạo ấn tượng choáng ngợp.
  • Phòng khách: Nối liền với sảnh, có diện tích cực lớn, đủ sức chứa cho những buổi tiệc sang trọng.
  • Phòng bếp + ăn: Thiết kế liên thông nhưng vẫn có vách ngăn nhẹ, vừa tạo sự ấm cúng, vừa ngăn mùi hiệu quả. Khu vực bếp có sảnh phụ dẫn ra sân sau.
  • Phòng ngủ Master: Được ưu ái bố trí tại tầng 1, thuận tiện cho chủ nhà. Phòng có quy mô lớn, tích hợp phòng thay đồ (walk-in closet) và WC VIP.
  • Phòng ngủ 02: Dành cho khách hoặc người lớn tuổi, đảm bảo sự riêng tư.
Bố trí mặt bằng tầng 1 biệt thự 2 tầng tân cổ điển BT2427
Bố trí mặt bằng tầng 1 biệt thự 2 tầng tân cổ điển BT2427

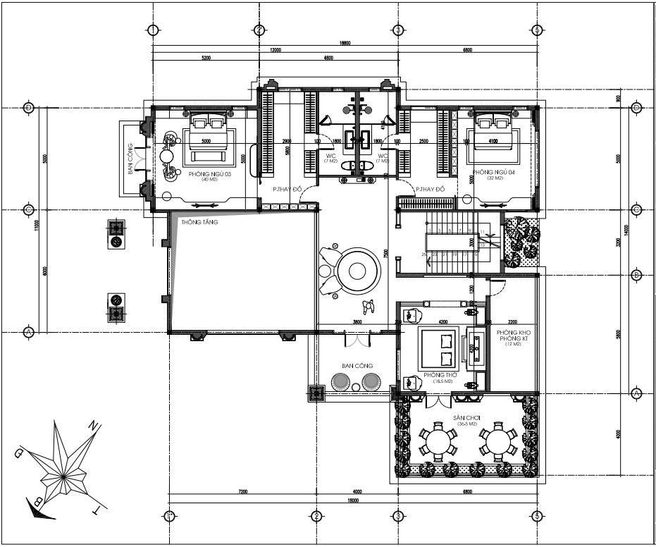
Mặt bằng tầng 2

Tầng 2 là không gian nghỉ ngơi riêng tư của gia đình và khu vực giải trí.

  • Phòng ngủ 03 & 04: Là các phòng ngủ tiêu chuẩn, đều có WC khép kín và cửa sổ lớn đón sáng.
  • Khu sinh hoạt chung: Là "trái tim" của tầng 2, nơi gia đình sum vầy, xem phim, đọc sách.
  • Phòng thờ: Đặt ở vị trí trang trọng, yên tĩnh, hướng hợp phong thủy, thể hiện lòng thành kính của gia chủ.
  • Kho: Không gian lưu trữ đồ đạc trái mùa.
  • Sân chơi BBQ: Điểm nhấn của tầng 2. Đây là không gian mở với tầm nhìn thoáng đãng, lý tưởng cho các hoạt động giải trí ngoài trời.
Bố trí mặt bằng tầng 2 biệt thự 2 tầng tân cổ điển BT2427
Bố trí mặt bằng tầng 2 biệt thự 2 tầng tân cổ điển BT2427

Vinavic - Bàn giao hồ sơ thiết kế biệt thự tân cổ điển BT2427

Bàn giao hồ sơ thiết kế BT2427 cho anh Cường là một quá trình chuyên nghiệp, thể hiện cam kết của Vinavic về chất lượng và sự chính xác. Bộ hồ sơ đầy đủ bao gồm:

  1. Hồ sơ Kiến trúc: Bản vẽ chi tiết mặt bằng, mặt đứng, mặt cắt, phối cảnh 3D, chi tiết phào chỉ, hoa văn, cửa...
  2. Hồ sơ Kết cấu: Tính toán và chi tiết hóa móng, cột, dầm, sàn... đảm bảo sự kiên cố tuyệt đối.
  3. Hồ sơ M&E (Điện - Nước): Sơ đồ bố trí hệ thống điện, chiếu sáng, cấp thoát nước, điều hòa không khí, internet...
  4. Dự toán chi tiết: Bảng bóc tách vật liệu và chi phí tham khảo giúp chủ đầu tư kiểm soát ngân sách hiệu quả.

LIÊN HỆ TƯ VẤN CÙNG KTS VINAVIC

Hotline/Zalo: 0975678930

Email: tuvankientrucvinavic@gmail.com

Địa chỉ: Tháp B1, Tòa Roman Plaza, Tố Hữu, Nam Từ Liêm, Hà Nội.

Liên hệ tư vấn
Liên hệ tư vấn

Chuyên viên tư vấn sẵn sàng hỗ trợ!

Tư vấn hoàn toàn miễn phí

Hoặc
Gửi yêu cầu tư vấn miễn phí
Đánh giá - Bình luận
0 bình luận, đánh giá về Thiết kế biệt thự tân cổ điển 2 tầng 680m2 (20x34m) 4 phòng ngủ BT2427
Nhấn vào đây để đánh giá
Thông tin người gửi
Phong thủy
Những gì chúng
tôi thực sự làm

Đáp ứng nhu cầu xây dựng với nhiều phong cách thiết kế đa dạng như : Kiến trúc Cổ điển, Kiến trúc Tân cổ điển, Kiến trúc Hiện đại, Á đông hay truyền thống...Cùng với trang thiết bị hiện đại được trang bị cho công tác khảo sát, đo đạc mặt bằng, diện tích xây dựng nhằm mang đến một không gian sống lý tưởng nhất cho chủ đầu tư.

Những gì chúng tôi thực sự làm
Thư viện video
Thư viện hình ảnh
Cảm nhận khách hàng
Nhà hiện đại 500m2 2 tầng có hồ cá koi và bể bơi ở Mộc Châu Sơn La
Nhà hiện đại 500m2 2 tầng có hồ cá koi và bể bơi ở Mộc Châu Sơn La
Nhà Hiện Đại  3 Tầng 270M2 3 Tầng Mức Đầu Tư 3 Tỷ
Nhà Hiện Đại 3 Tầng 270M2 3 Tầng Mức Đầu Tư 3 Tỷ
Khám Phá "Biệt Thự Hiện Đại" 5 Tầng 15 Tỷ 1000m2 Ở Hạ Long- Quảng Ninh
Khám Phá "Biệt Thự Hiện Đại" 5 Tầng 15 Tỷ 1000m2 Ở Hạ Long- Quảng Ninh
Khám phá biệt thự đẹp nhất Biển Sầm Sơn cùng MC Tú Anh
Khám phá biệt thự đẹp nhất Biển Sầm Sơn cùng MC Tú Anh
Biệt Thự Hiện Đại 3 Tầng 530m2 Chi Phí Đầu Tư 4,5 Tỷ Ở Bình Dương
Biệt Thự Hiện Đại 3 Tầng 530m2 Chi Phí Đầu Tư 4,5 Tỷ Ở Bình Dương
Nhà Biệt Thự Hiện Đại 3 Tầng 486m2 3.5 Tỷ
Nhà Biệt Thự Hiện Đại 3 Tầng 486m2 3.5 Tỷ
Phạm Chí Điện
Tôi rất hài lòng về Vinavic, tư vấn nhiệt tình và hỗ trợ tận tình làm tôi rất ưng ý. Sẽ hợp tác lâu dài cùng Vinavic. Tôi rất hài lòng về Vinavic, tư vấn nhiệt tình và hỗ trợ tận tình làm tôi...
Phạm Chí Điện
Phạm Chí Điện
Phạm Chí Điện
BT1901 - Sơn La
Ngô Hữu Khánh
Tôi rất hài lòng về công trình, Vinavic đáp ứng được yêu cầu về tiến độ, và chất lượng công trình, rất chuyên nghiệp. Tôi rất hài lòng về công trình, Vinavic đáp ứng được yêu cầu về tiến độ, và...
Ngô Hữu Khánh
Ngô Hữu Khánh
Ngô Hữu Khánh
BT1911- Sầm Sơn
Nguyễn Trung Kiên
Chất lượng, Giá trị, Khả năng phản hồi nhanh, Tính chuyên nghiệp, Đúng giờ Chất lượng, Giá trị, Khả năng phản hồi nhanh, Tính chuyên nghiệp, Đúng...
Nguyễn Trung Kiên
Nguyễn Trung Kiên
Nguyễn Trung Kiên
BT1908 - Hạ Long
Trần Văn Trung
Vinavic làm việc rất tốt, thiết kế nhà phù hợp với diện tích sử dụng, thiết kế đẹp, đơn giá hợp lý,so với thị trường thì... Vinavic làm việc rất tốt, thiết kế nhà phù hợp với diện tích sử dụng, thiết...
Trần Văn Trung
Trần Văn Trung
Trần Văn Trung
BT1909 - Nam Định
12+

Năm kinh nghiệm xây dựng

 
100+

Cán bộ, nhân viên có trình độ

 
1K+

Khách hàng

tin yêu

60

Tỉnh thành có công trình Vinavic

Chúng tôi có thể hỗ trợ bạn!
0.24645 sec| 2579.445 kb