55 Mẫu nhà 2 tầng 5x12m 3 phòng ngủ đẹp thiết kế tiện nghi
- 1. Đặc điểm của mẫu nhà 2 tầng 5×12m 3 phòng ngủ
- 2. TOP mẫu nhà 2 tầng 5x12m 3 phòng ngủ đẹp thiết kế tiện nghi
- 2.1. Mẫu nhà 2 tầng 5x12m 3 phòng ngủ phong cách tân cổ điển
- 2.2. Mẫu nhà 2 tầng 5x12m 3 phòng ngủ mái Thái
- 2.3. Mẫu nhà 2 tầng 5x12m 3 phòng ngủ mái Nhật
- 2.4. Mẫu nhà 2 tầng 5x12m 3 phòng ngủ có gara
- 2.5. Mẫu nhà 2 tầng 5x12m 3 phòng ngủ có tầng tum
- 2.6. Thiết kế nhà 2 tầng 5x12m 3 phòng ngủ mái lệch
- 2.7. Thiết kế nhà 2 tầng 5x12m 3 phòng ngủ tối giản nhỏ gọn
- 2.8. Thiết kế nhà 2 tầng 5x12m 3 phòng ngủ phóng khoáng trẻ trung
- 2.9. Mẫu nhà 2 tầng 5x12m 3 phòng ngủ có mái chóp nhọn độc đáo
- 3. Mặt bằng bản vẽ nhà ống 2 tầng 5x12m 3 phòng ngủ từng tầng chi tiết
- 4. Dự toán chi phí xây nhà 2 tầng 5x12m 3 phòng ngủ trọn gói
- 5. Những yếu tố ảnh hưởng đến chi phí xây nhà 2 tầng 60m2
Mẫu thiết kế nhà 2 tầng diện tích 60m2 với kích thước 5x12m và 3 phòng ngủ đang thu hút sự chú ý của nhiều người. Khi điều kiện kinh tế không quá dư dả, đây sẽ là lựa chọn lý tưởng cho nhiều gia đình. Với mặt tiền rộng 5m và chiều sâu 12m, không gian khá thoải mái. Thêm vào đó, mức đầu tư xây dựng mẫu nhà 2 tầng 5x12m 3 phòng ngủ khoảng 800 triệu đồng là phù hợp cho những gia đình có điều kiện tài chính trung bình.
Đặc điểm của mẫu nhà 2 tầng 5×12m 3 phòng ngủ
Không phải ngẫu nhiên mà các mẫu nhà ống 2 tầng 5x12m lại được yêu thích đến vậy. Với diện tích không quá lớn, nhưng gia chủ vẫn mong muốn xây dựng một ngôi nhà 2 tầng tiết kiệm chi phí mà vẫn đảm bảo sự tiện nghi cho các thành viên trong gia đình, thì đây sẽ là lựa chọn không thể bỏ qua.
Mẫu nhà 2 tầng với mặt tiền 6m và chiều sâu 15m, tổng diện tích 60m2 có số tầng vừa phải, giúp rút ngắn thời gian thi công và tiết kiệm chi phí xây dựng.
Đặc biệt, việc xây dựng nhà ống 2 tầng thường diễn ra nhanh hơn so với các dự án lớn hơn, giúp bạn có thể chuyển vào ở sớm hơn.
Với thiết kế gồm 3 phòng ngủ, ngôi nhà này sẽ đáp ứng tốt nhu cầu của những gia đình ít người.
TOP mẫu nhà 2 tầng 5x12m 3 phòng ngủ đẹp thiết kế tiện nghi
Mẫu nhà 2 tầng 5x12m 3 phòng ngủ phong cách tân cổ điển
Ngôi nhà thu hút sự chú ý với kiến trúc đơn giản nhưng vẫn rất hấp dẫn. Thiết kế 2 tầng với kích thước 5x12m là sự hòa quyện giữa màu trắng chủ đạo và sắc nâu ấm của gỗ, tạo nên vẻ đẹp bắt mắt.
Ngoài ra, hệ thống cửa ở lầu 1 được làm từ kính cường lực trong suốt, giúp mang lại ánh sáng tự nhiên và thông gió từ bên ngoài vào trong không gian sống.
Mẫu nhà 2 tầng 5x12m 3 phòng ngủ mái Thái
Mẫu nhà 2 tầng 5x12m nằm ở khu vực góc, nơi giao nhua giữa 2 con đường có thiết kế mái được lợp bằng các tấm ngói xếp chồng lên nhau với một độ nghiêng nhất định. Kiến trúc mái thái dốc xuống tạo hình tam giác, mang lại vẻ độc đáo cho ngôi nhà. Mái thái rất được ưa chuộng vì giúp giảm thiểu tình trạng rò rỉ và nước mưa đọng lại trên mái.
Mẫu nhà 2 tầng 5x12m 3 phòng ngủ mái Nhật
Nhà mái nhật mang đậm phong cách kiến trúc từ Nhật Bản. Những mẫu nhà mái Nhật 2 tầng 5x12m thường có thiết kế tối giản, không quá phức tạp nhưng vẫn toát lên vẻ tinh tế. Chất lượng của nhà mái Nhật hai tầng được các chuyên gia hàng đầu tại Việt Nam đánh giá cao về tính thẩm mỹ và độ an toàn. Đây cũng là một trong những kiểu nhà được nhiều người ưa chuộng.
Mẫu nhà 2 tầng 5x12m 3 phòng ngủ có gara
Phong cách thiết kế hiện đại được ưa chuộng trong việc tạo ra các mẫu nhà ống đẹp. Mẫu nhà 2 tầng với kích thước 5x12m có gara được bổ sung thêm tầng hầm để làm chỗ đậu xe, từ đó mở rộng không gian sinh hoạt cho gia đình. Việc để xe ở gara cũng giúp giảm thiểu tác động của thời tiết lên xe.
Mẫu nhà 2 tầng 5x12m 3 phòng ngủ có tầng tum
Thiết kế tầng tum cho ngôi nhà 2 tầng 5x12m sẽ mang lại vẻ đẹp sang trọng hơn. Với một tầng tum, gia đình bạn có thể sử dụng làm nơi thờ cúng tổ tiên, hoặc tạo ra một ban công để thư giãn sau những giờ làm việc căng thẳng. Ngoài ra, gia đình cũng có thể biến nó thành khu vực trồng cây cảnh, giúp căn nhà thêm phần sinh động và tươi mới.
Thiết kế nhà 2 tầng 5x12m 3 phòng ngủ mái lệch
Mẫu thiết kế nhà 2 tầng 5x12m được thiết kế theo xu hướng hiện đại với hệ thống mái lệch độc đáo. Cùng với đó là sự hiện diện của các hình khối đơn giản, vuông vức thổi hồn, làm tăng thêm vẻ đẹp mới lạ cho ngôi nhà
Thiết kế nhà 2 tầng 5x12m 3 phòng ngủ tối giản nhỏ gọn
Đây là mẫu nhà có thiết kế đẹp, chi phí xây dựng vừa phải, phù hợp với đa số các gia đình. Nổi bật trên nền trắng đó là những mảng khối màu vàng và nâu bắt mắt, mang đến sự ấm áp và gần gũi cho không gian ngoại thất.
Thiết kế nhà 2 tầng 5x12m 3 phòng ngủ phóng khoáng trẻ trung
Thiết kế nhà 2 tầng 60m2 5x12m dưới đây được thiết kế theo phong cách hiện đại, phóng khoáng với ngoại thất vuông vắn, khỏe khoắn. Tông màu trung tính được sử dụng làm chủ đạo khiến tổng thể trông khá mạnh mẽ, trẻ trung.
Mẫu nhà 2 tầng 5x12m 3 phòng ngủ có mái chóp nhọn độc đáo

Tổng thể mang lại mang lại sự bề thế, hiện đại cho ngôi nhà mà vẫn rất hài hòa với thiên nhiên. Ngôi nhà khoác lên mình màu trắng nhẹ nhàng kết hợp với những mảng gỗ mộc mạc, thể hiện sự tinh tế, gu thẩm mỹ của gia chủ
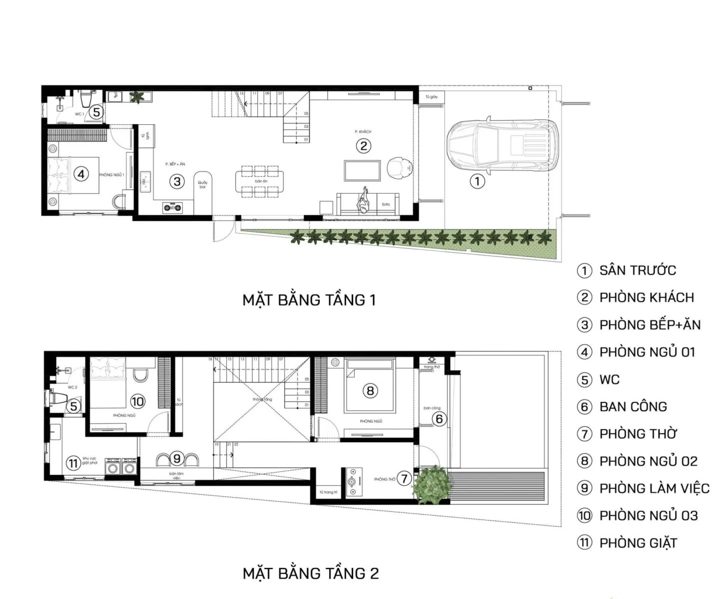
Mặt bằng bản vẽ nhà ống 2 tầng 5x12m 3 phòng ngủ từng tầng chi tiết
Bố trí mặt bằng tầng 1 nhà 2 tầng 5x12m 3 phòng ngủ
Tầng 1 của mẫu nhà ống 2 tầng 5×12 với 3 phòng ngủ được thiết kế linh hoạt và tiện lợi. Sân trước mang lại không gian thoải mái để thư giãn và tiếp đón khách. Phòng khách rộng rãi và thoáng đãng.
Khu vực bếp và ăn uống được sắp xếp hợp lý, tối ưu hóa công năng sử dụng. Tầng này còn có một phòng ngủ và một nhà vệ sinh thuận tiện cho người lớn tuổi hoặc khách ghé thăm.

Bố trí mặt bằng tầng 2 nhà 2 tầng 5x12m 3 phòng ngủ
Tầng 2 của ngôi nhà ống 5x12m này bao gồm nhiều không gian sử dụng đa dạng. Tại đây có hai phòng ngủ phụ và một nhà vệ sinh chung, rất phù hợp cho gia đình có trẻ nhỏ.
Ngoài ra, còn có một phòng thờ, phòng giặt tiện ích và ban công để thư giãn. Tầng 2 được thiết kế nhằm tối ưu hóa không gian và đảm bảo mọi thành viên trong gia đình đều có sự riêng tư và tiện nghi.
Dự toán chi phí xây nhà 2 tầng 5x12m 3 phòng ngủ trọn gói
Ngoài việc chú trọng đến các mẫu thiết kế đẹp và hiện đại cho ngôi nhà 2 tầng có diện tích 5x12m với 3 phòng ngủ, chi phí xây dựng cũng là một yếu tố quan trọng mà nhiều nhà đầu tư hiện nay quan tâm. Vì vậy, để giúp khách hàng tự lập kế hoạch ngân sách cho việc xây dựng nhà ở cho gia đình, Vinavic sẽ cung cấp bảng báo giá và hướng dẫn cách tính toán chi phí xây dựng cho ngôi nhà 2 tầng 3 phòng ngủ diện tích 5x12m để tham khảo.
Đơn giá xây nhà 2 tầng 5x12m 3 phòng ngủ
Hiện nay, chi phí để xây dựng một ngôi nhà 2 tầng tại Vinavic được phân chia thành 3 hạng mục chính như sau:
- Chi phí xây dựng phần thô: Từ 3.000.000 vnđ – 3.800.000 vnđ/m2
- Chi phí xây dựng trọn gói: Từ 5.800.000 vnđ – 7.000.000 vnđ/m2.
Lưu ý:
- Giá trên chưa bao gồm thuế VAT.
- Mức giá có thể thay đổi tùy thuộc vào diện tích, kiểu dáng, thời điểm và vị trí xây dựng.
- Thông thường, giá sẽ giảm dần khi diện tích xây dựng lớn hơn.

Cách tính chi phí xây nhà 2 tầng 6x12m 3 phòng ngủ
Dưới đây là phương pháp tính toán chi phí xây dựng cho một căn nhà 2 tầng có kích thước 6x12m với 3 phòng ngủ, dựa trên cách tính đơn giá m2 nhân với tổng diện tích.
Tổng diện tích của căn nhà 2 tầng 5x12m với 3 phòng ngủ và mái bằng được xác định như sau:
- Diện tích móng: 60 x 35% = 21m2
- Diện tích sàn của tầng 1 và tầng 2: 60 x 100% x 2 = 120m2
Vậy tổng diện tích xây dựng của căn nhà 2 tầng 5x12m với 3 phòng ngủ và mái bằng là: 21 + 120 = 141m2.
Dựa vào tổng diện tích và đơn giá, bạn có thể ước lượng sơ bộ chi phí xây dựng căn nhà 2 tầng 5x12m như sau:
- Chi phí thi công phần thô và hoàn thiện: 141 x 3.000.000 = 423.000.000đ
- Chi phí xây dựng toàn bộ: 141 x 5.800.000 = 817.800.000đ
==> Do đó, chi phí xây dựng cho căn nhà 2 tầng 3 phòng ngủ 5x12m sẽ nằm trong khoảng từ 800 triệu đến 900 triệu, tùy thuộc vào thời điểm thi công, vị trí, tình hình thực tế về giá nguyên vật liệu cũng như giá nhân công ở từng địa phương.
Những yếu tố ảnh hưởng đến chi phí xây nhà 2 tầng 60m2
- Vị trí lô đất (Đất nằm trong hẻm, đường nhỏ gây khó khăn cho việc vận chuyển vật liệu phục vụ thi công)
- Hồ sơ thiết kế (đơn giản hay phức tạp)
- Công trình có diện tích nhỏ, mặt tiền hẹp nhưng dài
- Ngôi nhà có kiểu dáng đặc biệt với nhiều góc cạnh,
- Vị trí thi công thiếu không gian tập kết vật liệu, công trình ở khu vực trung tâm hoặc những nơi có điều kiện thi công khó khăn
- Thời điểm xây dựng trong năm (ảnh hưởng đến sự biến động giá cả trong năm)
- Gói vật tư sử dụng cho việc xây nhà. Vật tư có chất lượng trung bình, khá, tốt hoặc cao cấp.
- Máy móc, thiết bị thi công (máy trộn, máy khoan, đầm… giàn giáo, cốp pha) được đầu tư bài bản sẽ tốn nhiều chi phí hơn
- Công ty uy tín, chuyên nghiệp, sở hữu đội ngũ kỹ sư, kiến trúc sư tài năng, dày dạn kinh nghiệm, đưa ra các biện pháp thi công chất lượng.
- Công ty có đội thợ lành nghề, thành thạo trong thi công
- Biện pháp thi công cẩn thận, tỉ mỉ thường mất nhiều thời gian hơn
Với phương pháp tính toán chi phí xây dựng nhà 2 tầng 5x12m 60m2, chúng tôi hy vọng những gợi ý trên sẽ giúp bạn tìm ra lựa chọn phù hợp nhất với nhu cầu của gia đình. Hãy liên hệ ngay với chúng tôi để được tư vấn và hỗ trợ khi gia đình bạn cần thiết kế và xây dựng nhé.