Các mẫu nhà 2 tầng 80m2 giá rẻ nhưng vẫn đầy đủ tiện nghi

Mẫu nhà đẹp
0
8712
loan - 22/11/2023

Cất được một căn nhà to rộng khang trang là ước muốn của bao người. Tuy nhiên, vì nhiều lý do mà các gia chủ chỉ có thể xây nhà cao khoảng 1-2 tầng với diện tích 40-80m2. Vậy làm thế nào để xây được một mẫu nhà 2 tầng 80m2 giá rẻ mà vẫn đẹp? Bố trí các phòng và nội thất ra sao để tối ưu hoá không gian sống cho các thành viên trong nhà? Tất cả sẽ được bật mí trong bài viết sau đây!

Các mẫu nhà 2 tầng giá rẻ diện tích 80m2 đẹp và tiết kiệm chi phí
Các mẫu nhà 2 tầng giá rẻ diện tích 80m2 đẹp và tiết kiệm chi phí

Kinh nghiệm xây mẫu nhà 2 tầng 80m2 giá rẻ tiết kiệm chi phí

Để xây dựng một ngôi nhà 2 tầng 80m2 đẹp và tiện nghi, nhưng vẫn tiết kiệm chi phí, bạn có thể tham khoả những kinh nghiệm thiết kế và thi công mẫu nhà đẹp sau:

Lựa chọn đơn vị thiết kế và thi công uy tín

Đây là bước quan trọng đầu tiên, quyết định đến chất lượng và chi phí xây dựng mẫu nhà 2 tầng 80m2 đẹp giá rẻ của bạn. Một đơn vị thiết kế và thi công uy tín sẽ giúp bạn lên kế hoạch chi tiết, tính toán chính xác vật liệu, nhân công,... để đảm bảo ngôi nhà được xây dựng đúng tiến độ, chất lượng và tiết kiệm chi phí.

Xem thêm: Báo giá xây nhà trọn gói giá rẻ mới nhất hiện nay

Một đơn vị thiết kế và thi công uy tín sẽ giúp bạn lên kế hoạch xây nhà đúng tiến độ và tiết kiệm chi phí
Một đơn vị thiết kế và thi công uy tín sẽ giúp bạn lên kế hoạch xây nhà đúng tiến độ và tiết kiệm chi phí

Xác định nhu cầu và ngân sách của gia đình

Trước khi thiết kế, bạn cần xác định nhu cầu sử dụng của gia đình mình, bao gồm số phòng ngủ, phòng khách, phòng bếp, phòng vệ sinh,... cũng như ngân sách dự trù cho việc xây dựng. Việc xác định nhu cầu và ngân sách rõ ràng sẽ giúp bạn lựa chọn được phong cách thiết kế nhà 2 tầng giá rẻ 80m2 đẹp, vật liệu phù hợp, tránh lãng phí.

Cần xác định nhu cầu và ngân sách của gia đình trước khi thiết kế nhà
Cần xác định nhu cầu và ngân sách của gia đình trước khi thiết kế nhà

Chọn phong cách kiến trúc hiện đại

Phong cách kiến trúc hiện đại là lựa chọn phù hợp nhất cho những ngôi nhà giá rẻ 2 tầng 80m2. Phong cách này có ưu điểm là đơn giản, gọn gàng, tiết kiệm chi phí thi công.

Hạn chế sử dụng vật liệu đắt tiền

Để tiết kiệm chi phí xây nhà 2 tầng 80m2 giá rẻ, bạn nên hạn chế sử dụng các vật liệu đắt tiền như đá ốp mặt tiền, sàn gỗ,... Thay vào đó, hãy lựa chọn các vật liệu thay thế có giá thành hợp lý hơn như gạch ốp, sàn gạch,...

Hạn chế sử dụng vật liệu đắt tiền
Hạn chế sử dụng vật liệu đắt tiền

Tiết kiệm chi phí trong quá trình thi công

Trong quá trình thi công nhà 2 tầng 80m2, bạn cần giám sát chặt chẽ để tránh thất thoát vật liệu, nhân công. Ngoài ra, bạn có thể thương lượng với nhà thầu để giảm giá thành xây dựng.

Ví dụ, với diện tích 80m2, bạn có thể thiết kế một ngôi nhà 2 tầng hiện đại với 3 phòng ngủ, 2 phòng vệ sinh, 1 phòng khách, 1 phòng bếp. Ngôi nhà có thể được thiết kế theo phong cách tối giản, với các đường nét đơn giản, gọn gàng. Vật liệu sử dụng chủ yếu là gạch, đá, kính,...

Để tiết kiệm chi phí, bạn có thể sử dụng gạch ốp thay vì đá ốp mặt tiền. Sàn nhà có thể sử dụng sàn gạch thay vì sàn gỗ. Nội thất có thể sử dụng nội thất giá rẻ, có thiết kế đơn giản.

Với cách thiết kế và thi công này, chi phí xây dựng ngôi nhà 2 tầng 80m2 hiện đại sẽ dao động từ 700 triệu đến 1 tỷ đồng. Quá trình tạo nên một mẫu nhà 2 tầng giá rẻ và tiết kiệm chi phí là một quá trình phức tạp, và việc hợp tác với các chuyên gia có kinh nghiệm có thể giúp bạn đạt được kết quả tốt nhất.

Các chi phí bắt buộc khi xây nhà 2 tầng 80m2 giá rẻ đẹp

Để xây dựng một ngôi nhà giá rẻ 2 tầng 80m2 đẹp và tiết kiệm, gia chủ cần lưu ý các chi phí bắt buộc sau:

Chi phí xây mẫu nhà 2 tầng 80m2 trọn gói

Công ty xây dựng sẽ thực hiện mọi công việc từ xin giấy phép, thiết kế bản vẽ đến xây thô và hoàn thiện nội thất. Gia chủ chỉ cần sử dụng nhà sau khi xây dựng xong.

  • Đơn giá xây nhà trọn gói dùng vật tư trung bình: 5.000.000đ/ m2.

  • Đơn giá xây nhà nhanh trọn gói dùng vật tư khá: 5.500.000đ/ m2.

  • Đơn giá xây nhà nhanh trọn gói dùng vật tư tốt: 6.000.000đ/ m2.

Mẫu nhà vườn 2 tầng 80m2 hiện đại giá rẻ
Mẫu nhà vườn 2 tầng 80m2 hiện đại giá rẻ

Chi phí phần thô

Chi phí phần thô là chi phí dành cho việc xây dựng phần khung của ngôi nhà, bao gồm móng, cột, dầm, sàn, mái,... Đây là phần chi phí chiếm tỷ lệ lớn nhất trong tổng chi phí xây dựng nhà. Chi phí phần thô nhà 80m2 2 tầng giá rẻ thường được tính theo đơn giá m2, dao động từ 4.600.000 - 6.000.000 đồng/m2, tùy thuộc vào chất lượng vật liệu và tay nghề thi công.

Trong đó:

  • Đơn giá nhân công xây dựng nhà 2 tầng: 1,4 - 1,8 triệu/m2

  • Chi phí xây nhà 2 tầng 80m2 giá rẻ phần thô + nhân công hoàn thiện: 3,2 - 3,5 triệu/m2

Ví dụ, với diện tích nhà 2 tầng 80m2 mái thái, chi phí phần thô sẽ dao động từ 736.000.000 - 960.000.000 đồng.

Mẫu nhà phố 2 tầng 80m2 giá rẻ có gara
Mẫu nhà phố 2 tầng 80m2 giá rẻ có gara

Chi phí hoàn thiện

Là chi phí cho việc trang trí, hoàn thiện mẫu nhà 2 tầng giá rẻ 80m2 đẹp, bao gồm sơn nước, gạch ốp lát, cửa, nội thất,... Đơn giá hoàn thiện 1m2 xây nhà khoảng 2.000.000 - 4.000.000 đồng/m2. Chi phí này có thể tăng hoặc giảm dựa vào chất lượng vật liệu và phong cách thiết kế.

Nhà 2 tầng mái bằng 80m2 hiện đại giá rẻ
Nhà 2 tầng mái bằng 80m2 hiện đại giá rẻ

Chi phí khác

Ngoài các chi phí bắt buộc trên, gia chủ cần tính thêm các chi phí khác như:

  • Chi phí xin phép xây dựng, phong bì để hoàn thiện thi công nhà: 1.000.000 đồng

  • Chi phí đo đạc, khảo sát địa chất: 1.000.000 - 2.000.000 đồng 

  • Chi phí vận chuyển vật liệu: 10.000 - 20.000 đồng/m3

  • Chi phí ăn uống, sinh hoạt của gia chủ, chi phí coi thầy cất nhà và ăn nhậu thợ thầy, đồ cúng: 5.000.000 - 10.000.000 đồng

  • Tiền điện: 1.500.000 đồng

Lưu ý rằng đây chỉ là ước lượng và chi phí thực tế có thể thay đổi tùy thuộc vào nhiều yếu tố khác nhau. Việc tham khảo ý kiến của các chuyên gia xây dựng và dựa vào bảng báo giá cụ thể từ nhà thầu là quan trọng để có cái nhìn chính xác hơn về chi phí xây dựng mẫu nhà 2 tầng 80m2 giá rẻ.

Giới thiệu các mẫu nhà 2 tầng 80m2 giá rẻ 200 triệu, 300 triệu, 500 triệu, 600 triệu, 700 triệu

Mẫu nhà 2 tầng 80m2 giá rẻ là sự kết hợp tinh tế giữa tiện nghi và chi phí hợp lý. Chỉ từ 250-300 triệu đồng, bạn đã có thể xây được một căn nhà thiết kế đơn giản, hiện đại, có từ 2-4 phòng ngủ đáp ứng nhu cầu sinh hoạt của gia đình từ 4 - 6 thành viên.

Cùng tìm hiểu những bản thiết kế nổi bật được ưa chuộng nhất về mẫu nhà này dưới đây:

Mẫu nhà ống 2 tầng 80m2 giá rẻ 200 triệu 

Nếu không đủ tài chính xây nhà 2 tầng 80m2 700 triệu - 1 tỷ đồng như trên, bạn hoàn toàn có thể chọn cho mình một mẫu nhà phố, nhà ống 2 tầng 80m2 giá rẻ với nội thất đơn giản chỉ từ 200 triệu đồng. Với các mẫu này, bạn nên tránh trang trí rườm rà hoặc lựa chọn vật liệu quá đắt đỏ, chủ yếu tập trung vào tiện ích và công năng sử dụng của ngôi nhà.

Mẫu nhà ống 2 tầng 80m2 giá rẻ 200 triệu 
Mẫu nhà ống 2 tầng 80m2 giá rẻ 200 triệu 

Mặc dù tập trung vào chi phí, nhưng việc xây dựng một ngôi nhà 2 tầng 80m2 giá rẻ với ngân sách 200 triệu đồng vẫn đòi hỏi sự cân nhắc kỹ lưỡng đối với việc bố trí nội thất và ngoại thất. Để đảm bảo không gian sống tiện nghi, ấm cúng và phản ánh đúng nhu cầu sinh hoạt của gia đình, bạn có thể thực hiện những điều sau:

  • Góc sống thoải mái: Với diện tích nhỏ, hãy đảm bảo không gian mở và thoải mái bằng cách chọn những sản phẩm nội thất thiết kế đơn giản, gọn gàng.  

  • Cửa sổ rộng: Sử dụng nhiều cửa sổ rộng làm bằng nhôm kính hiện đại để tận dụng ánh sáng tự nhiên và giúp không gian trở nên thoáng đãng.

  • Nội thất đơn giản nhưng đẹp: Tránh các mẫu nội thất cầu kỳ và phức tạp để tiết kiệm chi phí xây dựng và lắp đặt.

  • Vật dụng nội thất hiện đại: Chọn những mẫu nội thất hiện đại, giúp tối ưu hóa không gian và mang lại vẻ đẹp tinh tế.

Chia sẻ phương án mặt bằng nhà ống 2 tầng giá rẻ 80m2:

Bậc tam cấp dẫn vào phòng khách được thiết kế thông gian với phòng ăn. Phía trước là khoảng sân tự do được ốp gạch trống trượt để đỗ xe và trồng cây. Phòng bếp được trang bị tiện nghi và hiện đại từ tủ đồ khô, kệ tới tủ lạnh. Sau phòng bếp và cầu thang là 1 phòng ngủ khép kín, mặt tiếp xúc với sân sau có cửa sổ và cửa phòng to dẫn ra sân sau. Đối diện phòng ngủ, nằm sau trục đi lại chính ở tầng trệt là một nhà vệ sinh chung. 

Bản thiết kế công năng nhà ống 2 tầng 200 triệu 80m2
Bản thiết kế công năng nhà ống 2 tầng 200 triệu 80m2

Tầng 2 được bố trí với 1 phòng ngủ master (có tích hợp tủ đồ VIP và nhà tắm), 1 phòng kho và một nhà vệ sinh chung. Thiết kế giúp tối ưu diện tích và đáp ứng tốt nhu cầu sinh hoạt của các gia đình có đông thành viên.

Mẫu nhà 2 tầng 80m2 giá rẻ mái thái 300 triệu 

Gia chủ muốn đầu tư xây một ngôi nhà 2 tầng 80m2 chỉ với 300 triệu có thể tham khảo mẫu dự toán chi tiết sau:

  • Xây thô và nhân công (móng, khung bê tông, xi măng, sắt thép, gạch): 180 triệu

  • Sơn nước: 15 triệu

  • Thiết bị vệ sinh, hệ thống điện nước: 25 triệu

  • Cầu thang, cửa chính và cửa phụ: 15 triệu

  • Đá granit: 10 triệu

  • Các chi phí phát sinh: 5 triệu

Các mẫu nhà biệt thự 2 tầng đẹp có thể xây được với kinh phí này thường là nhà ống 300 triệu ở nông thôn. Như mẫu nhà dưới đây chọn thiết kế với mái thái. Bạn có thể tham khảo thêm mái nhật hoặc mái bằng, đều có chi phí khá tương đồng. Với thiết kế mái thái, gia chủ còn có thêm một tầng trung gian giữa tầng lầu và tầng mái, nâng cao diện tích sử dụng hiệu quả mà không tốn kém thêm chi phí.

Mẫu nhà 2 tầng 80m2 giá rẻ mái thái 300 triệu 
Mẫu nhà 2 tầng 80m2 giá rẻ mái thái 300 triệu 

Phong cách thiết kế đơn giản là lựa chọn phù hợp nhất cho những ngôi nhà ống 2 tầng giá rẻ. Những gam màu sáng được sử dụng để sơn ngoại thất tạo cảm giác nhà rộng và thoáng mát hơn. Bảng vật liệu giá rẻ cho ngôi nhà 300 triệu có thể kể đến: móng băng, thép Việt Ý, xi măng Vicem, sắt thép Việt Đức, gạch tuynel, sơn Kova, và nội thất cũ giá rẻ.

Phương án thiết kế mặt bằng công năng: 

Phòng khách được bố trí ở vị trí trung tâm của tầng 1, là không gian sinh hoạt chung của cả gia đình. Phòng khách có diện tích 20m2, đủ rộng để bố trí bộ sofa, bàn trà, tivi,... Phòng bếp + ăn được thiết kế liền kề phòng khách, có diện tích 20m2, trang bị tủ bếp chữ L, bàn ăn,... Phòng ăn có thể kê thêm một bộ bàn ghế nhỏ 4 chỗ để tiếp khách. WC được bố trí ở cuối nhà, có diện tích 5m2.

Mặt bằng mẫu nhà ống 2 tầng giá rẻ ở nông thôn 80m2 300 triệu
Mặt bằng mẫu nhà ống 2 tầng giá rẻ ở nông thôn 80m2 300 triệu

Tầng 2 gồm 3 phòng ngủ, phòng thờ, phòng đọc sách, nhà kho và khu thông tầng. Phòng ngủ master cho cha mẹ nằm ở phía trước nhà, có diện tích 15m2. 2 phòng ngủ nhỏ nằm trong góc sau của tầng 2 dành cho các con. Giữa 2 phòng ngủ là khu vực thờ cúng. Đối diện cầu thang là khu vực thông tầng. Phòng đọc sách kế bên 1 WC nhỏ 5m2. Nhà kho có diện tích to bằng nhà vệ sinh, dẫn ra sân giặt phơi. 

Mẫu nhà 2 tầng 80m2 mái nhật giá rẻ 500 triệu

Mẫu nhà 2 tầng 80m2 mái nhật 500 triệu được thiết kế theo phong cách hiện đại, đơn giản. Các kiến trúc sư đã sử dụng hệ cửa chính lớn và cửa sổ to nhỏ bằng kính cường lực ở quanh các mặt không bị giáp tường, giúp ngôi nhà trông rộng rãi và thoáng mát hơn. Mái nhật được sử dụng để tạo điểm nhấn cho ngôi nhà, đồng thời giúp ngôi nhà mát mẻ hơn vào mùa hè.

Màu sắc chủ đạo của ngôi nhà là màu trắng, kết hợp với màu nâu của cửa gỗ và màu ghi xám của mái nhật. Màu sắc này giúp ngôi nhà trông hiện đại và sang trọng hơn.

Mẫu nhà 2 tầng 80m2 mái nhật giá rẻ 500 triệu
Mẫu nhà 2 tầng 80m2 mái nhật giá rẻ 500 triệu

Dự toán các hạng mục chi phí xây nhà 2 tầng 80m2 500 triệu mái nhật cụ thể:

STT Hạng mục thi công Chi phí (đơn vị: VNĐ)
1 Thi công phần thô 295.000.000
2 Gạch 110 35.000.000
3 Đá granit ốp lát 22.000.000
4 Cửa gỗ ép 20.000.000
5 Lắp đặt hệ thống điện, cấp thoát nước  26.000.000
6 Sơn tường  28.000.000
7 Cửa nhôm kính  25.000.000
8 Tủ bếp và bàn ăn 20.000.000
9 Giường ngủ (~3 phòng)   20.000.000
10 Sofa và tủ phòng khách  21.000.000
11 Tủ treo quần áo  20.000.000
12 Cổng và các chi phí phát sinh khác 18.000.000
Tổng chi phí 550.000.000 

Phối cảnh mặt bằng công năng:

Tọa lạc trên mảnh đất rộng 120 m2, ngôi nhà 2 tầng 80m2 mái nhật hiện đại này là nơi sinh sống của một gia đình trẻ. Diện tích xây dựng chỉ 80 m2, phần còn lại dành cho sân vườn, tạo không gian thoáng đãng, thoải mái cho các thành viên trong gia đình.

Bên trong, ngôi nhà có một không gian mở kết hợp giữa phòng khách và bếp, ba phòng ngủ cho trẻ, một phòng ngủ chính và một phòng thờ.

Bố cục mở và hệ thống tường kính rộng lớn không chỉ mang lại giá trị thẩm mỹ mà còn có tác dụng chức năng. Chúng không chỉ giúp phòng khách và phòng bếp trở nên thoải mái và nghệ thuật hơn mà còn đưa ánh sáng và không khí vào từng ngóc ngách của ngôi nhà. Ngoài ra, thiết kế không gian mở còn giúp các thành viên trong gia đình dễ dàng tương tác với nhau.

Để tăng cường kết nối giữa con người, phòng bếp được bố trí với hệ cửa kính mở ra trực tiếp ra khu vườn, giúp bố mẹ dễ dàng quan sát con cái đang vui chơi bên ngoài.

Mặt bằng công năng nhà 2 tầng 80m2 mái nhật giá rẻ có sân vườn
Mặt bằng công năng nhà 2 tầng 80m2 mái nhật giá rẻ có sân vườn

Mẫu nhà 2 tầng 80m2 giá rẻ mái bằng có sân vườn nhỏ 600 triệu

Không gian cảnh quan đặc biệt phong phú, bao gồm khu vườn riêng cùng ngoại thất được trang trí bằng 2 màu chủ đạo trắng và xanh. Bên cạnh đó, để làm giảm bức xạ nhiệt khi tia nắng chiếu trực tiếp vào nhà, các kiến trúc sư đã sử dụng linh hoạt những vật liệu có khả năng hấp thụ nhiệt tốt như: gỗ, bê tông, thanh lam, kính cường lực. 

Phối cảnh 3D nhà vườn 2 tầng mái bằng giá rẻ 600 triệu 80m2
Phối cảnh 3D nhà vườn 2 tầng mái bằng giá rẻ 600 triệu 80m2

Dự toán chi phí xây nhà 2 tầng 600 triệu 80m2 cụ thể:

Chi phí xin cấp phép xây dựng: 1 triệu vnđ

Phần thô: 325 triệu đồng, sơ qua có những chi phí chính như:

  • Sắt làm xà gồ loại 4-8 15mm: 1.5 triệu vnđ/cây

  • Đinh 5 và thép buộc để đóng cốp pha và cột niềng móng: 130.000 vnđ

  • Sắt phi 14 và phi 6: 3.4 triệu vnđ

  • Đá 1 x 2: 420.000 vnđ/1 xe 2.5 tấn

  • Đá chẻ: 1.2 triệu vnđ

  • Gạch: 17 triệu vnđ

  • Cát xây dựng 4.3 triệu vnđ (cát xây 400.000 vnđ/xe và cát tô 550.000 vnđ/xe)

  • Xe chở sắt + thầy phong thuỷ xem cất nhà + ăn nhậu thợ, đồ cúng,...: 2 triệu vnđ

Phần hoàn thiện:

Hoàn thiện kiến trúc:

  • Tôn màu 3kg loại 3.5 zem 11 sóng) + keo: 4.4 triệu vnđ

  • Giàn cửa: 25 triệu vnđ (cửa chính, cửa sổ, cửa thông phòng, cửa WC)

  • La phong thạch cao: 5.4 triệu vnđ

  • Đá granite: 13 triệu vnđ

  • Bột chà ron, phụ kiện bắt nước máy: 865.000 vnđ

  • Chổi quét vôi + kéo chống thấm tường ngoài: 100.000 vnđ

  • Hệ thống điện, đèn chiếu sáng: 5 triệu vnđ + công nhà tự bắt

  • Nhôm kính: 6 triệu vnđ

  • Công trét bột: 300.000 vnđ (để tiết kiệm chi phí có thể tự lăn sơn)

  • Sơn nước: 20 triệu vnđ

  • Tiền công thợ: 22.5 triệu vnđ

Hoàn thiện và thi công nội thất:

  • Tủ bếp: 30 triệu vnđ

  • Rèm cửa: 2.6 triệu vnđ

  • Giường ngủ: 15 triệu vnđ

  • Tủ quần áo: 25 triệu vnđ

  • Thiết bị vệ sinh và vòi nước: 19 triệu vnđ (ống nước Phi 90 1.23 triệu, bi hầm cầu 1.25 triệu,...)

  • Gạch men + bồn cầu, bồn rửa chén: 10 triệu vnđ

Tư vấn bố trí công năng nhà 2 tầng 80m2 mái bằng 600 triệu:

Bản vẽ thiết kế bên trong ngôi nhà cho thấy một bố cục với gara và phòng khách. Gara được đặt ở bên trái của ngôi nhà, và phòng khách được đặt ở bên phải của ngôi nhà.

Mặt bằng tổng thể nhà 2 tầng mái bằng 80m2 giá rẻ có sân vườn
Mặt bằng tổng thể nhà 2 tầng mái bằng 80m2 giá rẻ có sân vườn

Bếp có bàn đảo bếp nằm ở phía sau cùng của ngôi nhà, sau bàn billiards và sân trong. Cạnh phòng bếp là nhà vệ sinh chung, đảm bảo sự riêng tư cho người sử dụng.

Mặt bằng nội thất tầng 1 mẫu nhà giá rẻ 80m2 2 tầng mái bằng 600 triệu
Mặt bằng nội thất tầng 1 mẫu nhà giá rẻ 80m2 2 tầng mái bằng 600 triệu

Phòng ngủ master nằm ở mặt tiền, có tủ thay đồ VIP, ban công rộng và phòng tắm riêng. Kế bên, ngay chính giữa nhà là khu thông tầng thoáng mát. 2 phòng ngủ khép kín còn lại nằm ở mặt sau ngôi nhà, nhưng không vì thế mà thiếu đi sự tươi sáng nhờ các ô cửa sổ kính to bản.

Phối cảnh mặt bằng các phòng tầng 2
Phối cảnh mặt bằng các phòng tầng 2

Mẫu nhà 2 tầng chữ L 80m2 giá rẻ 700 triệu đồng hiện đại

Thiết kế nhà chữ L 2 tầng 80m2 hiện đại sẽ có sân trước để trồng cây và đỗ xe. Giữa nhà là mái hiên đón gió lùa vào mát mẻ, để giảm độ hấp thụ nhiệt của mái tôn. Phía sau nhà lùi vào khoảng 4,5m để có không gian thoát hơi cho nhà bếp. Mái được dẫn một giếng trời dọc theo cầu thang xuống sàn tầng trệt.

Mẫu nhà 2 tầng chữ L 80m2 giá rẻ 700 triệu đồng hiện đại
Mẫu nhà 2 tầng chữ L 80m2 giá rẻ 700 triệu đồng hiện đại

Dự toán cụ thể chi phí xây thô cơ bản và hoàn thiện nội thất nhà 2 tầng 80m2 giá rẻ 700 triệu:

Chi phí xây thô:

Phần xây thô Khối lượng Đơn giá Thành tiền
Công thợ 70 người 500.000 35.000.000
Gạch xây loại 2 660 viên 40.000  26.400.000
Xi măng 160kg 60.000 9.600.000
Cát     7.000.000
Mái tôn xốp mạ bạc cách âm, cách nhiệt tốt + ống kẽm 85m2 350.000 29.750.000
Khung thép     20.000.000
Vật tư sơn     8.000.000
Thiết bị vệ sinh, bồn nước inox, bình nóng lạnh     10.000.000
Dây điện, ổ cắm, đường nước     12.000.000
Cổng sắt     8.000.000

Cửa thông phòng

Cửa sổ nhôm kính

2 cái

4 cái

2.000.000

1.250.000

4.000.000

5.000.000

Sàn bê tông mài 66m2 300.000 19.800.000

Ngoài những khoản xây thô chính ra, còn nhiều chi tiết khác. Bạn đọc muốn tham khảo bảng giá thiết kế, thi công hoàn thiện xin liên hệ với Kiến trúc Vinavic qua hotline 0975678930.

Chi phí hoàn thiện nội thất:

Thiết kế và thi công nội thất cho nhà 2 tầng chữ L 80m2 giá rẻ chỉ sử dụng những món đồ không thể thiếu như bàn, ghế, giường ngủ,... nhằm tiết kiệm chi phí tối đa.

Nội thất Đơn giá
Bộ sofa phòng khách 18.000.000
Bàn trà 3.000.000
Bàn ăn 5.000.000
Ghế bàn ăn 10.000.000
Bếp MFC 11.550.000
Mặt bếp đá kim sa 1.980.000
giường ngủ gỗ keo 6.000.000
Tủ áo 20.000.000

Cách thiết kế mặt bằng các phòng chức năng:

Tầng 1 có sân vườn đẹp gồm: sảnh tầng, 1 phòng khách 32m2, 1 bếp ăn 25,2m2, 1 phòng ngủ 16.2 m2 và WC chung cả tầng.

Phối cảnh nội thất tầng 1
Phối cảnh nội thất tầng 1

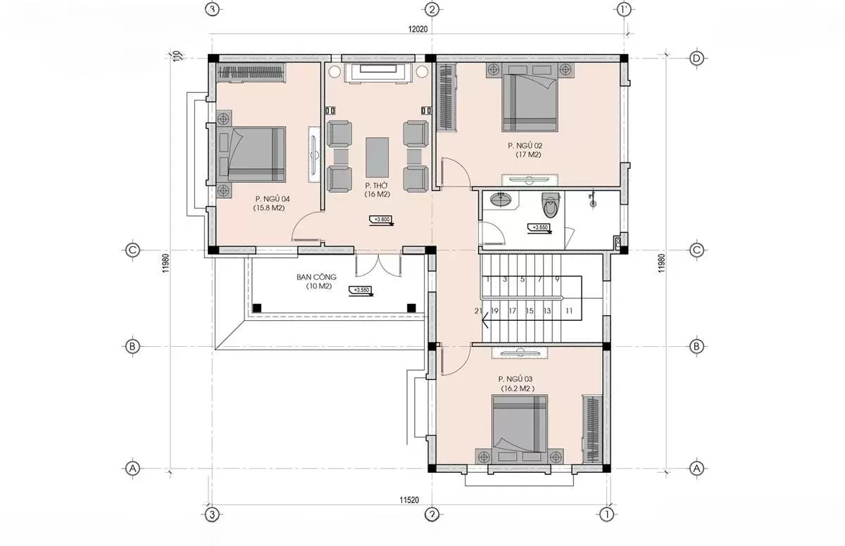
Mặt bằng công năng 2 của nhà 2 tầng chữ L 80m2 giá rẻ được chia thành:

  • Ban công 10m2 

  • Phòng thờ 16m2 

  • Phòng ngủ 02 17 m2

  • Phòng ngủ 03 16,2 m2

  • Phòng ngủ 04 15,8 m2

  • 1 WC chung.

Công năng tầng 2
Công năng tầng 2

Có nên thuê kiến trúc sư thiết kế mẫu nhà 2 tầng 80m2 giá rẻ hay không?

Tùy thuộc vào mức độ phức tạp của thiết kế và kinh nghiệm của kiến trúc sư mà chi phí thuê thiết kế nhà 2 tầng giá rẻ 80m2 có thể dao động từ 10-30 triệu đồng. Đây là một khoản chi phí không nhỏ, nhưng nếu so với những lợi ích mà nó mang lại thì hoàn toàn xứng đáng.

Nếu gia chủ không có kinh nghiệm và kiến thức về thiết kế nhà ở thì nên thuê kiến trúc sư
Nếu gia chủ không có kinh nghiệm và kiến thức về thiết kế nhà ở thì nên thuê kiến trúc sư

Tuy nhiên, nếu gia chủ có kinh nghiệm và kiến thức về thiết kế nhà ở thì có thể tự thiết kế ngôi nhà của mình. Cách này sẽ giúp tiết kiệm chi phí, nhưng cũng có thể tiềm ẩn những rủi ro như:

  • Ngôi nhà không đảm bảo tính thẩm mỹ và công năng.

  • Chi phí xây dựng phát sinh không đáng có.

  • Ngôi nhà không đạt chất lượng tốt, dễ bị xuống cấp trong quá trình sử dụng.

Do đó, gia chủ cần cân nhắc kỹ lưỡng trước khi quyết định có nên thuê kiến trúc sư thiết kế mẫu nhà đẹp 2 tầng 80m2 giá rẻ hay không. Nếu gia chủ không có kinh nghiệm và kiến thức về thiết kế nhà ở thì nên thuê kiến trúc sư để đảm bảo ngôi nhà được xây dựng đẹp, tiện nghi và bền vững.

Tư vấn thiết kế nội thất nhà 2 tầng giá rẻ 80m2 đẹp và hiệu quả

  • Nội thất phòng khách: Phòng khách nền trắng với tủ âm tường cỡ lớn không chắn lối đi và nội thất tối giản giúp căn nhà thêm thoáng đãng. Bộ bàn ghế phòng khách thường theo những tone màu đơn sắc (monotone) như pastel sáng hay xám, nâu trầm. Bức tường sau nhà sẽ được sơn màu phụ trợ hoặc đối lập để tạo điểm nhấn cho bộ bàn ghế. Trên tường có thể lắp đặt dàn TV, giá sách hoặc treo tranh trang trí.

Phòng khách nhà 2 tầng giá rẻ
Phòng khách nhà 2 tầng giá rẻ
  • Nội thất phòng bếp: Bếp và bàn ăn thường được đặt liền kề với phòng khách. Chất liệu bàn ăn được ưa chuộng nhất là gỗ, kích thước 4, 6 hoặc 8 ghế là phổ biến và đủ để thoả mãn nhu cầu sinh hoạt của một gia đình đông người. Tủ bếp có thể thiết kế âm tường để tiện lắp đặt máy rửa bát, sử dụng màu trắng hoặc ốp đá, ốp gỗ bề mặt nếu gia chủ không muốn bị bám bẩn. Cửa bếp không được xây đối diện nhà vệ sinh hoặc phòng ngủ.

Phòng bếp nhà giá rẻ 2 tầng 80m2
Phòng bếp nhà giá rẻ 2 tầng 80m2
  • Phòng ngủ bố mẹ: Phòng ngủ cha mẹ thường là phòng master, có ban công lớn và được bố trí ít đồ đạc. Xu hướng thiết kế nội thất phòng ngủ với nhiều cửa kính lớn, kết nối với thiên nhiên xanh ngoài ban công. Có thể thiết kế thêm sàn lợp cỏ nhân tạo để tạo thành không gian thư giãn cho vợ chồng gia chủ.

Nội thất phòng ngủ master
Nội thất phòng ngủ master
  • Phòng ngủ con cái: Phòng ngủ cho các con thường được trang bị tủ sách, bàn học và giường ngủ. Cửa sổ sẽ được thiết kế hướng vào bàn học để hỗ trợ việc học tập và thư giãn của con.

Thiết kế phòng ngủ dành cho con trong nhà 2 tầng 80m2 giá rẻ
Thiết kế phòng ngủ dành cho con trong nhà 2 tầng 80m2 giá rẻ
  • Nội thất nhà vệ sinh: Vì mẫu nhà 2 tầng 80m2 giá rẻ thường có mặt tiền hạn chế nên phòng vệ sinh được thiết kế theo hình dạng chiều dọc, với việc đặt gương và bồn rửa ở phía cuối, tạo nên một không gian mở rộng và sâu sắc. Để giảm chi phí, quyết định duy trì gạch nguyên trạng và chỉ thêm vào đó bằng cách lắp đặt thêm đồ nội thất.

Mẫu nhà vệ sinh có bồn tắm và vòi hoa sen
Mẫu nhà vệ sinh có bồn tắm và vòi hoa sen

 Xem thêm: 39 Mẫu nhà 2 tầng đẹp ở nông thôn giá rẻ thịnh hành nhất

By https://vinavic.vn/
https://vinavic.vn/

Đánh giá - Bình luận
0 bình luận, đánh giá về Các mẫu nhà 2 tầng 80m2 giá rẻ nhưng vẫn đầy đủ tiện nghi
Nhấn vào đây để đánh giá
Thông tin người gửi
Phong thủy
Chúng tôi có thể hỗ trợ bạn!
10.86845 sec| 2587.227 kb