Cực Hot 38 mẫu nhà 2 tầng mái bằng 7x10m đẹp mê mẩn

Mẫu nhà đẹp
0
773
vinavic - 28/08/2024

Các mẫu nhà 2 tầng mái bằng 7x10m đẹp và tiện nghi luôn thu hút sự chú ý của nhiều khách hàng trong thời gian gần đây. Nhằm đáp ứng nhu cầu này, Vinavic xin giới thiệu đến bạn đọc những mẫu nhà 2 tầng 70m2 đang được xây dựng phổ biến hiện nay.

Mẫu nhà 2 tầng mái bằng 7x10m đẹp
Mẫu nhà 2 tầng mái bằng 7x10m đẹp

Đặc trưng của mẫu nhà 2 tầng mái bằng 7x10m

Các mẫu nhà 2 tầng 7x10m với đa dạng phong cách thiết kế là lựa chọn hàng đầu cho những gia đình nhỏ mong muốn có không gian sống thoải mái và tiện ích. Mức đầu tư chỉ khoảng chưa đến 1 tỷ, bạn đã có thể xây dựng một ngôi nhà 2 tầng 7x10m hiện đại đáp ứng đầy đủ nhu cầu sinh hoạt của gia đình.

Kích thước nhỏ gọn, phù hợp với nhiều gia đình

Những ngôi nhà 2 tầng có diện tích 70m2, rất lý tưởng cho những gia đình có diện tích đất hạn chế hoặc các cặp vợ chồng trẻ với ngân sách vừa phải mong muốn sở hữu một ngôi nhà riêng. Ngôi nhà được thiết kế theo phong cách hiện đại, sử dụng các tông màu trung tính như trắng, đen, xám, nâu,... làm chủ đạo, mang lại cảm giác rộng rãi và thoáng đãng. Phù hợp cho các gia đình từ 3-5 thành viên.

Mẫu nhà 2 tầng mái bằng 7x10m đẹp
Mẫu nhà 2 tầng mái bằng 7x10m đẹp

Các mẫu nhà 2 tầng 7x10m mái bằng có thể được xây dựng ở cả khu vực nông thôn lẫn thành phố, vì kiểu kiến trúc này thích hợp với nhiều điều kiện khí hậu và địa hình khác nhau.

Tiết kiệm chi phí xây dựng

Mẫu nhà 2 tầng hiện đại 7x10m có mức chi phí xây dựng tương đối thấp, chỉ khoảng một nửa so với các biệt thự cùng kích thước. Đây là sự lựa chọn hàng đầu cho những gia đình có ngân sách hạn chế.

Tối ưu công năng sử dụng

Dù có kích thước khiêm tốn, mẫu nhà 2 tầng mái bằng với diện tích 7x10m vẫn có khả năng đáp ứng tốt mọi nhu cầu của gia đình. Các kiến trúc sư sẽ khai thác tối ưu không gian để sắp xếp các phòng chức năng một cách hợp lý.

Mẫu nhà 2 tầng mái bằng 7x10m chữ L hiện đại
Mẫu nhà 2 tầng mái bằng 7x10m chữ L hiện đại

Thiết kế phong cách đa dạng

Nhà 2 tầng hiện đại 7x10m mái bằng có nhiều kiểu dáng khác nhau, từ hình chữ L đến hình vuông, với các loại mái như mái thái, mái nhật và mái bằng. Số lượng phòng ngủ cũng linh hoạt, từ 2 đến 4 phòng. Tùy thuộc vào sở thích và nhu cầu của gia chủ, các kiến trúc sư sẽ phát triển ý tưởng thiết kế phù hợp.

Chi phí xây nhà 2 tầng mái bằng 7x10m trọn gói

Hiện nay, có nhiều cách tính chi phí xây nhà 2 tầng mái bằng 7x10m trọn gói, tuy nhiên cách tính đơn giá theo m2 hay được sử dụng nhiều nhất. Công thức như sau:

Tổng chi phí xây nhà = Tổng diện tích sàn x đơn giá theo m2

Trong đó:

  • Tổng chi phí xây nhà: Chi phí xây dựng ngôi nhà mà chủ đầu tư cần phải đáp ứng để hoàn thiện thi công.
  • Tổng diện tích sàn: bao gồm tất cả các diện tích trệt, móng, mái, gác lửng (nếu có).
  • Đơn giá theo m2: đây là đơn giá thi công phần thô, nhân công hoàn thiện hoặc đơn giá xây nhà trọn gói mà nhà thầu cung cấp. Hiện nay, chi phí để xây dựng trọn gói sẽ dao đồng: Từ 5.800.000 vnđ – 7.000.000 vnđ/m2.

Để giúp mọi người dễ hiểu hơn về cách tính xây nhà 2 tầng mái bằng 7x10m trọn gói bao nhiêu? Thì dưới đây Vinavic sẽ đưa ra ví dụ về cách tính để mọi người tham khảo và dựa theo để tính toán sơ bộ:

Xây dựng nhà 2 tầng mái bằng 7x10m, ta có:

  • Diện tích móng: 70 x 30% = 21m2
  • Diện tích sàn tầng 1: 70 x 100% = 70m2
  • Diện tích sàn tầng 2: 70 x 100% = 70m2

=> Như vậy: Tổng diện tích xây dựng nhà 2 tầng mái bằng 7x10m là 21 + 70 + 70 = 161m2

=> Như vậy: Chi phí xây nhà nhà 2 tầng mái bằng 7x10m trọn gói sẽ là: 161m2 x 5.800.000 = 933.000.000đ (đối với vật liệu trung bình) và 161m2 x 7.000.000 = 1.127.000đ (đối với vật tư khá).

Vậy chi phí xây dựng nhà 2 tầng mái bằng 7x10m sẽ dao động khoảng 900 triệu đến 1,1 tỷ và có thể tăng giảm tùy thuộc vào thời điểm thi công, vị trí, tình hình thực tế về giá nguyên vật liệu cũng như giá nhân công ở từng địa phương.

Liên hệ ngay Kiến Trúc Vinavic để được tư vấn báo giá cụ thể nhé: Hotline/Zalo:0975678930

Cực Hot 38 mẫu nhà 2 tầng mái bằng 7x10m đẹp mê mẩn

Mẫu nhà 2 tầng mái bằng 7x10m có hồ bơi

Mẫu nhà sân vườn 7x10m với hồ bơi được thiết kế theo phong cách hiện đại, giản dị và gần gũi với thiên nhiên. Khu vực xung quanh hồ bơi cần phải thoáng đãng, nhiều cây xanh và có gió tự nhiên để tạo ra không khí trong lành, mang lại cảm giác thư giãn tối ưu cho gia chủ.

mẫu nhà 2 tầng mái bằng 7x10m
Mẫu nhà 2 tầng mái bằng 7x10m có hồ bơi cực đẹp

 

Mẫu nhà 2 tầng mái bằng 7x10m hiện đại

Mẫu nhà ống 2 tầng với kích thước 7x10m được thiết kế theo phong cách hiện đại, mang đến vẻ đẹp trẻ trung và năng động. Ngôi nhà có hình khối vuông vức cùng với các mảng tường nhô ra thụt vào khác nhau, tạo nên một kiến trúc đơn giản nhưng độc đáo. Màu trắng là tông màu chính, kết hợp với lan can sắt đen và các mảng tường tối màu, tạo cảm giác chắc chắn và sang trọng. 

Mẫu nhà 2 tầng mái bằng 7x10m hiện đại
Mẫu nhà 2 tầng mái bằng 7x10m hiện đại

Mẫu nhà 2 tầng mái bằng 7x10m hiện đại

Kiểu 2 tầng mái bằng cũng được thiết kế theo phong cách hiện đại với kiến trúc vững chãi. Các đường nét và chi tiết được tối giản, kết hợp với màu sắc tươi mới. Đặc biệt, thiết kế mái bằng bằng bê tông cốt thép càng tăng thêm sự bền vững cho ngôi nhà và đồng thời tạo nên nét độc đáo riêng biệt.

Mẫu nhà 2 tầng mái bằng 7x10m hiện đại
Mẫu nhà 2 tầng mái bằng 7x10m hiện đại

Mẫu nhà 2 tầng mái bằng 7x10m hiện đại ấn tượng

Mặt tiền của ngôi nhà 2 tầng tạo ấn tượng với thiết kế hiện đại đơn giản, màu trắng sữa nhẹ nhàng kết hợp với cây cối xanh tươi. Bên cạnh sắc trắng dịu dàng là những điểm nhấn màu đen nổi bật trên khung cửa kính, cùng với các mảng tường được ốp gạch nâu gỗ. Một chút màu sắc thêm vào cũng đủ để làm nổi bật diện mạo ấn tượng cho nhà 2 tầng 7x10m.

Mẫu nhà 2 tầng mái bằng 7x10m hiện đại ấn tượng
Mẫu nhà 2 tầng mái bằng 7x10m hiện đại ấn tượng

 

Mẫu nhà 2 tầng mái bằng 7x10m hiện đại khỏe khoắn

Mặt tiền của mẫu nhà 2 tầng 7x10m được thiết kế nổi bật với các hình khối mạnh mẽ, kết hợp cùng những vật liệu hiện đại như kính cường lực và lan can sắt. Sự hòa quyện giữa các hình khối và vật liệu này đã tạo nên một ngoại thất thu hút, với những điểm nhấn rõ rệt. Hệ thống cửa chính và cửa phụ được bố trí hợp lý, đều sử dụng kính cường lực khung nhôm có khả năng cách âm và cách nhiệt hiệu quả. Cổng nhà được làm chắc chắn từ chất liệu sắt đen, đảm bảo an toàn cho ngôi nhà.

Mẫu nhà 2 tầng mái bằng 7x10m hiện đại khỏe khoắn
Mẫu nhà 2 tầng mái bằng 7x10m hiện đại khỏe khoắn

Mẫu nhà 2 tầng mái bằng 7x10m 2 phòng ngủ

Với thiết kế đơn giản và không yêu cầu kỹ thuật phức tạp, mẫu nhà này rất thích hợp cho cả gia đình ở nông thôn lẫn thành phố. Đặc biệt, mẫu nhà 2 tầng với 2 phòng ngủ không bị giới hạn bởi phong cách thiết kế, vì vậy bạn có thể chọn bất kỳ phong cách nào mà mình cảm thấy phù hợp nhất với không gian sống của mình.

 Mẫu nhà 2 tầng mái bằng 7x10m 2 phòng ngủ
 Mẫu nhà 2 tầng mái bằng 7x10m 2 phòng ngủ

 

Mẫu nhà mái bằng 7x10m 2 tầng 1 tum

Với kích thước 7x10m, thiết kế gồm 2 tầng và 1 tum có thể tối ưu hóa không gian để bố trí các phòng như phòng khách, phòng ngủ, bếp và phòng tắm một cách hợp lý. Điều này giúp cho không gian sống trở nên ngăn nắp và tiện lợi hơn. Bạn cũng có thể sử dụng khu vực ngoài trời để trồng cây xanh hoặc tạo ra một khu vực giải trí cho gia đình.

Mẫu nhà mái bằng 7x10m 2 tầng 1 tum
Mẫu nhà mái bằng 7x10m 2 tầng 1 tum

Mẫu nhà mái bằng 7x10m 2 tầng có gara để xe

Căn nhà được thiết kế với phong cách nhẹ nhàng, tối giản, sử dụng hai màu chủ đạo là trắng và nâu, được kiến trúc sư khéo léo kết hợp ở mặt tiền.

Mẫu nhà mái bằng 7x10m 2 tầng có gara để xe ô tô rộng
Mẫu nhà mái bằng 7x10m 2 tầng có gara để xe ô tô rộng
 

Mẫu nhà mái bằng 7x10m 2 tầng đơn giản

Mẫu nhà mái bằng 7x10m 2 tầng đơn giản
Mẫu nhà mái bằng 7x10m 2 tầng đơn giản
 

Mẫu nhà mái bằng 7x10m 2 tầng có sân vườn

Công trình 2 tầng mang phong cách hiện đại có vườn nghỉ dưỡng đầy đủ tiện nghi cho các gia đình muốn đến để hít thở khí trời trong lành và tận hưởng cảnh quan xanh thơ mộng. 

Mẫu nhà mái bằng 7x10m 2 tầng có sân vườn rộng
Mẫu nhà mái bằng 7x10m 2 tầng có sân vườn rộng

Mẫu nhà mái bằng 7x10m 2 tầng vuông vắn

Nhà vuông 2 tầng với diện tích 70m2 hiện đang là một trong những mẫu thiết kế được nhiều gia đình yêu thích. Công trình không chỉ mang lại vẻ đẹp thẩm mỹ cao mà còn đáp ứng đầy đủ nhu cầu sinh hoạt cho mọi thành viên trong gia đình.

Mẫu nhà mái bằng 7x10m 2 tầng vuông vắn
Mẫu nhà mái bằng 7x10m 2 tầng vuông vắn

Cách bố trí mặt bằng công năng nhà 2 tầng mái bằng 7x10m hợp lý

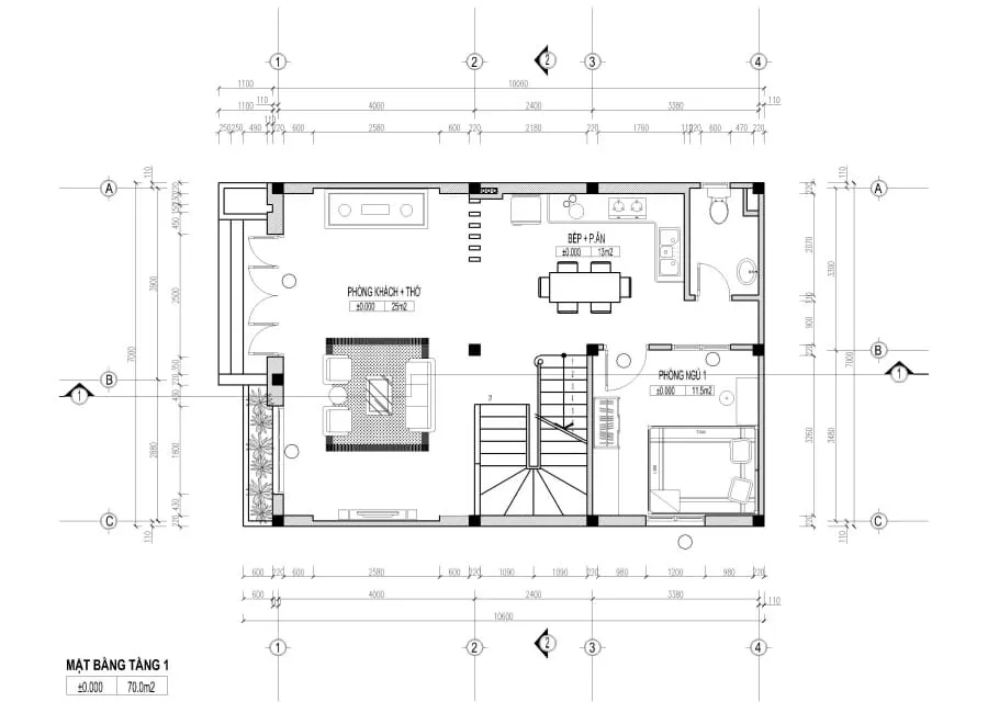
Tầng 1 bao gồm phòng khách kết hợp với gian thờ, phòng bếp và ăn, cùng với một phòng ngủ và nhà vệ sinh chung. Từ sảnh chính bước vào là không gian phòng khách rộng rãi, tích hợp với gian thờ, giúp tiết kiệm diện tích và thuận tiện cho việc thờ cúng cũng như sinh hoạt hàng ngày. Tiếp theo là khu vực bếp và ăn vẫn đảm bảo đầy đủ tiện nghi. Nhà vệ sinh được đặt gần đó để dễ dàng sử dụng. Phòng ngủ được bố trí ở cuối nhà nhằm tạo ra không gian nghỉ ngơi riêng tư và kín đáo.

Bố trí mặt bằng công năng nhà 2 tầng mái bằng 7x10m  tầng 1
Bố trí mặt bằng công năng nhà 2 tầng mái bằng 7x10m  tầng 1

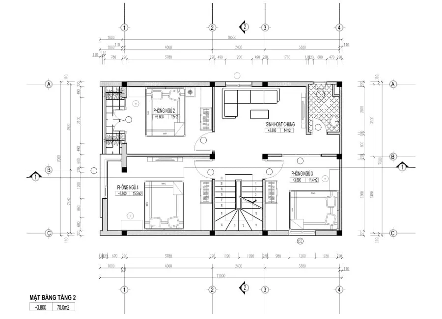
Tầng 2 bao gồm 3 phòng ngủ, một phòng sinh hoạt chung và nhà vệ sinh. Đối diện cầu thang lên là phòng sinh hoạt chung thoáng đãng cho các thành viên trong gia đình. Ba phòng ngủ được phân chia diện tích hợp lý và trang bị đầy đủ nội thất tiện nghi. Nhà vệ sinh chung được đặt ở góc cuối nhà để đáp ứng nhu cầu sử dụng.

Bố trí mặt bằng công năng nhà 2 tầng mái bằng 7x10m  tầng 2
Bố trí mặt bằng công năng nhà 2 tầng mái bằng 7x10m  tầng 2

Trên đây là bài viết về các mẫu nhà 2 tầng 7x10m mái bằng đang rất được thịnh trong thời gian gần đây. Nhờ đáp ứng được về mặt chi phí cũng như chất lượng công trình kiểu nhà này đã chiếm trọn được trái tim của rất nhiều khách hàng. Nếu quý khách đang có nhu cầu tìm hiểu qua mẫu nhà trên hay các mẫu nhà phố, biệt thự, villa, nhà cấp 4,.. .thì hãy liên hệ với Kiến Trúc Vinavic để được hỗ trợ tư vấn tốt nhất có thể. 

By https://vinavic.vn/
https://vinavic.vn/

Đánh giá - Bình luận
0 bình luận, đánh giá về Cực Hot 38 mẫu nhà 2 tầng mái bằng 7x10m đẹp mê mẩn
Nhấn vào đây để đánh giá
Thông tin người gửi
Phong thủy
Chúng tôi có thể hỗ trợ bạn!
1.82870 sec| 2461.336 kb