55+ Mẫu nhà 3 tầng mặt tiền 4x16m đẹp đang Hót Rần Rần cuối năm 2024

Mẫu nhà đẹp
0
1196
ThanhHa - 14/09/2024

Nẫu nhà 3 tầng mặt tiền 4x16m được xem là sự lựa chọn lý tưởng cho những gia đình mong muốn tiết kiệm chi phí xây dựng nhưng vẫn đảm bảo đầy đủ công năng sử dụng. Trong bài viết dưới đây, chúng ta sẽ cùng khám phá chi tiết các đặc điểm của mẫu nhà này cũng như những kinh nghiệm thiết kế tối ưu cho nhà 3 tầng 4x16m.

55+ Mẫu nhà 3 tầng mặt tiền 4x16m đẹp được yêu thích nhất 2024
55+ Mẫu nhà 3 tầng mặt tiền 4x16m đẹp được yêu thích nhất 2024

Có nên chọn mẫu nhà 3 tầng mặt tiền 4x16m không?

Trong các khu vực đô thị, mẫu nhà 3 tầng với kích thước 4x16m đã trở nên quen thuộc đối với nhiều chủ đầu tư. Loại hình này hiện đang được nhiều gia đình tại các thành phố lớn ưa chuộng nhờ vào những ưu điểm nổi bật. Cụ thể như sau:

  • Mẫu nhà 4x16m không chiếm quá nhiều diện tích mặt tiền, rất phù hợp cho các hộ gia đình sống trong khu vực đông dân cư. Do đó, đây là sự lựa chọn hàng đầu của nhiều gia đình khi xây dựng nhà ở tại các thành phố lớn.
  • Kết cấu của ngôi nhà tương đối đơn giản, dễ dàng thích ứng với nhiều phong cách thiết kế khác nhau, giúp các chủ nhà tiết kiệm thời gian trong việc lên ý tưởng và thi công.
  • Chi phí xây dựng mẫu nhà này cũng khá hợp lý, phù hợp với điều kiện tài chính của hầu hết các hộ gia đình hiện nay.
  • Thời gian thi công nhanh chóng, giúp giảm thiểu tối đa chi phí thuê nhân công và mặt bằng cho các gia chủ.

Rõ ràng, đây là một thiết kế phù hợp với nhu cầu sử dụng của các gia đình tại các thành phố lớn hiện nay. Tuy nhiên, do mặt tiền hẹp, thiết kế này có thể tạo cảm giác chật chội cho không gian sống. Do đó, các gia chủ cần cân nhắc các phương án thi công hợp lý để tạo ra một không gian sinh hoạt rộng rãi và thoáng đãng hơn cho các thành viên trong gia đình.

4x16m mẫu nhà ống đẹp 3 tầng 4m mặt tiền đẹp
4x16m mẫu nhà ống đẹp 3 tầng 4m mặt tiền đẹp

Đặc trưng của mẫu nhà phố 4x16m 3 tầng

Mẫu thiết kế nhà phố 3 tầng 4x16m là một kiểu nhà ở rất phổ biến đối với nhiều chủ đầu tư. Những đặc điểm nổi bật của mẫu nhà này mà quý khách nên lưu ý bao gồm:

  • Diện tích mặt sàn của nhà phố 4x16m là 64m2, với việc xây dựng từ 2 đến 3 tầng, có thể đáp ứng nhu cầu sinh hoạt cho gia đình từ 4 đến 5 người.
  • Kiểu dáng nhà thường là hình ống kéo dài về phía sau, do đó, việc bố trí không gian cần tuân thủ các nguyên tắc nhất định để đảm bảo tính tiện nghi và thẩm mỹ.
  • Mặt tiền của nhà phố 4x16m tương đối nhỏ, chỉ rộng 4m, vì vậy chủ đầu tư cần chú trọng trong thiết kế để tạo điểm nhấn thu hút sự chú ý.
  • Thường được kết hợp với mái bằng, phù hợp với nhiều phong cách kiến trúc khác nhau, giúp tiết kiệm chi phí và dễ dàng nâng cấp, sửa chữa trong tương lai.
  • Mẫu nhà phố 4x16m thường xuất hiện nhiều tại các khu vực đô thị do những đặc điểm riêng về diện tích đất.
Mẫu nhà phố 4x16m thiết kế độc đáo
Mẫu nhà phố 4x16m kiến trúc độc đáo

Cách bố trí công năng nhà 3 tầng mặt tiền 4x16m hợp lý

Trước khi tìm hiểu các mẫu thiết kế nhà đẹp, bạn cần xem xét cách sắp xếp công năng cho từng khu vực trong ngôi nhà của mình. Theo đó, với mẫu nhà này, bạn có thể phân chia không gian theo từng tầng một cách hợp lý.

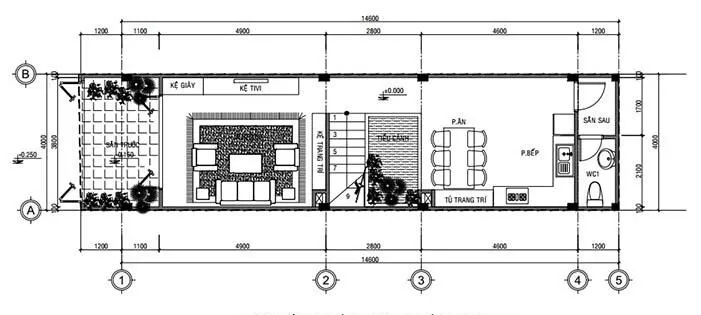
Bố trí công năng tầng 1

Mặt bằng công năng tầng 1 của nhà phố diện tích 4x16m được thiết kế với các khu vực sinh hoạt chung cho các thành viên trong gia đình, bao gồm phòng khách, phòng ăn, bếp và nhà vệ sinh. Các khu vực này cần được sắp xếp một cách hợp lý, tạo điều kiện thuận lợi cho việc di chuyển của người sử dụng.

Bố trí công năng tầng 1 nhà phố 3 tầng 4x16m
Bố trí công năng tầng 1 nhà phố 3 tầng 4x16m

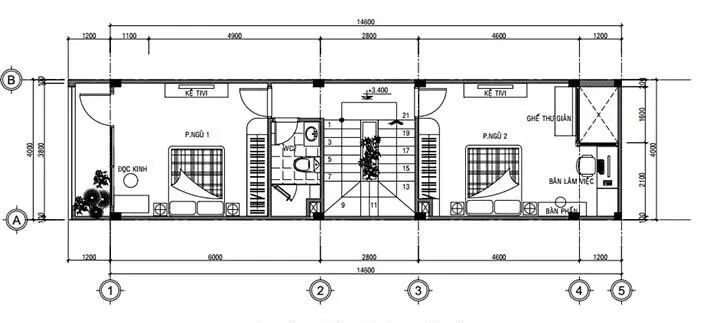
Bố trí công năng tầng 2

Tại tầng 2, bạn có thể thiết kế hai phòng ngủ và một nhà vệ sinh chung phục vụ cho cả hai phòng. Hai phòng ngủ sẽ được sắp xếp ở hai bên cầu thang lên, nhằm tạo sự thuận tiện và đáp ứng đầy đủ nhu cầu của các thành viên trong gia đình.

Bố trí công năng tầng 2 nhà phố 3 tầng 4x16m
Bố trí công năng tầng 2 nhà phố 3 tầng 4x16m

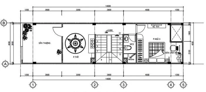
Bố trí công năng tầng 3

Tầng 2 thường được sắp xếp bao gồm một phòng thờ, một phòng ngủ và một nhà vệ sinh. Tùy thuộc vào nhu cầu của từng gia đình, nếu không cần nhiều phòng ngủ, bạn có thể chuyển đổi phòng ngủ thành các không gian chức năng khác.

Bố trí công năng tầng 3 nhà phố 3 tầng 4x16m
Bố trí công năng tầng 3 nhà phố 3 tầng 4x16m

TOP mẫu nhà phố 3 tầng 4x16m đẹp được yêu thích nhất

Mẫu nhà đẹp 3 tầng 4x16m phong cách hiện đại

Mẫu nhà 3 tầng có diện tích 4x16m theo phong cách hiện đại đang được nhiều gia đình lựa chọn trong thời gian gần đây. Thiết kế này không chỉ tạo ra một không gian sống tiện nghi, hiện đại cho toàn bộ gia đình mà còn giúp bạn tiết kiệm tối đa chi phí xây dựng.

Mẫu nhà đẹp 3 tầng 4x16m phong cách hiện đại
Mẫu nhà đẹp 3 tầng 4x16m phong cách hiện đại

 

Mẫu nhà đẹp 3 tầng 4x16m phong cách tân cổ điển

Mẫu nhà 3 tầng với diện tích 4x16m theo phong cách tân cổ điển đang trở thành sự lựa chọn phổ biến của nhiều gia đình hiện nay. Mẫu nhà 3 tầng mặt tiền 4x16m tân cổ điển này không chỉ tạo ra một không gian sống đẳng cấp cho gia đình bạn mà còn đảm bảo đầy đủ các công năng sử dụng cần thiết cho mọi thành viên.

Mẫu nhà đẹp 3 tầng 4x16m phong cách tân cổ điển
Mẫu nhà đẹp 3 tầng 4x16m phong cách tân cổ điển

100+ Mẫu nhà tân cổ điển thiết kế đối xứng, cân bằng hút triệu view

Mẫu nhà đẹp 3 tầng 4x16m mái Thái

Thiết kế nhà mái Thái đã trở nên phổ biến trong các công trình nhà ở tại Việt Nam hiện nay. Kiểu thiết kế này không chỉ tạo nên vẻ đẹp sang trọng cho ngôi nhà mà còn có khả năng chống nắng và chống thấm dột rất hiệu quả, là lựa chọn đáng cân nhắc cho các chủ nhà.

Mẫu nhà đẹp 3 tầng 4x16m mái Thái
Mẫu nhà đẹp 3 tầng 4x16m mái Thái 
Mẫu nhà đẹp 3 tầng 4x16m mái Thái
Mẫu nhà đẹp 3 tầng 4x16m mái Thái 1 tum có gara

30+ mẫu biệt thự mái thái đẹp cuốn hút nhất

Mẫu nhà đẹp 3 tầng 4x16m mái bằng

Mẫu thiết kế nhà 3 tầng với kích thước 4x16m và mái bằng đang trở thành sự lựa chọn phổ biến cho nhiều gia đình hiện nay, phù hợp với cả khu vực đô thị lẫn nông thôn. Thiết kế này không chỉ thể hiện vẻ đẹp thanh lịch mà còn đảm bảo độ bền vững cho toàn bộ công trình.

Mẫu nhà đẹp 3 tầng 4x16m mái bằng
Mẫu nhà đẹp 3 tầng 4x16m mái bằng

Mẫu thiết kế nhà phố 4x16m theo phong cách tối giản

Mẫu nhà phố 4x16 dưới đây mang phong cách tối giản, loại bỏ những chi tiết phức tạp để tạo nên một tổng thể hài hòa nhưng vẫn giữ được nét đặc trưng với mái Thái xếp chồng hai lớp. Tông màu trắng kem của gạch ốp tường là điểm nhấn nổi bật trong thiết kế, góp phần làm cho không gian trở nên sang trọng, sáng sủa và thanh lịch hơn.

Mẫu thiết kế nhà phố 4x16m theo phong cách tối giản
Mẫu thiết kế nhà phố 4x16m theo phong cách tối giản

Mẫu thiết kế nhà phố 4x16m 3 tầng với 3 phòng ngủ

Căn nhà 4x16m dưới đây có ba phòng ngủ, nổi bật với mặt tiền màu trắng mang lại cảm giác rộng rãi và thoáng đãng. Khu vực sân trước kết nối với gara ở tầng một, giúp chủ nhà dễ dàng di chuyển xe mà không gặp trở ngại. Để tăng thêm sự thu hút cho căn nhà, thiết kế đã khéo léo sử dụng đèn hắt tường kết hợp với đèn LED hình tròn, tạo ra hiệu ứng nổi bật và cuốn hút vào ban đêm.

Mẫu thiết kế nhà phố 4x16m 3 tầng với 3 phòng ngủ
Mẫu thiết kế nhà phố 4x16m 3 tầng với 3 phòng ngủ

Thiết kế nhà 4x16 3 tầng 1 tum

Ngôi nhà 4x16 với 2 tầng và 1 tum nổi bật nhờ phong cách thiết kế độc đáo. Các cửa sổ được tạo hình theo kiểu mái vòm, với kích thước lớn và đường cong mềm mại, mang đậm nét cổ điển. Phần tum được bố trí để có thể trồng cây, góp phần tăng cường không gian xanh cho gia đình.

Thiết kế nhà 4x16 3 tầng 1 tum mái bằng
Thiết kế nhà 4x16 3 tầng 1 tum mái bằng
Thiết kế nhà 4x16 3 tầng 1 tum có gara để xe
Thiết kế nhà 4x16 3 tầng 1 tum có gara để xe

Một số kinh nghiệm khi thi công nhà 3 tầng 4x16m 

Để sở hữu những thiết kế nhà ở không chỉ đẹp mắt mà còn đảm bảo an toàn cho các thành viên trong gia đình, các chủ nhà cần lưu ý một số yếu tố quan trọng dưới đây.

  • Chọn phong cách thiết kế: mẫu nhà 3 tầng mặt tiền 4x16m được xem là linh hoạt với nhiều phong cách thiết kế khác nhau. Do đó, các chủ nhà có thể lựa chọn phong cách theo sở thích cá nhân. Giúp các nhà thầu dễ dàng đề xuất các phương án thi công phù hợp để bạn tham khảo.
  • Bố trí không gian sử dụng: Việc sắp xếp các không gian bên trong ngôi nhà cần phải khoa học và hài hòa, nhằm tạo ra một môi trường sống thoải mái cho tất cả các thành viên trong gia đình.
  • Đảm bảo yếu tố phong thủy: Các mẫu nhà 3 tầng 4x16m cũng cần chú trọng đến yếu tố phong thủy để mang lại may mắn và tài lộc cho gia đình. Chủ nhà cần lưu ý đến màu sắc, hướng cửa và cách bố trí các khu vực chức năng sao cho phù hợp với nguyên tắc phong thủy.
  • Lựa chọn đơn vị thi công: Đơn vị thi công đóng vai trò rất quan trọng trong quá trình xây dựng thiết kế nhà ở của bạn. Việc chọn lựa các đơn vị uy tín sẽ giúp giảm thiểu chi phí phát sinh trong quá trình sử dụng. Hơn nữa, các đơn vị thi công chất lượng cao cũng đảm bảo an toàn và độ bền cho công trình.
Một số kinh nghiệm khi thi công nhà phố 3 tầng 4x16m
Một số kinh nghiệm khi thi công nhà phố 3 tầng 4x16m

Đơn vị thiết kế thi công mẫu nhà phố 3 tầng 4x16m uy tín

Với nhiều kinh nghiệm trong lĩnh vực xây dựng và thiết kế, Vinavic đã thực hiện hàng trăm dự án từ nhà ở dân dụng, biệt thự cho đến cải tạo. Chúng tôi tự tin mang đến cho quý khách những công trình không chỉ đáp ứng nhu cầu mà còn vượt xa mong đợi. Đội ngũ chuyên gia của chúng tôi sẽ tư vấn để bạn có thể đưa ra quyết định đầu tư hợp lý, nhằm tạo ra một ngôi nhà hoàn hảo và hài hòa cho gia đình.

Trên đây là những thông tin cơ bản về các mẫu nhà 3 tầng mặt tiền 4x16m đang được nhiều gia đình ưa chuộng hiện nay. Hy vọng rằng những chia sẻ từ Kiến trúc Vinavic sẽ giúp bạn có thêm ý tưởng thiết kế phù hợp và hiệu quả nhất.

Tham khảo thêm

99+ Mẫu thiết kế nhà phố đẹp cuốn hút được lựa chọn nhiều nhất

By https://vinavic.vn/
https://vinavic.vn/

Đánh giá - Bình luận
0 bình luận, đánh giá về 55+ Mẫu nhà 3 tầng mặt tiền 4x16m đẹp đang Hót Rần Rần cuối năm 2024
Nhấn vào đây để đánh giá
Thông tin người gửi
Phong thủy
Chúng tôi có thể hỗ trợ bạn!
1.78852 sec| 2454.523 kb