Chiêm ngưỡng 17 mẫu nhà ống 6mx13m đẹp nổi bật nhất phố
Mẫu nhà ống 6mx13m đẹp đang là giải pháp tối ưu diện tích nhà ở vừa tiết kiệm chi phí vừa đáp ứng không gian sống đầy đủ của các thành viên trong gia đình. Cùng chiêm ngưỡng 17 mẫu nhà ống 6mx13m đẹp nổi bật nhất phố cùng phong cách kiến trúc đa dạng vô cùng hút mắt dưới đây nhé.
Đặc điểm mẫu nhà ống 6mx13m
-
Với kích thước nhỏ gọn, mẫu nhà ống 6mx13m rất phù hợp cho các gia đình có diện tích đất nhỏ, giúp tiết kiệm không gian đất.
-
Được thiết kế thông minh, áp dụng nhiều công nghệ hiện đại, giúp tiết kiệm năng lượng và đem lại sự thoải mái cho cư dân.
-
Gia chủ có thể thoải mái lựa chọn đa dạng phong cách thiết kế: từ hiện đại phóng khoáng đến Tân Cổ Điển cuốn hút,...
-
Đáp ứng công năng đa dạng với đầy đủ tiện nghi, mang đến không gian sống thoải mái, dễ chịu cho gia đình.
Top 17 mẫu nhà ống 6mx13m đẹp nổi bật nhất phố
Mẫu nhà ống 6mx13m hiện đại
Mẫu nhà ống hiện đại dưới đây nổi bật với đường nét hình khối tinh tế cùng màu sơn nhã nhặn chinh phục được những chủ đầu tư khó tính nhất. Ngôi nhà được tô điểm thêm bởi sắc xanh của cây tạo nên không gian tươi mát, yên bình, đầy sức sống.
Mẫu nhà Tân Cổ Điển 6mx13m
Nếu bạn yêu thích phong cách Tân Cổ Điển và muốn tạo nên một không gian sang trọng và lịch sự, mẫu nhà ống 6mx13m mặt tiền 6m là sự lựa chọn hoàn hảo. Với kiến trúc đặc trưng của Pháp, ngôi nhà này sẽ mang đến cho bạn cảm giác ấm cúng và sang trọng.
Mẫu nhà mái lệch hiện đại 6mx13m
Mẫu nhà ống 2 tầng 6x13m có thiết kế mặt tiền nổi bật với kiểu mái lệch độc đáo tạo tâm điểm của sự chú ý. Kiểu mái này đang khá được ưa chuộng thời gian gần đây khi là sự kết hợp giữa mái thái và mái bằng.
Thiết kế nhà mái bằng 6mx13m
Mẫu nhà mái thái 6mx13m
Mẫu thiết kế nhà 3 tầng 6mx13m
Thiết kế nhà 4 tầng 6mx13m
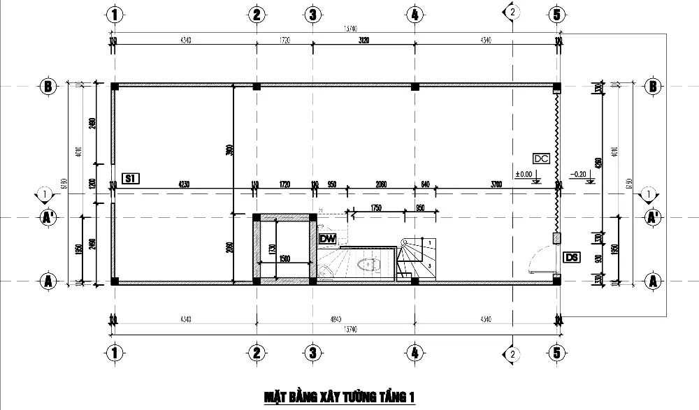
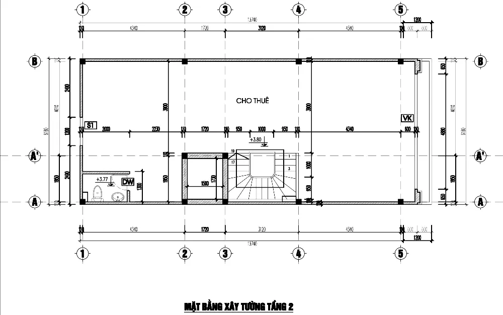
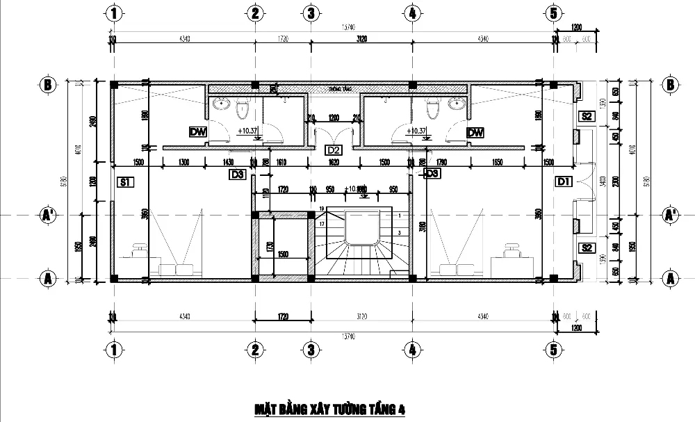
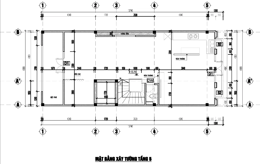
Thiết kế nhà 6mx13m có thang máy
Với diện tích xây dựng khá rộng, ngoài mục đích chủ yếu phục vụ cho sinh hoạt gia đình, chủ nhân còn có kế hoạch cho thuê hai tầng dưới nhằm gia tăng thu nhập.
Đội ngũ kiến trúc sư đã tận dụng một cách khéo léo để đáp ứng mọi nhu cầu của gia chủ, tạo ra một bản thiết kế vô cùng hợp lý. Trong đó, thang máy chở khách được đặt ở giữa nhà, song song với thang bộ, nhằm tối ưu hóa sự thuận tiện trong việc di chuyển. Thiết kế này không chỉ đảm bảo tiện ích mà còn tạo điểm nhấn cho ngôi nhà với sự hiện đại và tinh tế.


.jpg.webp)


Lưu ý khi thiết kế mẫu nhà ống 6mx13m đẹp
Khi bắt đầu thiết kế căn nhà 6mx13m, gia chủ cần xác định rõ mục đích sử dụng của căn nhà, số lượng thành viên trong gia đình và sở thích của mỗi người. Điều này giúp bạn chọn được phong cách thiết kế và sắp xếp nội thất phù hợp, tạo không gian sống thoải mái và tiện nghi.
Lựa chọn phong cách thiết kế phù hợp
Phong cách thiết kế là yếu tố quan trọng đầu tiên cần lưu ý khi thiết kế nhà mặt tiền 6m với diện tích 6x13m. Bạn có thể lựa chọn từ nhiều phong cách khác nhau như hiện đại, Tân Cổ Điển, tối giản, vintage,.. Tuy nhiên, để có được căn nhà đẹp và hài hòa, bạn nên chọn phong cách phù hợp với sở thích và nhu cầu của gia đình.
Nếu bạn thích sự sang trọng và tinh tế, phong cách hiện đại hoặc Tân Cổ Điển là lựa chọn phù hợp. Nếu bạn yêu thích sự đơn giản và gần gũi, phong cách tối giản hoặc vintage là sự lựa chọn tuyệt vời. Ngoài ra, bạn cũng có thể kết hợp các phong cách để tạo nên một không gian độc đáo và đầy cá tính cho căn nhà của mình.
Tận dụng khéo léo những khoảng trống
Mặt bằng nhà ống 6mx13m hạn chế về chiều ngang nên yêu cầu tính toán kỹ các phương án thiết kế nội thất tận dụng mọi khoảng trống trong nhà đảm bảo sự tiện nghi nhưng vẫn tạo cảm giác thông thoáng.
Những góc khuất như gầm cầu thang, góc tường,... có thể kết hợp làm tủ giày hoặc kệ trang trí.
Lựa chọn các vật liệu chất lượng
Việc lựa chọn các vật liệu chất lượng là rất quan trọng trong việc xây dựng nhà 6mx13m. Nên tìm hiểu kỹ về các loại vật liệu và chọn những vật liệu có chất lượng tốt để đảm bảo tính thẩm mỹ và độ bền của ngôi nhà.
Chọn đơn vị thiết kế và thi công uy tín
Trên thị trường hiện nay, có nhiều đơn vị cung cấp dịch vụ xây dựng nhà mặt tiền. Tránh hiện tượng chọn phải nhà thầu không uy tín, chuyên môn kém hay báo giá quá thấp gây ảnh hưởng trầm trọng đến chất lượng công trình. Hãy tìm hiểu kỹ để chọn được đơn vị chuyên nghiệp và đáng tin cậy, giúp bạn sở hữu ngôi nhà đẹp với giá cả phù hợp.
Trên đây là những mẫu nhà ống 6mx13m đẹp nổi bật nhất phố đa dạng công năng tiện ích. Mỗi mẫu nhà mang trong mình những phong cách kiến trúc riêng cùng tiện nghi linh hoạt, vì thế gia chủ cần lựa chọn kỹ càng để sở hữu tổ ấm tương lai của mình một cách trọn vẹn.
Xem thêm:
Mới lạ với 35 kiểu nhà ống phong cách Địa Trung Hải độc lạ
30+ mẫu nhà ống 4 tầng 5x20m đẹp cuốn hút, say mê mọi ánh nhìn
Những mẫu nhà ống 5x17m kết hợp kinh doanh được ưa chuộng nhất hiện nay