Kinh nghiệm xây nhà 2 tầng mái bằng giá rẻ tiết kiệm chi phí

Mẫu nhà đẹp
0
6453
loan - 21/11/2023
Mục lục nội dung
[xem]
  1. 1. Ưu điểm của các mẫu nhà mái bằng 2 tầng giá rẻ
    1. 1.1. Diện tích nhỏ, tiết kiệm đất xây dựng
    2. 1.2. Chi phí xây dựng thấp
    3. 1.3. Thiết kế đơn giản, dễ dàng thi công
    4. 1.4. Khả năng mở rộng và tùy chỉnh dễ dàng
  2. 2. Cần chú ý gì khi xây nhà 2 tầng mái bằng giá rẻ?
  3. 3. Các chi phí bắt buộc khi xây nhà mái bằng 2 tầng giá rẻ
    1. 3.1. Chi phí xây nhà 2 tầng mái bằng trọn gói
    2. 3.2. Chi phí phần thô
    3. 3.3. Chi phí hoàn thiện
    4. 3.4. Chi phí khác
  4. 4. Tư vấn xây nhà 2 tầng mái bằng với chi phí tiết kiệm nhất
    1. 4.1. Nguyên tắc thiết kế kiến trúc
    2. 4.2. Bản vẽ mặt bằng chi tiết nhà 2 tầng mái bằng
    3. 4.3. Kinh nghiệm thiết kế nội thất nhà mái bằng giá rẻ
  5. 5. Giới thiệu các mẫu nhà 2 tầng mái bằng giá rẻ 2023 đẹp và tiện nghi
    1. 5.1. Mẫu nhà vườn 2 tầng mái bằng giá rẻ
    2. 5.2. Mẫu nhà phố 2 tầng mái bằng giá rẻ
    3. 5.3. Thiết kế nhà 2 tầng 3 phòng ngủ mái bằng giá rẻ
    4. 5.4. Thiết kế nhà 2 tầng 4 phòng ngủ mái bằng giá rẻ
    5. 5.5. Nhà 2 tầng 2 mặt tiền mái bằng giá rẻ
    6. 5.6. Nhà 2 tầng 1 tum mái bằng giá rẻ
    7. 5.7. Nhà vuông 2 tầng mái bằng giá rẻ
    8. 5.8. Nhà chữ L 2 tầng mái bằng giá rẻ
    9. 5.9. Mẫu nhà ống 2 tầng mái bằng giá rẻ 5x20m
    10. 5.10. Mẫu nhà ống 2 tầng 1 tum mái bằng giá rẻ 6x14
    11. 5.11. Mẫu nhà ống 2 tầng mái bằng giá rẻ có gác lửng
    12. 5.12. Thiết kế nhà 2 tầng mái bằng giá rẻ mặt tiền 7m
    13. 5.13. Thiết kế nhà 2 tầng mái bằng giá rẻ ở nông thôn 80m2
    14. 5.14. Thiết kế nhà 2 tầng chữ L 100m2 mái bằng giá rẻ
  6. 6. Những điều cần lưu ý giúp tiết kiệm chi phí xây nhà 2 tầng mái bằng giá rẻ

Để xây dựng ngôi nhà 2 tầng mái bằng giá rẻ tiết kiệm, sự đơn giản và tối ưu chi phí là chìa khóa. Điều đó bao gồm: thiết kế kiểu dáng như chữ L hay nhà ống, với diện tích xây dựng khoảng 80-100m2, sử dụng vật liệu giá rẻ như gạch loại 2 và sơn nước.

Bài viết này cung cấp hướng dẫn chi tiết về thiết kế kiến trúc, mặt bằng và nội thất, nhằm giúp bạn hiểu rõ cách tối ưu hóa không gian sống với chi phí tiết kiệm nhất cho nhà mái bằng 2 tầng đẹp.

Mẫu nhà 2 tầng giá rẻ mái bằng và cách xây tiết kiệm chi phí
Mẫu nhà 2 tầng giá rẻ mái bằng và cách xây tiết kiệm chi phí

Ưu điểm của các mẫu nhà mái bằng 2 tầng giá rẻ

Nhà 2 tầng mái bằng giá rẻ không chỉ là lựa chọn hợp lý mà còn mang đến nhiều ưu điểm khác biệt, đặc biệt là khi xây nhà trên diện tích đất hạn chế hay với kinh phí eo hẹp. Hãy cùng tìm hiểu về 4 ưu điểm lớn của mẫu nhà đẹp này:

Diện tích nhỏ, tiết kiệm đất xây dựng

Nhà 2 tầng giá rẻ mái bằng thường có diện tích nhỏ hơn so với các loại nhà khác, nhưng cách bố trí không gian thông minh tạo nên một không gian sống tiện ích. Tầng trệt thường được sử dụng cho các không gian chung như phòng khách, bếp và phòng ăn. Còn tầng trên thường được dùng cho các phòng ngủ, phòng tắm và phòng thờ. Điều này giúp tận dụng mỗi mét vuông đất và tạo nên không gian sống thoải mái.

Xem thêm: Chiêm ngưỡng 35 mẫu nhà cấp 4 hiện đại mái bằng đẹp nhất

Diện tích nhỏ, tiết kiệm đất xây dựng
Diện tích nhỏ, tiết kiệm đất xây dựng

Với diện tích nhỏ 40 - 100m2, mẫu nhà này giúp gia chủ tiết kiệm được diện tích đất xây dựng, đặc biệt phù hợp với những gia đình có diện tích đất hạn chế, nhất là ở các thành phố lớn.

Chi phí xây dựng thấp

Thiết kế nhà 2 tầng mái bằng thường có diện tích xây dựng nhỏ hơn so với các mẫu nhà lớn khác như nhà 3 tầng hoặc biệt thự 2 tầng cao cấp. Điều này khiến chi phí xây dựng cũng thấp hơn.

Chi phí xây dựng thấp
Chi phí xây dựng thấp

Ngoài ra, mẫu nhà này thường sử dụng các vật liệu xây dựng phổ biến, giá cả phải chăng như gạch, bê tông, sắt thép,... Nội thất của những căn nhà 2 tầng giá rẻ thường có thiết kế đơn giản và sử dụng các vật liệu phổ biến như gỗ công nghiệp để giảm thiểu chi phí. Do đó, chi phí xây dựng nhà 2 tầng mái bằng giá rẻ thường thấp hơn so với các mẫu nhà khác.

Thiết kế đơn giản, dễ dàng thi công

Mặt bằng mẫu thiết kế nhà 2 tầng giá rẻ mái bằng đẹp được sắp xếp với sự tối ưu hóa không gian. Ứng dụng thủ pháp không gian mở hạn chế các vách tường ngăn, sử dụng nhiều cửa sổ, cửa kính ngoại thất để tạo ra không gian thoáng đãng và tận dụng tối đa ánh sáng tự nhiên.

Thiết kế đơn giản, dễ dàng thi công
Thiết kế đơn giản, dễ dàng thi công

Các không gian phòng khách, phòng ăn và bếp có thể được kết hợp thành một không gian chung, tạo sự thuận tiện trong di chuyển cũng như mang đến cảm giác rộng rãi hơn. Các không gian riêng tư như phòng ngủ, nhà vệ sinh thường được bố trí ở tầng trên, tạo nên sự tách biệt và thoải mái.

Với thiết kế đơn giản, mẫu nhà này dễ dàng thi công, giúp tiết kiệm thời gian và chi phí.

Khả năng mở rộng và tùy chỉnh dễ dàng

Với thiết kế nhà mái bằng 2 tầng đơn giản giá rẻ, nên trong tương lai gia chủ có thể có khả năng mở rộng như lên thêm tầng nếu cần, để đáp ứng nhu cầu của gia đình khi có thêm thành viên. Sự linh hoạt này cho phép gia chủ mở rộng không gian sinh hoạt mà không cần phải mua thêm đất hoặc cơi nới sàn tầng trệt.

Cần chú ý gì khi xây nhà 2 tầng mái bằng giá rẻ?

Với chi phí 200 - 600 triệu, gia chủ có thể xây dựng được một ngôi nhà 2 tầng mái bằng giá rẻ và đẹp, đáp ứng nhu cầu sinh hoạt của gia đình. Tuy nhiên, hiện nay, chi phí nhà đất, giá vật liệu xây dựng hay tiền công thợ,... đều đang trên đà lạm phát nhanh chóng mặt. Bởi vậy, cần phải hoạch toán được cụ thể tất cả các khoản chi phí từ xây thô đến thi công và hoàn thiện nội thất để bạn có thể kiểm soát được nhiều dòng tiền, tránh được những vấn đề thường gặp do thiếu hụt chi phí.

Mẫu nhà 2 tầng mái bằng có gara với chi phí tiết kiệm
Mẫu nhà 2 tầng mái bằng có gara với chi phí tiết kiệm

Nếu chỉ có ngân sách dưới 600 triệu thì bạn chỉ có thể xây nhà, còn giá mảnh đất cần được tính riêng. Bởi vậy, gia chủ chưa mua đứt được đất xây nhà hoặc không có sẵn nên cân nhắc kỹ chuyện có nên xây nhà mới hay không.

Dưới đây Kiến trúc Vinavic sẽ tư vấn giúp bạn các khoản chi phí cần có để xây nhà 2 tầng giá rẻ mái bằng. Từ đó, giúp bạn có cơ sở cân đối tài chính hợp lý và có lời nhất cho ngôi nhà của mình.

Các chi phí bắt buộc khi xây nhà mái bằng 2 tầng giá rẻ

Để xây dựng một ngôi nhà giá rẻ 2 tầng mái bằng, gia chủ cần lưu ý các chi phí bắt buộc sau:

Chi phí xây nhà 2 tầng mái bằng trọn gói

Công ty xây dựng sẽ thực hiện mọi công việc từ xin giấy phép, thiết kế bản vẽ đến xây thô và hoàn thiện nội thất. Gia chủ chỉ cần sử dụng nhà sau khi xây dựng xong.

  • Đơn giá xây nhà trọn gói dùng vật tư trung bình: 5.000.000đ/ m2.

  • Đơn giá xây nhà nhanh trọn gói dùng vật tư khá: 5.500.000đ/ m2.

  • Đơn giá xây nhà nhanh trọn gói dùng vật tư tốt: 6.000.000đ/ m2.

Mẫu nhà phố 2 tầng mái bằng hiện đại giá rẻ 10x10
Mẫu nhà phố 2 tầng mái bằng hiện đại giá rẻ 10x10

Chi phí phần thô

Chi phí phần thô là chi phí dành cho việc xây dựng phần khung của ngôi nhà, bao gồm móng, cột, dầm, sàn, mái,... Đây là phần chi phí chiếm tỷ lệ lớn nhất trong tổng chi phí xây dựng nhà. Chi phí phần thô nhà mái bằng giá rẻ 2 tầng thường được tính theo đơn giá m2, dao động từ 4.600.000 - 6.000.000 đồng/m2, tùy thuộc vào chất lượng vật liệu và tay nghề thi công.

Hoàn thiện nhà ống 2 tầng mái bằng giá rẻ ốp đá mặt tường
Hoàn thiện nhà ống 2 tầng mái bằng giá rẻ ốp đá mặt tường

Trong đó:

  • Đơn giá nhân công xây dựng nhà 2 tầng: 1,4 - 1,8 triệu/m2

  • Chi phí xây nhà 2 tầng mái bằng giá rẻ phần thô + nhân công hoàn thiện: 3,2 - 3,5 triệu/m2

Ví dụ, với diện tích nhà 2 tầng mái bằng 80m2, chi phí phần thô sẽ dao động từ 736.000.000 - 960.000.000 đồng.

Các khoản chi phí xây thô chủ yếu:

  • Ống nước: 1.224.000 đồng

  • Bi hầm cầu: 1.250.000 đồng

  • Sắt làm xà gồ: 1.500.000 đồng

  • Đinh 5 và thép buộc: 130.000 đồng

  • Xi măng Nghi Sơn PCB40: 5.740.000 đồng

  • Gạch loại 2: 12.000.000 đồng

  • Sắt phi 14 và phi 6: 3.402.000 đồng

  • Đá 1 x 2: 420.000 đồng

  • Đá chẻ: 1.200.000 đồng

  • Công trét bột: 300.000 đồng

  • Cát xây nhà: 4.300.000 đồng

  • Nhôm kính: 6.000.000 đồng

Chi phí hoàn thiện

Là chi phí cho việc trang trí, hoàn thiện ngôi nhà 2 tầng mái bằng đẹp, bao gồm sơn nước, gạch ốp lát, cửa, nội thất,... Đơn giá hoàn thiện 1m2 xây nhà khoảng 2.000.000 - 4.000.000 đồng/m2. Chi phí này có thể tăng hoặc giảm dựa vào chất lượng vật liệu và phong cách thiết kế.

Mẫu nhà sân vườn 2 tầng vuông 8x8 mái bằng giá rẻ ở nông thôn
Mẫu nhà sân vườn 2 tầng vuông 8x8 mái bằng giá rẻ ở nông thôn

Một số khoản chi phí hoàn thiện chính:

  • Vật tư sơn: 1.600.000 đồng

  • Cửa (cửa chính, cửa sổ, thông phòng, WC): 5.000.000 đồng

  • La phong thạch cao: 5.400.000 đồng

  • Rèm cửa: 2.600.000 đồng

  • Đá ốp bếp: 1.400.000 đồng

  • Tôn màu: 4.373.000 đồng

  • Gạch men + bồn cầu và bồn rửa chén: 10.025.000 đồng

  • Bột chà ron, phụ kiện bắt nước máy: 865.000 đồng 

  • Thiết bị vệ sinh và vòi nước: 19.000.000 đồng

  • Chổi quét vôi + keo chống thấm bên ngoài: 100.000 đồng

  • Hệ thống đèn chiếu sáng: 5.000.000 đồng

  • Tủ bếp: 30.000.000 đồng

  • Giường ngủ: 15.000.000 đồng

  • Tủ quần áo: 25.000.000 đồng

Chi phí khác

Ngoài các chi phí bắt buộc trên, gia chủ cần tính thêm các chi phí khác như:

  • Chi phí xin phép xây dựng, phong bì để hoàn thiện thi công nhà: 1.000.000đ

  • Chi phí đo đạc, khảo sát địa chất: 1.000.000 - 2.000.000 đồng 

  • Chi phí vận chuyển vật liệu: 10.000 - 20.000 đồng/m3

  • Chi phí ăn uống, sinh hoạt của gia chủ, chi phí coi thầy cất nhà và ăn nhậu thợ thầy, đồ cúng: 5.000.000 - 10.000.000 đồng

  • Tiền điện: 1.500.000 đồng

Nhà 2 tầng mái bằng đơn giản màu trắng có gạch bông gió và cửa gỗ
Nhà 2 tầng mái bằng đơn giản màu trắng có gạch bông gió và cửa gỗ

Lưu ý rằng đây chỉ là ước lượng và chi phí thực tế có thể thay đổi tùy thuộc vào nhiều yếu tố khác nhau. Việc tham khảo ý kiến của các chuyên gia xây dựng và dựa vào bảng báo giá cụ thể từ nhà thầu là quan trọng để có cái nhìn chính xác hơn về chi phí xây dựng nhà 2 tầng giá rẻ mái bằng.

Tư vấn xây nhà 2 tầng mái bằng với chi phí tiết kiệm nhất

Đối với việc xây nhà 2 tầng mái bằng giá rẻ, nguyên tắc kiến trúc chủ yếu là giữ thiết kế đơn giản và hiệu quả. Mẫu nhà lựa chọn như chữ L hoặc nhà ống mang lại sự tiện lợi và chi phí xây dựng phù hợp, với diện tích khoảng 80-100m2. Bản vẽ mặt bằng chi tiết từng tầng với các khu vực mượn không gian lẫn nhau. Đồng thời nên sử dụng vật liệu nội thất giá rẻ hoặc mua đồ nội thất cũ giúp tiết kiệm chi phí mà vẫn đảm bảo không gian sống thoải mái và hiện đại.

Nguyên tắc thiết kế kiến trúc

  • Thiết kế đơn giản, không cầu kỳ: Đây là yếu tố quan trọng nhất để tiết kiệm chi phí xây dựng. Một ngôi nhà 2 tầng mái bằng có thiết kế đơn giản sẽ sử dụng ít vật liệu hơn, đồng thời thi công cũng dễ dàng hơn.

  • Diện tích xây dựng: Để tiết kiệm chi phí, bạn nên xây nhà có diện tích vừa phải, khoảng 80 - 100m2.

  • Mẫu nhà: Bạn nên lựa chọn mẫu nhà có kiến trúc đơn giản, không cầu kỳ. Một số mẫu nhà phổ biến có thể kể đến như nhà chữ L, nhà ống,...

Thiết kế kiến trúc nhà 2 tầng giá rẻ mái bằng đơn giản
Thiết kế kiến trúc nhà 2 tầng giá rẻ mái bằng đơn giản
  • Sử dụng vật liệu xây dựng giá rẻ: Bạn nên cân nhắc sử dụng các vật liệu xây dựng có giá thành rẻ nhưng vẫn đảm bảo chất lượng. Một số vật liệu giá rẻ phổ biến có thể kể đến như gạch nung, sắt thép cuộn, xi măng,...

  • Lựa chọn phong cách kiến trúc phù hợp: Một số phong cách kiến trúc đơn giản, tiết kiệm chi phí có thể kể đến như phong cách hiện đại, phong cách tối giản,...

  • Thiết kế tiết kiệm năng lượng: Sử dụng cửa kính lớn và cửa sổ để tận dụng ánh sáng tự nhiên, giúp giảm cần ánh sáng điện.

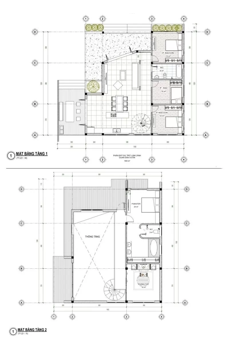
Bản vẽ mặt bằng chi tiết nhà 2 tầng mái bằng

Mặt bằng nên được thiết kế sao cho không gian trong nhà mở và linh hoạt, vừa đảm bảo sự riêng tư mà vẫn có kết nối với môi trường xung quanh.

Tham khảo phương án sắp xếp mặt bằng công năng cho ngôi nhà 2 tầng mái bằng giá rẻ 80-100m2 sau đây, từ đó có thể cân nhắc bố trí ngôi nhà của bạn sao cho hợp lý, tối ưu diện tích:

Tầng 1:

  • Sân để xe: 15m2

  • Phòng khách và phòng bếp: 30m2 (có thể phân chia 18m2 cho phòng khách và 12m2 cho phòng bếp)

  • 1 phòng ngủ: 12m2

  • 1 nhà vệ sinh chung: 5m2

Phối cảnh mặt bằng nhà 2 tầng giá rẻ
Phối cảnh mặt bằng nhà 2 tầng giá rẻ

Tầng 2:

  • Phòng ngủ 1: 15m2

  • Phòng ngủ 2: 15m2

  • Phòng ngủ 3 hoặc phòng thờ: 12m2

  • Nhà vệ sinh chung: 6m2 (đảm bảo diện tích đủ cho WC và vòi sen)

Bản vẽ thiết kế mặt bằng công năng nhà ống 2 tầng mái bằng giá rẻ
Bản vẽ thiết kế mặt bằng công năng nhà ống 2 tầng mái bằng giá rẻ

Mái bằng:

  • Không gian mái bằng được tính là diện tích xây dựng, không gian này có thể được sử dụng cho hoạt động như trồng cây, làm sân thượng, hoặc đặt hệ thống bồn chứa nước.

Kinh nghiệm thiết kế nội thất nhà mái bằng giá rẻ

  • Lựa chọn vật liệu tiết kiệm: Nội thất có thể làm từ vật liệu tái chế để giảm chi phí. Sử dụng vật liệu xây dựng giá rẻ như gạch loại 2, sơn nước, gỗ công nghiệp, gạch ốp lát giá rẻ,... nhưng vẫn đảm bảo chất lượng.

Thiết kế nội thất thông minh và gọn nhẹ
Thiết kế nội thất thông minh và gọn nhẹ
  • Mua sắm đồ nội thất phù hợp và thông minh: Bạn nên lựa chọn đồ nội thất phù hợp với phong cách kiến trúc của ngôi nhà. Tránh lựa chọn đồ nội thất quá cầu kỳ, rườm rà. Một phương án tiết kiệm chi phí được rất nhiều người lựa chọn là săn nội thất cũ hoặc mua từ các cửa hàng giá rẻ.

Giới thiệu các mẫu nhà 2 tầng mái bằng giá rẻ 2023 đẹp và tiện nghi

Mẫu nhà vườn 2 tầng mái bằng giá rẻ

Những căn biệt thự 2 tầng mái bằng có sân vườn thường được thiết kế theo lối kiến trúc hiện đại, gọn gàng. Hệ mái bằng mang đến vẻ mạnh mẽ, phóng khoáng, tạo ấn tượng sâu đậm cho bất kỳ ai nhìn thấy ngôi nhà. Các kỹ sư đã tận dụng hệ vật liệu tự nhiên ở địa phương như gỗ, gạch, đá,... để ốp mặt tiền, tiết kiệm chi phí vận chuyển. Sân vườn xung quanh gồm cây ăn quả cho bóng mát quang đãng.

Mẫu nhà vườn 2 tầng mái bằng giá rẻ
Mẫu nhà vườn 2 tầng mái bằng giá rẻ

Mẫu nhà phố 2 tầng mái bằng giá rẻ

Kiểu dáng nhà phố 2 tầng mái bằng có tính ứng dụng cao, phù hợp cho các diện tích đất nhỏ. Ưu điểm lớn nhất của thiết kế này chính là khả năng tối ưu diện tích triệt để. Gia chủ để một khoảng sân trước và sân sau để trồng cây xanh, giúp không khí trong nhà thoáng mát hơn.

Mẫu nhà phố 2 tầng mái bằng giá rẻ
Mẫu nhà phố 2 tầng mái bằng giá rẻ

Thiết kế nhà 2 tầng 3 phòng ngủ mái bằng giá rẻ

Ngôi nhà được sơn màu trắng với các cửa chớp màu đen. Mặt tiền ốp gạch giả đá tự nhiên và gạch thẻ giả gỗ. Phương án thiết kế căn nhà tạo điều kiện cho lưu thông không khí 2 chiều hiệu quả và sân vườn rộng mang đến sự thoải mái cho tất cả thành viên trong gia đình. Phòng ngủ được bố trí cho 5 thành viên trong gia đình, bao gồm 1 phòng ngủ master cho cha mẹ và 2 phòng ngủ khép kín cho các con.

Thiết kế nhà 2 tầng 3 phòng ngủ mái bằng giá rẻ
Thiết kế nhà 2 tầng 3 phòng ngủ mái bằng giá rẻ

Thiết kế nhà 2 tầng 4 phòng ngủ mái bằng giá rẻ

Nhà Cua nằm trên một khu đất rộng khoảng 450m2, tuy nhiên diện tích xây dựng chỉ chiếm 180m2, phần còn lại được dành cho khu vườn xanh mát. Thiết kế của ngôi nhà là hình khối đơn giản, mở rộng tối đa để hòa mình vào khung cảnh thiên nhiên xung quanh. Nội thất được bài trí theo phong cách Wabi-sabi, tôn vinh sự đơn giản và mộc mạc.

Công năng nhà gồm 2 tầng và 4 phòng ngủ, 1 phòng khách, 1 phòng bếp cùng hành lang thông tầng, mang tới cuộc sống thoải mái và thoáng đãng cho gia đình đông người cùng chung sống.

Thiết kế nhà 2 tầng 4 phòng ngủ mái bằng giá rẻ
Thiết kế nhà 2 tầng 4 phòng ngủ mái bằng giá rẻ

Nhà 2 tầng 2 mặt tiền mái bằng giá rẻ

Mẫu nhà 1 trệt 1 lầu 2 mặt tiền giá rẻ để lại ấn tượng mạnh mẽ với bản thiết kế ngoại thất sang trọng và lôi cuốn. Bề mặt phía trước tầng trệt được trang trí bằng đá tự nhiên, mang đến họa tiết đẹp mắt. Ngoài ra, hệ thống mái bằng được thiết kế linh hoạt cùng với các khối hình vuông chắc chắn, tạo nên một không gian thẩm mỹ cho căn nhà.

Nhà 2 tầng 2 mặt tiền mái bằng giá rẻ
Nhà 2 tầng 2 mặt tiền mái bằng giá rẻ

Nhà 2 tầng 1 tum mái bằng giá rẻ

Mẫu nhà giá rẻ 2 tầng 1 tum mái bằng là sự kết hợp hoàn hảo giữa phong cách hiện đại và tối giản. Công trình được thiết kế theo phong cách hiện đại, ngoại thất sử dụng hình khối gọn gàng. Màu sắc chủ đạo là trắng và xám, tạo nên vẻ đẹp tinh tế và thanh lịch. Với cách chọn lọc và tối giản trong từng chi tiết, ngôi nhà mang đến không gian sống thoải mái và thư giãn. 

Nhà 2 tầng 1 tum mái bằng giá rẻ
Nhà 2 tầng 1 tum mái bằng giá rẻ

Nhà vuông 2 tầng mái bằng giá rẻ

Mẫu nhà vuông mái bằng 2 tầng giá rẻ được thiết kế theo kiểu hiện đại và tối giản sử dụng vật liệu tự nhiên, gam màu trắng chủ đạo, kết hợp cây xanh mang lại cảm giác cân bằng và thư thái cho không gian sống. Khu vườn xanh mát với hồ cá và hoa tạo nên không gian bình yên, tĩnh lặng. 4 phòng ngủ đều có cửa hướng ra sân vườn, là nơi lý tưởng để tận hưởng cuộc sống và kết nối với thiên nhiên.

Nhà vuông 2 tầng mái bằng giá rẻ
Nhà vuông 2 tầng mái bằng giá rẻ

Nhà chữ L 2 tầng mái bằng giá rẻ

Biệt thự 2 tầng chữ L mái bằng có không gian sang trọng với sắc nâu trầm ấm. Gam màu này tượng trưng cho sự chân thành, truyền thống, đơn giản và thoải mái cho gia chủ. Tầng 1 biệt thự gồm phòng khách, bếp ăn, 1 phòng ngủ, phòng xem phim, 1 nhà vệ sinh và khu vực thư giãn. Tầng 2 được thiết kế với 3 phòng ngủ, trong đó có một phòng ngủ Master rộng lớn, sân thượng, phòng thờ, phòng đọc sách, sân giặt phơi, phòng kho và ban công.

Nhà chữ L 2 tầng mái bằng giá rẻ
Nhà chữ L 2 tầng mái bằng giá rẻ

Mẫu nhà ống 2 tầng mái bằng giá rẻ 5x20m

Kiến trúc ngôi nhà mang phong cách hiện đại, trẻ trung từ mặt tiền đến nội thất bên trong. Mặt tiền ốp đá và hệ thống cửa cánh gỗ có tạo hình khác biệt, phá cách so với những mẫu nhà ống thông thường. Không gian bên trong được thiết kế theo tone màu tươi sáng mang lại cảm giác rộng rãi, thoáng đãng. 

Mẫu nhà ống 2 tầng mái bằng giá rẻ 5x20m
Mẫu nhà ống 2 tầng mái bằng giá rẻ 5x20m

Mẫu nhà ống 2 tầng 1 tum mái bằng giá rẻ 6x14

Biệt thự 2 tầng hiện đại với 1 tum kích thước 6x14m là xu hướng thiết kế được nhiều người trẻ yêu thích bởi sự tự do và phóng khoáng. Ngoại thất căn nhà sử dụng cửa kính lớn và các đường nét tối giản, các mảng xanh được kết hợp khéo léo, mang lại cảm giác sống động và gần gũi với thiên nhiên.

Mẫu nhà ống 2 tầng 1 tum mái bằng giá rẻ 6x14
Mẫu nhà ống 2 tầng 1 tum mái bằng giá rẻ 6x14

Mẫu nhà ống 2 tầng mái bằng giá rẻ có gác lửng

Căn nhà 2 tầng mái bằng đẹp dạng ống là lựa chọn cũng được rất nhiều gia đình lựa chọn hiện nay. Đặc biệt là với những gia đình có diện tích đất hạn chế thì mẫu nhà ống 2 tầng giá rẻ sẽ là lựa chọn vô cùng hoàn hảo, giúp bạn tối ưu không gian sử dụng mà vẫn đảm bảo đáp ứng đầy đủ mọi công năng.

Không gian quanh nhà được bao phủ bởi hệ sân vườn thoáng đãng, bố trí các loại cây cao tạo cảm giác gần gũi với thiên nhiên. 

Mẫu nhà ống 2 tầng mái bằng giá rẻ có gác lửng
Mẫu nhà ống 2 tầng mái bằng giá rẻ có gác lửng

Thiết kế nhà 2 tầng mái bằng giá rẻ mặt tiền 7m

Không gian cảnh quan đặc biệt phong phú, bao gồm khu vườn riêng cùng ngoại thất được trang trí bằng 2 màu chủ đạo trắng và nâu. Bên cạnh đó, để làm giảm bức xạ nhiệt khi tia nắng chiếu trực tiếp vào nhà, các kiến trúc sư đã sử dụng linh hoạt những vật liệu có khả năng hấp thụ nhiệt tốt như: gỗ, bê tông, thanh lam, kính cường lực. 

Thiết kế nhà 2 tầng mái bằng giá rẻ mặt tiền 7m
Thiết kế nhà 2 tầng mái bằng giá rẻ mặt tiền 7m

Thiết kế nhà 2 tầng mái bằng giá rẻ ở nông thôn 80m2

Với thiết kế cân xứng cùng hệ mái bằng đã giúp căn nhà phân chia linh hoạt trong việc bố trí các phòng chức năng. Mẫu nhà này có diện tích 80m2 với 3 phòng ngủ phù hợp với những gia đình có nhiều thành viên sinh sống. Theo đó mặt bằng gồm phòng ngủ, phòng khách, bếp ăn và các khu vực sinh hoạt khác. 

Thiết kế nhà 2 tầng mái bằng giá rẻ ở nông thôn 80m2
Thiết kế nhà 2 tầng mái bằng giá rẻ ở nông thôn 80m2

Thiết kế nhà 2 tầng chữ L 100m2 mái bằng giá rẻ

Những căn nhà chữ L được rất nhiều gia chủ yêu thích bởi hình dáng ngôi nhà dễ dàng bố trí mặt bằng công năng các phòng. Kiểu nhà mái bằng cũng dễ dàng kết hợp kiến trúc hiện đại mang đến không gian ngoại thất đẹp, tối giản nhưng không kém phần thu hút. 

Thiết kế nhà 2 tầng chữ L 100m2 mái bằng giá rẻ
Thiết kế nhà 2 tầng chữ L 100m2 mái bằng giá rẻ

Những điều cần lưu ý giúp tiết kiệm chi phí xây nhà 2 tầng mái bằng giá rẻ

Để tiết kiệm chi phí xây nhà 2 tầng mái bằng giá rẻ, có một số lưu ý quan trọng cần xem xét. Trước hết, việc tham khảo kinh nghiệm và ý kiến từ nhiều nguồn tư liệu là quan trọng để chuẩn bị kỹ lưỡng từ ý tưởng đến ngân sách. Cần tìm hiểu về quy định và thủ tục cấp phép xây dựng để tránh phạt hành chính.

Về vị trí đất, chọn mảnh đất phù hợp có thể giảm chi phí gia cố móng và tránh vấn đề vận chuyển vật liệu. Đồng thời, lựa chọn đơn vị thiết kế và nhà thầu có uy tín để đảm bảo chất lượng và minh bạch trong bảng giá xây dựng.

chọn mảnh đất phù hợp có thể giảm chi phí gia cố móng
Chọn mảnh đất phù hợp có thể giảm chi phí gia cố móng

Cân nhắc về diện tích sử dụng phù hợp với nhu cầu gia đình và chọn mẫu nhà tiết kiệm chi phí. Nên chú ý đến thời điểm khởi công để tránh mùa mưa, và lựa chọn vật tư xây thô và hoàn thiện một cách cân nhắc để đảm bảo an toàn và tiết kiệm.

Cuối cùng, việc lập kế hoạch chi tiêu và chú ý đến thông thoáng, ánh sáng tự nhiên, cũng như chống thấm cho ngôi nhà sẽ giúp bạn tiết kiệm chi phí và có ngôi nhà 2 tầng mái bằng giá rẻ mơ ước.

Xem thêm: Hỏi: xây nhà mái bằng 100m2 hết bao nhiêu tiền?

By https://vinavic.vn/
https://vinavic.vn/

Đánh giá - Bình luận
0 bình luận, đánh giá về Kinh nghiệm xây nhà 2 tầng mái bằng giá rẻ tiết kiệm chi phí
Nhấn vào đây để đánh giá
Thông tin người gửi
Phong thủy
Chúng tôi có thể hỗ trợ bạn!
3.37883 sec| 2549.336 kb