BST 55+ Thiết kế nhà cấp 4 60m2 đẹp 2-3-4 phòng ngủ tiện nghi

Mẫu nhà đẹp
0
2287
Thanh Hạ - 09/08/2024

Hiện nay các gia đình vô cùng ưa chuộng những mẫu nhà cấp 4 nhỏ gọn mà vẫn đáp ứng đầy đủ công năng sinh hoạt. Cùng Vinavic khám phá BST 55+ Thiết kế nhà cấp 4 60m2 đẹp 2-3-4 phòng ngủ tiện nghi giúp tiết kiệm chi phí, phù hợp với đa số các gia đình.

BST 55+ Thiết kế nhà cấp 4 60m2 đẹp 2-3-4 phòng ngủ tiện nghi
BST 55+ Thiết kế nhà cấp 4 60m2 đẹp 2-3-4 phòng ngủ tiện nghi

Lý do những mẫu nhà cấp 4 60m2 đẹp 2-3-4 phòng ngủ được ưa thích?

  • Với số lượng 2-3-4 phòng ngủ, mẫu nhà cấp 4 60m2 này có thể đáp ứng đủ nhu cầu sinh hoạt của những hộ gia đình cặp vợ chồng mới cưới đến gia đình đông thành viên 2-3 thế hệ chung sống.

  • Đa dạng thiết kế với nhiều phong cách khác nhau, từ kiến trúc hiện đại, cổ điển cho đến tân cổ điển. Nếu biết cách bài trí nội thất, mẫu nhà cấp 4 60m2 có thể mang đến vẻ đẹp không kém cạnh nhà tầng, biệt thự. 

  • Chi phí thi công mẫu nhà 60m2 cấp 4 thấp hơn những kiểu nhà khác vì kết cấu chỉ có 1 tầng, tiết kiệm chi phí nguyên vật liệu, chi phí thiết kế và trang trí nội thất. 

  • Nhà cấp 4 2-3-4 phòng ngủ mang tới không gian sinh hoạt rộng rãi, với diện tích 60m2 có thể đáp ứng được đầy đủ nhu cầu sinh hoạt cho đa số gia đình.

Thiết kế nhà cấp 4 60m2 đẹp giúp tiết kiệm thời gian chi phí xây dựng
Thiết kế nhà cấp 4 60m2 đẹp giúp tiết kiệm thời gian chi phí xây dựng

55+ Thiết kế nhà cấp 4 60m2 đẹp 2-3-4 phòng ngủ tiện nghi

Thiết kế nhà cấp 4 60m2 2 phòng ngủ

Đối với các hộ gia đình sở hữu diện tích xây dựng nhỏ, ở các khu vực đô thị, việc thiết kế nhà cấp 4 60m2 với 2 phòng ngủ và gara ô tô là một giải pháp hoàn hảo để tiết kiệm thời gian và chi phí.

Có thể bố trí thêm cây xanh ở khoảng sân phía trước. Điều này không chỉ đáp ứng nhu cầu để xe một cách tiện lợi mà còn mang lại không gian xanh mát cho mẫu nhà cấp 4.

Thiết kế nhà cấp 4 60m2 2 phòng ngủ đẹp nhã nhặn
Thiết kế nhà cấp 4 60m2 2 phòng ngủ đẹp nhã nhặn

Nhà cấp 4 60m2 3 phòng ngủ

Hệ thống cửa chính ra vào được làm bằng gỗ tạo sự trang trọng. Khoảng không gian bên cạnh để đỗ xe ô tô vô cùng thuận tiện. 

Mẫu nhà 3 phòng ngủ cấp 4 60m2 này là sự lựa chọn phù hợp cho những người con chọn làm món quà để báo hiếu bố mẹ. 

Mẫu nhà cấp 4 60m2 3 phòng ngủ tiện nghi
Mẫu nhà cấp 4 60m2 3 phòng ngủ tiện nghi

Thiết kế nhà cấp 4 60m2 4 phòng ngủ

Mẫu thiết kế nhà cấp 4 60m2 4 phòng ngủ theo phong cách hiện đại mang đến vẻ đẹp mạnh mẽ, mới lạ và thu hút mọi ánh nhìn. Không quá nhiều chi tiết trang trí phức tạp, điểm nhấn của căn nhà là sự cân đối từ các khối hình học, kết hợp với cửa gỗ tạo không gian thoải mái và dễ chịu bên trong.

Công năng 4 phòng ngủ rộng rãi đáp ứng trọn vẹn nhu cầu sinh hoạt gia đình 2-3 thế hệ.

Thiết kế nhà cấp 4 4 phòng ngủ trẻ trung hiện đại
Thiết kế nhà cấp 4 4 phòng ngủ trẻ trung hiện đại

Thiết kế nhà cấp 4 60m2 1 phòng ngủ

Mẫu nhà 60m2 cấp 4 với 1 phòng ngủ này được các cặp vợ chồng trẻ mới cưới rất yêu thích. Ngoại thất bắt mắt, trẻ trung cùng không gian thoáng đãng của hệ cửa kính tạo nên tổng thể cuốn hút.

Nhà cấp 4 60m2 1 phòng ngủ nhỏ gọn
Nhà cấp 4 60m2 1 phòng ngủ nhỏ gọn

Mẫu nhà cấp 4 60m2 mái nhật

Không khó hiểu khi những mẫu nhà mái nhật được lựa chọn phổ biến tại Việt Nam. Bởi khả năng chống thấm tốt, phù hợp với khí hậu nhiệt đới gió mùa. Bên cạnh đó, nhà diện tích 60m2 cấp 4 này có sân vườn cực rộng, thoải mái trang trí tiểu cảnh phù hợp với sở thích gia chủ.

Mẫu nhà cấp 4 60m2 mái nhật đẹp mắt
Mẫu nhà cấp 4 60m2 mái nhật đẹp mắt

Mẫu nhà cấp 4 60m2 5x12 mái thái

Mái thái kết hợp với nhà cấp 4 mặt tiền 5m sâu 12m tạo nên nét kiến trúc ấn tượng, thoạt nhìn có vẻ đơn giản nhưng lại vô cùng phù hợp xây dựng ở các khu vực nông thôn.

Căn nhà ưa chuộng lối thiết kế mở, tận dụng các ô cửa kính để ánh sáng tự nhiên và gió trời lưu thông tối đa trong nhà. 

Mẫu nhà cấp 4 60m2 mái thái phổ biến
Mẫu nhà cấp 4 60m2 mái thái phổ biến

Mẫu thiết kế nhà cấp 4 mái bằng 60m2 

Mẫu nhà cấp 4 mái bằng 60m2 được nhiều người lựa chọn nhờ không gian rộng rãi, bố trí công năng nội thất dễ dàng. Mẫu nhà này cũng là điều kiện thuận lợi để tối ưu thông gió, thoáng khí và tiếp nhận ánh sáng tự nhiên tốt.

Nhà cấp 4 hiện đại mái bằng 60m2 đẹp mắt
Nhà cấp 4 hiện đại mái bằng 60m2 đẹp mắt

Mẫu nhà cấp 4 chữ L 60m2

Thiết kế nhà cấp 4 hình chữ L 60m2 đẹp với không gian thoáng đãng, đảm bảo công năng tối ưu hợp lý.

Tân dụng không gian khuyết góc chữ L trồng cây hoa đẹp mắt, giúp ngôi nhà thêm tràn ngập sức sống. 

Nhà cấp 4 60m2 chữ L tối giản chi tiết
Nhà cấp 4 60m2 chữ L tối giản chi tiết

Mẫu thiết kế nhà cấp 4 4x15m có gác lửng

Với thiết kế phong cách hiện đại và sử dụng gam màu đồng nhất, mẫu nhà mái thái cấp 4 4x15m có gác lửng này sẽ giúp tiết kiệm chi phí xây dựng. Tầng lửng có thể được sử dụng làm phòng làm việc, phòng phơi đồ, phòng ngủ,...

Nhà cấp 4 60m2 có gác lửng gia tăng thêm không gian sử dụng
Nhà cấp 4 60m2 có gác lửng gia tăng thêm không gian sử dụng

Nhà cấp 4 60m2 300 triệu

Với những gia đình có mức tài chính vừa phải, đặc biệt là ở nông thôn, mẫu nhà cấp 4 có chi phí khoảng 300 triệu, 500 triệu là một gợi ý tuyệt vời. Mẫu nhà 60m2 cấp 4 này vẫn đáp ứng đầy đủ nhu cầu sinh hoạt cơ bản của một gia đình có từ 3 - 4 thành viên.

Nhà cấp 4 60m2 300 triệu đầy đủ công năng sinh hoạt
Nhà cấp 4 60m2 300 triệu đầy đủ công năng sinh hoạt

Nhà cấp 4 nhỏ đẹp xinh 60m2

Đối với những gia đình không yêu cầu quá cao về công năng rộng rãi, mẫu nhà cấp 4 nhỏ gọn 60m2 dưới đây là một gợi ý hợp lý. Sử dụng những vật liệu đơn giản, kiến trúc không quá cầu kỳ nhưng vẫn có nét thu hút riêng. 

Nhà cấp 4 60m2 nhỏ nhắn xinh xắn cuốn hút
Nhà cấp 4 60m2 nhỏ nhắn xinh xắn cuốn hút

Nhà cấp 4 60m2 đẹp ở nông thôn 

Với đường nét thiết kế đơn giản, không trang trí quá cầu kỳ, mẫu nhà 60m2 cấp 4 mái nhật dưới đây vẫn vô cùng nổi bật cuốn hút bởi tone màu tươi sáng, hệ cửa kính trong suốt thông thoáng.

Nhà cấp 4 60m2 đơn giản được ưa chuộng xây dựng ở nông thôn
Nhà cấp 4 60m2 đơn giản được ưa chuộng xây dựng ở nông thôn

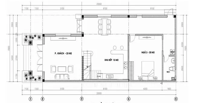
Bản vẽ thiết kế nhà cấp 4 60m2

Bản vẽ mẫu nhà 60m2 cấp 4 có gac lửng dưới đây được bố trí 3 phòng ngủ, 1 phòng ngủ ở tầng trệt và 2 phòng ngủ ở tầng lửng. Các không gian phòng khách, phòng bếp, phòng vệ sinh,... được thiết kế tận dụng tối ưu diện tích mang lại trải nghiệm sống tiện nghi cho gia đình.

Mặt bằng tầng trệt nhà cấp 4 60m2
Mặt bằng tầng trệt nhà cấp 4 60m2
Mặt bằng tầng lửng nhà cấp 4 60m2
Mặt bằng tầng lửng nhà cấp 4 60m2

Trên đây là những mẫu thiết kế nhà cấp 4 60m2 đẹp 2-3-4 phòng ngủ tiện nghi dành cho gia chủ thỏa sức lựa chọn. Hi vọng rằng với bài viết này, Vinavic đã góp phần giúp bạn có những quyết định sáng suốt trong hành trình xây dựng tổ ấm gia đình.

Tham khảo:

By https://vinavic.vn/
https://vinavic.vn/

Đánh giá - Bình luận
0 bình luận, đánh giá về BST 55+ Thiết kế nhà cấp 4 60m2 đẹp 2-3-4 phòng ngủ tiện nghi
Nhấn vào đây để đánh giá
Thông tin người gửi
Phong thủy
Chúng tôi có thể hỗ trợ bạn!
1.62514 sec| 2440.758 kb