Mê mẩn với những mẫu nhà cấp 4 mái nhật 2 phòng ngủ được tìm kiếm nhiều nhất năm 2024

Mẫu nhà đẹp
0
1957
vinavic - 09/07/2024

Hiện nay, mô hình nhà cấp 4 mái nhật 2 phòng ngủ đang trở nên phổ biến ở cả khu vực thành thị lẫn nông thôn với kiến trúc đơn giản tiết kiệm chi phí xây dựng. Hãy cùng Vinavic khám phá những mẫu nhà cấp 4 mái nhật 2 phòng ngủ được tìm kiếm nhiều nhất năm 2024 thông qua bài viết dưới đây.

Mẫu nhà cấp 4 mái nhật 2 phòng ngủ đẹp
Mẫu nhà cấp 4 mái nhật 2 phòng ngủ đẹp

Nhà cấp 4 mái nhật 2 phòng ngủ là gì?

Nhà cấp 4 mái nhật 2 phòng ngủ là kiểu nhà cấp 4 gồm có 2 phòng ngủ sử dụng mái nhật. Đây là một trong những kiểu nhà có diện tích nhỏ gọn với kinh phí xây dựng vừa phải tiết kiệm dành cho những gia đình có 2 vợ chồng và con nhỏ.  

Nhà cấp 4 kiểu Nhật được thiết kế để phù hợp với thẩm mỹ và khí hậu của Việt Nam.
Nhà cấp 4 kiểu Nhật được thiết kế để phù hợp với thẩm mỹ và khí hậu của Việt Nam.

Đặc điểm của nhà cấp 4 mái nhật 2 phòng ngủ

  • Phần mái: Mái nhà có hình dạng chữ A, độ dốc nhẹ nhàng, thường được lợp bằng ngói hoặc tôn. Mái Nhật giúp thoát nước tốt, chống nóng và tạo vẻ đẹp thanh lịch cho ngôi nhà.
  • Số lượng phòng ngủ: Nhà có 2 phòng ngủ, đáp ứng nhu cầu sinh hoạt cho gia đình có 2 đến 4 thành viên.
  • Diện tích: Diện tích xây dựng phổ biến dao động từ 70m2 đến 150m2, phù hợp với nhiều gia đình có mức thu nhập trung bình.
  • Phong cách: Nhà cấp 4 mái Nhật 2 phòng ngủ có thể được thiết kế theo nhiều phong cách khác nhau như hiện đại, tân cổ điển, tối giản,...
Nhà cấp 4 kiểu Nhật được thiết kế để phù hợp với thẩm mỹ và khí hậu của Việt Nam.
Nhà cấp 4 kiểu Nhật được thiết kế để phù hợp với thẩm mỹ và khí hậu của Việt Nam.
Nhà cấp 4 kiểu Nhật được thiết kế để phù hợp với thẩm mỹ và khí hậu của Việt Nam.
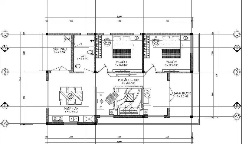
Bản vẽ bố trí công năng nhà cấp 4 mái nhật 2 phòng ngủ 1 phòng thờ

Ưu điểm của mẫu nhà cấp 4 mái nhật 2 phòng ngủ là gì?

  • Mái Nhật có độ dốc nhỏ hơn 40% so với mái Thái, do đó khả năng thoát nước của mái Thái tốt hơn, đặc biệt là khi có mưa bão lớn.
  • Chi phí xây dựng hợp lý, phù hợp với thu nhập của các gia đình tại Việt Nam.
  • Thời gian thi công ngắn.
  • Kiến trúc đơn giản nhưng vẫn mang phong cách hiện đại, phù hợp với nhiều kiểu thiết kế nhà ở.
Phong cách kiến trúc của nhà cấp 4 mái Nhật 2 phòng ngủ mang lại cảm giác tinh tế và yên bình.
Phong cách kiến trúc của nhà cấp 4 mái Nhật 2 phòng ngủ mang lại cảm giác tinh tế và yên bình.

Những mẫu nhà cấp 4 mái nhật 2 phòng ngủ HOT nhất năm nay

Nhà cấp 4 mái nhật 2 phòng ngủ hiện đại

Phong cách hiện đại là sự chọn lựa của nhiều gia đình khi muốn xây dựng Nhà cấp 4 mái nhật 2 phòng ngủ. Với phong cách này, các kiến trúc sư thường gợi ý sử dụng cửa nhôm kính cho công trình vì nhiều ưu điểm. Không chỉ mang tính thẩm mỹ cao, cửa nhôm kính còn giúp gia đình tiết kiệm chi phí do độ bền của nó.

Mẫu nhà cấp 4 mái Nhật 2 phòng ngủ hiện đại với các trụ lớn và cửa kính làm điểm nhấn.
Mẫu nhà cấp 4 mái Nhật 2 phòng ngủ hiện đại với các trụ lớn và cửa nhôm kính làm điểm nhấn.

Tham khảo thêm: 35 Mẫu nhà cấp 4 mái nhật hiện đại HOT nhất 2024

Nhà cấp 4 mái nhật 2 phòng ngủ đơn giản

Trong vùng nông thôn, mẫu nhà cấp 4 mái nhật 2 phòng ngủ là một kiểu kiến trúc phổ biến. Loại kiến trúc này không chỉ đảm bảo về mặt thẩm mỹ mà còn giúp gia đình tiết kiệm chi phí nhờ vào việc giảm thiểu các chi tiết xây dựng.

Nhà cấp 4 mái nhật 2 phòng ngủ đơn giản
Nhà cấp 4 mái nhật 2 phòng ngủ đơn giản có phần sân rộng

30 mẫu nhà cấp 4 mái nhật đơn giản, dễ xây dựng

Nhà cấp 4 mái nhật 2 phòng ngủ 1 phòng thờ

Việc thờ cúng tổ tiên là một truyền thống lâu đời của người Việt. Do đó, hầu hết các gia đình Việt đều có không gian riêng để thờ cúng trong nhà. Hãy xem qua các mẫu nhà cấp 4 mái nhật với 2 hoặc 3 phòng ngủ và một phòng thờ dưới đây để tham khảo.

Nhà cấp 4 mái nhật 2 phòng ngủ 1 phòng thờ
Nhà cấp 4 mái nhật 2 phòng ngủ 1 phòng thờ đẹp mắt

Nhà cấp 4 mái nhật 2 phòng ngủ 500 triệu

Với ngân sách 500 triệu đồng, gia đình có thể chọn mẫu nhà cấp 4 mái nhật 2 phòng ngủ để xây dựng tổ ấm. Số tiền này không quá lớn cũng không quá ít để thi công một căn nhà như vậy, do đó cần phải tính toán cẩn thận để tránh gánh nặng tài chính trong tương lai.

Nhà cấp 4 mái nhật 2 phòng ngủ 500 triệu
Nhà cấp 4 mái nhật 2 phòng ngủ 500 triệu vuông vắn​​​​​​

Nhà cấp 4 mái nhật 500 triệu hót nhất hiện nay

Nhà cấp 4 mái nhật 2 phòng ngủ đẹp, có sân vườn

Hiện nay, việc xây dựng nhà ở kết hợp với thiên nhiên đang trở thành một xu hướng phổ biến được nhiều gia đình lựa chọn. Việc tạo ra sân vườn để trồng cây xanh không chỉ giúp mở rộng không gian sống mà còn làm tăng tính thẩm mỹ cho ngôi nhà.

Nhà cấp 4 mái nhật 2 phòng ngủ đẹp, có sân vườn
Nhà cấp 4 mái nhật 2 phòng ngủ đẹp, có sân vườn rộng thoáng

Nhà cấp 4 mái nhật 2 phòng ngủ chữ L

Mẫu nhà cấp 4 mái nhật 2 phòng ngủ chữ L là một thiết kế phổ biến ở vùng nông thôn và ngoại ô. Ngoài việc có chi phí xây dựng thấp, mẫu nhà này còn được thiết kế hợp lý với 2 cửa chính - phụ, tiện lợi cho cuộc sống hàng ngày. Tuy nhiên, khi chọn mẫu nhà này, gia chủ cần xem xét kỹ về các yếu tố phong thủy.

Thiết kế ngôi nhà cấp 4 mái nhật 2 phòng ngủ với cửa kính và khu vực đỗ xe tiện nghi
Nhà cấp 4 mái nhật 2 phòng ngủ đẹp chữ L có sân trước rộng rãi để đậu xe ô tô

Nhà cấp 4 mái nhật 2 phòng ngủ có gác lửng

Nếu gia đình bạn có nhiều thành viên hoặc chỉ sở hữu mảnh đất nhỏ để xây dựng, thì việc chọn một ngôi nhà cấp 4 mái nhật với 2 phòng ngủ và gác lửng là một lựa chọn rất phù hợp. Hãy tham khảo các mẫu thiết kế dưới đây để tìm kiếm phong cách kiến trúc phù hợp nhất cho gia đình bạn.

 

Thiết kế gác lửng đẹp cho ngôi nhà cấp 4 mái nhật 2 phòng ngủ
Thiết kế gác lửng đẹp cho ngôi nhà cấp 4 mái nhật 2 phòng ngủ

Nhà cấp 4 mái nhật 2 phòng ngủ có gác lửng
Nhà cấp 4 mái nhật 2 phòng ngủ có gác lửng

 

Thiết kế ngôi nhà cấp 4 mái nhật 2 phòng ngủ với cửa kính và khu vực đỗ xe tiện nghi
Thiết kế ngôi nhà cấp 4 mái nhật 2 phòng ngủ đẹp và khu vực đỗ xe tiện nghi

Dự trù kinh phí thiết kế và thi công nhà cấp 4 mái nhật 2 phòng ngủ

Hiện nay, trên thị trường có một số đơn vị công bố mức giá thi công như sau:

  • Nhà cấp 4 mái nhật 2 phòng ngủ phong cách hiện đại: Từ 5.500.000 đến 6.500.000 đồng/m2.
  • Nhà cấp 4 mái nhật 2 phòng ngủ phong cách tân cổ điển: Từ 6.500.000 đến 7.000.000 đồng/m2.
  • Nhà cấp 4 mái nhật 2 phòng ngủ phong cách cổ điển: Từ 7.000.000 đồng/m2 trở lên.
Dự trù kinh phí thiết kế và thi công Nhà cấp 4 mái nhật 2 phòng ngủ
Dự trù kinh phí thiết kế và thi công nhà cấp 4 mái nhật 2 phòng ngủ

Ví dụ với căn nhà cấp 4 mái nhật 2 phòng ngủ diện tích 100m2 phong cách hiện đại ta có

  • Diện tích nhà: 100m2
  • Diện tích riềm mái 100×0.4=40m2
  • Tổng diện tích xây dựng: 140m2
  • Tổng giá trị xây dựng: 140m2 × 5.500.000=770.000.000 vnđ

Giá thiết kế cho một căn nhà cấp 4 mái nhật 2 phòng ngủ có thể biến đổi tùy thuộc vào độ phức tạp của thiết kế, tình hình thị trường,... Do đó, bạn nên liên hệ trực tiếp với kiến trúc sư Vinavic để có cái nhìn chính xác về chi phí nhé.

Xây nhà cấp 4 mái nhật 2 phòng ngủ cần lưu ý gì?

Ngôi nhà được coi là một tài sản lâu dài của con người. Do đó, khi quyết định xây dựng căn nhà cho bản thân, bạn cần chú ý đến những điều sau để có những lựa chọn phù hợp nhất.

  • Đảm bảo sự cân đối giữa diện tích xây dựng và nhu cầu sử dụng của gia đình trong tương lai để chọn mẫu thiết kế phù hợp nhất.
  • Dự trù và chuẩn bị kinh phí trước khi bắt đầu xây nhà để đảm bảo tiến độ và chất lượng công trình.
  • Chọn vật liệu xây dựng chất lượng, đảm bảo an toàn cho ngôi nhà.
  • Chọn đơn vị thi công uy tín, có chuyên môn tốt trong lĩnh vực xây dựng.

Thông qua bài viết trên, hy vọng bạn đọc đã lựa chọn được mẫu nhà đẹp phù hợp. Thường xuyên truy cập website www.vinavic.vn để cập nhật những thông tin mới nhất nhé.

By https://vinavic.vn/
https://vinavic.vn/

Đánh giá - Bình luận
0 bình luận, đánh giá về Mê mẩn với những mẫu nhà cấp 4 mái nhật 2 phòng ngủ được tìm kiếm nhiều nhất năm 2024
Nhấn vào đây để đánh giá
Thông tin người gửi
Phong thủy
Chúng tôi có thể hỗ trợ bạn!
1.64053 sec| 2445.266 kb