22 mẫu nhà ống 3 tầng mái thái mặt tiền 5m đẹp mắt cuốn hút nhất

Mẫu nhà đẹp
0
1625
Thu - 22/06/2024

Nhà ống 3 tầng mái thái mặt tiền 5m đáp ứng hầu hết mọi nhu cầu sinh hoạt của các thành viên trong gia đình có 2 đến 3 thế hệ cùng sinh sống. Tuy nhiên mức chi phí xây dựng mẫu nhà này lại vô cùng tiết kiệm, hợp lý. Bài viết này Vinavic sẽ gợi ý cho bạn 22 mẫu nhà ống 3 tầng mái thái mặt tiền 5m đẹp mắt cuốn hút nhất để bạn tha hồ lựa chọn.

22 mẫu nhà ống 3 tầng mái thái mặt tiền 5m đẹp mắt cuốn hút nhất
22 mẫu nhà ống 3 tầng mái thái mặt tiền 5m đẹp mắt cuốn hút nhất

Đặc trưng của mẫu nhà ống 3 tầng mái thái mặt tiền 5m

Mái thái truyền thống đặc trưng

Độ dốc của mái thái giúp nước mưa dễ thoát hơn, bảo vệ ngôi nhà khỏi điều kiện thời tiết xấu. Mẫu nhà ống 3 tầng mặt tiền 5m có thể sử dụng mái thái với nhiều gam màu đa dạng như xanh than, ghi khói, nâu,... tạo nét độc đáo riêng.

Mẫu nhà ống 3 tầng sử dụng hệ mái thái phóng khoáng
Mẫu nhà ống 3 tầng sử dụng hệ mái thái phóng khoáng thu hút

Tiết kiệm chi phí xây dựng

Mẫu nhà ống mái thái 3 tầng có chi phí vừa phải, phù hợp với mức thu nhập của đại đa số người dân Việt Nam hiện nay.

Sử dụng vật liệu thi công đơn giản

Nhà 3 tầng mái thái sử dụng những vật liệu thi công đơn giản dễ kiếm ở địa phương như bê tông, gạch, xi măng nhưng không hề kém chất lượng. Bên cạnh đó còn giúp tiết kiệm chi phí.

Tham khảo 22 mẫu nhà ống mặt tiền 5m 3 tầng mái thái đẹp mắt cuốn hút nhất

Nhà ống 3 tầng mái thái mặt tiền 5m hiện đại

Mẫu nhà ống 3 tầng mái thái hiện đại là một trong những xu hướng thiết kế nhà ở được nhiều người ưa chuộng hiện nay. Với kiến trúc thanh thoát, sang trọng, kết hợp hài hòa giữa phong cách hiện đại và truyền thống, ngôi nhà mang đến không gian sống tiện nghi, thoải mái cho gia chủ. 

Mẫu nhà ống mái thái 3 tầng mặt tiền 5m được nhiều gia đình lựa chọn xây dựng
Mẫu nhà ống mái thái 3 tầng mặt tiền 5m được nhiều gia đình lựa chọn xây dựng

Mẫu nhà ống 3 tầng mái thái mặt tiền 5m Tân Cổ Điển

Thay vì những chi tiết cầu kỳ, mẫu nhà ống 3 tầng Tân Cổ Điển được ưa chuộng bởi tính thẩm mỹ, phong cách thiết kế bắt kịp xu hướng.

Đặc biệt, mẫu nhà ống này cực kỳ chú trọng vào tiện ích, khả năng tận dụng các không gian chức năng.

Mẫu nhà 3 tầng mặt tiền 5m Tân Cổ Điển đẹp mắt
Mẫu nhà 3 tầng mặt tiền 5m Tân Cổ Điển đẹp mắt

Nhà phố mặt tiền 5m mái thái 3 tầng

Mẫu nhà phố mặt tiền 5m 3 tầng mái thái là sự kết hợp hài hòa giữa phong cách hiện đại và truyền thống, mang đến cho gia chủ một không gian sống thoải mái, tiện nghi và sang trọng. Ngôi nhà được thiết kế với khối mái thái đơn giản, gọn gàng, tạo cảm giác cao ráo, thanh thoát cho công trình. 

Nhà phố 3 tầng mái thái có không gian sống đa năng
Nhà phố 3 tầng mái thái có không gian sống đa năng

Thiết kế nhà ống mái thái mặt tiền 5m 3 tầng 4 phòng ngủ 

Tổng thể ngôi nhà với gam màu tươi sáng kết hợp hệ mái thái truyền thống phóng khoáng tạo nên không gian sống tuyệt vời. 

Mẫu nhà mái thái 3 tầng công năng 4 phòng ngủ tiện nghi
Mẫu nhà mái thái 3 tầng công năng 4 phòng ngủ tiện nghi

Thiết kế nhà ống 3 tầng mái thái mặt tiền 5m sâu 17m

Mẫu nhà ống 3 tầng mái thái dưới đây có thiết kế đơn giản cùng hình khối vuông vắn, chi tiết trang trí nhẹ nhàng được nhiều gia đình lựa chọn xây dựng.

Mẫu nhà 3 tầng mặt tiền 5m sâu 17m đơn giản cuốn hút
Mẫu nhà 3 tầng mặt tiền 5m sâu 17m đơn giản cuốn hút

Nhà ống mặt tiền 5m mái thái 3 tầng 5mx20m

Hệ mái thái xếp chồng của tầng 2, tầng 3 tạo nên một tổng thể căn nhà kiên cố, vững chắc cũng như mang lại giá trị thẩm mỹ cao.

Thiết kế nhà mái thái 5x20m 3 tầng đẹp nổi bật
Thiết kế nhà mái thái 5x20m 3 tầng đẹp nổi bật

Nhà ống mái thái 3 tầng mặt tiền 5m có sân thượng

Ngoại thất nhà ống 3 tầng mặt tiền 5m được thiết kế gần gũi với thiên nhiên và được bố trí nhiều cây cảnh ở trước ban công.

Hệ thống cửa kính kết hợp với đèn chiếu sáng giúp tăng độ sáng cho không gian ngôi nhà.

Thiết kế nhà ống 3 tầng mái thái có sân thượng thông thoáng
Thiết kế nhà ống 3 tầng mái thái có sân thượng thông thoáng

Gợi ý bản vẽ thiết kế nhà ống mái thái 3 tầng mặt tiền 5m

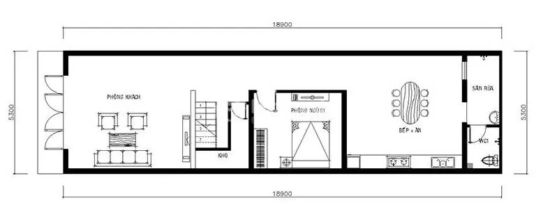
Tầng 1

Là nơi đón tiếp khách, có phòng khách, bếp ăn, phòng ngủ, nhà vệ sinh và sân trước hoặc sân sau để để xe, trồng cây cảnh. 

Mặt bằng tầng 1 mẫu nhà ống mái thái 3 tầng mặt tiền 5m
Mặt bằng tầng 1 mẫu nhà ống mái thái 3 tầng mặt tiền 5m

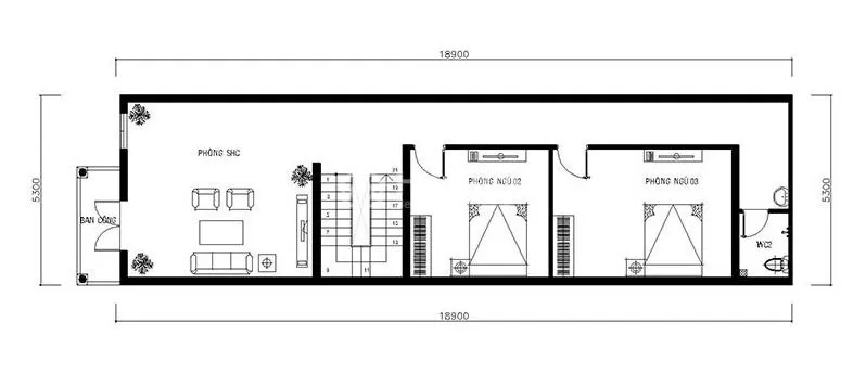
Tầng 2

Là nơi nghỉ ngơi, có 2 phòng ngủ, nhà vệ sinh riêng, 1 phòng sinh hoạt chung,ban công và cửa sổ để đón ánh sáng và gió tự nhiên.

Mặt bằng tầng 2 mẫu nhà ống mái thái 3 tầng mặt tiền 5m
Mặt bằng tầng 2 mẫu nhà ống mái thái 3 tầng mặt tiền 5m

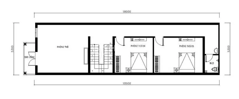
Tầng 3

Là nơi giải trí, có 2 phòng ngủ, phòng thờ, phòng đọc sách, sân thượng và nhà vệ sinh.

Mặt bằng tầng 3 mẫu nhà ống mái thái 3 tầng mặt tiền 5m
Mặt bằng tầng 3 mẫu nhà ống mái thái 3 tầng mặt tiền 5m

Bố trí công năng các phòng nhà ống mặt tiền 5m 3 tầng mái thái

Phòng ngủ

Phòng ngủ căn nhà 3 tầng mặt tiền 5m khá nhỏ nên gia chủ cần phải biết cách tận dụng tối đa diện tích của căn phòng, lược bỏ đi những vật dụng không cần thiết cũng như nội thất trong nhà cần được tính toán kích thước phù hợp và bố trí ánh sáng hợp lí để làm cho căn phòng không bị tù túng, thiếu sức sống.

Ý tưởng trang trí phòng ngủ tối ưu công năng và thẩm mỹ cao
Ý tưởng trang trí phòng ngủ tối ưu công năng và thẩm mỹ cao

Phòng khách

Phòng khách là không gian sinh hoạt chung cũng như tiếp khách nên cần chú ý thiết kế không gian thoáng đãng, tận dụng tốt ánh sang tự nhiên qua rèm cửa, cửa kính. 

Trang trí phòng khách với nội thất đơn giản đẹp mắt
Trang trí phòng khách với nội thất đơn giản đẹp mắt

Phòng bếp

Không gian bếp và ăn được bố trí gần cửa sổ giúp việc lưu thông không khí được tốt hơn.

Phòng bếp nên sử dụng đồ nội thất sáng màu, tạo không gian gọn gàng và sạch sẽ.

Không gian nhà bếp gọn gàng hiện đại
Không gian nhà bếp gọn gàng hiện đại

Những mẫu nhà ống 3 tầng mái thái mặt tiền 5m luôn là một trong những lựa chọn hàng đầu khi xây dựng đối với những gia đình đông thành viên, mong muốn không gian sống tiện nghi đầy đủ công năng. Mong rằng các bạn sẽ có sự lựa chọn phù hợp trong hành trình xây dựng mái ấm sắp tới. Chúc bạn thành công!

Tham khảo:

31 Kiểu mẫu nhà 3 tầng mái thái hiện đại được lựa chọn nhiều nhất hiện nay

55 Mẫu nhà ống mái Thái đẹp tiết kiệm chi phí được yêu thích nhất

35 Mẫu thiết kế nhà ống 3 tầng 1 tum mái thái đẹp thịnh hành

By https://vinavic.vn/
https://vinavic.vn/

Đánh giá - Bình luận
0 bình luận, đánh giá về 22 mẫu nhà ống 3 tầng mái thái mặt tiền 5m đẹp mắt cuốn hút nhất
Nhấn vào đây để đánh giá
Thông tin người gửi
Phong thủy
Chúng tôi có thể hỗ trợ bạn!
2.15644 sec| 2451.117 kb