65+ Mẫu nhà tân cổ điển 3 tầng 5x20m sang trọng nhất
- 1. Đặc trưng của mẫu nhà tân cổ điển 3 tầng 5x20m
- 2. 65+ Mẫu nhà tân cổ điển 3 tầng 5x20m sang trọng nhất
- 2.1. Mẫu nhà 3 tầng 5x20m tân cổ điển kiểu pháp
- 2.2. Mẫu nhà 3 tầng 5x20m tân cổ điển mái bằng
- 2.3. Mẫu nhà 3 tầng 5x20m tân cổ điển mái thái
- 2.4. Mẫu tân cổ điển 3 tầng 5x20m 2 mặt tiền
- 2.5. Nhà tân cổ điển 3 tầng 5x20m có gác lửng
- 2.6. Nhà tân cổ điển 3 tầng 5x20m có gara để oto
- 2.7. Nhà tân cổ điển 5x20m 3 tầng 1 tum
- 2.8. Mẫu nhà tân cổ điển 5x20m có sân rộng trước nhà
- 3. Bản vẽ thiết kế nhà 3 tầng tân cổ điển 5x20m chi tiết
- 4. Chi phí xây nhà 3 tầng tân cổ điển 5x20m trọn gói
- 5. Lưu ý khi thiết kế nhà tân cổ điển 3 tầng 5x20m
Nhà tân cổ điển 3 tầng 5x20m đây là mẫu nhà có diện tích xây dựng thường thấy tại các khu đô thị của Việt Nam vì nó có nhiều ưu điểm xuất sắc, đáp ứng được cả yếu tố thẩm mỹ và sinh hoạt của nhiều gia đình. Diện tích tuy không lớn nhưng lại mang đến một không gian sống độc đáo và ấn tượng. Với nhiều thiết kế đã vượt qua mọi giới hạn về sáng tạo, khéo léo tối ưu hóa không gian.
Trong bài viết này, Vinavic sẽ chia sẻ với bạn các bí quyết để chọn mẫu nhà tân cổ điển 3 tầng 5x20m đẹp tiết kiệm chi phí nhưng vẫn đảm bảo đáp ứng đầy đủ nhu cầu sinh hoạt của tất cả các thành viên trong gia đình.
Đặc trưng của mẫu nhà tân cổ điển 3 tầng 5x20m
Một mẫu nhà phố 3 tầng tân cổ điển kích thước 5x20m đang được ưa chuộng vì nhiều ưu điểm vượt trội, đáp ứng đầy đủ nhu cầu sinh hoạt và thẩm mỹ của nhiều gia đình. Dưới đây là một số điểm nổi bật của mẫu nhà này:
Diện tích rộng: Với kích thước 5x20m, diện tích sàn 100m2, nhà 3 tầng tân cổ điển mang lại không gian sống rộng rãi và thoải mái cho gia đình. Các tầng được thiết kế hợp lý, đảm bảo sự tiện nghi và thoải mái cho người sử dụng.
Thiết kế sang trọng: Phong cách tân cổ điển tập trung vào sự tinh tế, sang trọng, thể hiện qua các chi tiết hoa văn, phào chỉ tỉ mỉ và cầu kỳ. Màu sắc chủ đạo thường là trắng, vàng kem, kết hợp với cửa gỗ và mái ngói tạo nên vẻ đẹp cổ điển, thu hút.
Tiện nghi hiện đại: Nhà 3 tầng tân cổ điển 5x20m được trang bị đầy đủ các tiện nghi hiện đại như hệ thống điện nước thông minh, nhà bếp hiện đại, phòng tắm sang trọng,... đáp ứng đầy đủ nhu cầu sinh hoạt cao của gia đình.
65+ Mẫu nhà tân cổ điển 3 tầng 5x20m sang trọng nhất
Mẫu nhà 3 tầng 5x20m tân cổ điển kiểu pháp
Thiết kế mặt tiền của căn biệt thự nhà phố 3 tầng theo phong cách tân cổ điển Pháp này đã được chủ nhà đánh giá cao. Sự tương phản rõ ràng giữa tông màu trắng chủ đạo của tường và cột với màu đen của cửa kính và ban công nghệ thuật tạo nên một diện mạo ấn tượng cho căn nhà 3 tầng 5×20 theo phong cách tân cổ điển.
Điểm nhấn của căn nhà tân cổ điển thể hiện qua hoa văn trang trí trên tường và bức phù điêu lớn trên mái. Màu sắc thanh lịch và sang trọng làm nổi bật cho căn biệt thự 3 tầng theo phong cách tân cổ điển...
Mẫu nhà 3 tầng 5x20m tân cổ điển mái bằng
Nhà mái bằng 3 tầng phong cách tân cổ điển 5x20m được thiết kế với kiến trúc gọn gàng, không ảnh hưởng đến các căn nhà lân cận, phù hợp cho các công trình nhà phố, chung cư trong hẻm và gia đình có diện tích đất nhỏ. Mặc dù vậy, nhiều căn nhà xây dựng theo kiểu này cũng nhận được sự yêu thích từ gia chủ.
Mẫu nhà 3 tầng 5x20m tân cổ điển mái thái
Các mái nhà theo phong cách Thái có khả năng làm mát và chống nóng. Đồng thời, chúng còn giúp thoát nước tự nhiên hiệu quả, không gây ứ đọng, dột và thấm nước nhờ vào độ dốc của mái. Giúp kéo dài tuổi thọ của mái nhà.
Mẫu tân cổ điển 3 tầng 5x20m 2 mặt tiền
Nhà 3 tầng có hai mặt tiền 5x20m được thiết kế rộng rãi và thông thoáng, điều này luôn là ưu điểm lớn. Khác biệt hoàn toàn so với các mẫu nhà chỉ có một mặt tiền thông thường, mẫu nhà hai mặt tiền 5x20m dễ dàng tiếp nhận ánh sáng và không khí tự nhiên, không gian sống không bị tối tăm, giúp cho gia đình luôn khỏe mạnh và tràn đầy năng lượng.
Nhà tân cổ điển 3 tầng 5x20m có gác lửng
Một trong những ưu điểm lớn của việc có mẫu nhà tân cổ điển 5x20m 3 tầng có gác lửng là khả năng tận dụng không gian hiệu quả, giúp mở rộng tiện ích cho các căn nhà nhỏ. Với gác lửng, bạn có thể sắp phòng thờ, bên dưới là phòng bếp và phòng khách, tạo ra không gian riêng biệt mà không cần chiếm diện tích ở khu vực chính.
Nhà tân cổ điển 3 tầng 5x20m có gara để oto
Mẫu nhà 3 tầng tân cổ điển có gara để xe cực thuận tiện cho việc cất hoặc lấy xe. Gara có thể được thiết kế khoảng sân trước ngôi nhà hoặc ngay bên cạnh nhà đều hợp lý. Tuỳ vào nhu cầu sử dụng, mong muốn gia chủ mà bạn có thể lựa chọn phương án thiết kế phù hợp nhất.
Nhà tân cổ điển 5x20m 3 tầng 1 tum
Thiết kế nhà 3 tầng 1 tum trên diện tích 5x20m tạo cảm giác mở rộng và thoải mái. Việc xây dựng nhà 3 tầng 1 tum cũng giúp tạo ra không gian mở rộng và thoải mái cho căn nhà. Vì tum chỉ chiếm một phần diện tích của mỗi tầng, nên không gian sống của gia đình sẽ không bị chia cắt quá nhiều.
Mẫu nhà tân cổ điển 5x20m có sân rộng trước nhà
Kiểu nhà tân cổ điển 3 tầng 5x20m có khoảng sân rộng rãi trước nhà mang lại nhiều lợi ích dù diện tích lớn hay nhỏ. Việc này giúp tạo cân bằng về mặt thẩm mỹ và phong thủy, mang lại sự thịnh vượng và tài lộc cho gia chủ, đồng thời xua đuổi tà khí thông qua việc trồng cây xanh, thiết kế thác nước...
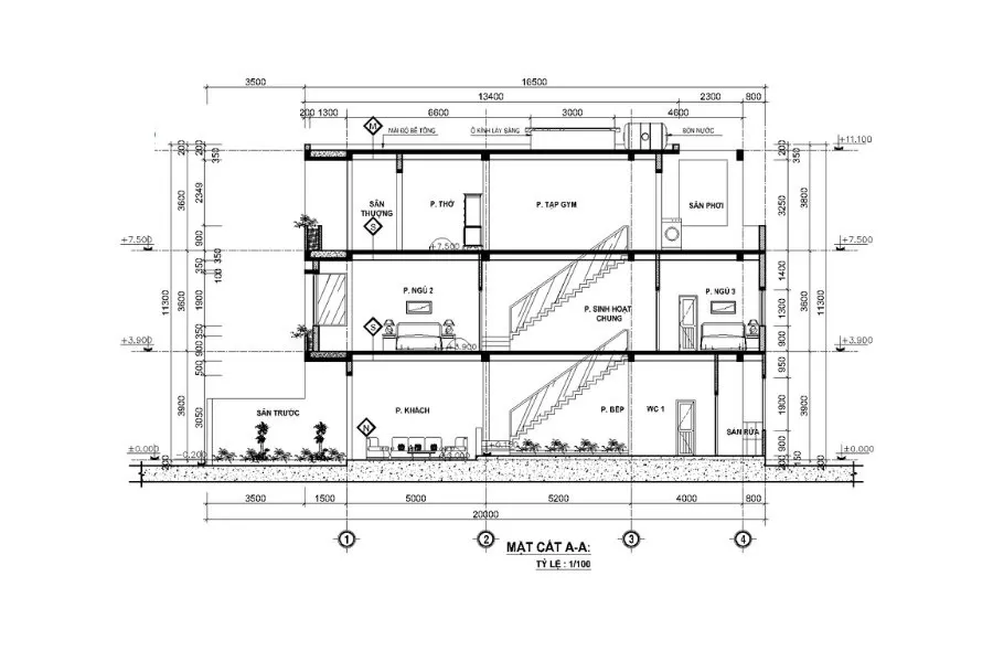
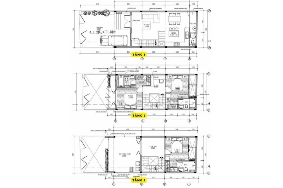
Bản vẽ thiết kế nhà 3 tầng tân cổ điển 5x20m chi tiết


Chi phí xây nhà 3 tầng tân cổ điển 5x20m trọn gói
Việc tính toán chi phí xây nhà 3 tầng tân cổ điển 5x20m là vấn đề quan tâm của mọi chủ nhà giúp việc dự trù chi phí cũng như phương pháp thi công công trình sao cho hợp lý.
Bạn có thể tham khảo cách tính diện tích xây dựng và bảng giá xây dựng mới nhất tại Kiến Trúc Vinavic
Đơn giá xây dựng nhà 3 tầng tân cổ điển 5x20m hiện nay
Tùy vào nhu cầu và điều kiện kinh tế, bạn có thể chọn 1 trong 2 gói xây dựng sau đây:
- Xây dựng nhà phần thô: Từ 3.000.000 vnđ – 3.800.000 vnđ/m2
- Xây dựng nhà trọn gói: Từ 5.800.000 vnđ – 7.000.000 vnđ/m2.
Diện tích sàn xây dựng nhà 5x20m 3 tầng là 300m2
Diện tích đất xây dựng căn nhà 3 tầng tân cổ điển 5x20m: 5m x 20m = 100m2
==> Diện tích xây dựng nhà 3 tầng tân cổ điển 5x20m: 300 m2
- Chi phí xây dựng phần thô: 3.000.000 x 300= 900.000.000 (vnđ)
- Chi phí xây nhà trọn gói: 5.800.000 x 300= 1.740.000.000 (vnđ)
Dự toán chi phí xây dựng = Diện tích xây dựng x Đơn giá xây trọn gói
==> Do đó, chi phí xây dựng nhà 3 tầng tân cổ điển 5x20m sẽ dao động từ 1,7 tỷ cho đến 2,3 tỷ phụ thuộc vào từng thời điểm thi công, vị trí, tình hình thực tế giá cả nguyên vật liệu cũng như giá nhân công từng địa phương. Liên hệ ngay với chúng tôi qua hotline 0975678930 để nhận báo giá sớm nhất nhé!
Lưu ý khi thiết kế nhà tân cổ điển 3 tầng 5x20m
Khi xây dựng một ngôi nhà tân cổ điển 3 tầng có diện tích 5x20, bạn cần chú ý đến các vấn đề sau:
- Diện tích và kích thước: Đảm bảo rằng diện tích và kích thước của các phòng phù hợp với nhu cầu sử dụng của gia đình. Ví dụ, phòng khách cần đủ rộng để tiếp khách, phòng ngủ cần đủ diện tích cho giường và tủ quần áo, phòng bếp cần đủ không gian cho việc nấu nướng và ăn uống,...
- Ánh sáng và thông gió: Đảm bảo rằng mỗi phòng trong nhà có đủ ánh sáng tự nhiên và thông gió. Bạn có thể sử dụng cửa sổ lớn, giếng trời hoặc hệ thống thông gió nhân tạo.
- Phong thủy: Chú ý đến yếu tố phong thủy khi thiết kế nhà. Lựa chọn hướng nhà, bố trí phòng và đồ đạc một cách hợp lý để mang lại may mắn và tài lộc cho gia chủ.
- Chi phí: Lập dự toán chi phí thiết kế và xây dựng trước khi bắt đầu công việc. Giúp bạn kiểm soát ngân sách và tránh chi phí không mong muốn.
- Nhà thầu uy tín: Khi chọn nhà thầu, hãy xem xét các dự án trước đó của của đơn vị đó, đánh giá uy tín qua phản hồi từ khách hàng trước đó và thảo luận kỹ về điều khoản hợp đồng để đảm bảo rằng cả hai bên hiểu rõ về quyền lợi và trách nhiệm của mình. Giúp bạn có một dự án chất lượng với chi phí hợp lý và đúng tiến độ.
Đến với kiến trúc Vinavic, bạn đang đến gần hơn với ngôi nhà mơ ước, sở hữu không gian sống hoàn mỹ, tuyệt vời. Để nhận được những tư vấn về dịch vụ thiết kế nhà biệt thự sang trọng và đẳng cấp, Quý khách hãy liên hệ ngay với chúng tôi qua số Hotline 0975678930 để được tư vấn toàn diện và nhanh chóng nhất.
BST 1001+ mẫu thiết kế biệt thự đẹp cao cấp sang trọng nhất 2024