• Mẫu nhà 4 tầng 110m2 mặt tiền rộng 7m thiết kế tân cổ điển  BT1500
  • Mẫu nhà 4 tầng 110m2 mặt tiền rộng 7m thiết kế tân cổ điển  BT1500
  • Mẫu nhà 4 tầng 110m2 mặt tiền rộng 7m thiết kế tân cổ điển  BT1500
  • Mẫu nhà 4 tầng 110m2 mặt tiền rộng 7m thiết kế tân cổ điển  BT1500
  • Mẫu nhà 4 tầng 110m2 mặt tiền rộng 7m thiết kế tân cổ điển  BT1500
  • Mẫu nhà 4 tầng 110m2 mặt tiền rộng 7m thiết kế tân cổ điển  BT1500
  • Mẫu nhà 4 tầng 110m2 mặt tiền rộng 7m thiết kế tân cổ điển  BT1500
  • Mẫu nhà 4 tầng 110m2 mặt tiền rộng 7m thiết kế tân cổ điển  BT1500
“Một sai lầm nhỏ cả đời không vui

Bỏ nhiều tiền để xây dựng ngôi nhà, nhưng có thể 1 sai lầm nhỏ mà bạn có được căn nhà không như ý

Thuê thiết kế yếu kém
Hải Phòng

Mẫu nhà 4 tầng 110m2 mặt tiền rộng 7m thiết kế tân cổ điển BT1500

Vinavic - 22/09/2016
3.5-4 tỷ
5119
0
Tổng quan
Chủ đầu tư
Anh Viễn Chị Thu
Địa điểm
Hải Phòng
Các phòng
Tầng 1:Gara,0 1 P.Khách, 1 P.Bếp ăn, 1 P.Ngủ, 1 P.WC. Tầng 2: 2 P.Ngủ (1 Ngủ Kín), 1 P.SHC, 1 WC. Tầng 3: Phòng thờ, 2 P.Ngủ (1 Ngủ Kín), 1 WC. Tầng 4: P.Thể thao, P.Giặt, sân phơi, sân chơi.
Kích thước
7,6m x 16,2m
Đơn vị thực hiện
Vinavic
Năm thi công
2015
  • Mẫu nhà 4 tầng 110m2 mặt tiền rộng 7m thiết kế tân cổ điển BT1500 được thiết kế cho anh Viễn chị Thu - Hải Phòng. Nếu như quý khách hàng đang quan tâm đến phong cách tân cổ điển với diện tích đất từ 8m mặt tiền thì mẫu BT1500 là mẫu nhà đáng lưu tâm. Mẫu biệt thự thể hiện sự giàu có đẳng cấp của gia chủ. Không chỉ là hình sáng hoành tráng đồ sộ bên ngoài. Còn là nội thất tiện nghi sang trọng bên trong nhà. Với việc đề cao không gian sống của mỗi phòng ngủ. Ngôi nhà như một tòa lâu đài của giới quý tộc đáp ứng tốt nhất nhu cầu của mỗi thành viên. Chúng ta cùng tìm hiểu về Mẫu nhà 4 tầng 110m2 mặt tiền rộng 7m thiết kế tân cổ điển BT1500.

Yêu cầu Thiết kế Mẫu nhà 4 tầng 110m2 mặt tiền rộng 7m thiết kế tân cổ điển BT1500

Với lô đất 2 mặt tiền nằm nơi trung tâm thành phố Hải Phòng. Anh Viễn chị Thu mong muốn xây tòa biệt thự đẳng cấp với phong cách tân cổ điển sang trọng. Thêm vào đó anh chị muốn phòng ngủ rộng. Bên trong phòng ngủ trang thiết bị đầy đủ như bồn tắm nằm, hay phòng thay đồ. Cũng như có thêm không gian để tập thể dục tại nhà, hoặc làm phòng đa năng. Mẫu nhà 4 tầng 110m2 mặt tiền rộng 7m thiết kế tân cổ điển BT1500 Mẫu nhà 4 tầng 110m2 mặt tiền rộng 7m thiết kế tân cổ điển BT1500 Căn cứ vào mong muốn của gia chủ, mức đầu tư, phong thủy của gia chủ. Kiến trúc sư tư vấn cho anh chị Mẫu nhà 4 tầng 110m2 mặt tiền rộng 7m thiết kế tân cổ điển BT1500. Cùng với phương án mặt bằng phân chia công năng các phòng trong nhà. Đảm bảo nhu cầu sử dụng, mong muốn của anh chị. Nhằm đáp ứng tối đa mong muốn phù hợp với mức đầu tư của anh. Phương án phối cảnh mặt tiền cũng được Vinavic gửi đến anh. Sau khi anh thống nhất phương án măt bằng. Đây cũng là thời gian quan trọng nhất trong quá trình tư vấn thiết kế. Bởi lẽ ở giai đoạn phương án này anh sẽ hình dung được ngôi biệt thự trong tương lai của mình. Từ cách sắp xếp công năng bên trong đến hình ảnh bên ngoài. Để từ đó xem xét cân nhắc để chỉnh sửa phương án sao cho phù hợp nhất.

Phương án mặt bằng Mẫu nhà 4 tầng 110m2 mặt tiền rộng 7m thiết kế tân cổ điển BT1500

Mặt bằng tổng thểMẫu nhà 4 tầng 110m2 mặt tiền rộng 7m thiết kế tân cổ điển BT1500 Mặt bằng tổng thểMẫu nhà 4 tầng 110m2 mặt tiền rộng 7m thiết kế tân cổ điển BT1500

Mặt bằng tổng thể

Mẫu nhà 4 tầng 110m2 BT1500 được bố trí trên mảnh đất vuông vắn. Nằm ở 2 mặt tiền nơi có giao thông đi lại thường xuyên. Vì thế việc giảm bụi, giảm ồn được kiến trúc sư tính toán đến. Ở mỗi mặt của biệt thự đều được kiến trúc sư bố trí khoảng lùi hợp lý. Để cách nhà một khoảng với đường, làm không gian giao thông. Cũng như có không gian để trồng cây, tiểu cảnh. Có tác dụng trong việc ngăn bụi, tiếng ồn lớn và mát nhà hơn. Trong mặt bằng tổng thể được thể hiện rõ điều này qua hình ảnh cảnh quan sân vườn xung quanh nhà. Mặt bằng tầng 1 Mẫu nhà 4 tầng 110m2 mặt tiền rộng 7m thiết kế tân cổ điển BT1500 Mặt bằng tầng 1 Mẫu nhà 4 tầng 110m2 mặt tiền rộng 7m thiết kế tân cổ điển BT1500

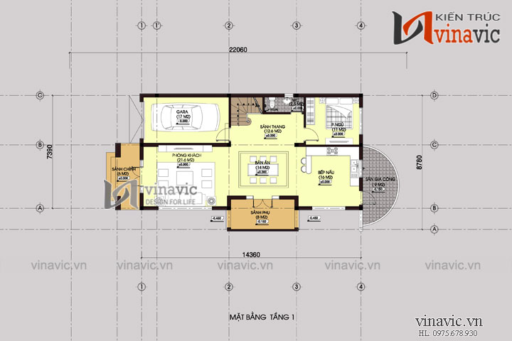
Mặt bằng tầng 1

Mẫu nhà 4 tầng 110m2  BT1500 bao gồm 1 phòng khách, phòng ăn, phòng bếp, phòng ngủ, phòng WC và gara ô tô. Ngôi nhà được chia thành 2 khối nhà  chính với không gian phía bên phải nhà là phòng khách. Tiếp nối phòng khách là bộ bàn ăn sang trọng đặt ở giữa nhà hướng ra sảnh phụ. Cuối cùng là không gian bếp với một quầy bar nhỏ, cửa ngách đi ra sân gia công. Không gian bên kia là gara ô tô, cầu thang và phòng ngủ, phòng WC đăt ở gầm cầu thang. Sắp xếp công năng sinh hoạt mỗi mặt bằng khác nhau phụ thuộc yêu cầu của chủ đầu tư. Cũng như diện tích thiết kế và công năng sử dụng. Nếu khách hàng đang có nhu cầu xây dựng nhà ở chưa biết thiết kế sao cho phù hợp. Hãy liên hệ Vinavic 0975678930 để được hỗ trợ bởi đội ngũ kiến trúc sư nhiều năm kinh nghiệm. Mặt bằng tầng 2 Mẫu nhà 4 tầng 110m2 mặt tiền rộng 7m thiết kế tân cổ điển BT1500 Mặt bằng tầng 2 Mẫu nhà 4 tầng 110m2 mặt tiền rộng 7m thiết kế tân cổ điển BT1500

Mặt bằng tầng 2

Mẫu nhà 4 tầng 110m2  BT1500 gồm 2 phòng ngủ với 1 phòng WC khép kín, phòng WC chung và có 1 phòng sinh hoạt chung. Qua mặt bằng tầng 2 ta thấy sự đẳng cấp của ngôi biệt thự. Không chỉ phối cảnh đẹp sang trọng, đẳng cấp phía ngoài với phong cách tân cổ điển. Mà phía trong với 110m2 được phân chia công năng với 2 phòng ngủ VIP. Ở đó trước tiên là rộng rãi nhất, trang thiết bị nội thất xa xỉ với bồn tắm nằm, bệt, chậu rửa mặt. Và phòng sinh hoạt chung được bố trí giữa nhà là địa điểm sum họp vui vẻ của tất cả  thành viên. Mặt bằng tầng 3 Mẫu nhà 4 tầng 110m2 mặt tiền rộng 7m thiết kế tân cổ điển BT1500 Mặt bằng tầng 3 Mẫu nhà 4 tầng 110m2 mặt tiền rộng 7m thiết kế tân cổ điển BT1500

Mặt bằng tầng 3

Tầng 3 Mẫu nhà 4 tầng 110m2  BT1500 gồm phòng thờ, 2 phòng ngủ (trong đó có 1 phòng có phòng WC khép kín) và phòng WC chung. Ở mặt bằng tầng 3 ngoài không gian phòng ngủ giống tầng 2 thì phòng sinh hoạt chung được bố trí bằng phòng thờ. Và được xây tường xung quanh mang đến không gian trang nghiêm nhất cho phòng thờ. Và ở đây mỗi phòng đều có cửa sổ lớn hoặc ban công mang đến không gian thoáng đãng nhất. Mặt bằng tầng áp mái Mẫu nhà 4 tầng 110m2 mặt tiền rộng 7m thiết kế tân cổ điển BT1500 Mặt bằng tầng áp mái Mẫu nhà 4 tầng 110m2 mặt tiền rộng 7m thiết kế tân cổ điển BT1500

Mặt bằng tầng áp mái

Tầng áp mái Mẫu nhà 4 tầng 110m2  BT1500 gồm phòng thể thao, phòng giặt, sân phơi và sân chơi. Không gian tầng 3 được bố trí linh hoạt. Đáp ứng đầy đủ nhất nhu cầu sử dụng của gia chủ. Cũng như cho thấy đẳng cấp của ngôi biệt thự qua cách sắp xếp mặt bằng công năng của ngôi nhà. Thể hiện tâm huyết của chủ đầu tư và kiến trúc sư. Phối cảnh khác Mẫu nhà 4 tầng 110m2 mặt tiền rộng 7m thiết kế tân cổ điển BT1500 Phối cảnh khác Mẫu nhà 4 tầng 110m2 mặt tiền rộng 7m thiết kế tân cổ điển BT1500

Đặc trưng kiến trúc

Mẫu nhà 4 tầng 110m2  BT1500 được thiết kế với diện tích 110m2 7m mặt tiền với phong cách tân cổ điển sang trọng. Ở đó như một tòa lâu đài vững chãi với khối nhà chắc chắn, bề thế. Sự kết hợp hài hòa giữa khối nhà, mái ngói, hình ảnh trang trí mái cho thấy sự vững chãi vô cùng. Chính là tổ ấm trong mơ của biết bao gia đình. Mẫu nhà 4 tầng 110m2  BT1500 được trang trí với hình ảnh con tiện với đường gờ phào chỉ sắc nét. Chỉ đơn giản là những đường kẻ ngang quanh thân nhà tạo hiệu ứng hình khối ấn tượng. Kèm theo đó là việc ốp trang trí đá mable màu vàng tầng 1, sử dụng hệ cửa gỗ, pano gỗ với màu nâu đỏ sang trọng. Tất cả tạo nên hình ảnh đẹp nhất cho ngôi biệt thự trên nền trời xanh trong.

Gợi ý tìm mẫu nhà: Top 68+ mẫu biệt thự 4 tầng thiết kế Sang Chảnh nhất

Trên đây là Mẫu nhà 4 tầng 110m2  BT1500. Với 4 tầng, 5 phòng ngủ  với tổng diện tích 1100m2 1 sàn đầy đủ tiện ích sử dụng. Mang đến không gian sống tiện nghi cho mọi gia đình. Vậy nếu khách hàng yêu thích mẫu nhà này hoặc có nhu cầu tư vấn thiết kế vui lòng liên hệ hotline: 0975 6789 30 để được tư vấn miễn phí.

Liên hệ tư vấn
Liên hệ tư vấn

Chuyên viên tư vấn sẵn sàng hỗ trợ!

Tư vấn hoàn toàn miễn phí

Hoặc
Gửi yêu cầu tư vấn miễn phí
Đánh giá - Bình luận
0 bình luận, đánh giá về Mẫu nhà 4 tầng 110m2 mặt tiền rộng 7m thiết kế tân cổ điển BT1500
Nhấn vào đây để đánh giá
Thông tin người gửi
Phong thủy
Những gì chúng
tôi thực sự làm

Đáp ứng nhu cầu xây dựng với nhiều phong cách thiết kế đa dạng như : Kiến trúc Cổ điển, Kiến trúc Tân cổ điển, Kiến trúc Hiện đại, Á đông hay truyền thống...Cùng với trang thiết bị hiện đại được trang bị cho công tác khảo sát, đo đạc mặt bằng, diện tích xây dựng nhằm mang đến một không gian sống lý tưởng nhất cho chủ đầu tư.

Những gì chúng tôi thực sự làm
Thư viện video
Thư viện hình ảnh
Cảm nhận khách hàng
Nhà hiện đại 500m2 2 tầng có hồ cá koi và bể bơi ở Mộc Châu Sơn La
Nhà hiện đại 500m2 2 tầng có hồ cá koi và bể bơi ở Mộc Châu Sơn La
Nhà Hiện Đại  3 Tầng 270M2 3 Tầng Mức Đầu Tư 3 Tỷ
Nhà Hiện Đại 3 Tầng 270M2 3 Tầng Mức Đầu Tư 3 Tỷ
Khám Phá "Biệt Thự Hiện Đại" 5 Tầng 15 Tỷ 1000m2 Ở Hạ Long- Quảng Ninh
Khám Phá "Biệt Thự Hiện Đại" 5 Tầng 15 Tỷ 1000m2 Ở Hạ Long- Quảng Ninh
Khám phá biệt thự đẹp nhất Biển Sầm Sơn cùng MC Tú Anh
Khám phá biệt thự đẹp nhất Biển Sầm Sơn cùng MC Tú Anh
Biệt Thự Hiện Đại 3 Tầng 530m2 Chi Phí Đầu Tư 4,5 Tỷ Ở Bình Dương
Biệt Thự Hiện Đại 3 Tầng 530m2 Chi Phí Đầu Tư 4,5 Tỷ Ở Bình Dương
Nhà Biệt Thự Hiện Đại 3 Tầng 486m2 3.5 Tỷ
Nhà Biệt Thự Hiện Đại 3 Tầng 486m2 3.5 Tỷ
Phạm Chí Điện
Tôi rất hài lòng về Vinavic, tư vấn nhiệt tình và hỗ trợ tận tình làm tôi rất ưng ý. Sẽ hợp tác lâu dài cùng Vinavic. Tôi rất hài lòng về Vinavic, tư vấn nhiệt tình và hỗ trợ tận tình làm tôi...
Phạm Chí Điện
Phạm Chí Điện
Phạm Chí Điện
BT1901 - Sơn La
Ngô Hữu Khánh
Tôi rất hài lòng về công trình, Vinavic đáp ứng được yêu cầu về tiến độ, và chất lượng công trình, rất chuyên nghiệp. Tôi rất hài lòng về công trình, Vinavic đáp ứng được yêu cầu về tiến độ, và...
Ngô Hữu Khánh
Ngô Hữu Khánh
Ngô Hữu Khánh
BT1911- Sầm Sơn
Nguyễn Trung Kiên
Chất lượng, Giá trị, Khả năng phản hồi nhanh, Tính chuyên nghiệp, Đúng giờ Chất lượng, Giá trị, Khả năng phản hồi nhanh, Tính chuyên nghiệp, Đúng...
Nguyễn Trung Kiên
Nguyễn Trung Kiên
Nguyễn Trung Kiên
BT1908 - Hạ Long
Trần Văn Trung
Vinavic làm việc rất tốt, thiết kế nhà phù hợp với diện tích sử dụng, thiết kế đẹp, đơn giá hợp lý,so với thị trường thì... Vinavic làm việc rất tốt, thiết kế nhà phù hợp với diện tích sử dụng, thiết...
Trần Văn Trung
Trần Văn Trung
Trần Văn Trung
BT1909 - Nam Định
12+

Năm kinh nghiệm xây dựng

 
100+

Cán bộ, nhân viên có trình độ

 
1K+

Khách hàng

tin yêu

60

Tỉnh thành có công trình Vinavic

Chúng tôi có thể hỗ trợ bạn!
0.28493 sec| 2574.211 kb