• Nhà biệt thự đẹp 3 tầng cổ điển và sang trọng BT1417
  • Nhà biệt thự đẹp 3 tầng cổ điển và sang trọng BT1417
  • Nhà biệt thự đẹp 3 tầng cổ điển và sang trọng BT1417
  • Nhà biệt thự đẹp 3 tầng cổ điển và sang trọng BT1417
“Một sai lầm nhỏ cả đời không vui

Bỏ nhiều tiền để xây dựng ngôi nhà, nhưng có thể 1 sai lầm nhỏ mà bạn có được căn nhà không như ý

Thuê thiết kế yếu kém
Thanh Hóa

Nhà biệt thự đẹp 3 tầng cổ điển và sang trọng BT1417

Vinavic - 20/09/2016
5.5 - 6.5 tỷ
3312
0
Tổng quan
Chủ đầu tư
Ông Chiến
Địa điểm
Thanh Hóa
Các phòng
Tầng 1: 1 P.Khách, 1 P.Bếp ăn, 1 P.Ngủ kín, 1 P.WC. Tầng 2: 3 P.Ngủ kín (1 ngủ master), sảnh SHC. Tầng 3: Phòng thờ, phòng thể thao, kho áp mái, sân chơi.
Kích thước
16m x 10m
Đơn vị thực hiện
Vinavic
Năm thi công
2014

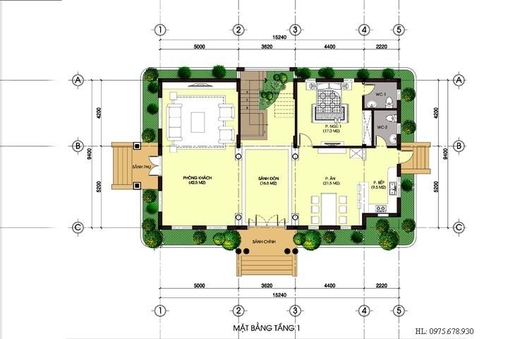
Nhà biệt thự đẹp 3 tầng cổ điển và sang trọng BT1417 Mẫu thiết kế nhà biệt thự đẹp 3 tầng BT1417 được thiết kế theo phong cách cổ điển. Với vị thế đắc đạo nằm ngay tại ngã tư lớn của thành phố Hà Nội, có 2 mặt tiền đều giáp với các con đường đẹp của Thủ đô ngôi nhà trông thật bề thế với đường gờ phào chỉ sắc nét, hệ cột trụ cân xứng, cùng hệ thống hàng rào cửa sắt. Đặc biệt phần hàng rào được trang trí bức tường đá với cột trụ thẳng đứng, khỏe khoắn, vững chãi, thêm vào đó là các chi tiết uốn lượn được thiết kế tỉ mỉ đậm chất kiến trúc Pháp làm nổi bật lên vẻ tinh tế cho tổng thể ngôi nhà. Một góc nhìn khác mẫu nhà biệt thự đẹp 3 tầng BT1417 Mẫu thiết kế nhà biệt thự đẹp 3 tầng BT1417 Một phần ngôi biệt thự dưới nắng chiều, hoa văn cổ điển mang lại cho ngôi biệt thự sự sang trọng nhưng không rối mắt. Hệ cột trụ vuông, tròn được thiết kế tương xứng. Hệ thống vòm uốn lượn nơi ban công, cửa sổ cùng thiết kế cửa kính trong suốt bố trí hoa sắt bên trong vừa an toàn lại đẹp mang đến nét đẹp thanh lịch, trang nhã mà không hào nhoáng, bóng bẩy. Mặt trước mẫu nhà biệt thự đẹp 3 tầng BT1417 Mẫu thiết kế nhà biệt thự đẹp 3 tầng BT1417 Sự tinh tế và lộng lẫy trong lối thiết kế kiến trúc, với các hàng cột chắc khỏe cùng các họa tiết tinh xảo trên đó tạo nên một công trình uy nghi, kiều diễm đang phô diễn vẻ đẹp trước ánh nắng cuối chiều. Buổi tối khi màn đêm buông xuống kết hợp hệ thống đèn treo tường, đèn chùm treo trần cũng như cảnh quan xung quanh mang lại vẻ đẹp ấn tượng cho toàn bộ ngôi nhà. Mặt bằng tầng 1 mẫu nhà biệt thự đẹp 3 tầng BT1417 Mặt bằng tầng 1 mẫu thiết kế nhà biệt thự đẹp 3 tầng BT1417 Mặt bằng tầng 1 được thiết kế bao gồm: 1 sảnh đón, 1 phòng khách, 1 phòng bếp, 1 phòng ăn, 1 phòng ngủ (có phòng WC khép kín), phòng WC. Tầng 1 mẫu nhà đẹp BT1417 được thiết kế đặc trưng cho một gia đình bề thế với phòng khách rộng rãi đầy đủ trang thiết bị tiện nghi trong nhà, không gian không bị chia cắt với phòng ăn và phòng bếp. Giữa phòng ăn và phòng bếp được ngăn cách bởi một bàn bar nhỏ, đảm bảo phong thủy cũng như sự sang trọng của ngôi nhà. Phòng ngủ được bố trí tại một góc ngôi nhà, đảm bảo sự yên tĩnh cần có. Hệ thống cửa sổ khắp nơi cùng tiểu cảnh trong nhà, bồn hoa xung quanh nhà làm cho ngôi nhà ngập tràn ánh sáng, sắc xanh đảm bảo lưu thông không khí và ánh sáng cho toàn bộ ngôi nhà.

Liên hệ tư vấn
Liên hệ tư vấn

Chuyên viên tư vấn sẵn sàng hỗ trợ!

Tư vấn hoàn toàn miễn phí

Hoặc
Gửi yêu cầu tư vấn miễn phí
Đánh giá - Bình luận
0 bình luận, đánh giá về Nhà biệt thự đẹp 3 tầng cổ điển và sang trọng BT1417
Nhấn vào đây để đánh giá
Thông tin người gửi
Phong thủy
Những gì chúng
tôi thực sự làm

Đáp ứng nhu cầu xây dựng với nhiều phong cách thiết kế đa dạng như : Kiến trúc Cổ điển, Kiến trúc Tân cổ điển, Kiến trúc Hiện đại, Á đông hay truyền thống...Cùng với trang thiết bị hiện đại được trang bị cho công tác khảo sát, đo đạc mặt bằng, diện tích xây dựng nhằm mang đến một không gian sống lý tưởng nhất cho chủ đầu tư.

Những gì chúng tôi thực sự làm
Thư viện video
Thư viện hình ảnh
Cảm nhận khách hàng
Nhà hiện đại 500m2 2 tầng có hồ cá koi và bể bơi ở Mộc Châu Sơn La
Nhà hiện đại 500m2 2 tầng có hồ cá koi và bể bơi ở Mộc Châu Sơn La
Nhà Hiện Đại  3 Tầng 270M2 3 Tầng Mức Đầu Tư 3 Tỷ
Nhà Hiện Đại 3 Tầng 270M2 3 Tầng Mức Đầu Tư 3 Tỷ
Khám Phá "Biệt Thự Hiện Đại" 5 Tầng 15 Tỷ 1000m2 Ở Hạ Long- Quảng Ninh
Khám Phá "Biệt Thự Hiện Đại" 5 Tầng 15 Tỷ 1000m2 Ở Hạ Long- Quảng Ninh
Khám phá biệt thự đẹp nhất Biển Sầm Sơn cùng MC Tú Anh
Khám phá biệt thự đẹp nhất Biển Sầm Sơn cùng MC Tú Anh
Biệt Thự Hiện Đại 3 Tầng 530m2 Chi Phí Đầu Tư 4,5 Tỷ Ở Bình Dương
Biệt Thự Hiện Đại 3 Tầng 530m2 Chi Phí Đầu Tư 4,5 Tỷ Ở Bình Dương
Nhà Biệt Thự Hiện Đại 3 Tầng 486m2 3.5 Tỷ
Nhà Biệt Thự Hiện Đại 3 Tầng 486m2 3.5 Tỷ
Phạm Chí Điện
Tôi rất hài lòng về Vinavic, tư vấn nhiệt tình và hỗ trợ tận tình làm tôi rất ưng ý. Sẽ hợp tác lâu dài cùng Vinavic. Tôi rất hài lòng về Vinavic, tư vấn nhiệt tình và hỗ trợ tận tình làm tôi...
Phạm Chí Điện
Phạm Chí Điện
Phạm Chí Điện
BT1901 - Sơn La
Ngô Hữu Khánh
Tôi rất hài lòng về công trình, Vinavic đáp ứng được yêu cầu về tiến độ, và chất lượng công trình, rất chuyên nghiệp. Tôi rất hài lòng về công trình, Vinavic đáp ứng được yêu cầu về tiến độ, và...
Ngô Hữu Khánh
Ngô Hữu Khánh
Ngô Hữu Khánh
BT1911- Sầm Sơn
Nguyễn Trung Kiên
Chất lượng, Giá trị, Khả năng phản hồi nhanh, Tính chuyên nghiệp, Đúng giờ Chất lượng, Giá trị, Khả năng phản hồi nhanh, Tính chuyên nghiệp, Đúng...
Nguyễn Trung Kiên
Nguyễn Trung Kiên
Nguyễn Trung Kiên
BT1908 - Hạ Long
Trần Văn Trung
Vinavic làm việc rất tốt, thiết kế nhà phù hợp với diện tích sử dụng, thiết kế đẹp, đơn giá hợp lý,so với thị trường thì... Vinavic làm việc rất tốt, thiết kế nhà phù hợp với diện tích sử dụng, thiết...
Trần Văn Trung
Trần Văn Trung
Trần Văn Trung
BT1909 - Nam Định
12+

Năm kinh nghiệm xây dựng

 
100+

Cán bộ, nhân viên có trình độ

 
1K+

Khách hàng

tin yêu

60

Tỉnh thành có công trình Vinavic

Chúng tôi có thể hỗ trợ bạn!
0.14774 sec| 2520.023 kb