Chiều cao nhà 2 tầng theo phong thủy

Phong thủy
0
4626
loan - 23/12/2023

Chiều cao nhà 2 tầng theo phong thủy là một trong những yếu tố quan trọng ảnh hưởng đến sự cân bằng năng lượng, sức khỏe và may mắn của cư ngụ. Xây dựng ngôi nhà với chiều cao phù hợp không chỉ tạo nên không gian sống thoải mái mà còn mang lại vượng khí, tài lộc cho gia chủ.

Khái niệm Tam tài và Ngũ hành trong phong thuỷ chiều cao nhà 2 tầng

Chiều cao nhà 2 tầng theo Tam Tài

Phong thủy quan niệm ngôi nhà là một vũ trụ thu nhỏ, tuân theo quy luật Thái Cực (âm dương) và Tam Tài (Thiên - Địa - Nhân). Chiều cao nhà 2 tầng cần cân bằng âm dương, tạo sự hài hòa giữa các tầng. Theo quan niệm phong thủy, một ngôi nhà được chia thành 3 tầng không gian:

  • Tầng Thái Âm: Độ cao khoảng 40cm tính từ mặt sàn nhà lên. Đây là tầng tích tụ khí âm, mang tính chất u tịch, tĩnh lặng.

  • Tầng Thái Dương: Khoảng 60cm chiều cao tính từ trần nhà xuống, hội tụ khí dương, tượng trưng cho sự hoạt động, năng lượng.

  • Tầng Thái Hòa: Là khoảng không gian giao hoà giữa tầng thái âm và thái dương, dao động trong khoảng 1,8m - 2,5m so với bề mặt sàn. Đây là tầng quan trọng nhất, nơi con người sinh hoạt, thở hít, cần cân bằng giữa âm dương.

Tính chiều cao chuẩn của nhà 2 tầng theo phong thuỷ
Tính chiều cao chuẩn của nhà 2 tầng theo phong thuỷ

Xem thêm: Chiều cao trần nhà theo phong thủy theo tiêu chuẩn

Chiều cao nhà 2 tầng theo Ngũ hành

Ngũ hành (Kim - Mộc - Thủy - Hỏa - Thổ) cũng đóng vai trò quan trọng trong việc xác định chiều cao nhà. Ví dụ, nhà hướng Nam nên có chiều cao vừa phải, tránh quá cao, trong khi nhà hướng Bắc có thể cao hơn một chút để đón ánh sáng.

Chiều cao thông thủy nhà 2 tầng 

Chiều cao thông thủy của một tầng nhà đóng vai trò quan trọng trong việc cân bằng khí âm dương trong tầng Thái Hòa. Chiều cao thông thủy phù hợp sẽ tạo luồng khí lưu thông tốt, mang lại sự thoải mái và vượng khí cho gia chủ.

Áp dụng phong thuỷ tính chiều cao thông thuỷ nhà 2 tầng
Áp dụng phong thuỷ tính chiều cao thông thuỷ nhà 2 tầng

Để đảm bảo sự cân bằng giữa khí âm và khí dương, chiều cao thông thủy nhà 2 tầng theo phong thủy phụ thuộc vào diện tích phòng:

  • Diện tích phòng > 30m2: Chiều cao thông thủy lý tưởng dao động từ 3,25m đến 4,1m.

  • Diện tích phòng < 30m2: Chiều cao thông thủy tối thiểu từ 3,15m trở lên.

Những thông số này đảm bảo lưu thông khí tốt trong tầng Thái Hòa, không gây bí bách hay ảnh hưởng đến sức khỏe cư ngụ. 

Các cách xác định chiều cao của nhà 2 tầng theo phong thủy

Dựa theo kích thước lỗ ban

Thước Lỗ Ban là công cụ đo lường truyền thống trong xây dựng, được cho là mang lại kích thước "vàng" (xấp xỉ 1,618) cho công trình, thu hút vận may và tài lộc. Kích thước chiều cao phong thuỷ nhà 2 tầng theo thước Lỗ Ban như sau:

  • Khoảng cách giữa các sàn (khoảng thông thủy): 3,4m (tương đương 42,5 đơn vị Lỗ Ban). Điều này là bởi khoảng cách 34,5cm trên thước Lỗ Ban tương ứng với kích thước "Đại cát", mang lại nhiều may mắn và tài lộc cho gia chủ. Chiều cao lý tưởng cho nhà 2 tầng theo thước Lỗ Ban là bội số của 34,5cm, ví dụ như 34,5cm x 2 = 69cm (6,9m không tính mái).

Đo độ cao nhà 2 tầng theo kích thước đại cát trên thước Lỗ Ban
Đo độ cao nhà 2 tầng theo kích thước đại cát trên thước Lỗ Ban
  • Độ cao từ mặt sàn tới sàn mái: 3m (tương đương 37,5 đơn vị Lỗ Ban)

  • Chiều cao từ vỉa hè đến đáy ban công: 3,5m. Đây là kích thước "vàng" theo phong thuỷ thước Lỗ Ban.

Ngoài ra, thước Lỗ Ban còn cung cấp các kích thước "吉" (cát lợi) và "凶" (hung hại) để gia chủ lựa chọn và tránh phạm phải, đảm bảo sự may mắn và bình an cho ngôi nhà.

Bởi có những quy cách đo khác nhau, không thể kết luận chiều cao chuẩn của nhà 2 tầng theo phong thuỷ chỉ với một số đo. Tuy nhiên, có thể thấy, chiều cao nhà 2 tầng nên dao động ít nhất từ 3,4-4,1m đối với tầng trệt, còn chiều cao tầng 2 xấp sỉ 3,4-3,6m. Số đo này đảm bảo không tạo chêch lệch lớn giữa 2 tầng, cân bằng âm dương và rơi vào cung vượng của thước Lỗ Ban.

Cân nhắc yếu tố thực tế trong thiết kế

Tuy nhiên, việc áp dụng cứng nhắc các quy chuẩn phong thủy hay kích thước của thước Lỗ Ban có thể không phù hợp với thực tế. Một số yếu tố cần cân nhắc thêm khi xác định chiều cao của nhà 2 tầng:

  • Quy định pháp luật: Chiều cao tối đa nhà 2 tầng cần tuân theo quy định của địa phương về khoảng cách lộ giới, chiều cao tối đa của tầng trệt và tầng hầm.

  • Cấu trúc cầu thang: Số bậc cầu thang ảnh hưởng đến chiều cao tầng. Cầu thang dốc thường đòi hỏi tầng cao thấp hơn để đảm bảo di chuyển thoải mái. Nhà 2 tầng thường có số bậc cầu thang từ 13 đến 21 bậc. Chiều cao mỗi bậc nên nằm trong khoảng 16,5cm - 18cm để đảm bảo thoải mái khi di chuyển. Tổng chiều cao cầu thang và chiều cao thông thủy của một tầng cần hài hòa, tránh tình trạng nhà quá cao hoặc quá thấp.

Tính chiều cao nhà 2 tầng theo số bậc thang
Tính chiều cao nhà 2 tầng theo số bậc thang
  • Diện tích nhà: Nhà có diện tích lớn hơn (khoảng 150m2 trở lên) có thể xây cao hơn so với nhà nhỏ (khoảng 100m2) để đảm bảo sự thông thoáng.

  • Phong cách kiến trúc: Nhà 2 tầng hiện đại thường có chiều cao thông thủy thấp hơn nhà theo phong cách tân cổ điển hay cổ điển.

  • Kiến trúc tổng thể: Cần cân nhắc hài hòa giữa các tầng, tránh trường hợp tầng 1 quá cao so với tầng 2 gây mất cân đối.

  • Thông gió và ánh sáng: Chiều cao nhà ảnh hưởng đến khả năng lưu thông không khí và đón ánh sáng tự nhiên. Cần cân bằng giữa yếu tố phong thủy và sự thông thoáng.

  • Ngân sách xây dựng: Chiều cao cao đòi hỏi nhiều vật liệu và nhân công hơn, cần tính toán phù hợp với ngân sách của gia chủ.

  • Khí hậu: Nhà ở khu vực nóng ẩm nên cao hơn nhà ở khu vực lạnh để tạo sự thông thoáng.

  • Theo công năng các phòng: Phòng khách thường cao hơn các phòng khác (3,6m - 5m) để tạo sự thoáng đãng, bề thế. Phòng ngủ và phòng bếp có thể thấp hơn (3m - 3,3m) để ấm cúng hơn.

Chiều cao của nhà ống 2 tầng
Chiều cao của nhà ống 2 tầng
  • Chiều cao cụ thể theo khu vực:

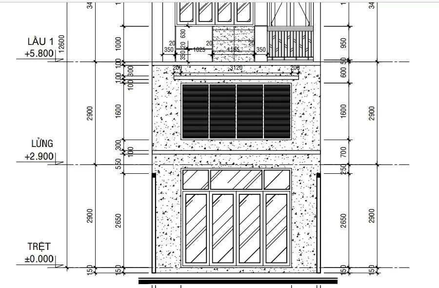
- Nhà phố: Thường là các mẫu nhà ống, có chiều cao và kích thước mặt tiền hạn chế do quy định xây dựng và quỹ đất hẹp. Chiều cao nhà ống 2 tầng khoảng 3,2m đến 3,5m đối với tầng trệt, chiều cao tầng 2 nhà ống là 3m - 3,3m.

Chiều cao nhà phố 2 tầng
Chiều cao nhà phố 2 tầng

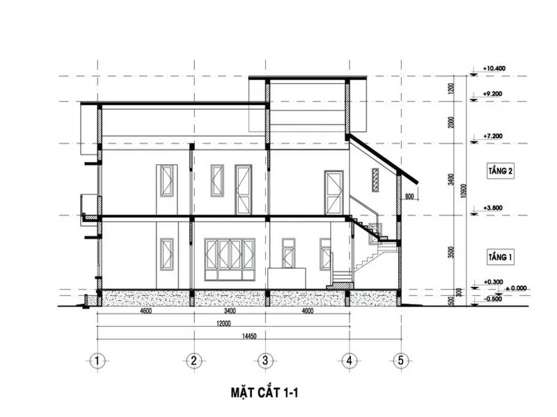
- Biệt thự 2 tầng: Có nhiều tự do hơn về chiều cao. Chiều cao tầng trệt lý tưởng từ 3,5m đến 4m, chiều cao tầng 2 tiêu chuẩn từ 3,3m đến 3,6m.

Tính chiều cao biệt thự 2 tầng
Tính chiều cao biệt thự 2 tầng

Một số lưu ý khi thiết kế chiều cao nhà 2 tầng

  • Tránh xây nhà quá cao hoặc quá thấp, gây mất cân bằng âm dương, ảnh hưởng đến sức khỏe và vận khí.

  • Chú ý đến tỷ lệ giữa chiều cao và chiều rộng của ngôi nhà để đảm bảo tính thẩm mỹ và sự hài hòa.

  • Tận dụng ánh sáng tự nhiên bằng cách bố trí cửa sổ hợp lý, đặc biệt quan trọng với nhà 2 tầng hạn chế chiều cao.

  • Lắp đặt hệ thống thông gió tốt để đảm bảo lưu thông khí trong nhà.

  • Tham khảo ý kiến của kiến trúc sư để thiết kế chiều cao nhà 2 tầng phù hợp nhất với nhu cầu, phong cách và điều kiện của gia chủ.

Xác định chiều cao nhà 2 tầng theo phong thủy là một quá trình cân nhắc nhiều yếu tố, đòi hỏi sự hài hòa giữa thẩm mỹ, yếu tố xây dựng, phong thủy và tính thực tế. Tham khảo ý kiến của chuyên gia kiến trúc và phong thủy là điều nên làm để có được ngôi nhà 2 tầng vừa đẹp, vừa thoải mái, vừa mang lại may mắn và vượng khí cho gia chủ.

Xem thêm: Quy định chiều cao nhà có gác lửng theo tiêu chuẩn hiện nay

By https://vinavic.vn/
https://vinavic.vn/

Đánh giá - Bình luận
0 bình luận, đánh giá về Chiều cao nhà 2 tầng theo phong thủy
Nhấn vào đây để đánh giá
Thông tin người gửi
Phong thủy
Chúng tôi có thể hỗ trợ bạn!
0.92537 sec| 2453.797 kb