6 Cách giác móng và trình tự giác móng trong thi công xây dựng
Giác móng là bước đầu tiên trong xây dựng, quyết định độ chính xác cho toàn bộ công trình. Sai lệch khi giác móng gây lệch trục, móng nứt, chi phí sửa chữa tăng cao. Chủ đầu tư thường lo lắng không biết nên áp dụng phương pháp nào, quy trình ra sao để đảm bảo đúng kỹ thuật. Bài viết chia sẻ 6 cách giác móng và trình tự giác móng phổ biến, giúp bạn kiểm soát chất lượng ngay từ nền móng.
Giác móng là gì?
Giác móng là quá trình chuyển kích thước từ bản vẽ ra thực địa. Kỹ sư xác định tim trục, tim cột, cao độ và hình dáng móng. Công tác này cần độ chính xác cao để các hạng mục tiếp theo không bị lệch, biến dạng hay nứt kết cấu. Với nhà dân dụng, sai số cho phép thường dưới 1cm.
Vai trò của giác móng trong thi công xây dựng
Giác móng là khâu nền tảng trong toàn bộ quy trình thi công. Đây là bước định vị chính xác tim trục, cao độ và kích thước móng theo bản vẽ. Nếu giác móng chuẩn, công trình sẽ đảm bảo kết cấu ổn định, thi công thuận lợi, tiết kiệm chi phí.
Ngược lại, giác móng sai khiến móng lệch tim, cột không thẳng trục, tường dễ nứt, sàn bị võng. Chủ đầu tư phải tốn thêm thời gian, chi phí để sửa chữa, thậm chí phải phá bỏ và làm lại. Rủi ro này không chỉ ảnh hưởng đến tài chính mà còn gây mất an toàn trong quá trình sử dụng công trình.
6 Cách Giác Móng Phổ Biến Nhất Hiện Nay
Giác móng theo định lý Pythagoras
Kỹ sư tính toán theo công thức a² + b² = c² để tạo góc vuông. Cách này phù hợp với nhà phố, nhà hình chữ nhật. Ưu điểm: thao tác nhanh, sai số nhỏ.

Giác móng bằng tam giác 3-4-5
Đo ba cạnh theo tỷ lệ 3:4:5 để xác định góc vuông. Phương pháp phổ biến, áp dụng nhiều trong nhà dân dụng.

Giác móng bằng máy toàn đạc điện tử
Máy toàn đạc định vị trục móng theo tọa độ GPS. Phương pháp chính xác tuyệt đối, thường dùng cho công trình cao tầng, quy mô lớn.

Giác móng bằng máy kinh vĩ
Dụng cụ đo góc dựng trục vuông góc, kiểm tra khoảng cách. Giải pháp tối ưu khi không có máy toàn đạc.

Giác móng bằng dây thép căng
Căng dây xác định trục và mép móng. Phù hợp nhà ở nhỏ, chi phí thấp. Nhược điểm: phụ thuộc tay nghề thợ.

Giác móng theo giao hội cạnh
Kỹ sư dựa vào khoảng cách từ các mốc cố định để xác định vị trí góc móng. Cách này thích hợp khi mặt bằng có nhiều vật cản.
Trình Tự Giác Móng Đúng Kỹ Thuật & Chi Tiết Từng Bước
Công tác chuẩn bị trước khi giác móng nhà
- Cọc sắt đầu sơn đỏ: 04 đoạn
- Công nhân: 03 thợ
- Thước mét: 01 cái
- Dây dù hoặc dây cước: 01 cuộn
Bước 1: Chuẩn bị mốc và hiện trường
- Xác định mốc tọa độ, mốc cao độ theo bản vẽ. Dọn dẹp mặt bằng, san phẳng nền đất, bảo vệ mốc chuẩn.
Bước 2: Định vị trục chính
- Chuyển kích thước từ bản vẽ ra hiện trường. Căng dây xác định tim cột, tim tường, đánh dấu trục chuẩn.
Bước 3: Kiểm tra độ vuông góc
- Áp dụng phương pháp 3-4-5 hoặc Pythagoras để kiểm tra. Đo chéo hai đường so sánh, sai số phải nằm trong giới hạn cho phép.
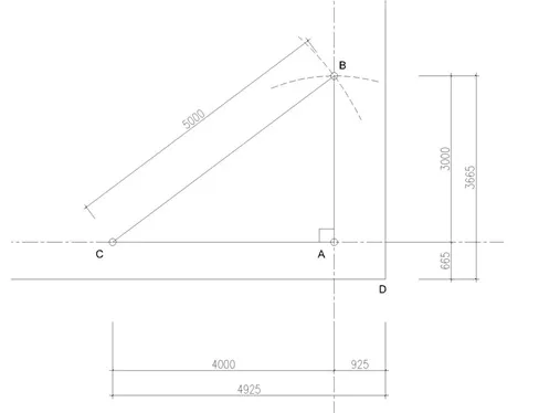
Giả sử chọn điểm D là góc vuông chuẩn của ô đất. Từ D, lùi theo 2 phương x và y lần lượt 925mm và 665mm để xác định điểm A (góc nhà). Đóng cọc sắt tại A, quay cung tròn bán kính 4m và 3m. Chọn điểm C trên cung 4m, cách rào 665mm, rồi đóng cọc. Từ C, quay cung bán kính 5m; từ A, quay cung bán kính 3m. Giao điểm 2 cung là điểm B. Khi đó AC = 4m, AB = 3m, BC = 5m, đảm bảo tam giác ABC vuông tại A theo định lý Pythagoras. Dựa vào AB và AC xác định các trục nhà. Cuối cùng, kiểm tra kích thước trục theo bản vẽ và so sánh độ dài 2 đường chéo để chắc chắn công trình vuông vắn, đúng thiết kế.
Bước 4: Xác định mép móng
- Đo từ tim trục ra mép móng theo thiết kế. Đóng cọc giới hạn, ghi rõ ký hiệu để thuận tiện cho quá trình đào đất.
Bước 5: Hoàn thiện định vị
- Kỹ sư kiểm tra toàn bộ kích thước, cao độ, điều chỉnh nếu phát hiện sai lệch. Ghi nhận lại các mốc chuẩn.
Bước 6: Bàn giao nghiệm thu
- Lập biên bản nghiệm thu công tác giác móng. Đây là cơ sở để tiến hành đào đất, thi công cốt thép và đổ bê tông móng.
Những sai lầm thường gặp khi giác móng
Trong thực tế thi công, nhiều công trình bị sai lệch ngay từ khâu giác móng. Những lỗi phổ biến gồm:
- Đặt mốc định vị không cố định: mốc dễ xê dịch do tác động bên ngoài, gây sai số khi đào móng và dựng cột.
- Bỏ qua bước kiểm tra độ vuông góc: dẫn đến móng lệch trục, tường không thẳng, khó lắp dựng kết cấu thép.
- Sử dụng phương pháp thủ công thiếu độ chính xác: chỉ ước lượng bằng kinh nghiệm mà không áp dụng máy đo hoặc phương pháp 3-4-5.
- Không đối chiếu bản vẽ thiết kế: thi công theo cảm tính, sai khác so với hồ sơ đã phê duyệt.
- Thiếu giám sát kỹ thuật: không có kỹ sư nghiệm thu, dẫn đến sai sót kéo dài đến các hạng mục tiếp theo.
Giải Đáp Thắc Mắc Khi Giác Móng
- Nếu giác móng sai, có phải phá dỡ không?
Có. Nếu sai số vượt chuẩn, bắt buộc điều chỉnh hoặc phá dỡ để tránh ảnh hưởng toàn bộ kết cấu.
- Có cần giám sát khi giác móng?
Cần. Chủ đầu tư nên có kỹ sư giám sát để kiểm tra và nghiệm thu trước khi thi công móng.
- Phương pháp nào chính xác nhất?
Máy toàn đạc điện tử có độ chính xác cao nhất, nhưng chi phí cao. Với nhà dân dụng, tam giác 3-4-5 vẫn đảm bảo yêu cầu kỹ thuật.
Giác móng là bước khởi đầu quan trọng, quyết định sự chính xác và độ bền vững của cả công trình. Một sai lệch nhỏ trong giai đoạn này có thể dẫn đến lệch trục, nứt tường, thậm chí phải phá dỡ. Do đó, gia chủ cần đơn vị thi công uy tín, có kỹ sư chuyên môn và quy trình kiểm soát chặt chẽ.
Tại Vinavic, chúng tôi cung cấp dịch vụ thiết kế – thi công xây nhà trọn gói, cam kết chuẩn xác ngay từ công tác giác móng. Đội ngũ kỹ sư giàu kinh nghiệm cùng hệ thống thiết bị hiện đại giúp công trình đạt đúng tiêu chuẩn kỹ thuật, tối ưu chi phí, rút ngắn tiến độ. Vinavic đồng hành từ thiết kế bản vẽ, thi công móng, hoàn thiện kết cấu đến bàn giao nhà, giúp khách hàng yên tâm có được tổ ấm bền vững và thẩm mỹ.
Liên hệ Vinavic ngay hôm nay để được tư vấn chi tiết và nhận giải pháp xây nhà trọn gói an toàn, chuẩn kỹ thuật, tối ưu chi phí.