Chia sẻ 11 bản vẽ thiết kế điện nhà biệt thự chuẩn kỹ thuật & phong thủy

Cẩm nang xây nhà
0
576
Nhung - 17/10/2025

Trong mỗi công trình kiến trúc, bản vẽ thiết kế điện nhà biệt thự đóng vai trò như “bộ não kỹ thuật” của toàn ngôi nhà. Đây là nơi thể hiện rõ cách thiết kế hệ thống điện, lắp đặt hệ thống chiếu sáng, ổ cắm, thiết bị điện, cùng đường ống cấp thoát nước được bố trí khoa học và an toàn. Một hồ sơ thiết kế đầy đủ không chỉ bao gồm sơ đồ kỹ thuật, chi tiết lắp đặt, mà còn thể hiện rõ cách tiếp địa, hệ thống thông gió, và sự liên kết giữa các đường ống cấp nước – thoát nước trong quá trình thi công.

Chính nhờ bản vẽ chi tiết ấy, mọi hạng mục đều được kiểm soát chặt chẽ, đảm bảo công trình vận hành ổn định, thẩm mỹ và tối ưu cho cuộc sống lâu dài của gia chủ.

Xem thêm: 

Thiết kế nội thất Tân cổ điển biệt thự 3 tầng 1 hầm (CĐT Mrs Út - Hà Nội) NT2349

Chia sẻ 11 bản vẽ thiết kế điện nhà biệt thự chuẩn kỹ thuật & phong thủy
Chia sẻ 11 bản vẽ thiết kế điện nhà biệt thự chuẩn kỹ thuật & phong thủy

Tầm quan trọng của bản vẽ thiết kế điện nhà biệt thự

Trong thiết kế kiến trúc biệt thự, bản vẽ thiết kế điện là phần không thể thiếu. Nó giúp đảm bảo hệ thống điện được bố trí khoa học, an toàn và thẩm mỹ. Một bản vẽ thiết kế đầy đủ không chỉ thể hiện sơ đồ đi dây, vị trí ổ cắm, công tắc, thiết bị chiếu sáng mà còn liên quan đến việc thiết kế hệ thống tiếp địa, hệ thống cấp thoát nước, và các chi tiết lắp đặt kỹ thuật khác trong ngôi nhà.

Tầm quan trọng của bản vẽ thiết kế điện nhà biệt thự
Tầm quan trọng của bản vẽ thiết kế điện nhà biệt thự

Trong quá trình thi công, bản vẽ điện giúp kỹ sư và đội ngũ lắp đặt hệ thống thực hiện chính xác từng hạng mục. Sự phối hợp giữa bản vẽ kiến trúc, hồ sơ thiết kế điện và bản vẽ kỹ thuật là yếu tố then chốt đảm bảo công trình vận hành ổn định, bền vững theo thời gian.

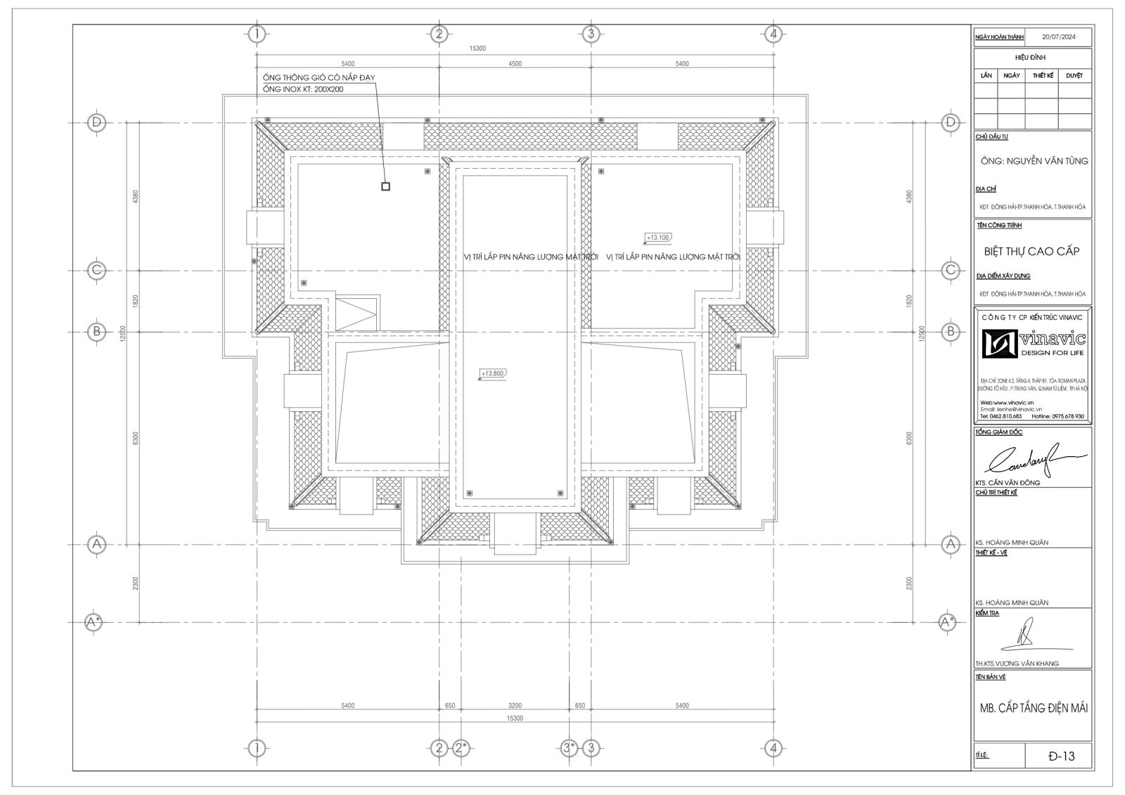
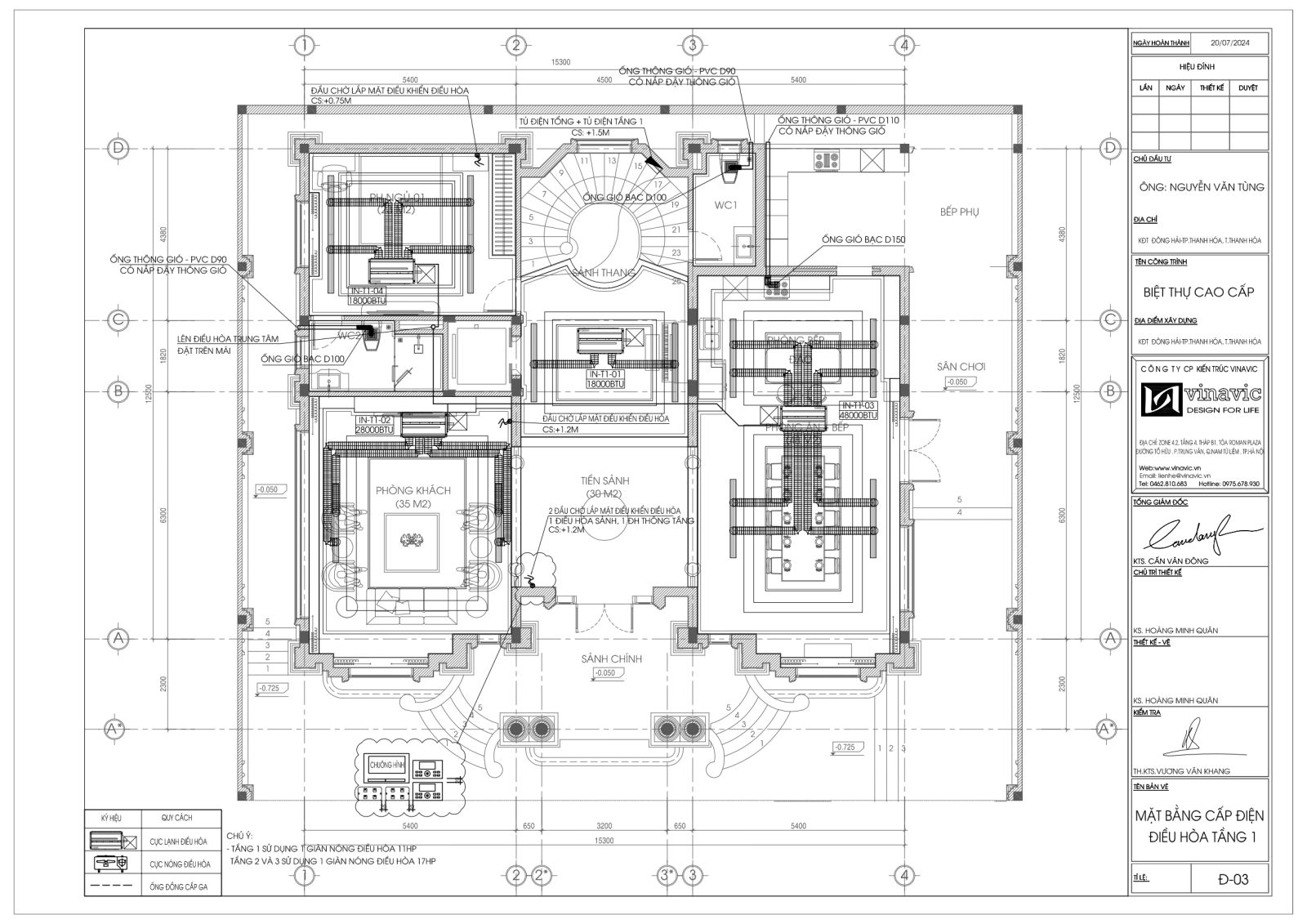
Bản vẽ thiết kế điện nhà biệt thự bao gồm những gì?

Một bản vẽ thiết kế điện biệt thự đầy đủ thường bao gồm:

  • Sơ đồ nguyên lý hệ thống điện tổng thể, thể hiện toàn bộ mạch điện chiếu sáng, thiết bị gia dụng, điều hòa, máy bơm, bình nóng lạnh.
  • Bản vẽ chi tiết lắp đặt từng tầng, từng không gian, chỉ rõ vị trí ổ cắm, công tắc, tủ điện, đèn, quạt và các thiết bị điện khác.
  • Thiết kế hệ thống điện kết hợp cùng hệ thống thông gió, hệ thống cấp nước và đường ống thoát nước để đảm bảo đồng bộ kỹ thuật trong toàn bộ ngôi nhà.
Bản vẽ thiết kế điện nhà biệt thự bao gồm những gì?
Bản vẽ thiết kế điện nhà biệt thự bao gồm những gì?

Hệ thống tiếp địa và sơ đồ đấu nối an toàn, giúp bảo vệ thiết bị điện khỏi rò rỉ và chập cháy.

Tìm hiểu thêm:

1001+ mẫu thiết kế biệt thự đẹp sang trọng nhất

Tiêu chuẩn kỹ thuật trong thiết kế hệ thống điện biệt thự

Trong quá trình thiết kế hệ thống điện, kỹ sư Vinavic luôn tuân thủ nghiêm ngặt các tiêu chuẩn kỹ thuật về tải điện, tiết diện dây dẫn, độ sụt áp và khả năng chịu tải. Việc bố trí chiếu sáng, ổ cắm, công tắc và đường ống cấp nước đều được tính toán tỉ mỉ, phù hợp với công năng và thẩm mỹ không gian.

Bên cạnh đó, hồ sơ thiết kế cũng thể hiện rõ cách lắp đặt hệ thống điện ngầm, thiết bị chiếu sáng trang trí, đường ống thoát nước và hệ thống thông khí sao cho hài hòa với tổng thể kiến trúc.

Tiêu chuẩn kỹ thuật trong thiết kế hệ thống điện biệt thự
Tiêu chuẩn kỹ thuật trong thiết kế hệ thống điện biệt thự

Lợi ích khi có bản vẽ điện chuyên nghiệp

Một bản vẽ thiết kế điện chuyên nghiệp giúp việc thi công trở nên dễ dàng và chính xác hơn. Chủ đầu tư nắm rõ toàn bộ sơ đồ kỹ thuật, các vị trí thiết bị, ổ cắm, công tắc, chiếu sáng… từ đó thuận tiện cho việc giám sát, bảo trì sau này.

Ngoài ra, sự phối hợp giữa thiết kế hệ thống điện và hệ thống cấp thoát nước tạo nên một công trình hoàn chỉnh – vừa đảm bảo công năng, vừa nâng cao tính thẩm mỹ của biệt thự.

Lợi ích khi có bản vẽ điện chuyên nghiệp
Lợi ích khi có bản vẽ điện chuyên nghiệp

Xem thêm:

Dịch vụ thi công trọn gói chuẩn thiết kế tại Vinavic

Hồ sơ thiết kế điện tại Vinavic

Hồ sơ thiết kế điện của Vinavic luôn được trình bày rõ ràng, đầy đủ, thể hiện chi tiết lắp đặt, sơ đồ hệ thống điện, đường ống cấp nước, đường ống thoát nước và các hạng mục kỹ thuật liên quan. Mọi bản vẽ đều được kiểm tra cẩn thận trong quá trình thiết kế và bàn giao cho chủ đầu tư.

Vinavic không chỉ thiết kế hệ thống điện mà còn đồng bộ cùng kiến trúc, nội thất, hệ thống thông gió, hệ thống cấp thoát nước – đảm bảo công trình đạt chất lượng cao nhất cả về kỹ thuật lẫn thẩm mỹ.

Một bản vẽ thiết kế điện biệt thự chuẩn mực là nền tảng cho một ngôi nhà thông minh, an toàn và sang trọng.

Hồ sơ thiết kế điện tại Vinavic
Hồ sơ thiết kế điện tại Vinavic

Từ sơ đồ kỹ thuật, vị trí thiết bị, chiếu sáng, ổ cắm đến từng đường ống cấp nước, thoát nước – tất cả đều được tính toán cẩn trọng, hợp lý và thẩm mỹ.

Hãy để Vinavic đồng hành cùng bạn trong việc thiết kế hệ thống điện hoàn hảo, mang đến sự an tâm và đẳng cấp cho ngôi nhà của mình.

 

LIÊN HỆ TƯ VẤN CÙNG KTS VINAVIC

Hotline/ZALO: 0975678930

Email: tuvankientrucvinavic@gmail.com

Địa chỉ: Tháp B1, Tòa Roman Plaza, Tố Hữu, Nam Từ Liêm, Hà Nội.

By https://vinavic.vn/
https://vinavic.vn/

Đánh giá - Bình luận
0 bình luận, đánh giá về Chia sẻ 11 bản vẽ thiết kế điện nhà biệt thự chuẩn kỹ thuật & phong thủy
Nhấn vào đây để đánh giá
Thông tin người gửi
Phong thủy
Chúng tôi có thể hỗ trợ bạn!
0.91701 sec| 2414.898 kb