Cấu tạo kết cấu móng băng nhà 2 tầng kèm bản vẽ chi tiết

Cẩm nang xây nhà
0
617
Nhung - 26/06/2025

Bạn đang chuẩn bị xây nhà 2 tầng và băn khoăn không biết nên chọn loại móng nào để vừa chắc chắn, vừa tiết kiệm? Câu trả lời có thể chính là móng băng lựa chọn được nhiều gia chủ và kỹ sư tin dùng nhờ sự cân bằng giữa hiệu quả và chi phí. Bài viết này Vinavic sẽ chia sẻ đến bạn móng băng nhà 2 tầng. Bạn hãy cùng xem ngay nhé!

Cấu tạo kết cấu móng băng nhà 2 tầng kèm bản vẽ chi tiết

Móng băng là gì?

Móng băng là loại móng nông được thiết kế chạy liên tục dưới các tường chịu lực hoặc cột, có thể theo phương ngang hoặc dọc tùy theo mặt bằng công trình. Với nhà phố – vốn có diện tích nhỏ, chiều cao nhiều tầng và được xây san sát nhau – móng băng trở thành lựa chọn phổ biến nhờ khả năng chịu tải tốt, thi công linh hoạt và tối ưu chi phí.

Móng băng là gì?

Vì sao móng băng là giải pháp phù hợp cho nhà 2 tầng?

Nhà 2 tầng là loại hình nhà ở phổ biến tại đô thị và nông thôn, yêu cầu phần móng đủ chắc chắn để chịu tải trọng lớn hơn nhà cấp 4, ngoài ra vẫn cần tiết kiệm chi phí xây dựng. Trong trường hợp này, móng băng là lựa chọn tối ưu nhờ khả năng phân bố tải đều, phù hợp với địa chất phổ biến tại Việt Nam và dễ dàng thi công công trình xây dựng nên thường được sử dụng phổ biến.

Ưu điểm khi dùng móng băng cho nhà 2 tầng

Chịu tải tốt cho công trình quy mô vừa:

Móng băng giúp phân tán lực từ toàn bộ công trình xuống nền đất, giảm nguy cơ lún lệch cục bộ.

Phù hợp với đa số nền đất tại Việt Nam:

Kể cả đất thịt, đất pha cát hoặc nền đất yếu trung bình, móng băng đều có thể xử lý được nếu thi công đúng kỹ thuật, đảm bảo chất lượng của công trình xây dựng.

Các loại móng băng và cấu tạo

Tiết kiệm chi phí hơn so với móng cọc:

Không cần ép cọc sâu hoặc sử dụng máy móc lớn, móng băng tiết kiệm vật tư và thời gian trong quá trình thi công.

Thi công nhanh, kiểm soát chất lượng dễ dàng:

Dây là loại móng có kết cấu đơn giản, rõ ràng, giúp kiểm tra cốt thép, lớp bê tông lót, đổ móng thuận tiện và chính xác. 

Thi công nhanh, kiểm soát chất lượng dễ dàng

Kết cấu móng băng nhà 2 tầng

Bản móng (đế móng): Rộng 70–120 cm, dày khoảng 25–35 cm tùy tải trọng và nền đất.

Dầm móng (đà kiềng): Kết nối các cột, chịu lực ngang, ngăn lún lệch giữa các khu vực.

Thép móng: Dùng thép D12, D14, D16 đặt đôi theo chiều dài móng.

Lớp bê tông lót móng: Dày ~10cm, bảo vệ thép và chống ẩm từ đất.

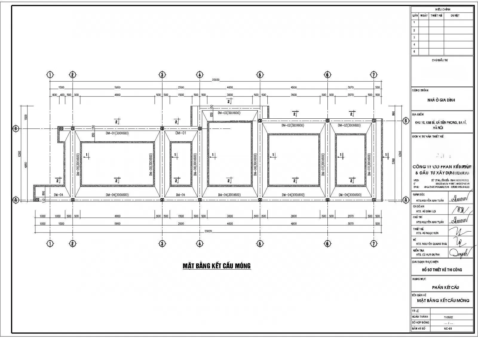
Bản vẽ móng băng nhà 2 tầng

Bản vẻ mặt bằng kết cấu móng băng
Mặt cắt móng băng
Mặt bằng móng băng
Mặt bằng dầm móng

Lưu ý khi thi công móng băng nhà 2 tầng

Bạn cần lưu ý một số thông tin khi thiết kế và thi công móng băng cho nhà 2 tầng để đảm bảo chất lượng công trình như sau:

  • Khảo sát địa chất kỹ lưỡng để xác định chiều sâu đặt móng và phương án gia cố nếu cần.
  • Chống thấm và thoát nước móng phải được xử lý ngay từ đầu, tránh ngập úng sau này.
  • Tuân thủ đúng bản vẽ kỹ thuật, không tùy tiện thay đổi chiều rộng hoặc thép móng.
  • Nên chọn đơn vị thi công uy tín, có kinh nghiệm thực tế và giám sát kỹ thuật rõ ràng.

Móng băng nhà 2 tầng là giải pháp hiệu quả và phổ biến cho công trình nhà ở 2 tầng. Với thiết kế hợp lý, thi công đúng chuẩn và vật liệu đảm bảo, móng băng sẽ tạo nền tảng vững chắc cho ngôi nhà của bạn suốt nhiều thập kỷ.

>> Xem thêm:

Tiêu chuẩn đánh giá chất lượng công trình xây dựng nhà ở

Giải Pháp Chống Thấm Cho Nhà Mái Bằng Hiệu Quả Nhất

Nguyên nhân và cách xử lý sàn bê tông mới đổ bị nứt hiệu quả

By https://vinavic.vn/
https://vinavic.vn/

Đánh giá - Bình luận
0 bình luận, đánh giá về Cấu tạo kết cấu móng băng nhà 2 tầng kèm bản vẽ chi tiết
Nhấn vào đây để đánh giá
Thông tin người gửi
Phong thủy
Chúng tôi có thể hỗ trợ bạn!
0.99429 sec| 2412.813 kb