2024: Chi phí xây nhà chữ L cấp 4 mái nhật là bao nhiêu?

Cẩm nang xây nhà
0
1268
Thu - 09/07/2024

Những mẫu nhà cấp 4 mái nhật chữ L sở hữu nhiều ưu điểm vượt trội khi tận dụng được tối đa diện tích xây dựng, không gian sống thông thoáng tiện nghi đảm bảo trọn vẹn công năng sinh hoạt gia đình. Bên cạnh đó, Chi phí xây nhà chữ L cấp 4 mái nhật 2024 là bao nhiêu cũng được nhiều người thắc mắc. Hãy cùng Vinavic tìm câu trả lời qua bài viết dưới đây nhé....

 Chi phí xây nhà chữ L cấp 4 mái nhật 2024 là bao nhiêu
Chi phí xây nhà chữ L cấp 4 mái nhật 2024 là bao nhiêu

Đặc điểm nhà chữ L cấp 4 mái nhật

Hệ mái nhật mang lại cảm giác thoáng mát

Mái nhà kiểu Nhật có độ dốc lớn, giúp thoát nước nhanh chóng, tránh tình trạng ứ đọng nước mưa. Ngoài ra, xu hướng xây nhà thế hệ mới thường được thiết kế nhiều cửa sổ hơn, giúp đón gió và ánh sáng tự nhiên, mang lại cảm giác thoáng mát, thoải mái cho không gian sống.

Kiểu nhà cấp 4 chữ L tận dụng tối đa diện tích 

Mẫu nhà cấp 4 chữ L phù hợp với những mảnh đất nhỏ hẹp, giúp tối ưu hóa diện tích sử dụng. Phần khuyết góc có thể được sử dụng làm sân vườn, tiểu cảnh hoặc nơi để xe. Ngoài ra, kiến trúc chữ L độc đáo, mới lạ, mang đến vẻ đẹp hiện đại và thu hút cho ngôi nhà.

Nhà cấp 4 chữ L mái nhật tận dụng mọi ngóc ngách diện tích xây dựng
Nhà cấp 4 chữ L mái nhật tận dụng mọi ngóc ngách diện tích xây dựng

Đáp ứng đa dạng công năng

Phù hợp với nhu cầu sinh hoạt của nhiều gia đình, từ gia đình nhỏ đến gia đình có nhiều thành viên. Thiết kế chữ L giúp ngôi nhà đón gió và ánh sáng tự nhiên từ nhiều hướng, tạo cảm giác thông thoáng và mát mẻ.

Chi phí xây dựng nhà chữ L cấp 4 mái nhật năm 2024

Hiện nay, đơn giá xây dựng hoàn thiện trên 1 mét vuông trên thị trường dao động từ 5,500,000đ - 7,500,000đ.

Để quý khách hàng có thể tự tính chi phí và dự trù ngân sách cho ngôi nhà cấp 4 chữ L mái nhật của mình, Vinavic sẽ cung cấp cách tính đơn giản mà mọi người có thể tham khảo.

Chi phí xây dựng mẫu nhà cấp 4 mái nhật chữ L 100m2  = Diện tích xây dựng x Đơn giá xây trọn gói
  • Phần móng đơn chiếm 30% diện tích sàn = 100 x 30% = 30m2
  • Sàn chiếm 100% = 100m2
  • Sảnh chiếm 10% = 10m2
  • Phần mái nhật chiếm 50% = 100 x 50% = 50m2

Tổng diện tích xây dựng nhà cấp 4 mái nhật chữ L: 190m2

Cuối cùng, quý khách lấy chi phí xây nhà trọn gói nhân cho tổng diện tích, cụ thể: 5.500.000 x 190 = 1.045.000.000đ.

Vậy chi phí xây nhà nhà cấp 4 mái nhật chữ L dao động khoảng 1 tỷ đồng và có thể thay đổi phụ thuộc vào từng thời điểm thi công, vị trí, tình hình thực tế giá cả nguyên vật liệu cũng như giá nhân công từng địa phương.

Tham khảo những mẫu nhà mái nhật hình chữ L cấp 4 

Nhà cấp 4 mái nhật chữ L Châu Âu hiện đại 

Thiết kế nhà cấp 4 kiểu Châu Âu hiện đại gây ấn tượng bởi các chi tiết hoa văn, phào chỉ mềm mại, uyển chuyển. Kiến trúc mái nhật kết hợp chi tiết trang trí thanh thoát mang đến vẻ đẹp sang trọng, quý phái cho ngôi nhà.

Nhà mái nhật chữ L cấp 4 phong cách Châu Âu hiện đại sang trọng
Nhà mái nhật chữ L cấp 4 phong cách Châu Âu hiện đại sang trọng

Nhà cấp 4 mái nhật chữ L Tân Cổ Điển

Các chi tiết kiến trúc được đánh giá cao như cửa kính, bàn ghế gỗ hoặc đèn chùm góp phần tạo nên phong cách Tân Cổ Điển độc đáo cho mẫu nhà cấp 4 mái nhật chữ L.

Mẫu nhà cấp 4 chữ L mái nhật Tân Cổ Điển rộng rãi thông thoáng
Mẫu nhà cấp 4 chữ L mái nhật Tân Cổ Điển rộng rãi thông thoáng

Thiết kế nhà chữ L cấp 4 mái nhật 3 phòng ngủ

Kiến trúc nhà chữ L kết hợp với mặt tiền được trang bị nhiều cửa kính lớn, nhiều chi tiết cây cảnh và mái hiên rộng. Ngoại thất không cầu kỳ mà được ốp gạch giả đá vô cùng sang trọng. Công năng 3 phòng ngủ tiện nghi đáp ứng nhu cầu sinh hoạt gia đình khoảng 4-5 thành viên.

Nhà mái nhật cấp 4 chữ L 3 phòng ngủ tiện nghi
Nhà mái nhật cấp 4 chữ L 3 phòng ngủ tiện nghi

Thiết kế nhà mái nhật chữ L cấp 4 có sân rộng

Thiết kế của ngôi nhà này được xây dựng với kiểu dáng hiện đại, tối ưu hóa không gian sống và tạo cảm giác rộng rãi cho người ở. Phòng ngủ thường được thiết kế gần cửa sổ, rộng 12 - 15m2, mở ra sân vườn hoặc ban công, tạo không gian thoáng đãng và gần gũi với thiên nhiên.

Nhà cấp 4 mái nhật chữ L có sân rộng được nhiều người yêu thích
Nhà cấp 4 mái nhật chữ L có sân rộng được nhiều người yêu thích

Nhà cấp 4 chữ L mái nhật kết hợp nhà thờ tổ ở sân vườn

Việc xây thêm nhà thờ tổ trong khuôn viên nhà cấp 4 mái nhật cho phép con cháu trong nhà thể hiện lòng thành kính chân quý với tổ tiên. Màu mái nhà thờ tổ cùng tone với màu mái nhà chính, tạo sự gắn kết trong từng khối nhà.

Nhà mái nhật cấp 4 chữ L kết hợp nhà thờ tổ trang trọng
Nhà mái nhật cấp 4 chữ L kết hợp nhà thờ tổ trang trọng

Nhà cấp 4 mái nhật chữ L có hồ bơi

Ngôi nhà cấp 4 chữ L có hồ bơi thỏa mãn yêu cầu nghỉ ngơi sang chảnh của gia chủ. Đây là mẫu nhà nghỉ dưỡng hết sức thư giãn, có giá trị cao, được nhiều gia đình quan tâm.

Thiết kế nhà mái nhật cấp 4 chữ L có hồ bơi nghỉ dưỡng
Thiết kế nhà mái nhật cấp 4 chữ L có hồ bơi nghỉ dưỡng

Gợi ý bản vẽ thiết kế nhà cấp 4 mái nhật chữ L

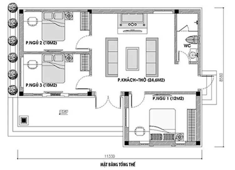
Bản vẽ nhà cấp 4 chữ L mái nhật 100m2 3 phòng ngủ
Bản vẽ nhà cấp 4 chữ L mái nhật 100m2 3 phòng ngủ
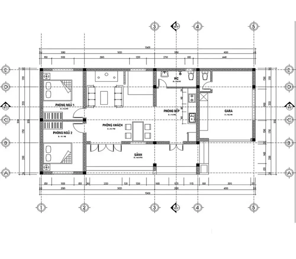
Bản vẽ phối cảnh nhà mái nhật cấp 4 chữ L 2 phòng ngủ
Bản vẽ phối cảnh nhà mái nhật cấp 4 chữ L 2 phòng ngủ

Hi vong qua bài viết này bạn đã sự trù được mức tài chính xây cũng như chọn lựa được mẫu nhà cấp 4 mái nhật chữ L phù hợp với sở thích cá nhân cũng như điều kiện gia đình mình. Chúc bạn sẽ sớm hoàn thành được tổ ấm hạnh phúc trong tương lai.

Nhà cấp 4 mái nhật 500 triệu được thiết kế như nào?

35 Mẫu nhà cấp 4 mái nhật hiện đại HOT nhất 2024

30 mẫu nhà cấp 4 mái nhật đơn giản, dễ xây dựng

By https://vinavic.vn/
https://vinavic.vn/

Đánh giá - Bình luận
0 bình luận, đánh giá về 2024: Chi phí xây nhà chữ L cấp 4 mái nhật là bao nhiêu?
Nhấn vào đây để đánh giá
Thông tin người gửi
Phong thủy
Chúng tôi có thể hỗ trợ bạn!
1.37991 sec| 2424.359 kb