Bản vẽ kiến trúc là gì? vai trò & thành phần chi tiết trong xây dựng

Kiến trúc
0
235
Nhung - 29/08/2025

Một bản vẽ kiến trúc nhà đẹp đôi khi không chỉ dừng lại ở những đường nét kỹ thuật, mà chính là sự khởi đầu cho một kiệt tác sống động. Mẫu biệt thự Tân cổ điển 4 tầng này là minh chứng rõ ràng: từ ý tưởng trên giấy, từng chi tiết phào chỉ, mái vòm đến khoảng xanh đều được hiện thực hóa thành một không gian sang trọng, tinh tế và đầy cảm xúc.

Bản vẽ kiến trúc là gì? vai trò & thành phần chi tiết trong xây dựng
Bản vẽ kiến trúc là gì? vai trò & thành phần chi tiết trong xây dựng

>> Tìm hiểu thêm:

Mẫu biệt thự 4 tầng tân cổ điển có hầm, bể bơi 247m2 BT2254

Thiết kế biệt thự phố hiện đại 3 tầng 4 phòng ngủ 132m2 (11x12m) BT2395

Mẫu thiết kế biệt thự 3 tầng chữ L tân cổ điển 11m x 11m BT2383

Vì sao để có một ngôi nhà đẹp cần có bản vẽ kiến trúc

Một ngôi nhà đẹp không chỉ đơn giản là xây lên bằng gạch, xi măng và sơn màu. Đằng sau mỗi công trình hoàn hảo đều có sự góp mặt thầm lặng nhưng vô cùng quan trọng của bản vẽ kiến trúc – “bộ não” định hình toàn bộ không gian sống.

Hình dung ngôi nhà trước khi xây

Bản vẽ kiến trúc cho phép gia chủ nhìn thấy toàn bộ hình khối, bố cục, công năng ngôi nhà ngay từ khi chưa thi công. Nhờ đó, mọi ý tưởng và mong muốn được cụ thể hóa rõ ràng, tránh tình trạng xây xong mới nhận ra không ưng ý.

Hình dung ngôi nhà trước khi xây nếu có bản vẽ kiến trúc
Hình dung ngôi nhà trước khi xây nếu có bản vẽ kiến trúc

Đảm bảo công năng khoa học

Mỗi không gian trong nhà – từ phòng khách, bếp ăn đến phòng ngủ, sân vườn – đều cần sắp xếp hợp lý, thuận tiện cho sinh hoạt. Bản vẽ kiến trúc chính là chìa khóa để kết nối các không gian, tối ưu diện tích và tạo sự thoải mái cho gia đình.

Định hướng thẩm mỹ và phong cách

Một ngôi nhà mang dáng vẻ hiện đại, tân cổ điển hay luxury sang trọng… tất cả đều bắt nguồn từ nét vẽ đầu tiên. Bản vẽ kiến trúc giúp định hình phong cách rõ ràng, thể hiện cá tính riêng của gia chủ, đồng thời nâng tầm giá trị ngôi nhà.

Vì sao để có một ngôi nhà đẹp cần có bản vẽ kiến trúc
Vì sao để có một ngôi nhà đẹp cần có bản vẽ kiến trúc

Tiết kiệm chi phí và thời gian thi công

Có bản vẽ chi tiết, đội ngũ thi công dễ dàng triển khai đúng tiến độ, hạn chế sai sót, tránh lãng phí vật liệu. Gia chủ cũng kiểm soát được chi phí, chủ động điều chỉnh để phù hợp với ngân sách mà vẫn giữ được vẻ đẹp mong muốn.

Bảo đảm phong thủy, sự bền vững lâu dài

Không chỉ đẹp về hình thức, một bản vẽ kiến trúc chuẩn còn tính toán yếu tố phong thủy, kết cấu và độ bền vững. Đây chính là nền tảng để ngôi nhà không chỉ đẹp ngay lúc mới hoàn thiện, mà còn trường tồn cùng thời gian.

Có thể nói, một bản vẽ kiến trúc khoa học và sáng tạo chính là bước khởi đầu của một ngôi nhà đẹp, tiện nghi và chuẩn phong thủy. Muốn “giấc mơ tổ ấm” thành hiện thực, hãy bắt đầu từ bản vẽ.

Bản vẽ kiến trúc giúp bảo đảm phong thủy, sự bền vững lâu dài
Bản vẽ kiến trúc giúp bảo đảm phong thủy, sự bền vững lâu dài

Vai trò và thành phần của bản vẽ kiến trúc trong xây dựng

Vai trò của bản vẽ kiến trúc

  • Kim chỉ nam trong xây dựng: Bản vẽ kiến trúc là nền tảng để định hướng toàn bộ quá trình thiết kế và thi công. Nó giúp chủ đầu tư, kiến trúc sư và đội ngũ thi công có cái nhìn tổng thể, thống nhất.

  • Tiết kiệm thời gian & chi phí: Có bản vẽ chi tiết sẽ hạn chế sai sót trong quá trình thi công, tránh phát sinh không cần thiết.

  • Thể hiện mong muốn của gia chủ: Bản vẽ là nơi cụ thể hóa những ý tưởng, phong cách sống và nhu cầu của gia chủ thành hình ảnh khoa học, có thể thi công.

  • Đảm bảo chất lượng & thẩm mỹ: Vai trò quan trọng nhất là giúp ngôi nhà đạt được sự cân đối, hài hòa với môi trường xung quanh, đồng thời bền vững về kết cấu.

Vai trò của bản vẽ kiến trúc
Vai trò của bản vẽ kiến trúc

Thành phần của bản vẽ kiến trúc

Một hồ sơ thiết kế kiến trúc đầy đủ thường bao gồm:

  • Mặt bằng tổng thể: Thể hiện vị trí ngôi nhà trên lô đất, mối liên hệ với cảnh quan và công trình xung quanh.

  • Mặt bằng các tầng: Trình bày bố trí phòng ốc, cầu thang, cửa, công năng sử dụng trong từng tầng.

  • Mặt đứng: Cho thấy hình dáng, tỉ lệ, phong cách kiến trúc của ngôi nhà khi nhìn từ bên ngoài.

  • Mặt cắt: Giúp đánh giá chiều cao, độ dày sàn, các chi tiết bên trong mà nhìn ngoài không thấy.

  • Chi tiết kiến trúc: Bao gồm cửa, lan can, mái, cầu thang, trần… đảm bảo thi công đúng kỹ thuật và thẩm mỹ.

  • Các bản vẽ phối cảnh 3D (nếu có): Hình ảnh trực quan giúp chủ đầu tư dễ hình dung ngôi nhà sau khi hoàn thiện.

Thành phần của bản vẽ kiến trúc
Thành phần của bản vẽ kiến trúc

Lưu ý khi thiết kế kiến trúc nhà đẹp

Khi thiết kế kiến trúc nhà đẹp bạn cần lưu ý một số thông tin dưới đây:

  • Cầu thang cần thiết kế hợp lý, vừa tiện lợi vừa tăng tính thẩm mỹ.
  • Một hồ sơ thiết kế rõ ràng do các kiến trúc sư có chuyên môn thực hiện sẽ giúp quá trình thi công thuận lợi.
  • Chủ đầu tư nên tham gia trao đổi, đánh giá thường xuyên để được hỗ trợ kịp thời.
  • Thiết kế cần tính đến môi trường xung quanh, đảm bảo khoa học cũng như tiết kiệm thời gian.
  • Quá trình thiết kế có vai trò quan trọng trong việc đảm bảo chất lượng và giúp bạn sở hữu ngôi nhà đẹp, bền vững.
Lưu ý khi thiết kế kiến trúc nhà đẹp
Lưu ý khi thiết kế kiến trúc nhà đẹp

Những bản vẽ kiến trúc nhà đẹp khoa học

Bản vẽ xây dựng nhà 2 tầng mặt tiền 7m

Bản vẽ xây dựng nhà 2 tầng mặt tiền 7m được thiết kế với phong cách hiện đại, đảm bảo tính thẩm mỹ và công năng tối ưu. Mặt tiền rộng 7m tạo lợi thế về sự thông thoáng, giúp ngôi nhà đón sáng và gió tự nhiên tốt hơn. Bên trong, không gian được phân chia khoa học với phòng khách, bếp ăn, phòng ngủ và các khu sinh hoạt chung sắp xếp hợp lý, phù hợp nhu cầu của gia đình nhiều thế hệ. Đây là lựa chọn lý tưởng cho những chủ đầu tư mong muốn sở hữu một ngôi nhà tiện nghi, đẹp mắt và có giá trị bền vững theo thời gian

Bản vẽ xây dựng nhà 2 tầng mặt tiền 7m
Bản vẽ xây dựng nhà 2 tầng mặt tiền 7m

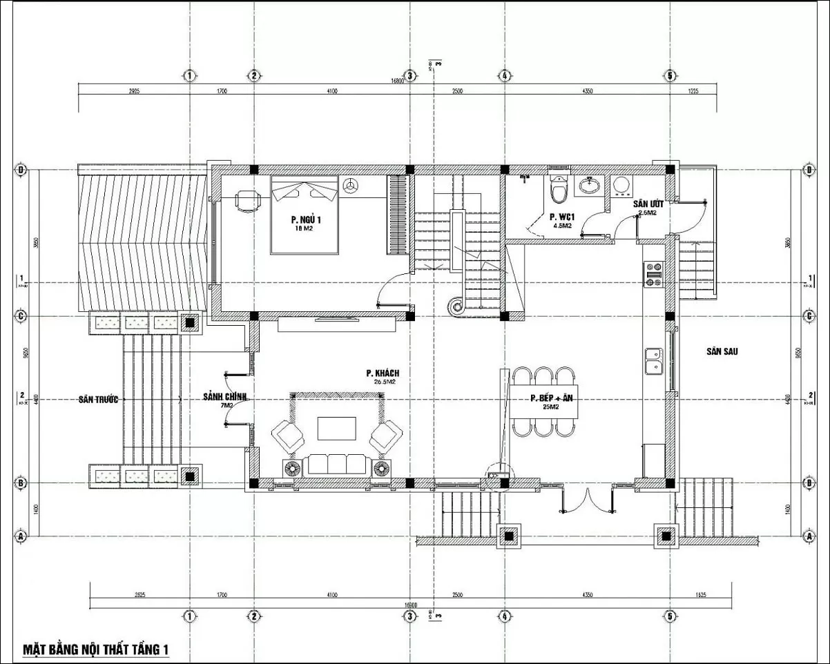
Bản vẽ kiến trúc nhà 2 tầng 3 phòng ngủ

Bản vẽ kiến trúc nhà 2 tầng 3 phòng ngủ được thiết kế hài hòa giữa thẩm mỹ và công năng, phù hợp với nhu cầu sinh hoạt của gia đình 3 – 5 thành viên. Tầng 1 thường bố trí phòng khách rộng rãi kết hợp bếp ăn tiện nghi, trong khi tầng 2 là không gian nghỉ ngơi riêng tư với 3 phòng ngủ thoáng đãng. Thiết kế khoa học giúp tận dụng tối đa diện tích, đồng thời mang lại sự tiện lợi và thoải mái trong quá trình sử dụng. Đây là lựa chọn phổ biến cho các chủ đầu tư muốn xây dựng một ngôi nhà vừa hiện đại, vừa ấm cúng, đảm bảo công năng lâu dài. 

Bản vẽ kiến trúc nhà 2 tầng 3 phòng ngủ
Bản vẽ kiến trúc nhà 2 tầng 3 phòng ngủ

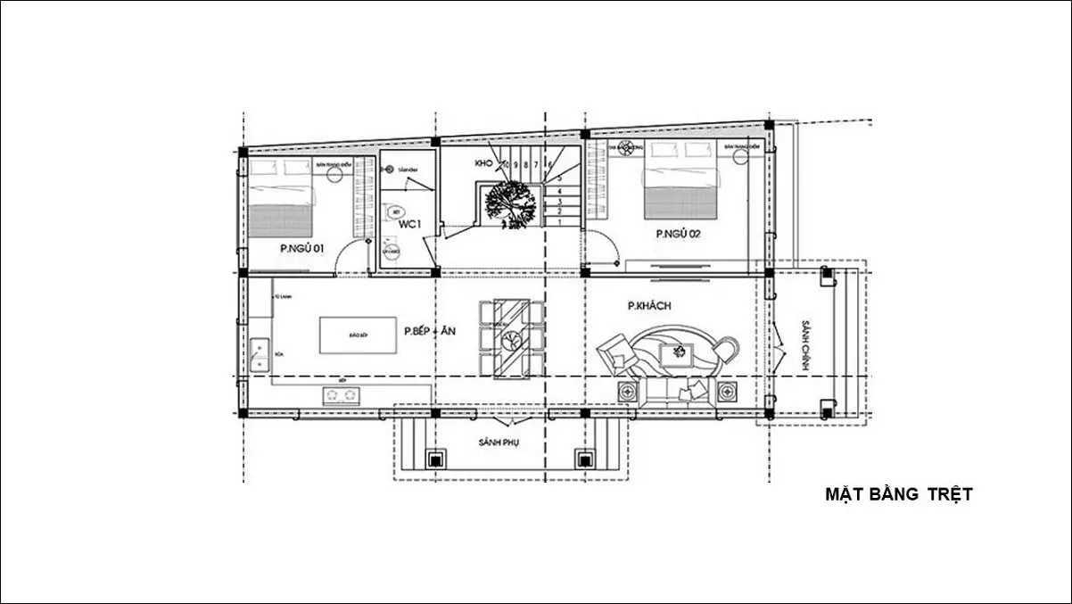
Bản vẽ xây dựng nhà 2 tầng 4 phòng ngủ

Mẫu thiết kế nhà 4 phòng ngủ rộng rãi là mơ ước của nhiều gia đình hiện nay. Bạn có thể tham khảo ngay bản vẽ này nhé. 

Bản vẽ xây dựng nhà 2 tầng 4 phòng ngủ
Bản vẽ xây dựng nhà 2 tầng 4 phòng ngủ

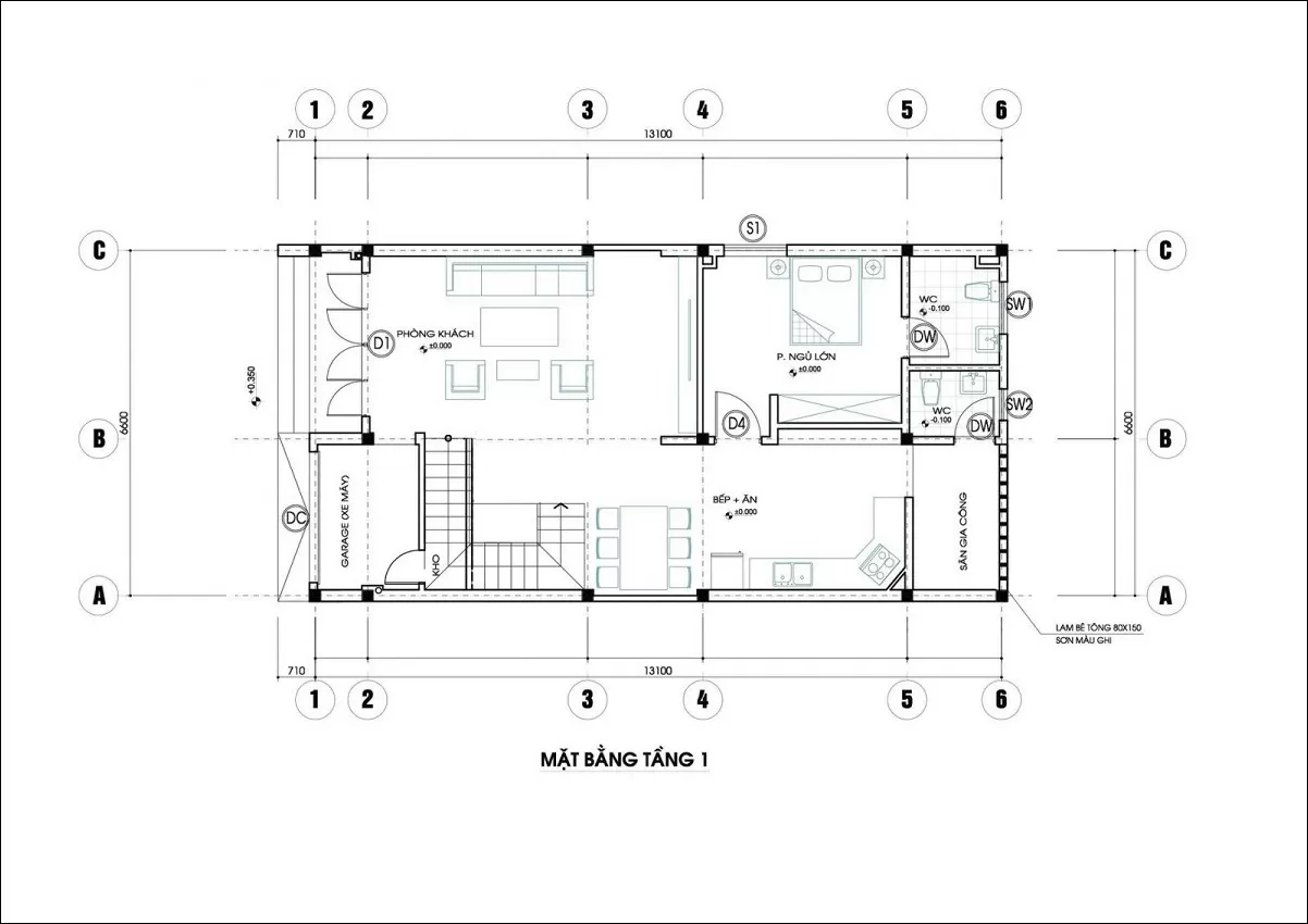
Bản vẽ xây dựng nhà 2 tầng 5 phòng ngủ

Tầng 1 chủ yếu tập trung vào tiếp đón khách và nấu nướng chung. Khu vực rộng nhất thường là phòng khách. Có 2 phòng ngủ kín ở sau phòng sinh hoạt chung, nối liền là WC. Tầng 2 được thiết kế phục vụ cho sinh hoạt cá nhân. Trong mỗi góc nhà là 3 phòng ngủ, bên cạnh mỗi phòng là nhà vệ sinh nhỏ để đảm bảo sinh hoạt cá nhân được riêng tư. 

Bản vẽ xây dựng nhà 2 tầng 5 phòng ngủ
Bản vẽ xây dựng nhà 2 tầng 5 phòng ngủ

Đơn vị thiết kế kiến trúc nhà đẹp uy tín - chuyên nghiệp

Trong lĩnh vực thiết kế và xây dựng nhà ở, Vinavic được biết đến là một trong những đơn vị tiên phong mang đến những công trình kiến trúc sang trọng, khoa học và bền vững. Với đội ngũ các kiến trúc sư có chuyên môn cao, Vinavic luôn chú trọng từ khâu lên ý tưởng, triển khai hồ sơ thiết kế đến quá trình thi công, đảm bảo mỗi công trình đều đạt được chất lượng tối ưu.

Chúng tôi hiểu rằng, một bản vẽ kiến trúc nhà đẹp không chỉ dừng lại ở yếu tố thẩm mỹ mà còn là sự kết hợp hài hòa giữa công năng, môi trường xung quanh và mong muốn của chủ đầu tư. Chính vì vậy, Vinavic luôn đồng hành, hỗ trợ khách hàng trong mọi giai đoạn, từ tư vấn giải pháp, đánh giá phương án đến giám sát, để mỗi công trình hoàn thiện đều xứng đáng với kỳ vọng.

Với triết lý thiết kế “kiến tạo không gian sống – nâng tầm giá trị”, Vinavic đã và đang khẳng định vai trò quan trọng của mình trong việc đem đến cho khách hàng những ngôi nhà không chỉ đẹp mà còn trường tồn cùng thời gian.

Một ngôi nhà đẹp không chỉ là nơi an cư mà còn là sự khẳng định gu thẩm mỹ và đẳng cấp của gia chủ. Với kinh nghiệm, chuyên môn và tâm huyết, Vinavic cam kết đồng hành cùng bạn trong suốt quá trình thiết kế và thi công, để mỗi công trình đều trở thành niềm tự hào bền vững theo thời gian.

Nếu bạn đang tìm kiếm một đơn vị thiết kế kiến trúc uy tín – chuyên nghiệp, hãy để Vinavic là người bạn đồng hành đáng tin cậy.

Đơn vị thiết kế kiến trúc nhà đẹp uy tín - chuyên nghiệp
Đơn vị thiết kế kiến trúc nhà đẹp uy tín - chuyên nghiệp

CÔNG TY CP TƯ VẤN KIẾN TRÚC VINAVIC

  • Địa chỉ: Tháp B1, Tòa Roman Plaza, Tố Hữu, Nam Từ Liêm, Hà Nội.
  • Hotline: 0975.678.930 / 0982.303.304
  • Website: vinavic.vn
  • Email: tuvankientrucvinavic@gmail.com

>> Xem thêm: 

Nhà 1 tầng hiện đại , nhà 2 tầng hiện đạinhà 3 tầng hiện đại , mẫu nhà hiện đại

By https://vinavic.vn/
https://vinavic.vn/

Đánh giá - Bình luận
0 bình luận, đánh giá về Bản vẽ kiến trúc là gì? vai trò & thành phần chi tiết trong xây dựng
Nhấn vào đây để đánh giá
Thông tin người gửi
Phong thủy
Chúng tôi có thể hỗ trợ bạn!
2.24537 sec| 2452.805 kb