Top 55+ mẫu nhà ống 6mx13m đẹp & bản vẽ chi tiết
Nhà ống 6x13m là một trong những loại nhà phổ biến hiện nay, đặc biệt là tại các thành phố lớn. Với diện tích nhỏ gọn nhưng vẫn đáp ứng được nhu cầu của một gia đình trung bình, nhà ống 6x13m đã trở thành sự lựa chọn hàng đầu cho nhiều người. Bài viết này sẽ giúp bạn hiểu rõ hơn về những điểm cần lưu ý khi thiết kế nhà mặt tiền 6m
Top mẫu nhà ống 6mx13m đẹp & bản vẽ chi tiết
Mẫu nhà ống 6x13m
Thiết kế của ngôi nhà 2 tầng, bao gồm 1 tầng tum, mang đến vẻ đẹp đặc trưng của kiến trúc hiện đại. Sử dụng những khối hình vuông vức và các chất liệu thông thường như bê tông, gỗ, và kính, ngôi nhà này đóng góp vào việc tạo nên một không gian sống rộng lớn và tràn ngập ánh sáng tự nhiên, mang đến cảm giác thoải mái và tươi mới.



Mẫu nhà tân cổ điển phong cách Pháp mặt tiền 6m
Tận dụng ưu thế vị trí thuận lợi ngay tại mặt đường lớn, kiến trúc sư đã có ý tưởng sang phối cảnh nhà phố tân cổ điển. Với hệ thống cột tròn được trang trí họa tiết tinh tế tại chân và đầu cột, đi kèm với lan can sắt phun sơn tĩnh điện có hoa văn uốn lượng, tạo nên diện mạo mới lạ cho dự án.
Sự thanh thoát của tông màu trắng làm chủ đạo, kết hợp với đường gờ chạy dọc trên bức tường và việc sử dụng đá ốp tường màu be tại tầng trệt cùng với khối ban công rộng được thiết kế tinh tế và khoa học, mang lại không gian sang trọng cho mô hình nhà phố thời thượng.





Mẫu nhà 2 tầng 6x13m
Mặt tiền của mẫu nhà ống 2 tầng kích thước 6x13m được thiết kế theo phong cách hiện đại, đặc trưng bởi những hình khối và đường nét vuông vắn, tạo nên một không gian phóng khoáng và trẻ trung. Khu vực trước sân nhà được để trống để tạo không gian cho việc trồng cây, mang đến sự trong lành từ thiên nhiên cho căn nhà. Sự sáng tạo này cùng với việc sử dụng chủ yếu các vật liệu xây dựng như kính, gỗ, và đá ốp, đã làm cho ngôi nhà trở nên gần gũi và thân thiện hơn.




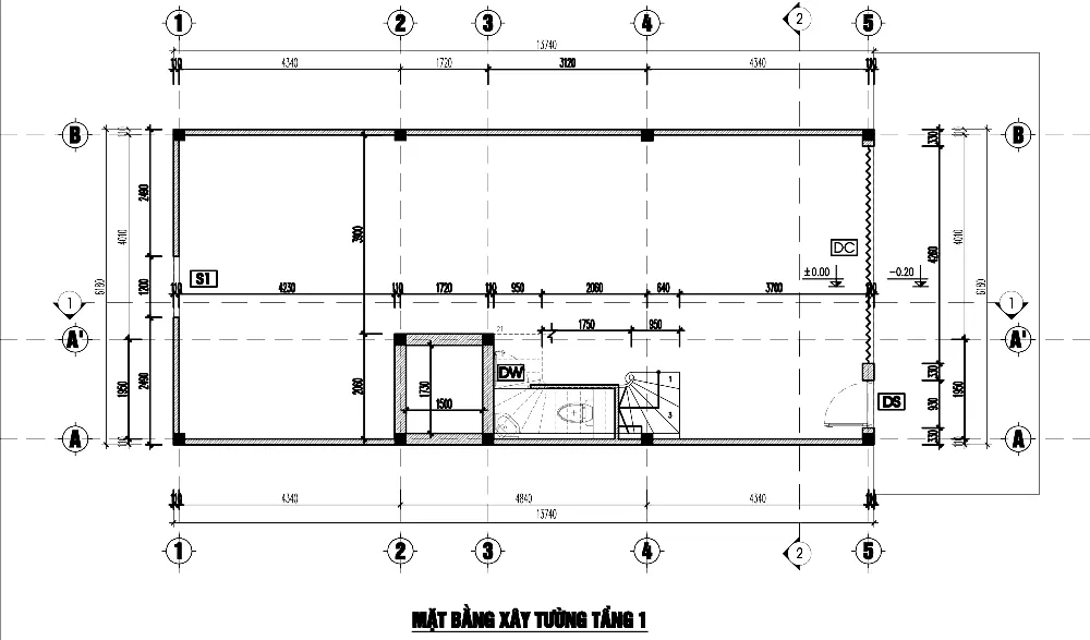
Thiết kế nhà 6x13 có thang máy
Ngôi nhà phố có tổng diện tích xây dựng là 84m2, với mặt tiền rộng 6m và chiều sâu 14m. Diện tích xây dựng khá rộng, đặc biệt với vị trí trên mặt phố lớn, ngoài mục đích chủ yếu phục vụ cho sinh hoạt gia đình, chủ nhân còn có kế hoạch cho thuê hai tầng dưới nhằm tối ưu hóa thu nhập.
Đội ngũ kiến trúc sư đã tận dụng một cách khéo léo để đáp ứng mọi nhu cầu của gia chủ, tạo ra một bản thiết kế vô cùng hợp lý. Trong đó, thang máy chở khách được đặt ở giữa nhà, song song với thang bộ, nhằm tối ưu hóa sự thuận tiện trong việc di chuyển. Thiết kế này không chỉ đảm bảo tiện ích mà còn tạo điểm nhấn cho ngôi nhà với sự hiện đại và tinh tế.



.jpg.webp)



Mẫu thiết kế nhà 3 tầng 6x13m
Mẫu nhà 3 tầng có diện tích 6x13m, hướng Tây, được thiết kế với mặt tiền đẹp và hiệu quả chắn nắng. Vấn đề của ánh nắng mặt trời luôn là mối lo lớn mỗi khi mùa hè đến. Đối với các căn nhà hướng Tây, việc đối mặt với ánh nắng mỗi buổi chiều thường mang lại trải nghiệm khá khó chịu và không thoải mái. Do đó, tìm kiếm các giải pháp chống nắng trở thành một nhiệm vụ cần thiết cho mọi gia đình.

Mẫu nhà mái lệch hiện đại 6mx13m đẹp
Mặt tiền rộng 6m được thiết kế với sự nổi bật và sang trọng. Toàn bộ mặt trước tầng 1 được trang trí với đá ốp, tạo độ sáng bóng và tinh tế. Các viên đá được sắp xếp một cách có hệ thứ tự, tạo nên một bức tranh động mắt và độc đáo. Cửa chính được thiết kế lớn, tạo điểm nhấn và mở ra không gian nội thất.



Những điểm cần lưu ý khi thiết kế nhà mặt tiền 6m với diện tích 6x13m
Khi bắt đầu thiết kế căn nhà 6x13m, gia chủ cần xác định rõ mục đích sử dụng của căn nhà, số lượng thành viên trong gia đình và sở thích của mỗi người. Điều này giúp bạn chọn được phong cách thiết kế và sắp xếp nội thất phù hợp, tạo không gian sống thoải mái và tiện nghi.
Phong cách thiết kế
Phong cách thiết kế là yếu tố quan trọng đầu tiên cần lưu ý khi thiết kế nhà mặt tiền 6m với diện tích 6x13m. Bạn có thể lựa chọn từ nhiều phong cách khác nhau như hiện đại, tân cổ điển, tối giản, công nghiệp, vintage,.. Tuy nhiên, để có được căn nhà đẹp và hài hòa, bạn nên chọn phong cách phù hợp với sở thích và nhu cầu của gia đình.
Nếu bạn thích sự sang trọng và tinh tế, phong cách hiện đại hoặc tân cổ điển là lựa chọn phù hợp. Nếu bạn yêu thích sự đơn giản và gần gũi, phong cách tối giản hoặc vintage là sự lựa chọn tuyệt vời. Ngoài ra, bạn cũng có thể kết hợp các phong cách để tạo nên một không gian độc đáo và đầy cá tính cho căn nhà của mình.
Xem thêm: Gợi ý 21 mẫu nhà mặt tiền 6m 2 tầng đẹp nhất hiện nay
Tận dụng ánh sáng tự nhiên
Ánh sáng là yếu tố quan trọng trong việc thiết kế không gian sống. Vì vậy, khi thiết kế nhà mặt tiền 6m với diện tích 6x13m, bạn cần tận dụng tối đa ánh sáng tự nhiên để giúp căn nhà trở nên sáng sủa và thoáng mát hơn.
Để tạo được không gian sống rộng rãi và thoải mái, bạn nên sử dụng nhiều cửa sổ và cửa kính. Điều này giúp ánh sáng tự nhiên có thể lọt vào từ nhiều hướng khác nhau, tạo cảm giác rộng rãi và thông thoáng cho căn nhà. Ngoài ra, việc sử dụng cửa kính còn giúp tối ưu hóa không gian và tạo cảm giác gần gũi với thiên nhiên.
Sử dụng màu sắc hợp lý
Màu sắc cũng là một yếu tố quan trọng trong việc thiết kế nhà mặt tiền 6m với diện tích 6x13m. Bạn nên sử dụng những gam màu sáng như trắng, xám, vàng nhạt, xanh lá cây,... để tạo cảm giác rộng rãi và thoáng mát cho căn nhà. Tránh sử dụng những gam màu tối như đen, nâu đậm hay xám đen vì chúng sẽ khiến căn nhà trông nhỏ hơn và bí bách.
Ngoài ra, bạn cũng có thể kết hợp nhiều gam màu khác nhau để tạo nên sự phong phú và đa dạng cho không gian sống. Tuy nhiên, cần lưu ý không nên sử dụng quá nhiều màu sắc khác nhau vì sẽ làm cho căn nhà trở nên rối mắt và thiếu sự hài hòa.
Sắp xếp nội thất hợp lý
Sắp xếp nội thất là một yếu tố quan trọng trong việc tạo nên không gian sống tiện nghi và thoải mái. Khi thiết kế nhà mặt tiền 6m với diện tích 6x13m, bạn cần lưu ý sắp xếp nội thất một cách khoa học và gọn gàng để tạo không gian rộng rãi và thoải mái.
Tránh bài trí quá nhiều đồ đạc không cần thiết trong không gian sống. Bạn nên chọn những món đồ có tính thẩm mỹ cao và sử dụng các giải pháp lưu trữ thông minh để tiết kiệm diện tích. Ngoài ra, bạn cũng có thể tận dụng các không gian nhỏ như gác lửng, gầm giường hay không gian dưới cầu thang để làm kho chứa đồ hoặc nơi thư giãn.
Cách sử dụng ánh sáng và không gian để làm tăng diện tích nhà 6x13m
Để tạo nên một căn nhà 6x13m đẹp và tiện nghi, việc sử dụng ánh sáng và không gian là rất quan trọng. Dưới đây là một số cách sử dụng ánh sáng và không gian để làm tăng diện tích cho căn nhà của bạn.
Tận dụng ánh sáng tự nhiên:
-
Thiết kế các cửa sổ lớn ở hướng Nam hoặc Đông để đón ánh sáng tự nhiên vào ban ngày.
-
Sử dụng kính cường lực trong suốt để lấy được nhiều ánh sáng hơn.
-
Sử dụng rèm mỏng, nhẹ hoặc rèm cuốn để điều chỉnh ánh sáng vào nhà.
-
Trồng cây xanh bên ngoài cửa sổ để tạo bóng mát và giúp căn nhà thoáng mát hơn.
Sử dụng màu sắc sáng và phản chiếu:
-
Sử dụng các màu sắc sáng như trắng, kem, xanh nhạt hoặc xám nhạt để tạo cảm giác rộng rãi hơn cho căn nhà.
-
Sử dụng các vật liệu phản chiếu như gương, kính hoặc đá bóng loáng để phản chiếu ánh sáng và làm không gian có vẻ lớn hơn.
Bố trí đồ đạc hợp lý:
-
Sử dụng đồ nội thất đa năng, có nhiều chức năng để tiết kiệm không gian.
-
Tránh sử dụng các đồ nội thất lớn, cồng kềnh khiến căn nhà trông chật hẹp hơn.
-
Bố trí đồ đạc dọc theo tường hoặc góc phòng để tạo không gian di chuyển thoải mái.
Sử dụng các vách ngăn thông minh:
-
Sử dụng các vách ngăn di động hoặc vách ngăn gấp để phân chia không gian khi cần thiết.
-
Sử dụng các vách ngăn bằng kính hoặc nhựa trong suốt để tạo cảm giác rộng rãi hơn.
Tạo không gian mở:
-
Tránh sử dụng các bức tường ngăn cách các phòng với nhau để tạo không gian mở, thông thoáng.
-
Sử dụng các không gian liên thông giữa các phòng để tạo cảm giác rộng rãi hơn.
Sử dụng các vật liệu phản chiếu:
-
Sử dụng các vật liệu phản chiếu như gương, kính hoặc đá bóng loáng để phản chiếu ánh sáng và làm không gian có vẻ lớn hơn.
Trên đây là những điểm cần lưu ý khi thiết kế nhà mặt tiền 6m với diện tích 6x13m. Việc sử dụng ánh sáng và không gian, sắp xếp nội thất hợp lý, lựa chọn phong cách thiết kế phù hợp và sử dụng các giải pháp nội thất thông minh sẽ giúp tạo nên một căn nhà đẹp và tiện nghi cho gia đình. Hy vọng những thông tin trên sẽ giúp bạn có được một căn nhà 6x13m hoàn hảo và đáp ứng được nhu cầu của gia đình.