Điều gì khiến mẫu nhà cấp 4 gác lửng 5x14m vẫn giữ sức hút cho đến hiện tại?

Mẫu nhà đẹp
0
5508
hathu - 10/07/2024

Đối với những gia đình có nguồn tài chính vừa phải, việc xây nhà sao cho phù hợp với điều kiện gia đình mình là cực kỳ quan trọng. Hôm nay Vinavic xin giới thiệu tới quý khách hàng mẫu nhà cấp 4 gác lửng 5x14m được nhiều gia chủ lựa chọn xây dựng cũng như lý giải điều gì khiến mẫu nhà này vẫn giữ sức hút cho đến hiện tại nhé.

Điều gì khiến mẫu nhà cấp 4 gác lửng 5x14m vẫn giữ sức hút cho đến hiện tại?
Điều gì khiến mẫu nhà cấp 4 gác lửng 5x14m vẫn giữ sức hút cho đến hiện tại?

Điểm khác biệt mẫu nhà cấp 4 gác lửng 5x14m so với các mẫu nhà khác

Tiết kiệm chi phí xây dựng

So với những nhà cao tầng khách, nhà cấp 4 gác lửng không chỉ đáp ứng nhu cầu sử dụng cho gia đình đông thành viên mà còn chiếm ưu thế về chi phí xây dựng, phù hợp với gia đình có ngân sách đầu tư hạn chế. Thông thường, những mẫu nhà cấp 4 gác lửng có chi phí xây dựng từ 400 triệu trở lên là đã có thể sở hữu một không gian sống như mong muốn.

Tận dụng gác lửng đa dạng công năng

Do hạn chế về diện tích xây dựng cũng như số tầng, gia đình có thể tận dụng gác lửng để làm phòng ngủ, không gian thư giãn vui chơi thỏa thích.

Gác lửng được thiết kế đa dạng công năng rất bắt mắt
Gác lửng được thiết kế đa dạng công năng rất bắt mắt

Đọc ngay: Quy định chiều cao nhà có gác lửng theo tiêu chuẩn hiện nay

Kiến trúc đa dạng

Thoải mái thiết kế nội ngoại thất mẫu nhà cấp 4 5x14m có gác lửng từ phong cách tối giản, hiện đại tới Tân Cổ Điển, miễn sao phù hợp với sở thích, cá tính gia đình.

Tiến độ thi công nhanh chóng

Công trình nhà cấp 4 gác lửng có thời gian thi công nhanh chóng hơn so với những công trình cao tầng khác bởi kết cấu đơn giản, thấp tầng.

Tổng hợp những mẫu nhà cấp 4 gác lửng 5x14m thu hút, khó lòng bỏ qua

Mẫu nhà cấp 4 gác lửng 5x14m mái thái

Mái thái kết hợp với nhà cấp 4 mặt tiền 5m có gác lửng tạo nên nét kiến trúc ấn tượng, thoạt nhìn có vẻ đơn giản nhưng lại vô cùng phù hợp xây dựng ở các khu vực thôn quê.

Căn nhà ưa chuộng lối thiết kế mở, tận dụng các ô cửa kính để ánh sáng tự nhiên và gió trời lưu thông tối đa trong nhà. 

Mẫu nhà cấp 4 gác lửng 5x14m mái thái phổ biến
Mẫu nhà cấp 4 gác lửng 5x14m mái thái phổ biến

Nhà cấp 4 5x14m gác lửng 3 phòng ngủ

Mẫu nhà này có diện tích 90m2 mặt tiền 5m được bố trí thành 3 phòng ngủ, 1 phòng khách, 1 phòng bếp, 1 phòng thờ và 1 nhà vệ sinh. 

Đặc biệt phần ngoại thất sơn màu trắng chủ đạo, kết hợp với màu nâu của cửa gỗ tạo nên tổng thể khiến công trình nổi bật, thu hút ánh nhìn.

Thiết kế nhà cấp 4 5x14m gác lửng 3 phòng ngủ tiện nghi
Thiết kế nhà cấp 4 5x14m gác lửng 3 phòng ngủ tiện nghi

Nhà cấp 4 5x14m gác lửng hiện đại

Nhà cấp 4 có gác lửng hiện đại là mẫu nhà được nhiều gia đình lựa chọn bởi vẻ đẹp trẻ trung, năng động và khả năng tối ưu không gian sống rộng rãi.

Mẫu nhà này thường có thiết kế đơn giản, gọn gàng, sử dụng các vật liệu hiện đại như kính, bê tông, thép,… tạo nên vẻ đẹp đặc trưng của phong cách này.

Nhà cấp 4 gác lửng 5x14m phong cách hiện đại sang trọng
Nhà cấp 4 gác lửng 5x14m phong cách hiện đại sang trọng

Mẫu nhà cấp 4 5x14m gác lửng phổ biến ở nông thôn

Mẫu nhà cấp 4 gác lửng dưới đây được xây dựng chủ yếu ở nông thôn. Mặt bằng công năng gia chủ có thể thiết kế 2 phòng ngủ ở dưới tầng trệt hoặc 1 phòng ngủ ở trên gác và 1 phòng ngủ tầng trệt. Phối cảnh nhà gác lửng ở nông thôn thường hướng đến không gian mở, thiết kế nhỏ gọn, tối ưu không gian sống thay vì trang trí cầu kỳ.

Nhà cấp 4 gác lửng 5x14m được xây dựng phổ biến ở nông thôn
Nhà cấp 4 gác lửng 5x14m được xây dựng phổ biến ở nông thôn

Nhà cấp 4 gác lửng 5x14m xinh xắn

Thiết kế nhỏ gọn hài hòa của mẫu nhà cấp 4 gác lửng 5x14m dưới đây chắc chắn khiến nhiều người siêu lòng. Không cần quá nhiều chi tiết cầu kỳ, tập trung nổi bật tone màu tươi sáng cùng bố trí công năng hợp lý, tổng thể ngôi nhà trở nên cuốn hút hơn bao giờ hết.

Nhà cấp 4 gác lửng 5x14m nhỏ nhắn xinh xắn cuốn hút
Nhà cấp 4 gác lửng 5x14m nhỏ nhắn xinh xắn cuốn hút

Thiết kế nhà cấp 4 5x14m gác lửng có sân thượng

Dù diện tích 90m2 hạn chế nhưng kiến trúc sư khéo léo thiết kê thêm ban công vô cùng chill cho cả gia đình. Hệ mái thái xanh dương nhẹ nhàng phóng khoáng là điểm nổi bật độc đáo của mẫu nhà cấp 4 gác lửng này.

Nhà cấp 4 gác lửng mái thái có sân thượng cực chill
Nhà cấp 4 gác lửng mái thái có sân thượng cực chill

Nhà cấp 4 gác lửng 5x14m mái lệch

Màu sơn tươi sáng là chủ đạo kết hợp hệ mái lệch, thiết kế nhà cấp 4 gác lửng dưới đây chắc chắn sẽ khiến ngôi nhà của bạn nổi bật giữa khu. Tầng tum được chọn làm phòng thờ kín đáo vô cùng trang nghiêm.

Nhà mái lệch cấp 4 có gác lửng hiện đại
Nhà mái lệch cấp 4 có gác lửng hiện đại

Gợi ý bản vẽ thiết kế mẫu nhà cấp 4 gác lửng 5x14m

Mặt bằng tầng trệt nhà cấp 4 gác lửng 5x14m
Mặt bằng tầng trệt nhà cấp 4 gác lửng 5x14m
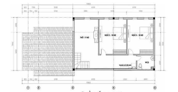
Mặt bằng tầng lửng nhà cấp 4 gác lửng 5x14m
Mặt bằng tầng lửng nhà cấp 4 gác lửng 5x14m

Xem thêm: Top 21 mẫu thiết kế nhà gác lửng 3 phòng ngủ được yêu thích nhất

Bài viết trên đã đưa ra những thông tin đầy đủ giải đáp lý do tại sao mẫu nhà cấp 4 gác lửng 5x14m lại thu hút đến thế. Nếu có thêm bất cứ thắc mắc gì, hãy nhanh tay liên hệ Kiến trúc Vinavic (Hotline: 0975678930) để được tư vấn sớm nhất.

Tham khảo:

25 Mẫu nhà cấp 4 có gác lửng 8x12m đẹp tiết kiệm chi phí

30 mẫu nhà gác lửng 5x18m đẹp tiện nghi

Chi phí xây nhà gác lửng 3 phòng ngủ

By https://vinavic.vn/
https://vinavic.vn/

Đánh giá - Bình luận
0 bình luận, đánh giá về Điều gì khiến mẫu nhà cấp 4 gác lửng 5x14m vẫn giữ sức hút cho đến hiện tại?
Nhấn vào đây để đánh giá
Thông tin người gửi
Phong thủy
Chúng tôi có thể hỗ trợ bạn!
1.37351 sec| 2428.914 kb