BST Mẫu Nhà Cấp 4 Nông Thôn 3 Phòng Ngủ Đẹp & Tiết Kiệm 2025

Mẫu nhà đẹp
0
726
Nhung - 11/04/2025

Những mẫu thiết kế nhà cấp 4 nông thôn 3 phòng ngủ là lối kiến trúc đơn giản, hiện đại và phù hợp với đa số những gia đình đông thành viên có thu nhập trung bình. Tùy vào sở thích hay phong cách mà bạn có thể lựa chọn những mẫu thiết kế khác nhau. Bài viết hôm nay Vinavic sẽ cùng tổng hợp những mẫu nhà nông thôn 3 phòng ngủ đẹp nhất để bạn có thể tham khảo trước khi xây dựng. Bạn hãy cùng xem ngay nhé!

Nhà Cấp 4 Nông Thôn 3 Phòng Ngủ
Nhà Cấp 4 Nông Thôn 3 Phòng Ngủ

Đặc trưng nhà cấp 4 nông thôn 3 phòng ngủ

Mẫu nhà cấp 4 3 phòng ngủ nông thôn mang lại những ưu điểm vượt trội đặc biệt cho những gia đình đông thành viên.

  • Mẫu nhà cấp 4 thường có chi phí xây dựng thấp hơn những mẫu nhà cao tầng khác, giúp tiết kiệm ngân sách và thời gian cho gia chủ.
  • Mẫu nhà này khá đơn giản, không gian bên trong được phân chia khoa học đáp ứng nhu cầu sinh hoạt cho các thành viên trong gia đình một cách thoải mái, hợp lý.
  • Với diện tích không quá lớn nhưng 3 phòng ngủ được bố trí hợp lý, các phòng chức năng được tận dụng tối đa như phòng khách, bếp ăn, vệ sinh,......
  • Nếu cần mở rộng không gian thì hoàn toàn có thể dễ dàng xây dựng thêm mà không tốn quá nhiều chi phí.
  • Những kiểu mái đa dạng phù hợp với mẫu nhà cấp 4 đó là mái bằng, mái thái, mái lệch,....thích hợp với khí hậu Việt Nam và tránh nóng hiệu quả.
  • Mẫu nhà cấp 4 có 3 phòng ngủ nông thôn gia chủ có thể kết hợp những phong cách thiết kế theo sở thích như phong cách hiện đại, phong cách tân cổ điển,.....mỗi phong cách đều đảm bảo thẩm mỹ, công năng và tiện nghi khi sử dụng.
Mẫu nhà cấp 4 thường có chi phí xây dựng thấp hơn những mẫu nhà cao tầng khác

27+ Mẫu Nhà 2 Tầng Có Gara Ô Tô Hiện Đại Xu Hướng 2025

Những mẫu thiết kế nhà cấp 4 nông thôn 3 phòng ngủ khoa học

Nhà cấp 4 nông thôn 3 phòng ngủ mái Nhật

Mẫu nhà này khá đơn giản, không gian bên trong được phân chia khoa học

Nhà cấp 4 nông thôn 3 phòng ngủ mái Thái

Với diện tích không quá lớn nhưng 3 phòng ngủ được bố trí hợp lý

Nhà cấp 4 nông thôn 3 phòng ngủ mái bằng

Mẫu nhà mái bằng tiện nghi sang trọng và thẩm mỹ

Nhà cấp 4 nông thôn 3 phòng ngủ mái lệch

Kiểu mái thích hợp với khí hậu Việt Nam và tránh nóng hiệu quả

Nhà cấp 4 nông thôn 3 phòng ngủ giá rẻ

Bạn có thể có thể dễ dàng xây dựng thêm mà không tốn quá nhiều chi phí

Nông thôn nhà cấp 4 3 phòng ngủ 300 triệu

Tự làm một số hạng mục thi công giúp tiết kiệm kinh phí xây dựng

Nhà cấp 4 nông thôn 3 phòng ngủ 450 triệu

Thiết kế vừa vặn với khuân viên khu đất mang lại sự tiện nghi cho gia chủ

Nhà cấp 4 nông thôn 3 phòng ngủ 600 triệu

Chỉ với 600 triệu bạn có thể có được mẫu nhà ưng ý

Nhà cấp 4 nông thôn đơn giản 3 phòng ngủ

Mẫu thiết kế khá đơn giản nhưng lại vô cùng tinh tế trong từng chi tiết

Mẫu nhà cấp 4 nông thôn đẹp 3 phòng ngủ

Kiến trúc ngoại thất đẹp mắt khiến ai đi qua cũng phải ngước nhìn

Nhà cấp 4 nông thôn 3 phòng ngủ 1 phòng thờ

Thiết kế 3 phòng ngủ và 1 phòng thờ riêng biệt giúp gia chủ có không gian thờ cúng yên tĩnh, trang nghiêm

Mẫu nhà cấp 4 chữ L 3 phòng ngủ

Khoảng sân chữ L có thể làm khu vui chơi, ngắm cảnh cho gia đình

Nhà cấp 4 nông thôn 3 phòng ngủ có sân vườn

Sân vườn xanh mát là mơ ước của nhiều gia đình hiện nay

Bản vẽ nhà cấp 4 nông thôn 3 phòng ngủ

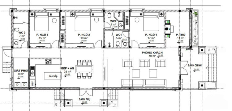
Bản vẽ nhà cấp 4 mái bằng 3 phòng ngủ

Bản vẽ mẫu nhà cấp 4 nông thôn mái bằng 3 phòng ngủ được tối ưu hóa không gian và công năng sử dụng. Với thiết kế 3 phòng ngủ trong đó có 1 phòng khép kín, không gian trong nhà được tối ưu mang đến cảm giác thoải mái, tiện nghi cho cả gia đình. Ánh sáng tự nhiên được tận dụng tạo nên sự cân đối trong tổng thể và khu bếp, khách được thiết kế liền mạch tiện lợi cho sinh hoạt hàng ngày.

Bản vẽ mẫu nhà cấp 4 3 phòng ngủ ở nông thôn

Bản vẽ nhà cấp 4 mái Nhật 3 phòng ngủ

Nhà cấp 4 mái Nhật nông thôn 4 phòng ngủ được những gia đình luôn yêu thích với thiết kế tối giản, thông minh, ngôi nhà mang đến không gian sống hiện đại, tiện nghi. Bên cạnh đó những yếu tố màu sắc, ánh sáng cảnh quan đều được thiết kế tỉ mỉ, thẩm mỹ.

Mẫu nhà nông thôn 3 phòng ngủ mái Nhật

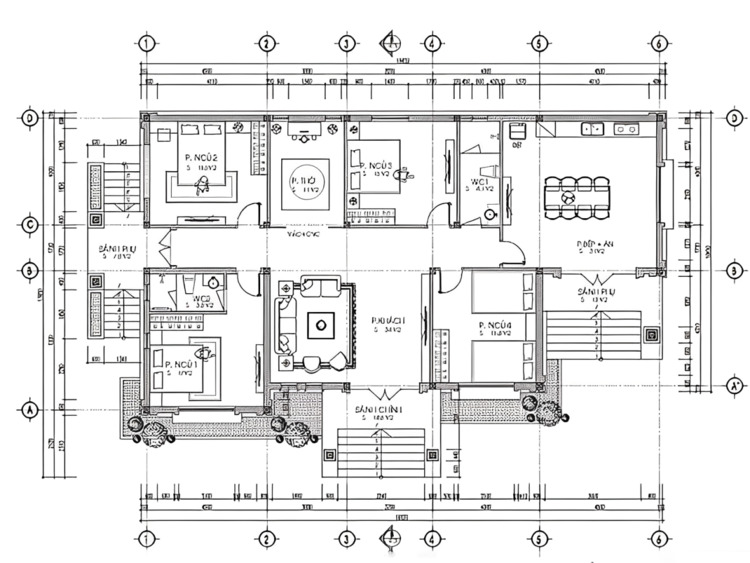
Bản vẽ nhà cấp 4 mái Thái có 3 phòng ngủ

Nhà mái Thái mang đến vẻ đẹp sang trọng, phù hợp mà thiết kế chuẩn không gian thoáng mát. Bản vẽ gồm nhiều phòng chức năng như phòng khách, phòng ngủ, phòng bếp,...được thiết kế liền mạch tạo sự thông thoáng, tối ưu không gian và diện tích sử dụng. Sự bố trí hợp lý này giúp không gian trở nên rộng rãi hơn, đáp ứng nhu cầu của các gia đình đông thành viên.

Bản vẽ nhà cấp 4 mái Thái có 3 phòng ngủ

Chi phí xây dựng mẫu nhà cấp 4 nông thôn 3 phòng ngủ

Chi phí thiết kế

Đơn giá thiết kế nhà vườn

Thiết kế kiến trúc + 3D mặt tiền chưa có nội thất tổng thể: 200.000 – 220.000đ/m2.

Có nội thất đầy đủ kiến trúc + nội thất: 220.000 – 250.000đ/m2. 

Đơn giá thiết kế nhà vườn

Đơn giá thiết kế nhà cổ điển, tân cổ điển

Thiết kế kiến trúc + 3D mặt tiền chưa có nội thất tổng thể: 220.000 – 250.000 đ/m2.

Có nội thất đầy đủ kiến trúc + nội thất: 270.000 – 290.000đ/m2. 

>> Như vậy, giá thiết kế nhà dao động từ 150.000 - 270.000 vnđ/m2 bao gồm đầy đủ thiết kế kiến trúc, 3D mặt tiền và nội thất. 

Chi phí thi công trọn gói

Đơn giá thi công trọn gói đang có mức giao động từ 6.500.000VND/m2 - 8.000.000VND/m2

Lưu ý: Đơn giá thi công trọn gói xây dựng nhà cấp 4 nông thôn có thể tăng hoặc giảm tùy thuộc vào diện tích xây dựng, phong cách thiết kế, yêu cầu từ chủ đầu tư và bảng giá nguyên vật liệu.

Chi phí thi công trọn gói

Thiết Kế Biệt Thự Mini 100m2 Đẹp – Xu Hướng 2025 Không Thể Bỏ Lỡ

Lưu ý khi xây dựng mẫu nhà cấp 4 nông thôn 3 phòng ngủ

Bạn cần lưu ý một số điểm khi xây những mẫu nhà cấp 4 nông thôn có 3 phòng ngủ như sau:

Lựa chọn mẫu thiết kế nhà, những gam màu chủ đạo và trang trí nội thất hài hòa để tạo ra một phong cách nhất định.

Dự trù và tính toán kinh phí điều này giúp quá trình xây dựng luôn suôn sẻ, đúng tiến độ, đảm bảo chất lượng và hạn chế ngân sách sửa chữa phát sinh.

Khảo sát và chọn đơn vị thi công uy tín để ngôi nhà được thiết kế thi công đúng bản vẽ và đẹp bền vững chắc.

Chọn vật liệu xây dựng chính hãng, bền vững theo thời gian bên cạnh đó bạn cũng không nên vì giá rẻ và chọn vật liệu kém chất lượng.

Trên đây là những chia sẻ của Vinavic về mẫu thiết kế nhà cấp 4 nông thôn 3 phòng ngủ. Nếu bạn đang băn khoăn lựa chọn mẫu thiết kế cho mẫu nhà của mình thì hãy liên hệ ngay cho Vinavic để được tư vấn nhé.

Lưu ý khi xây dựng mẫu nhà cấp 4 nông thôn 3 phòng ngủ

Thông tin liên hệ:

CÔNG TY CỔ PHẦN KIẾN TRÚC VINAVIC VIỆT NAM

- Địa chỉ: Tháp B1, Tòa Roman Plaza, Tố Hữu, Nam Từ Liêm, Hà Nội.

- Xưởng nội thất: Điếm số 8, Phương Trạch, Vĩnh Ngọc, Đông Anh Hà Nội

- Liên hệ tư vấn: SDT 0975.678.930 / 0982.303.304

- Email: tuvankientrucvinavic@gmail.com

>> Xem thêm:

20+ Mẫu Nhà Chữ L 1 Tầng Ở Nông Thôn Đẹp, Chi Phí Xây Rẻ

Gợi Ý Mẫu Nhà 7.5x14m Đẹp, Tối Ưu Công Năng & Phong Thủy

37 Mẫu Nhà Cấp 4 Chữ L 3 Phòng Ngủ Mái Bằng Tiện Nghi

By https://vinavic.vn/
https://vinavic.vn/

Đánh giá - Bình luận
0 bình luận, đánh giá về BST Mẫu Nhà Cấp 4 Nông Thôn 3 Phòng Ngủ Đẹp & Tiết Kiệm 2025
Nhấn vào đây để đánh giá
Thông tin người gửi
Phong thủy
Chúng tôi có thể hỗ trợ bạn!
2.64388 sec| 2455.086 kb