Chiêm ngưỡng những thiết kế nhà 5x18m có gara ấn tượng

Mẫu nhà đẹp
0
1261
Thu - 18/06/2024

Những mẫu thiết kế nhà 5x18m có gara được nhiều người lựa chọn xây dựng bởi công năng sinh hoạt đa dạng và giá trị thẩm mỹ cao. Cùng Vinavic chiêm ngưỡng những thiết kế nhà 5x18m có gara đầy tiện ích dưới đây nhé.

Thiết kế nhà 5x18m có gara đầy tiện ích
Thiết kế nhà 5x18m có gara đầy tiện ích

Đặc điểm mẫu thiết kế nhà 5x18m có gara

Thiết kế nhà 5x18m có gara có khu vực để xe riêng tại nhà, gia chủ không phải lo lắng về vấn đề nên đỗ xe ở đâu để vừa đảm bảo an toàn vừa thuận tiện. 

Xây nhà có gara sẽ giúp các thành viên trong gia đình dễ dàng sinh hoạt và di chuyển.

Nếu nhà không có gara để đỗ xe, hầu hết các gia chủ đều phải mất một khoảng thời gian để di chuyển đến bãi đỗ xe. Nếu sống tại các thành phố lớn thì khoảng chi phí mà quý khách cần phải bỏ ra để gửi xe dao động từ 2-4 triệu/ tháng. Do đó khi xây nhà có gara sẽ giúp tiết kiệm được thời gian và chi phí đáng kể.

Nhà có gara giúp thuận tiện trong việc đỗ xe
Nhà có gara giúp thuận tiện trong việc đỗ xe

Chiêm ngưỡng những thiết kế nhà 5x18m có gara ấn tượng

Mẫu thiết kế nhà hiện đại 5x18m có gara 

Mẫu thiết kế ngôi nhà hiện đại 5x18m có gara với các hình khối khỏe khoắn, chắc chắn. Tổng thể ngôi nhà được kiến trúc sư cân nhắc, tính toán kỹ lưỡng về mặt tiền để đảm bảo cấu trúc hài hòa và đồng bộ khiến ngôi nhà thêm nổi bật.

Mẫu thiết kế nhà 5x18m có gara phong cách hiện đại
Mẫu thiết kế nhà 5x18m có gara phong cách hiện đại

Thiết kế nhà Tân Cổ Điển 5x18m có gara

Kiến trúc Tân Cổ Điển nổi bật với những đường phào chỉ ấn tượng. Gara ô tô được bố trí gọn gàng, đẹp mắt với cổng sắt mỹ thuật có giá  trị thẩm mỹ cao.

Mẫu nhà 5x18m Tân Cổ Điển sang trọng có gara
Mẫu nhà 5x18m Tân Cổ Điển sang trọng có gara

Nhà 5x18m có gara 3 tầng 

Mẫu nhà 3 tầng 5x18m đáp ứng đầy đủ công năng sinh hoạt gia đình với phòng khách, phòng bếp, 3 phòng ngủ và sân thượng rộng rãi, gần gũi với thiên nhiên.

Nhà 3 tầng 5x18m mái bằng có gara phổ biến hiện nay
Nhà 3 tầng 5x18m mái bằng có gara phổ biến hiện nay 

Mẫu thiết kế nhà 5x18m có gara 3 tầng mái thái

Hệ mái thái phóng khoáng được sử dụng khá phổ biến tại các gia đình ở Việt Nam từ trước đến nay. Tổng thể mẫu nhà 2 tầng 5x20m toát lên vẻ tinh tế, đẹp mắt ấn tượng.

Mẫu nhà 5x18m 3 tầng mái thái hiện đại phóng khoáng
Mẫu nhà 5x18m 3 tầng mái thái hiện đại phóng khoáng

Mẫu thiết kế nhà 5x18m có gara 3 phòng ngủ 

Đường nét uốn lượn uyển chuyển của mẫu thiết kế nhà 5x18m 3 phòng ngủ vô cùng hút mắt, khiến căn nhà nổi bật giữa phố.

Thiết kế nhà 3 tầng có gara 3 phòng ngủ tiện nghi
Thiết kế nhà 3 tầng có gara 3 phòng ngủ tiện nghi

Đặc biệt quan tâm yếu tố phong thủy khi thiết kế nhà 5x18m có gara

Yếu tố phong thủy ảnh hưởng rất nhiều đến vận khí ngôi nhà, là yếu tố quan trọng quyết định tới công việc làm ăn, sức khỏe của cả gia đình. Do đó cần quan tâm tới yếu tố phong thủy, đặc biệt là khi thiết kế nhà 5x18m có gara.

Chọn hướng bố trí gara

  • Hướng bố trí gara theo phong thủy nên chọn hướng Đông Bắc để xây dựng. Vì hướng này giúp tăng sinh khí và tránh ô nhiễm. Cũng như đảm bảo cho quá trình lưu thông thuận lợi hơn của gia đình.

Hướng cửa gara

  • Hướng cửa khi thiết kế nhà có gara cần phải tránh đường ống nước, đặc biệt là những nguồn nước bẩn như cống, ống thải. Tránh khu vực để rác, giếng trước mặt, không nằm dưới phòng vệ sinh….

Hướng cửa của gara cần phải tránh đường ống nước
Hướng cửa của gara cần phải tránh đường ống nước

Hình dạng gara vuông vắn

  • Hình dạng của gara cần phù hợp và tốt nhất là hình chữ nhật bởi dễ sử dụng, tiết kiệm diện tích, thích hợp cho nhiều loại xe. Gara không nên tạo ra nhiều góc nhọn, giúp gia chủ thịnh vượng hơn.

Chọn màu sơn tối giản

  • Nên chọn những màu sơn tường đơn giản, trang nhã. Điều này giúp tinh thần thư thái, tốt về mặt phong thủy.

  •  Đồng thời khi cất xe vào gara nên để đầu của xe hướng vào nhà. Bởi điều này tượng trưng cho sự thuận lợi. Còn theo khoa học, hướng để xe như vậy khiến mùi xăng xe thoát ra ngoài khi khởi động xe, không ảnh hưởng đến sức khỏe

Kinh nghiệm thiết kế nhà 5x18m có gara phù hợp nhất

Diện tích gara ô tô phù hợp

Kích thước của gara ô tô sẽ phụ thuộc nhiều vào số lượng và kích thước xe. Trung bình, một chiếc ô tô 4 chỗ sẽ cần gara có kích thước tối thiểu là 3,5x5m. Ngoài ô tô, bạn cũng cần dành một phần diện tích nhỏ làm nơi đỗ xe máy cho gia đình (khoảng 2m2).

Tính toán kích thước hợp lý cho gara để xe
Tính toán kích thước hợp lý cho gara để xe

Đảm bảo tính thẩm mỹ

Với thiết kế dạng ống có diện tích mặt tiền khá hẹp, cộng thêm việc có gara nên việc lên thiết kế cho mẫu nhà này cũng không phải đơn giản. Theo đó các gia chủ cần phải đưa ra phong cách thiết kế mà mình mong muốn, sau đó bàn bạc với đơn vị thi công để có thể đưa ra những phương án tối ưu nhất.

Chọn cửa cuốn tự động

Thiết kế nhà 5x18m có gara nên chọn cửa có hệ thống cuốn tự động. Điều này đảm bảo độ an toàn, thuận tiện trong suốt quá trình sử dụng. 

Lưu ý nên bổ sung thêm máy tích điện UPS để phòng mất điện, máy sẽ tự động chuyển nguồn ắc quy giúp việc đóng mở cửa gara không bị gián đoạn.

Gợi ý bản vẽ thiết kế nhà 5x18m có gara 3 tầng

Tầng 1 

Mặt bằng tầng 1 được thiết kế khá đơn giản, bao gồm các không gian sinh hoạt chung như phòng khách, phòng bếp và bàn ăn. Ngoài ra, gia chủ cũng đã dành một khoảng không gian khá rộng rãi trước nhà để làm gara ô tô cũng như để xe máy cho gia đình. Cuối cùng là phòng vệ sinh nhỏ được bố trí dưới chân cầu thang nhằm tiết kiệm diện tích cho ngôi nhà.

Bản vẽ mặt bằng tầng 1
Bản vẽ mặt bằng tầng 1 

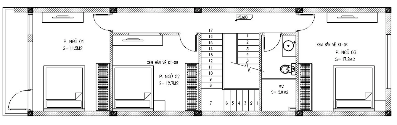
Tầng 2 

Mặt bằng tầng 2 được dùng để bố trí các không gian riêng tư cho gia đình, bao gồm 3 phòng ngủ và 1 phòng vệ sinh. Trong đó có một phòng ngủ master được thiết kế rộng rãi dành cho 2 vợ chồng. Hai phòng ngủ còn lại có kích thước nhỏ hơn và được thiết kế khá đơn giản. 

Bản vẽ mặt bằng tầng 2
Bản vẽ mặt bằng tầng 2

Trên đây là tất tần tật những thông tin về mẫu thiết kế nhà 5x18m có gara thuận tiện, đẹp mắt được nhiều chủ đầu tư săn đón. Hy vọng bài viết sẽ giúp bạn có thêm tư liệu tham khảo để hoàn thiện ngôi nhà sắp tới của mình.

Tham khảo:

45 Mẫu nhà 8x12 có gara đẹp thiết kế hiện đại nhất 2024

33+ Mẫu nhà mái nhật 2 tầng có gara ô tô bố trí khoa học

By https://vinavic.vn/
https://vinavic.vn/

Đánh giá - Bình luận
0 bình luận, đánh giá về Chiêm ngưỡng những thiết kế nhà 5x18m có gara ấn tượng
Nhấn vào đây để đánh giá
Thông tin người gửi
Phong thủy
Chúng tôi có thể hỗ trợ bạn!
1.58086 sec| 2436.977 kb