Các mẫu thiết kế nhà rộng 7m dài 11m đẹp [BST mới nhất 2024]

Mẫu nhà đẹp
0
9062
vinavic - 22/02/2023
Mục lục nội dung
[xem]
  1. 1. Đánh giá ưu - nhược điểm thiết kế nhà rộng 7m dài 11m 
    1. 1.1. Ưu điểm khi xây nhà mặt tiền 7m
      1. 1.1.1. Diện tích đất thoả mãn nhu cầu sử dụng của nhiều người
      2. 1.1.1. Thời gian thi công nhanh chóng 
      3. 1.1.1. Phù hợp với nhiều phong cách kiến trúc đa dạng
      4. 1.1.1. Dáng nhà thuận lợi tính toán phương án thông gió 
    2. 1.2. Nhược điểm nhà mặt tiền nhỏ hơn chiều sâu    
  2. 2. Đặc trưng về kiến trúc thiết kế nhà rộng 7m dài 11m 
    1. 2.1. Thiết kế tận dụng được tối đa chiều sâu dài
    2. 2.2. Đặc trưng về kích thước quyết định dáng nhà phù hợp
    3. 2.3. Sắp xếp phòng ốc lấn sang chiều sâu nhà 
  3. 3. Tư vấn nội thất thiết kế nhà rộng 7m dài 11m 
    1. 3.1. Tận dụng khéo léo những khoảng trống    
    2. 3.2. Sử dụng vách ngăn thông minh    
    3. 3.3. Sử dụng những gam màu mở rộng không gian 
  4. 4. Chi phí xây mẫu thiết kế nhà rộng 7m dài 11m hết bao nhiêu?
    1. 4.1. Cách tính diện tích xây nhà dài 11m ngang 7m
    2. 4.2. Báo giá đơn giá xây dựng hoàn thiện 
  5. 5. Lưu ý khi thiết kế nhà rộng 7m dài 11m
    1. 5.1. Tính toán công năng cẩn thận
    2. 5.2. Lựa chọn phong cách thiết kế đơn giản   
    3. 5.3. Lựa chọn dáng mái phù hợp
    4. 5.4. Dự trù kinh phí tối đa
    5. 5.5. Luôn giám sát chặt chẽ quá trình thi công
    6. 5.6. Lựa chọn màu sắc thiết kế hợp bản mệnh  
    7. 5.7. Lựa chọn đơn vị thiết kế và thi công uy tín 
  6. 6. Tổng hợp mẫu thiết kế nhà rộng 7m dài 11m đẹp nhất 2023
    1. 6.1. Thiết kế nhà cấp 4 mặt tiền 7m dài 11m     
    2. 6.2. Mẫu nhà ngang rộng 7x11m đẹp bề thế 
    3. 6.3. Biệt thự 2 tầng, nhà 3 tầng phong cách hiện đại 
    4. 6.4. Biệt thự tân cổ điển mặt tiền 7m dài 11m
    5. 6.5. Nhà chữ L rộng 7m đẹp tiện nghi  
    6. 6.6. Nhà phố sâu 11m ngang 7m 

Thiết kế nhà rộng 7m dài 11m được rất nhiều người yêu thích bởi tính thẩm mỹ và tiện ích đáp ứng được nhu cầu sử dụng cần thiết của nhiều gia đình. Loại hình nhà ở này mang tới không gian sống tiện nghi, vẻ đẹp sang trọng và ngoại thất đẳng cấp.

Nếu đang sở hữu mảnh đất có diện tích tương tự, chủ nhà có thể tham khảo các mẫu thiết kế đón đầu xu hướng 2023 mà Kiến Trúc Vinavic chia sẻ dưới đây.

Các mẫu nhà mặt tiền 7m dài 11m được ưa chuộng bởi kích thước linh hoạt
Các mẫu nhà mặt tiền 7m dài 11m được ưa chuộng bởi kích thước linh hoạt

Đánh giá ưu - nhược điểm thiết kế nhà rộng 7m dài 11m 

Nhà mặt tiền 7m sâu 11m là kiểu nhà có kích thước mặt tiền nhỏ hơn chiều sâu được cấp phép xây dựng trên mảnh đất diện tích lớn hơn 7mx11m. 

Kiến trúc nhà ngang 7m phù hợp với nhiều kiểu công trình từ nhà cấp 4 đến biệt thự tầng, kích thước rộng dễ dàng phân chia công năng các phòng đầy đủ tiện nghi. 

Ưu điểm khi xây nhà mặt tiền 7m

Diện tích đất thoả mãn nhu cầu sử dụng của nhiều người

  • Nhà kích thước 7x11m có thể được xây trên nhiều diện tích và kiểu dáng đất khác nhau, phù hợp với nhu cầu của phần đông các gia đình.  

  • Nhà rộng với chiều dài 11m và mặt tiền 7m có thể thoả mãn nhu cầu sinh hoạt tiện nghi cho cả gia đình ít và đông người.

  • Gia đình có 3 - 4 thành viên có thể chọn xây nhà cấp 4, nhà 2 tầng để đảm bảo sự gần gũi, thêm một gác lửng để chứa đồ đạc. Nhà có đông thành viên cùng chung sống thường ưa chuộng kiểu biệt thự 3 tầng - 6 tầng. 

Thời gian thi công nhanh chóng 

Xây dựng nhà cấp 4 ngang 7m, biệt thự 2 tầng, 3 tầng thường mất 4.5 - 5 tháng tuỳ theo diện tích, quy mô xây dựng, thời điểm thi công, phong cách thiết kế nội thất,...

  • Giai đoạn 1: Thời gian thiết kế kiến trúc: 30 ngày (4 ngày thiết kế mặt bằng tổng thể, 10 ngày phối cảnh tổng thể công trình, 15 ngày hoàn thiện hồ sơ kỹ thuật thi công).

  • Giai đoạn 2: Thời gian xin phép xây dựng: 15 ngày. Hoàn công mất 2 - 3 tháng sau khi xây xong nhà.

  • Giai đoạn 3: Thời gian thi công xây dựng: 3 - 3.5 tháng (dọn dẹp mặt bằng, tập kết vật liệu, ép cọc gia cố móng,...)

Phù hợp với nhiều phong cách kiến trúc đa dạng

Kiến trúc nhà mặt tiền 7m dài 11m với kích thước vừa phải và không gian nội thất cũng như ngoại cảnh thoải mái là tiền đề cho nhiều kiến trúc sư thoả sức sáng tạo trong thiết kế.

  • Nhà ngang 7m sâu 11m được thiết kế theo phong cách truyền thống với nét đặc trưng thể hiện ở sự đơn giản, mộc mạc, có khuôn viên sân vườn thoáng mát, mái ngói chữ A dáng đình làng, từ lâu đã trở thành nét văn hoá kiến trúc đại diện cho gia đình Việt.  

  • Mẫu ngang 7m với phong cách chủ đạo cổ điển và tân cổ điển cộng hưởng đường nét kiến trúc đối xứng tinh xảo, bề mặt cổng, cột, tường thường điểm xuyết hoạ tiết hoa lá mềm mại, ban công rộng, mang cảm giác mở rộng góc quan sát về chiều cao và chiều sâu.  

  • Biệt thự hiện đại 7m mặt tiền dài 11m gợi lên vẻ đẹp tinh giản hơn kiểu nhà Pháp, bao trùm lên toàn bộ đường nét, hình khối nhà, khối mái thẳng chéo đan xen. Trường phái thẩm mỹ mới tập trung vào thể hiện cá tính sáng tạo tự do và vận dụng nghệ thuật bố trí không gian theo chủ nghĩa tối giản để tạo nhiều “khoảng thở” thông gió trong nhà. 

Dáng nhà thuận lợi tính toán phương án thông gió 

  • Các mẫu nhà 7x11m được xây trên địa thế bằng phẳng, vuông góc dễ dàng được thiết kế nội thất chính xác đến từng milimet như trong bản vẽ.  

  • Không gian nhà đủ rộng cho phép các kiến trúc sư dễ dàng xác định hướng gió thổi và ánh sáng thông vào nhà từ phía thuận lợi.

Nhược điểm nhà mặt tiền nhỏ hơn chiều sâu    

  • Bên cạnh những giá trị về mặt thẩm mỹ và công năng, nhà rộng 7m mặt tiền cũng có những hạn chế nhất định về tỷ lệ phân bố không gian cho các phòng : tỷ lệ hành lang, dễ phạm phải lối thiết kế rối mắt.

Tham khảo thêm: Tìm hiểu Chiều rộng ngôi nhà bao nhiêu là tốt? 

Nhà mặt tiền 7m sở hữu nhiều lợi thế về thẩm mỹ và tính năng
Nhà mặt tiền 7m sở hữu nhiều lợi thế về thẩm mỹ và tính năng

Đặc trưng về kiến trúc thiết kế nhà rộng 7m dài 11m 

Mẫu nhà diện tích 77m2 đại diện cho một trong những kiểu kiến trúc nhà ở riêng lẻ phổ biến nhất của người Việt, sở hữu một số đặc trưng cơ bản đem lại nhiều ưu thế khi sử dụng. 

Thiết kế tận dụng được tối đa chiều sâu dài

  • Dáng nhà dài 11m ngang 7m vuông vắn, đầy đặn không khuyết góc, phù hợp với kết cấu biệt thự tầng và nhà cấp 4.

  • Bố trí công năng lấn sang chiều sâu, các phòng chức năng bổ trợ cho nhau được bố trí trên cùng một trục hành lang. 

  • Mặt bằng nhà đủ rộng để phân chia gian, vách rõ ràng, phân loại các phòng chức năng theo hai nhóm: khu sinh hoạt chung (bếp, WC,..) và riêng (phòng ngủ, phòng làm việc,...). 

  • Chiều dài dễ phân chia thành các mảng miếng, hình khối để tiện cho việc thiết kế nội thất. 

Đặc trưng về kích thước quyết định dáng nhà phù hợp

  • Nhà dài 11m mặt tiền 7m có kích thước chiều sâu dài hơn chiều rộng mặt tiền, phù hợp với các dáng nhà ống, nhà chữ nhật, chữ U và chữ L.

Sắp xếp phòng ốc lấn sang chiều sâu nhà 

  • Nhà rộng 7m x 11m thường được bố trí các phòng trải dài và sâu, kết hợp với luật phong thuỷ xác định vị trí các phòng quan trọng như phòng ngủ, phòng bếp, phòng khách, phòng thờ theo hai hướng chính trước và sau nhà. 

  • Các mẫu thiết kế nhà mặt tiền 7m ứng dụng xây dựng hệ cột, hành lang và giếng trời phân bổ cân đối, giúp nhà có sự kết nối thống nhất và không gian sinh hoạt thoáng đãng.

Bản vẽ thiết kế nhà 3 tầng mặt tiền 7m bố trí công năng thiên về chiều sâu
Bản vẽ thiết kế nhà 3 tầng mặt tiền 7m bố trí công năng thiên về chiều sâu

Tư vấn nội thất thiết kế nhà rộng 7m dài 11m 

Tận dụng khéo léo những khoảng trống    

  • Thiết kế nhà 7x11m với mặt tiền hẹp hơn chiều dài yêu cầu tính toán kỹ các phương án thiết kế nội thất tận dụng mọi khoảng trống trong nhà, không tạo khoảng chết trống trải nhưng vẫn đem lại lối đi thông thoáng.

  • Tủ kệ, tranh treo tường,... ưu tiên đặt ở hai phía trái phải của toà nhà để không làm “bận rộn” hoảng cách giữa 2 tường. Bởi vậy các góc khuất dưới hầm cầu thang, góc tường,... ngoài để xây nhà vệ sinh còn có thể kết hợp làm tủ giày hoặc kệ trang trí.  

Sử dụng vách ngăn thông minh    

  • Vách ngăn thông minh có ưu điểm tăng cảm giác về chiều rộng trong nhà, không ngăn cản ánh sáng từ bên ngoài, phân tách không gian các phòng rõ ràng mà không cản trở tầm nhìn như vách tường bí bách. 

  • Các loại vách ngăn phòng thông minh phổ biến nhất bao gồm vách panel, vách nhựa PVC giả gỗ, vách kính cường lực cao cấp,...

Sử dụng những gam màu mở rộng không gian 

  • Màu sáng có tác dụng nới rộng không gian phòng, vì vậy gia chủ nên chọn sơn tường sáng màu như màu be, trắng,...

  • Lựa chọn tông màu tối để sơn trần nhà để tạo cảm giác khoảng cách giữa trần với sàn cao hơn so với thực tế. 

  • Trang trí tường, sàn, trần bằng các đường kẻ ngang sẽ tạo cảm giác tăng chiều rộng cho căn nhà.  

Tham khảo thêm: Phong thủy màu sơn nhà theo tuổi hợp mệnh gia chủ 

Sử dụng vách ngăn thông minh làm tăng diện tích đi lại giữa các phòng
Sử dụng vách ngăn thông minh làm tăng diện tích đi lại giữa các phòng

Chi phí xây mẫu thiết kế nhà rộng 7m dài 11m hết bao nhiêu?

Chi phí xây nhà rộng 7m sâu 11m không cố định mà thay đổi tuỳ thuộc vào các yếu tố:

  • Quy mô và diện tích xây dựng

  • Phong cách thiết kế

  • Nguyên vật liệu 

  • Thời điểm xây dựng

  • Địa thế đất xây dựng

Giá thành xây nhà 7x11m được tính bằng cách nhân tổng diện tích xây nhà với đơn giá hoàn thiện theo mét vuông: 

Chi phí xây nhà = Tổng diện tích xây nhà x Đơn giá trên m2

Cách tính diện tích xây nhà dài 11m ngang 7m

Diện tích xây nhà = Tổng diện tích sàn các tầng + Diện tích móng + Diện tích mái 

  • Diện tích móng trung bình = 50% diện tích sàn.

  • Diện tích mái = diện tích sàn x 1.5 (bởi nhà có thể có sân thượng hoặc sân vườn nên phải tính phần mái đua ra để che chắn cho ngôi nhà không bị hắt nước mưa vào trong). 

  • Diện tích sàn xây biệt thự = tổng diện tích sàn tầng trệt + các tầng lầu:

    • Diện tích sàn trệt = diện tích xây dựng.

    • Diện tích sàn lầu = 100% x diện tích sàn trệt. 

Báo giá đơn giá xây dựng hoàn thiện 

Đơn giá xây dựng hoàn thiện là giá tiền tính theo số mét vuông, bao gồm giá thiết kế, giá nhân công và giá vật liệu. 

  • Chi phí thi công và thiết kế: Đơn giá xây thô và hoàn thiện có mức giá khoảng 2.500.000 – 5.000.000đ/m2

  • Đơn giá nhân công khoảng 1.000.000 – 1.500.000đ/m2

  • Đơn giá vật liệu tính theo mét vuông: 

    • Nhà ở thường: dao động từ 4.500.000 đ/m2 - 5.500.000 đ/m2 tuỳ loại vật tư trung bình, khá hay tốt.

    • Biệt thự: 6.000.000 đ/m2 - 9.000.000 đ/m2.

Vậy chi phí phải đầu tư để xây dựng trọn gói một ngôi nhà diện tích 77m2 1 trệt 1 lầu mái ngói cốt thép khoảng 1.23 tỷ đồng, nếu lấy đơn giá trung bình là 5.000.000 đ/m2.

Chi phí xây nhà sâu 11m ngang 7m phù hợp với nhiều hộ gia đình thu nhập trung bình ở Việt Nam
Chi phí xây nhà sâu 11m ngang 7m phù hợp với nhiều hộ gia đình thu nhập trung bình ở Việt Nam

Lưu ý khi thiết kế nhà rộng 7m dài 11m

Với bề dày hơn 20 năm kinh nghiệm, Kiến trúc Vinavic xin tổng hợp một số kinh nghiệm tự đúc kết sau khi thực hiện thiết kế thi công hàng trăm các công trình nhà ngang 7m sâu 11m dưới đây.

Tính toán công năng cẩn thận

  • Nhà đẹp 7m mặt tiền sắp xếp các phòng lấn về hai trái và phải ngôi nhà là chính, cần tính toán hình dáng và khoảng cách giữa các phòng hợp lý để không tạo cảm giác phòng bị dồn ép về một nơi. 

  • Thiết kế có kết cấu hạn chế về mặt tiền, công năng lấn sang chiều sâu, nên các khoảng không gian mở như hành lang, sân vườn, sân thượng cần được tối ưu để giải phóng không gian nội thất, tránh lãng phí góc chết.

  • Chủ đầu tư có thể chọn xây dựng nhà cấp 4, biệt thự 1, 2, 3 tầng,... tuỳ theo nhu cầu sử dụng công năng và chi phí sẵn có. Khi phân chia các phòng cần xác định được các gian, các vách để có giải pháp bố trí không gian và thiết kế nội thất khoa học. 

  • Phương án phân chia không gian 3 phòng 1 tầng là tối ưu nhất. Các khu vực sinh hoạt chung như phòng khách, phòng bếp, phòng ăn có thể thiết kế thông gian theo chiều ngang.  

Lựa chọn phong cách thiết kế đơn giản   

  • Nhà sâu 11m ngang 7m thiết kế chủ đạo theo phong cách nào sẽ ảnh hưởng trực tiếp tới giá thành xây nhà. 

  • Lựa chọn tối ưu về giá cả nhất sẽ là kiểu kiến trúc hiện đại với các chi tiết thiết kế tối giản, không gian mở gần gũi thiên nhiên, kỹ thuật xây dựng đơn giản nên chi phí thiết kế, vật liệu hay nhân công xây dựng cũng được giảm đáng kể. 

  • Trường phái kiến trúc nhà Pháp cổ điển hay tân cổ điển đòi hỏi giá thành cao hơn về trang trí hoa văn hoạ tiết, vật liệu xây cột, xây cửa. 

Lựa chọn dáng mái phù hợp

  • Các mẫu nhà 77m2 có thể xây theo nhiều kiểu dáng như nhà chữ L, nhà vuông, nhà ngang… nên cần điều chỉnh độ vảy ngói và độ dốc mái linh hoạt.

  • Bên cạnh đó, lựa chọn vật liệu mái ngói hay mái gỗ nhựa,... cần hài hoà về tổng thể màu sắc và vật liệu mặt tiền cả công trình.

Dự trù kinh phí tối đa

  • Để xây dựng được một căn nhà 7m mặt tiền đẹp thì chủ đầu tư cần phải bỏ ra rất nhiều chi phí phí. Nếu không xác định ngân sách một cách rõ ràng, thì gia chủ khó kiểm soát và quản lý, thậm chí còn gián đoạn quá trình thi công. Điều này còn ảnh hưởng đến thẩm mỹ, chất lượng thi công hay phát sinh chi phí sửa chữa lâu dài.

  • Dự trù trước ngân sách tối đa sẽ giúp gia chủ đánh giá được phương án thiết kế có khả thi và phù hợp hay không.

  • Thông thường chi phí xây dựng sẽ bao gồm: chi phí thiết kế, chi phí nguyên vật liệu, chi phí nhân công

Luôn giám sát chặt chẽ quá trình thi công

  • Bất cứ công trình xây nhà mặt tiền 7m nào thì chủ đầu tư cũng cần chú ý giám sát tiến độ thi công từng bước để đảm bảo thợ làm cẩn thận, không lãng phí vật liệu.

  • Ngoài ra cũng giúp quá trình thi công nhanh chóng hơn, hiểu rõ tiến độ thi công ở từng hạng mục để có thể giảm thất thoát nguyên vật liệu hiệu quả.

Lựa chọn màu sắc thiết kế hợp bản mệnh  

  • Thiết kế nhà ngang 7m mặt tiền cần lưu ý tới các yếu tố màu sắc cả về cảnh quan và trang trí nội thất sao cho hợp với bản mệnh gia chủ để mang lại nhiều vận may, tài lộc và sức khoẻ tốt. 

  • Bảng màu hợp với gia chủ mệnh Thổ thiên về các sắc vàng, xám, nâu; mệnh Hoả nên chọn các màu tím, đỏ; mệnh Kim nghiêng về sắc đen, trắng… 

Lựa chọn đơn vị thiết kế và thi công uy tín 

  • Lựa chọn đơn vị thiết kế thi công uy tín là cách để có được những phương án tối ưu về chi phí. Đơn vị uy tín sẽ đảm bảo đúng tiến độ, chất lượng nên hạn chế tối đa chi phí phát sinh.

  • Trước khi tiến hành thi công nên thỏa thuận hợp đồng cụ thể, để tránh tình trạng phát sinh chi phí.

Tham khảo thêm: Cách phối màu phòng ngủ đẹp đón đầu xu hướng 2023 

Cần chú ý lựa chọn màu sơn mặt tiền hợp mệnh
Cần chú ý lựa chọn màu sơn mặt tiền hợp mệnh

Tổng hợp mẫu thiết kế nhà rộng 7m dài 11m đẹp nhất 2023

Nếu đang tìm kiếm hay lên ý tưởng cho ngôi nhà có mặt tiền rộng 7m chiều sâu 11m đẹp thời thượng với chi phí phải chăng, đừng bỏ qua các mẫu thiết kế đang được ưa chuộng nhất 2023 mà Vinavic giới thiệu dưới đây.

Thiết kế nhà cấp 4 mặt tiền 7m dài 11m     

Công trình nhà 1 tầng, nhà cấp 4 thường được xây dựng ở nông thôn hay ven thành thị, quỹ đất rộng, có khuôn viên vườn trù phú. Khối nhà chính thường được xây lệch sâu bên vào mặt sau mặt bằng quy hoạch, để lại không gian đệm tương đương hoặc bằng ⅔ diện tích sàn tầng 1 làm vườn.

Trồng nhiều tiểu cảnh cây xanh xung quanh vườn, ban công, rào để đón gió, giảm tiếng ồn.  

Thiết kế nhà 1 tầng 7mx11m ưu tiên mở rộng không gian sống, bố trí nhiều vách kính, sân mái, giếng trời,... đồng thời hạn chế tối đa số phòng chức năng, chỉ bao gồm các phòng thực sự cần thiết. Nhu cầu giải trí, rèn luyện, giặt phơi,... thường được bố trí tự do ngoài sân. 

Mẫu nhà 1 tầng mái lệch mang đến hơi thở mới cho kiến trúc nhà nông thôn truyền thống
Mẫu nhà 1 tầng mái lệch mang đến hơi thở mới cho kiến trúc nhà nông thôn truyền thống
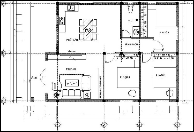
Bản vẽ mặt bằng mẫu nhà 77m2 đầy đủ và tiện nghi
Bản vẽ mặt bằng mẫu nhà 77m2 đầy đủ và tiện nghi
Nhà cấp 4 mặt tiền 7m ở Nam Bộ 
Nhà cấp 4 mặt tiền 7m ở Nam Bộ 
Thiết kế nhà 1 tầng với hệ bậc ngũ cấp nâng sàn phù hợp với khí hậu miền quê Việt
Thiết kế nhà 1 tầng với hệ bậc ngũ cấp nâng sàn phù hợp với khí hậu miền quê Việt
Nhà cấp 4 ở Nam Định sàn ốp gạch sáng bóng
Nhà cấp 4 ở Nam Định sàn ốp gạch sáng bóng

Mẫu nhà ngang rộng 7x11m đẹp bề thế 

Nhà có kích thước chiều dài hơn chiều ngang nên bố trí công năng sử dụng ăn sâu theo hai hướng tường trái và phải, ví dụ như chia nhà thành các tầng, phân nhà bằng hệ thống cột hoặc vách ngăn. Thiết kế nhà hạn chế về chiều ngang thường sẽ có từ ít gian nhiều vách tùy theo diện tích và nhu cầu sử dụng của gia chủ.

Thiết kế mặt tiền đẹp để tránh tạo ra một mặt phẳng tường rộng thênh thang mà không có điểm nhấn.

Kiến trúc nhà vườn mái thái nằm e ấp giữa vườn cây ăn quả trù phú
Kiến trúc nhà vườn mái thái nằm e ấp giữa vườn cây ăn quả trù phú
Nhà rộng 7m mặt tiền hình chữ nhật thiết kế ôm trọn thiên nhiên
Nhà rộng 7m mặt tiền hình chữ nhật thiết kế ôm trọn thiên nhiên
Mẫu nhà ngang dáng mái tôn độc lạ giữa lòng đô thị
Mẫu nhà ngang dáng mái tôn độc lạ giữa lòng đô thị

Biệt thự 2 tầng, nhà 3 tầng phong cách hiện đại 

Mẫu biệt thự có thiết kế so le, lệch cốt, thông tầng phi đối xứng (thể hiện rõ ở trang trí ban công, mái de). Nhà rộng thường có 3 gian, gian chính nhô lên trước.  

Có nhiều kiểu mái phù hợp với biệt thự đương thời, từ mái nhật bo góc cân đối, mái thái dáng chữ A cao đẹp truyền thống, mái bằng đa năng có thể làm sân mái, mái lệch thiết kế độc lạ,...

Vật liệu chủ đạo là vách kính và gỗ giúp đối lưu nhiệt độ, thiết kế lệch cốt phi đối xứng hứng ánh sáng tự nhiên vào nhà từ nhiều phía.

Biệt thự mái bằng thiết kế mặt tiền giật cấp giúp chống nắng, chắn gió
Biệt thự mái bằng thiết kế mặt tiền giật cấp giúp chống nắng, chắn gió
Thiết kế nhà 2 tầng phủ xanh mặt tiền gần gũi với thiên nhiên
Thiết kế nhà 2 tầng phủ xanh mặt tiền gần gũi với thiên nhiên
Dáng nhà mái thái đỏ cam điển trưng cho nét đẹp nhà ở vùng Bắc Bộ 
Dáng nhà mái thái đỏ cam điển trưng cho nét đẹp nhà ở vùng Bắc Bộ 
Nhà mái nhật 2 tầng 4 phòng ngủ giá dưới 2 tỷ
Nhà mái nhật 2 tầng 4 phòng ngủ giá dưới 2 tỷ
Mẫu nhà vườn mặt tiền 7m sâu 11m 1 trệt 1 lầu 4 phòng ngủ
Mẫu nhà vườn mặt tiền 7m sâu 11m 1 trệt 1 lầu 4 phòng ngủ

Biệt thự tân cổ điển mặt tiền 7m dài 11m

Biệt thự kiểu Pháp có lợi thế về đường nét kiến trúc thiết kế đối xứng theo tỷ lệ vàng, nghệ thuật trang trí mặt tiền kết hợp nhiều đường cong uyển chuyển trên tường, cửa, mái, lan can, hàng rào. 

Thức cột chủ đạo là cột La Mã cao bề thế, chân cột trang trí nhiều hoa văn trong thần thoại Hy Lạp. 

Hệ mái tân cổ điển phổ biến bao gồm mái Mansard hình thang vững trãi hay mái chóp đẹp hoài cổ. Ngoài ra, các loại mái bình dân hiện nay như mái nhật, mái thái cũng rất được ưa chuộng.  

Các mẫu nhà kiểu châu Âu chú ý bố trí tiểu cảnh sân vườn trang trọng, từ cây xanh được tỉa tót kỹ lưỡng tới đài phun nước, chòi nghỉ mát,...

Biệt thự 3 tầng kiểu Pháp với cổng đúc sang trọng
Biệt thự 3 tầng kiểu Pháp với cổng đúc sang trọng
Mẫu nhà kiến trúc châu Âu đẹp nền nã với hệ cột cao và ban công hoa sắt yêu kiều
Mẫu nhà kiến trúc châu Âu đẹp nền nã với hệ cột cao và ban công hoa sắt yêu kiều
Khối nhà chính diện tích sàn 80m2 có tầng bán hầm 
Khối nhà chính diện tích sàn 80m2 có tầng bán hầm 

Nhà chữ L rộng 7m đẹp tiện nghi  

Thiết kế nhà chữ L bao gồm hai khối nhà ống đặt giao nhau giống như khi viết chữ L, bị khuyết 2 góc. Phần khuyết thường được các kiến trúc sư tận dụng làm hiên, sân thượng hoặc gara.    

Mái nhà độ dốc vừa phải, kiểu dáng đơn giản dễ lưu thông nắng và gió trong và ngoài nhà.

Chất liệu mái phổ biến nhất là ngói vay sóng hoặc vi cá, chủ yếu lựa chọn các màu đỏ, nâu, xanh đen.

Các mặt nhà không bị chắn tường đều được bố trí nhiều cửa sổ và ban công rộng, trong góc phối nhiều cây xanh, ôm trọn thiên nhiên vào không gian sống. 

Mẫu nhà chữ L ngang 7m với thiết kế cổng nhà mộc mạc gợi nhớ lán trúc
Mẫu nhà chữ L ngang 7m với thiết kế cổng nhà mộc mạc gợi nhớ lán trúc
Mẫu nhà 77m2 có sân trước dài thuận tiện đỗ xe và trồng cây
Mẫu nhà 77m2 có sân trước dài thuận tiện đỗ xe và trồng cây
Mẫu nhà 2 tầng mái nhật hướng Nam đón nắng và gió ôn hoà
Mẫu nhà 2 tầng mái nhật hướng Nam đón nắng và gió ôn hoà
Thiết kế nhà đẹp tinh tế với sân trước rộng kết hợp làm gara
Thiết kế nhà đẹp tinh tế với sân trước rộng kết hợp làm gara
Nhà chữ L đẹp 2 tầng nổi bật ở hệ cửa kính, lan can sắt và mái ngói đỏ tươi tiện dụng
Nhà chữ L đẹp 2 tầng nổi bật ở hệ cửa kính, lan can sắt và mái ngói đỏ tươi tiện dụng

Nhà phố sâu 11m ngang 7m 

Lối kiến trúc nhà phố mặt tiền 7m có điểm chung mặt tiền hẹp, chiều dài sâu, thông thường là những mẫu nhà ống được xây sát tường, ưu tiên thiết kế không gian mở thông thoáng với nhiều cửa sổ và ban công quanh các mặt hở của ngôi nhà.

Kiểu biệt thự phố rộng 7m điển hình thường bố trí tầng 1 chủ yếu là không gian tiếp khách. Nhà ở mặt phố hoặc nhà lô góc có thể kết hợp tiền sảnh vừa ở vừa kinh doanh.

Biệt thự phố 3 tầng mái thái
Biệt thự phố 3 tầng mái thái
Mẫu nhà ống 2 mặt tiền phong cách kiến trúc Hàn Quốc
Mẫu nhà ống 2 mặt tiền phong cách kiến trúc Hàn Quốc
Mẫu nhà mái bằng kết hợp sân thượng đẹp tiện nghi giáp mặt đường
Mẫu nhà mái bằng kết hợp sân thượng đẹp tiện nghi giáp mặt đường
Bản vẽ thiết kế nhà phố mái bằng 2 tầng
Bản vẽ thiết kế nhà phố mái bằng 2 tầng
Nhà hướng Tây 2 tầng 3 phòng ngủ với thiết kế lam bê tông và mái đua độc đáo
Nhà hướng Tây 2 tầng 3 phòng ngủ với thiết kế lam bê tông và mái đua độc đáo

Tham khảo thêm: Mượn tuổi làm nhà có được không? Thủ tục và những điều kiêng kỵ

Kiến trúc Vinavic luôn đảm bảo cung cấp giải pháp tư vấn thiết kế nhà rộng 7m dài 11m đẹp lung linh với đầy đủ tiện nghi và có chi phí phải chăng nhất với khách hàng đang quan tâm tới mẫu nhà này.  

Quý khách tin tưởng có thể liên hệ với chúng tôi tại: 

Công ty cổ phần kiến trúc Vinavic Việt Nam

Hà Nội: Zone 4.2, tầng 4, tháp B1, tòa Roman Plaza, Tố Hữu, Nam Từ Liêm, Hà Nội

Hotline Hà Nội: 0975678930

Hồ Chí Minh: 215K-215J Đường Nguyễn Trãi, P.Nguyễn Cư Trinh, Quận 1 TP.HCM

Hotline TPHCM: 0982303304

 

By https://vinavic.vn/
https://vinavic.vn/

Đánh giá - Bình luận
0 bình luận, đánh giá về Các mẫu thiết kế nhà rộng 7m dài 11m đẹp [BST mới nhất 2024]
Nhấn vào đây để đánh giá
Thông tin người gửi
Phong thủy
Chúng tôi có thể hỗ trợ bạn!
3.83221 sec| 2598.516 kb