Chi phí xây nhà phố 2 tầng 5x15m trọn gói bao tiền?

Tin tức nhà đẹp
0
3153
vinavic - 21/05/2024

Nhà phố 2 tầng 5x15m được nhiều gia đình lựa chọn nhờ lợi thế về kiến trúc, công năng sử dụng và chi phí xây dựng hợp lý. Vậy chi phí xây nhà phố 2 tầng 5x15m nhiêu tiền và gồm những hạng mục chi phí cơ bản gì... tất cả sẽ được giải đáp trong bài viết dưới đây. 

Chi phí xây nhà phố 2 tầng 5x15m trọn gói bao tiền
Chi phí xây nhà phố 2 tầng 5x15m trọn gói bao tiền?

Đặc điểm của nhà phố 2 tầng 5x15m

Diện tích hợp lý

  • Với diện tích 75m2, nhà phố 2 tầng 5x15m rất hợp lý cho các gia đình có từ 3 đến 5 thành viên. Diện tích này đủ để bố trí đầy đủ các phòng chức năng cơ bản như phòng khách, phòng bếp, phòng ăn, 2-3 phòng ngủ, phòng tắm, ban công,..

Kiến trúc đẹp, tối giản, hài hòa

  • Một trong những điểm thu hút của nhà phố 2 tầng 5x15m là kiến trúc đẹp, tối giản và hài hòa. Với mặt tiền nhỏ, các kiến trúc sư thường hướng đến những thiết kế đơn giản nhưng không kém phần hiện đại và thanh lịch. Thay vì quá nhiều chi tiết trang trí, sự kết hợp giữa các đường nét, màu sắc và vật liệu được chọn lọc tinh tế để tạo nên một ngôi nhà đẹp mắt và sang trọng.
Mẫu Nhà hiện đại 2 tầng 5x15m có 1 tum rộng
Mẫu Nhà hiện đại 2 tầng 5x15m có 1 tum rộng

Chi phí thiết kế, xây dựng hợp lý

  • Không như những loại hình nhà ở khác với diện tích lớn hơn, nhà phố 2 tầng 5x15m có chi phí thiết kế và xây dựng không cao. Sự tiết kiệm chi phí này là một điểm cộng lớn cho những gia đình có ngân sách eo hẹp mà vẫn muốn sở hữu một ngôi nhà đẹp và tiện nghi.

Thời gian thi công nhanh chóng

  • Với diện tích nhỏ và kiến trúc đơn giản, thời gian thi công nhà phố 2 tầng 5x15m diễn ra rất nhanh chóng. So với các loại nhà khác có diện tích lớn hơn, việc xây dựng căn nhà này chỉ mất khoảng 3-4 tháng. Giúp bạn sở hữu ngôi nhà của riêng mình trong thời gian ngắn mà không phải chờ đợi quá lâu.
mẫu nhà phố 2 tầng 5x15m mái bằng 2 phòng ngủ
mẫu nhà phố 2 tầng 5x15m mái bằng 2 phòng ngủ

Thích hợp với thời tiết, khí hậu của nước ta

  • Ngoài những ưu điểm trên, nhà phố 2 tầng 5x15m còn thích hợp với thời tiết và khí hậu của nước ta. Với kiến trúc đơn giản, không có nhiều khe hở hay nắng mưa, nhà phố 2 tầng 5x15m giúp giữ nhiệt và thông thoáng trong mùa đông lạnh giá hay mưa bão. Đồng thời, với diện tích không quá lớn, việc làm sạch và bảo dưỡng cũng trở nên dễ dàng hơn.

Chi phí xây nhà phố 2 tầng 5x15m trọn gói

Việc tính toán chi phí xây dựng là một trong những yếu tố quan trọng khi bạn quyết định xây dựng một căn nhà phố 2 tầng 5x15m. Chi phí xây dựng căn nhà này sẽ phụ thuộc vào nhiều yếu tố như vật liệu xây dựng, thiết kế, diện tích, địa hình, và các yêu cầu khác của bạn.

Dưới đây là một số khoản chi phí cần tính toán khi xây dựng nhà phố 2 tầng 5x15m:

Chi phí vật liệu xây dựng

  • Xi măng, cát, sỏi, thép xây dựng

  • Gạch, xi măng lót, sơn, vật liệu trang trí

  • Các thiết bị vệ sinh, điện nước

Chi phí nhân công

  • Tiền công xây dựng, thi công

  • Chi phí vận chuyển vật liệu

Chi phí thiết kế

  • Chi phí tư vấn thiết kế

  • Chi phí vẽ bản vẽ CAD

Chi phí hoàn thiện

  • Chi phí nội thất

  • Chi phí trang trí, hoa văn

Chi phí xây nhà phố 2 tầng 5x15m trọn gói
Cách tính chi phí xây nhà phố 2 tầng 5x15m trọn gói

Dựa trên các yếu tố trên, chúng tôi ước tính chi phí xây dựng nhà 5x15m 2 tầng như sau:

Bảng dự toán đơn giá/m2 xây dựng nhà 5x15m 2 tầng

  • Thi công phần thô: Từ 3,800,000 đ/m2 - 5,500,000 đ/m2
  • Thi công hoàn thiện : Từ 2,000,000 đ/m2 - 4,000,000 đ/m2
  • Thi công trọn gói: Từ 5,800,000đ/m2 - 9,000,000đ/m2

Tổng diện tích xây dựng nhà 5x15m 2 tầng

  • Diện tích móng: 50% = 35m2
  • Diện tích tầng 1: 100%= 75m2
  • Diện tích tầng 2: 100%=75m2
  • Diện tích mái: 40%= 32m2

Tổng diện tích xây dựng là: 217m2

Dự toán chi phí xây dựng trọn gói đối với nhà 2 tầng 5x15m là : 217m2 x 5.800.000đ = 1.258.000.000đ 

Như vậy, chi phí xây nhà 2 tầng 5x15m trọn gói sẽ dao động từ 1,2 tỷ - 1,9 tỷ phụ thuộc vào từng thời điểm thi công, vị trí, tình hình thực tế giá cả nguyên vật liệu cũng như giá nhân công hoàn thiện.

Việc tính toán chi phí trọn gói sẽ giúp bạn có cái nhìn tổng quan về nguồn vốn cần thiết để xây dựng căn nhà phố 2 tầng 5x15m một cách hiệu quả và tiết kiệm.

Các mẫu nhà phố 2 tầng 5x15m đẹp nhất hiện nay

Nếu bạn đang có ý định xây dựng một căn nhà phố 2 tầng 5x15m thì có thể tham khảo một số mẫu nhà đẹp và tiện nghi dưới đây:

Nhà phố 2 tầng 5x15m 3 phòng ngủ

Mẫu nhà này được thiết kế để phù hợp với những gia đình đông thành viên. Với diện tích 75m2, căn nhà này được chia thành 2 tầng với 3 phòng ngủ lớn và rộng rãi. Mỗi phòng ngủ đều có cửa sổ và ban công nhỏ, mang lại không gian sinh hoạt và sinh hoạt riêng tư cho từng thành viên trong gia đình.

Nhà phố 2 tầng 5x15m 3 phòng ngủ
Nhà phố 2 tầng 5x15m 3 phòng ngủ tiện nghi

Các phòng ngủ đều có không gian thoáng đãng và được bố trí dựa trên nguyên tắc ánh sáng, gió và mặt trời để tối ưu hóa việc sử dụng năng lượng. Ngoài ra, tầng 1 của căn nhà còn có không gian phòng khách, phòng bếp và phòng ăn kết hợp với nhau tạo nên không gian sống rộng rãi và tiện nghi.

Nhà phố 2 tầng 5x15m 2 phòng ngủ

Nếu bạn không có nhu cầu sử dụng nhiều phòng ngủ, mẫu nhà này là một lựa chọn tuyệt vời. Với diện tích 75m2, căn nhà được thiết kế với 2 phòng ngủ, phòng khách và phòng bếp thông nhau tạo nên một không gian sống tối giản nhưng không kém phần hiện đại. Phòng ngủ chính được bố trí ở tầng 1, còn phòng ngủ thứ hai được đặt ở tầng 2, giúp tăng thêm sự riêng tư cho các thành viên trong gia đình.

Nhà phố 2 tầng 5x15m 2 phòng ngủ
Nhà phố 2 tầng 5x15m 2 phòng ngủ hiện đại

Phòng ngủ chính có không gian rộng rãi và được kết hợp cùng với phòng bếp, tạo nên một không gian sống mở và thuận tiện cho việc di chuyển trong căn nhà. Ngoài ra, các chi tiết trang trí được chọn lọc tỉ mỉ và tinh tế giúp căn nhà trở nên sang trọng và hiện đại.

Nhà 2 tầng 5x15m có gara

Nếu bạn là một người yêu ôtô và muốn có chỗ để đậu xe thuận tiện thì mẫu nhà này là sự lựa chọn hoàn hảo. Với diện tích 75m2, căn nhà được thiết kế với một gara ở tầng 1 và phòng ngủ ở tầng 2. Các thành viên trong gia đình có thể dễ dàng di chuyển từ gara lên tầng 2 thông qua một cầu thang thuận tiện.

Nhà 2 tầng 5x15m có gara
Nhà 2 tầng 5x15m có gara trước thoáng

Ngoài ra, căn nhà còn có một phòng khách rộng rãi và một phòng bếp tiện dụng ở tầng 1. Với mẫu nhà này, bạn không chỉ có không gian sống tối giản và hiện đại mà còn có chỗ đậu xe an toàn và thuận tiện.

Nhà phố 2 tầng 5x15m hiện đại

Với sự phát triển của công nghệ và xã hội, không gian sống hiện đại đã trở thành xu hướng được nhiều người mong muốn. Vì vậy, những mẫu nhà phố 2 tầng 5x15m hiện đại càng trở nên phổ biến. Nhà có mặt tiền nhỏ này vẫn mang đến một không gian sống đẳng cấp và sang trọng nhờ vào việc sử dụng các vật liệu cao cấp và các chi tiết trang trí tinh tế.

Nhà phố 2 tầng 5x15m hiện đại
Nhà phố 2 tầng 5x15m hiện đại đường nét uyển chuyển

Nhà được thiết kế với không gian sống và bếp thông nhau, giúp tối ưu hóa diện tích và tạo nên không gian sống rộng rãi và hiện đại. Tầng 2 là nơi để các thành viên trong gia đình có thể tận hưởng những giây phút nghỉ ngơi thoải mái và riêng tư.

Nhà phố 2 tầng 5x15m tân cổ điển

Nếu bạn yêu thích phong cách cổ điển và muốn mang nét đặchương truyền thống vào không gian sống của mình, mẫu nhà phố 2 tầng 5x15m tân cổ điển sẽ là lựa chọn hoàn hảo. Với kiến trúc mang đậm nét cổ điển, căn nhà này sẽ mang lại cho bạn cảm giác ấm cúng và gần gũi nhưng vẫn không kém phần sang trọng.

Nhà phố 2 tầng 5x15m tân cổ điển
Nhà phố 2 tầng 5x15m tân cổ điển đẹp
Nhà 2 tầng 5x15m tân cổ điển mái thái
Nhà 2 tầng 5x15m tân cổ điển mái thái

Chi tiết trang trí cổ điển như cột trụ, sàn gỗ, rèm cửa cầu kỳ, tạo nên không gian sống đậm chất truyền thống. Tầng 1 của căn nhà có phòng khách rộng rãi và phòng bếp tiện nghi, còn tầng 2 là nơi chứa các phòng ngủ và phòng làm việc, giúp tạo ra không gian sống đa dạng và tiện ích.

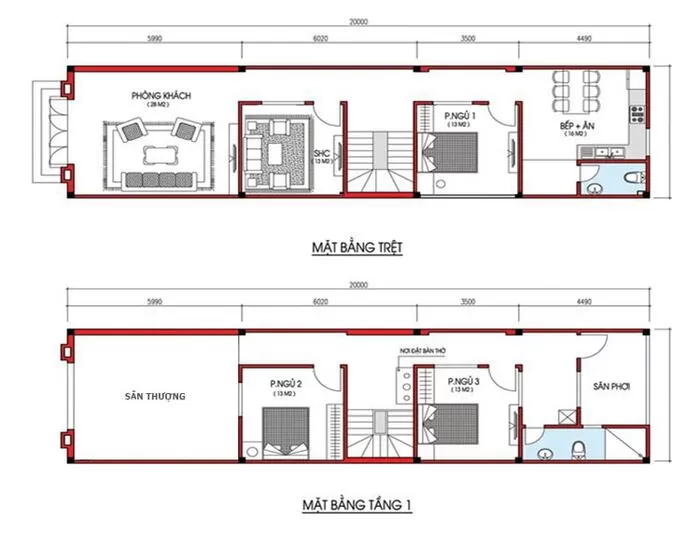
Bản vẽ cad nhà 2 tầng 5x15 full

Để có cái nhìn tổng quan về căn nhà phố 2 tầng 5x15m, việc sử dụng bản vẽ CAD sẽ giúp bạn hiểu rõ hơn về cấu trúc, thiết kế và bố trí không gian của căn nhà. Bản vẽ CAD sẽ cho bạn thông tin chi tiết về diện tích từng phòng, vị trí cửa sổ, cửa ra vào, cầu thang, và các chi tiết kiến trúc khác.

Bản vẽ nhà 2 tầng 3 phòng ngủ 5×15m
Bản vẽ nhà 2 tầng 3 phòng ngủ 5×15m

Diện tích 5x15m khá lý tưởng để có một cái sân trước rộng rãi làm nơi để xe, trồng cây xanh, nơi vui chơi cho trẻ em hoặc là nơi thư giãn cho cả gia đình.

Mặt bằng công năng ngôi nhà được thiết kế tối ưu nhất với 2 phòng ngủ, 1 WC và sân phơi trên tầng 1. Thiết kế đảm bảo tiện nghi và mang lại sự thoải mái nhất cho các thành viên trong gia đình.

Tham khảo thêm

Trên đây là những thông tin về đặc điểm, mẫu mã, bản vẽ cad, chi phí xây dựng của nhà phố 2 tầng 5x15m mà bạn cần biết. Việc lựa chọn một mẫu nhà phù hợp với nhu cầu và sở thích của gia đình sẽ giúp cho không gian sống của bạn trở nên tiện nghi, thoải mái và đẹp mắt. Hy vọng rằng những thông tin trên sẽ giúp bạn có cái nhìn tổng quan và quyết định đúng đắn khi xây dựng ngôi nhà mơ ước của mình.

Hơn 200 mẫu biệt thự 2 tầng hiện đại xây dựng nhiều nhất

By https://vinavic.vn/
https://vinavic.vn/

Đánh giá - Bình luận
0 bình luận, đánh giá về Chi phí xây nhà phố 2 tầng 5x15m trọn gói bao tiền?
Nhấn vào đây để đánh giá
Thông tin người gửi
Phong thủy
Chúng tôi có thể hỗ trợ bạn!
1.03827 sec| 2454.336 kb