Tầng tum là gì? 35 Ý tưởng thiết kế tầng tum đẹp trên sân thượng
- 1. Tầng tum là gì?
- 2. Chứng năng của tầng tum sân thượng
- 3. Một số lý do nên chọn thiết kế tum
- 4. Quy định mới nhất về thiết kế tầng tum
- 5. Diện tích và chiều cao đối đa của tầng tum.
- 6. Ý tưởng thiết kế tầng tum với bố trí công năng tiện nghi
- 7. Các mẫu thiết kế nhà có tầng tum đẹp hiện nay
- 8. Lưu ý khi thiết kế mái tum sân thượng
- 9. So sánh tầng tum và tầng mái
- 10. Chi phí xây tầng tum bao tiền?
- 11. Các câu hỏi thường gặp về tầng tum
Tầng tum là gì?
Tầng tum là tầng trên cùng của ngôi nhà, dùng để che cầu thang và có thể bố trí thành phòng thờ, kho, sân thượng, hoặc nơi phơi đồ. Diện tích tầng tum thường nhỏ hơn các tầng dưới. Tum là phần cao nhất, có thể thiết kế làm phòng ngủ hoặc vườn cảnh. Theo Công văn số 68/BXD-HĐXD ngày 18/5/2017 của Bộ Xây dựng, nếu diện tích mái tum không vượt quá 30% diện tích sàn mái và chức năng chính là che cầu thang, thì không tính vào số tầng của công trình.
Chứng năng của tầng tum sân thượng
Tầng tum là phần trên cùng của ngôi nhà, thiết kế mái tum sân thượng diện tích nhỏ hơn các tầng dưới và có nhiều chức năng khác nhau:
- Bảo vệ cầu thang: Tầng tum che chắn cầu thang khỏi thời tiết, giúp cách nhiệt cho không gian bên dưới.
- Tăng diện tích sử dụng: Có thể bố trí thành phòng ngủ, phòng thờ, giải trí... mà không tốn nhiều chi phí.
- Tạo điểm nhấn kiến trúc: Thiết kế độc đáo, làm ngôi nhà cao và bề thế hơn.
- Phù hợp phong thủy: Tránh số không may mắn và tạo sự cân bằng cho ngôi nhà.
Một số lý do nên chọn thiết kế tum
- Cân bằng phong thủy cho nhà 2 tầng: Số chẵn có thể không tốt với một số người.
- Ngoài ra, ngôi nhà sẽ trông cân đối hơn. Với diện tích đất hiện nay, chiều dài thường là 20m. Thêm tum sẽ giúp ngôi nhà hài hòa hơn.
- Đối với nhà ống nhỏ, thêm tum tăng công năng sử dụng.
- Chi phí thấp để thêm phòng ngủ hoặc phòng thờ, tum là lựa chọn hợp lý.
- Thiết kế tum còn nâng cao tính thẩm mỹ, làm ngôi nhà trở nên hiện đại và bề thế hơn.
Quy định mới nhất về thiết kế tầng tum
Tầng tum là gì và quy định xây dựng ra sao? Tầng tum rất phổ biến trong nhà ở, nhưng phải tuân thủ quy định của Bộ Xây dựng. Theo thông tư 07/2019, tum không tính vào số tầng nếu chỉ dùng để che thang bộ, thang máy hoặc khu vực kỹ thuật. Diện tích mái tum tối đa 30% diện tích sàn mái, chiều cao không quá 3 mét. Quy định này có hiệu lực từ 01/01/2020, thay thế thông tư 03/2016.
Diện tích và chiều cao đối đa của tầng tum.
Theo Thông tư 07/2019/TT-BXD, diện tích tối đa tầng tum là 30% tổng diện tích xây dựng.
Ví dụ: Nhà 5x20m, chừa sân trước 5m, diện tích xây dựng là 5x15m (75m2). 30% của 75m2 là 22.5m2, tức là tum có kích thước 5m x 4.5m. Khi xin giấy phép xây dựng sẽ biết diện tích cụ thể.
Chiều cao tầng tum từ 2m đến 3m. Nếu nằm trong khu vực hạn chế chiều cao và dưới 35m2, chiều cao chỉ 2m. Thường thì tum cao 3m chưa tính mái.
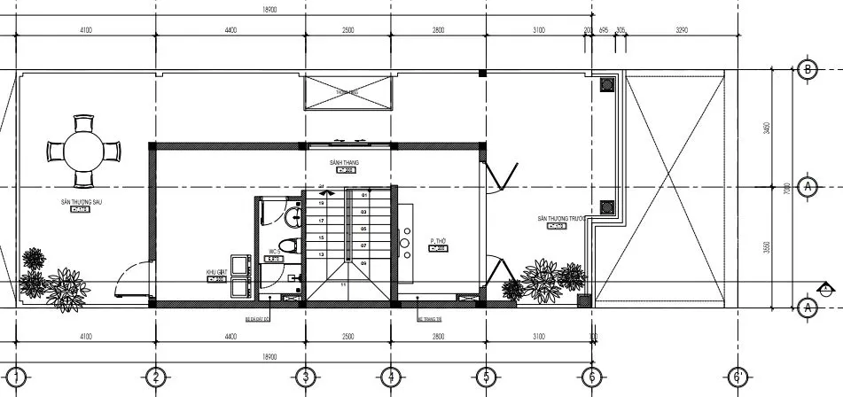
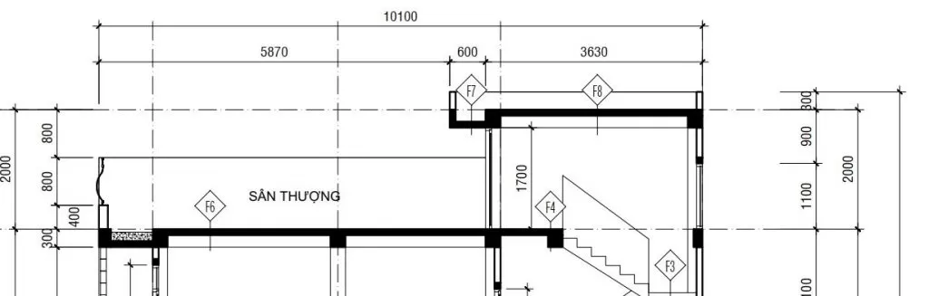
Vị trí tum phụ thuộc vào cầu thang, có thể ở giữa hoặc cuối nhà. Với diện tích lớn, có thể bố trí thêm phòng thờ và phòng giặt.
Ý tưởng thiết kế tầng tum với bố trí công năng tiện nghi
Sử dụng tầng tum làm kho chứa đồ
Tầng tum có thể được sử dụng để lưu trữ đồ đạc. Nếu bạn xây hoặc mua nhà ở nông thôn, tầng tum rất tiện lợi cho việc cất giữ thóc lúa hay những vật dụng ít dùng như quần áo.
Sử dụng tầng tum làm không gian thư giãn
Nhà phố thường chật hẹp, thiếu không gian thư giãn. Bạn có thể cải tạo tầng tum thành sân thượng với bàn ghế thoải mái, kệ sách nhỏ và cây xanh để tạo không gian thoáng đãng.
Sử dụng tầng tum là phòng thờ
Phòng thờ thường được đặt ở nơi yên tĩnh, riêng tư. Do đó, việc đặt bàn thờ ở tầng tum là không hợp lý. Phòng thờ không cần diện tích lớn hay trần cao, nên dù tầng tum có hạn chế về diện tích cũng không vấn đề gì.
Sử dụng tum làm phòng ngủ
Trong bối cảnh giá nhà đất tăng cao, đặc biệt ở các thành phố lớn, việc sở hữu một căn nhà đã là điều may mắn. Do đó, cần tối ưu hóa không gian sử dụng.
Ý tưởng biến tầng tum thành phòng ngủ rất hợp lý, phù hợp cho người trẻ. Để tạo sự riêng tư, có thể dùng tường thạch cao hoặc rèm che cầu thang.
Các mẫu thiết kế nhà có tầng tum đẹp hiện nay
Thiết kế nhà có tầng tum đẹp đang trở thành xu hướng phổ biến nhờ vào không gian, công năng và tính thẩm mỹ. Tầng tum là phần trên cùng của ngôi nhà, giúp che chắn mái, cầu thang và khu vực kỹ thuật.
Tầng tum có thể dùng cho nhiều mục đích như phòng ngủ, phòng thờ, sân vườn, sân phơi, bếp nướng hay sân thượng. Thiết kế tầng tum linh hoạt tùy theo diện tích, phong cách và nhu cầu của gia chủ.
Dưới đây là một số mẫu thiết kế nhà có tầng tum hiện đại và đẹp mắt để bạn tham khảo.
Mẫu thiết kế nhà 6x7m 3 tầng 1 tum hiện đại NP2350

Thiết kế Tổ hợp Thương Mại kinh doanh 4 tầng 1 tum 850m2 (26x34m) DATM2335

Biệt thự kết hợp kinh doanh 4 tầng 1 tum hiện đại 240m2 BT2369

Biệt thự có hồ bơi trên sân thượng đẹp 3 tầng 1 tum 176m2 BT2385

Mẫu nhà văn phòng 7 tầng 1 tum hiện đại kinh doanh 4m x 14m NP2346

Mẫu nhà 4 tầng mặt tiền 4m sâu 14m có tum sân thượng đẹp NP2342

Biệt thự 3 tầng 5 phòng ngủ tân cổ điển, 1 tum 264m2 (16.5x16m) BT2276

Lưu ý khi thiết kế mái tum sân thượng
Tầng tum là phần quan trọng của ngôi nhà, giúp tạo không gian sống thoải mái. Khi thiết kế tầng tum, cần lưu ý:
- Chọn vật liệu chống nóng và cách âm như gạch, gỗ để bảo vệ khỏi nắng và tiếng ồn.
- Tận dụng ánh sáng tự nhiên qua cửa sổ, cửa kính và trồng cây xanh để làm mát và tăng tính thẩm mỹ.
- Phân chia không gian hợp lý cho các mục đích như phòng ngủ, làm việc hay thư giãn theo nhu cầu gia chủ.
So sánh tầng tum và tầng mái
Tầng tum và tầng mái là hai khái niệm trong thiết kế nhà ở, nhưng chúng khác nhau.
Tầng mái nằm ngay dưới mái, có diện tích tương đương hoặc gần bằng các tầng dưới, thường dùng làm phòng ngủ hoặc văn phòng.
Tầng tum nằm trên tầng mái, diện tích nhỏ hơn, thường được sử dụng làm kho, phòng ngủ hoặc phòng chơi. Tầng tum có thể xây dựng sẵn hoặc cải tạo sau.
Tóm lại, tầng tum và tầng mái khác nhau về vị trí, diện tích, mục đích sử dụng và thiết kế, nhưng đều có mái dốc và thường dành cho không gian riêng tư.
Chi phí xây tầng tum bao tiền?
Chi phí xây dựng tầng tum thấp hơn các tầng dưới do không có mái che, tường thấp và kết cấu đơn giản.Chi phí dao động từ 2.5 triệu đến 3.5 triệu đồng/m2. Với diện tích 30m2, chi phí sẽ từ 60 triệu đến 105 triệu đồng. Để tiết kiệm, gia chủ nên chọn thiết kế hợp lý, vật liệu phù hợp và nhà thầu uy tín, cũng như tính toán các khoản chi phí khác như thiết kế, xin phép, vận chuyển và nội thất.
Các câu hỏi thường gặp về tầng tum
Tầng tum tiếng anh là gì?
Tầng tum trong tiếng Anh là "Attic". Đây là thuật ngữ dễ nhớ, nhưng cần phân biệt với tầng hầm (basement) và tầng mái (loft). Tầng hầm nằm dưới mặt đất, còn tầng mái là khu vực dưới mái nhà.
Tầng tum có được tính là 1 tầng không?
Tầng tum là phần trên cùng của ngôi nhà, giúp che cầu thang và mở rộng diện tích sử dụng, nhưng không được tính vào số tầng. Theo công văn 68/BXD-HĐXD ngày 18/5/2017 của Bộ Xây dựng, nếu mái tum không quá 30% diện tích sàn mái và chỉ dùng cho cầu thang hoặc kỹ thuật thì không tính là một tầng. Ngược lại, nếu vượt quá 30% hoặc có chức năng khác như phòng ngủ, phòng thờ, sẽ được tính là một tầng.
Tầng tum chiếm bao nhiêu phần trăm sàn mái?
Tầng tum là phần trên cùng của ngôi nhà, dùng để che cầu thang hoặc tạo thêm không gian. Theo quy định mới của Bộ Xây dựng, tầng tum không được tính vào số tầng nếu diện tích không quá 30% diện tích sàn mái. Nếu sàn mái 100m2, tầng tum phải nhỏ hơn hoặc bằng 30m2; vượt quá sẽ bị coi là tầng riêng và phải tuân theo quy định về chiều cao, diện tích và hệ số sử dụng đất.
Trên đây là thông tin về tầng tum và gợi ý của Vinavic để biến tầng tum thành không gian độc đáo. Hãy truy cập chuyên mục Kiến trúc Vinavic để tìm hiểu thêm về cải tạo và trang trí nhà cửa!
1001+ mẫu thiết kế nhà đẹp sang trọng nhất 2025
Khám phá 99+ mẫu biệt thự phố hiện đại, đẹp nhất hiện nay