33 mẫu thiết kế nhà ngang 6m dài 25m đẹp, thông thoáng cho diện tích 150m2
- 1. Sơ lược về mặt bằng thiết kế nhà ngang 6m dài 25m
- 2. Tìm hiểu đặc điểm của mẫu nhà ngang 6m dài 25m
- 3. 3 Cách thiết kế nhà ngang 6m dài 25m trở nên thông thoáng hơn
- 4. Chiêm ngưỡng 33 mẫu thiết kế nhà ngang 6m dài 25m đẹp độc đáo
- 4.1. Mẫu nhà ngang 6m dài 25m phong cách hiện đại
- 4.2. Mẫu nhà ngang 6m dài 25m tân cổ điển
- 4.3. Mẫu nhà ngang 6m dài 25m mái bằng
- 4.4. Mẫu nhà ngang 6m dài 25m mái thái
- 4.5. Mẫu nhà ngang 6m dài 25m 1 tầng
- 4.6. Mẫu nhà ngang 6m dài 25m 2 tầng
- 4.7. Mẫu nhà ngang 6m dài 25m 3 tầng
- 4.8. Nhà phố 6m x 25m 1 trệt 1 lầu
- 5. Chi phí xây dựng nhà ngang 6m dài 25m bao nhiêu tiền trọn gói
Bạn đang băn khoăn không biết nên thiết kế nhà như thế nào để tận dụng tối đa diện tích đất và tạo ra không gian sống thoải mái, tiện nghi? Hãy cùng theo dõi bài viết của Vinavic để khám phá những ý tưởng thiết kế nhà ngang 6m dài 25m đẹp cực thoáng đãng dươi đây nhé.
Với diện tích vừa phải và kích thước dài nhưng hẹp, mẫu nhà ngang 6m dài 25m được xem là lựa chọn phù hợp cho nhiều gia đình tại Việt Nam.
Chiêm ngưỡng 35 mẫu thiết kế nhà 2 tầng 6x16m đẹp chi phí rẻ tại đây
Những mẫu nhà mặt tiền 6m Tân Cổ Điển được săn đón nhất hiện nay
Chiêm ngưỡng 17 mẫu nhà ống 6mx13m đẹp nổi bật nhất phố
35 Mẫu nhà 2 tầng mặt tiền 6m hiện đại HOT nhất 2024
Sơ lược về mặt bằng thiết kế nhà ngang 6m dài 25m
Với diện tích 150m2, nhà ngang 6m dài 25m là một lựa chọn phổ biến trong thiết kế nhà ở tại Việt Nam. Mặt bằng này phù hợp với những gia đình có nhu cầu về không gian rộng rãi, thoáng đãng, đồng thời đảm bảo sự riêng tư cho mỗi thành viên.
Khu vực sinh hoạt chung
Thiết kế nhà ngang 6m dài 25m thường được chia thành hai khu vực chính: khu vực sinh hoạt chung và khu vực riêng tư. Khu vực sinh hoạt chung thường bao gồm:
- Phòng khách
- Phòng bếp
- Phòng ăn
Các không gian này được bố trí gần nhau, tạo nên một khu vực sinh hoạt tập trung, thuận tiện cho việc giao lưu, sum họp gia đình.
Khu vực riêng tư
Khu vực riêng tư bao gồm phòng ngủ của các thành viên trong gia đình, phòng tắm, phòng vệ sinh. Các phòng này thường được đặt ở vị trí xa hơn so với khu vực sinh hoạt chung, đảm bảo sự riêng tư và yên tĩnh cần thiết.
Không gian phụ trợ
Ngoài ra, một số mẫu nhà còn được thiết kế thêm phòng làm việc, phòng chơi, sân vườn… tùy theo nhu cầu và sở thích của gia chủ.
Tìm hiểu đặc điểm của mẫu nhà ngang 6m dài 25m
Diện tích 150m2
Diện tích 150m2 là diện tích vừa đủ để tạo ra một không gian sống thoải mái cho gia đình có từ 3-5 thành viên. Diện tích này cho phép bố trí đầy đủ các phòng chức năng cơ bản, đồng thời vẫn có thể dành một phần diện tích cho sân vườn, ban công…
- Không gian rộng rãi, thoáng đãng
- Có thể bố trí đầy đủ các phòng chức năng cần thiết
- Phù hợp cho gia đình có từ nhiều thành viên
Mặt tiền rộng 6m sâu 25m
Mặt tiền rộng 6m là một lợi thế để tạo ra một không gian thoáng đãng, đón nắng gió tự nhiên vào bên trong ngôi nhà. Ngoài ra, mặt tiền rộng cũng cho phép thiết kế một lối vào ấn tượng, tạo điểm nhấn cho kiến trúc của ngôi nhà.
- Tạo cảm giác thoáng đãng, rộng rãi
- Đón nhiều ánh sáng tự nhiên vào bên trong
- Có thể thiết kế lối vào ấn tượng
3 Cách thiết kế nhà ngang 6m dài 25m trở nên thông thoáng hơn
Để khắc phục nhược điểm chiều dài của nhà, kiến trúc sư thường áp dụng một số cách thiết kế giúp ngôi nhà trở nên thông thoáng hơn:
Sử dụng vật liệu xây dựng nhẹ, tông màu tự nhiên
Việc sử dụng vật liệu xây dựng nhẹ như gỗ, thép, kính cường lực không chỉ giúp tiết kiệm chi phí mà còn tạo cảm giác nhẹ nhàng, thoáng đãng cho không gian. Bên cạnh đó, việc sử dụng các tông màu tự nhiên như màu be, màu xám nhạt, màu xanh lá cây cũng góp phần mang lại cảm giác thư thái, gần gũi với thiên nhiên.
Tận dụng ánh sáng tự nhiên
Để tối đa hóa nguồn ánh sáng tự nhiên, các kiến trúc sư thường sử dụng các thiết kế cửa kính lớn, cửa sổ cao, giếng trời hoặc sân thượng. Ánh sáng tự nhiên không chỉ giúp không gian trở nên rộng rãi, thoáng đãng hơn mà còn mang lại cảm giác thoải mái, dễ chịu cho người sử dụng.
Tạo điểm nhấn bằng sân vườn, hồ nước
Một sân vườn nhỏ hoặc hồ nước nhỏ được bố trí giữa nhà sẽ giúp tạo điểm nhấn, cũng như không gian thư giãn, nghỉ ngơi cho gia chủ. Ngoài ra, sự hiện diện của cây xanh và nước cũng góp phần làm dịu bớt cảm giác hẹp, bí bách của không gian dài.
Chiêm ngưỡng 33 mẫu thiết kế nhà ngang 6m dài 25m đẹp độc đáo
Trong thiết kế nhà ngang 6m dài 25m, có rất nhiều cách tiếp cận và phong cách khác nhau để tạo ra những ngôi nhà đẹp và độc đáo.
Dưới đây là danh sách 33 mẫu thiết kế nhà ngang 6m dài 25m mà bạn có thể tham khảo:
Mẫu nhà ngang 6m dài 25m phong cách hiện đại
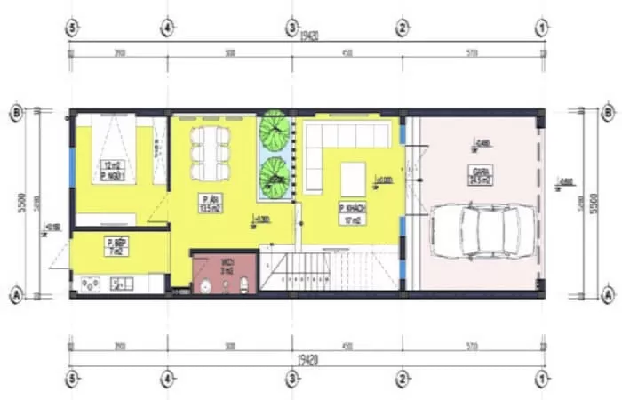
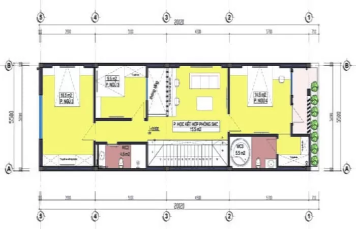
Một thiết kế hiện đại với sự kết hợp nhu cầu công năng: 1 phòng khách, 4 phòng ngủ rộng rãi, có gara xe bên trong, bếp ăn, không gian thờ, không gian làm việc.
Mẫu nhà ngang 6m dài 25m tân cổ điển
Pha trộn giữa phong cách cổ điển và hiện đại sẽ mang đến cho ngôi nhà sự độc đáo và lịch lãm. Mẫu nhà ngang 6x25m phong cách tân cổ điển với đường nét kiến trúc tân cổ điển có sự đăng đối theo tiêu chuẩn mỹ thuật cổ.
Mẫu nhà ngang 6m dài 25m mái bằng
Sử dụng các khối hình đơn giản, kết hợp vật liệu hiện đại như kính, thép, bê tông. Mẫu nhà ngang 6m sâu 25m mái bằng với thời gian thi công nhanh chóng, chi phí thấp, phù hợp với gia đình ít người.
Mẫu nhà ngang 6m dài 25m mái thái
Tạo điểm nhấn ấn tượng với các tầng mái xếp chồng lên nhau. Mẫu nhà ngang 6m dài 25m mái thái mang lại sự sang trọng, đẳng cấp với các chi tiết hoa văn, phào chỉ tinh tế.
Mẫu nhà ngang 6m dài 25m 1 tầng
Tận dụng tối đa ánh sáng tự nhiên và gió mát bằng hệ thống cửa sổ, cửa ra vào rộng rãi. Mẫu nhà ngang 6m dài 25m 1 tầng sử dụng các đường nét, khối hình đơn giản của phong cách Nhật Bản
Mẫu nhà ngang 6m dài 25m 2 tầng
Sử dụng các khối hình học đơn giản, kết hợp với vật liệu hiện đại như kính, thép, đá... mẫu nhà ngang 6m x 25m 2 tầng tạo cảm giác trẻ trung, năng động.
Mẫu nhà ngang 6m dài 25m 3 tầng
Thiết kế mẫu nhà 3 tầng mặt tiền 7m dài 25m được kiến trúc sư khéo léo thiết kế đáp ứng đầy đủ nhất công năng. Những đường cong mềm mại, độc đáo và lạ mắt. Mang đến đầy đủ công năng cho gia chủ.
Điểm nhấn của mẫu nhà 3 tầng này là các hình khối, mảng miếng được thiết kế vuông vức và đua ra vô cùng ấn tượng.
Nhà phố 6m x 25m 1 trệt 1 lầu
Với thiết kế tối ưu và tiện nghi, mẫu mặt tiền nhà 1 trệt 1 lầu ngang 6m sâu 25m mang đến cho không gian một nét đẹp sang trọng và tinh tế đồng thời tối ưu chi phí xây dựng cho gia đình.

Thiết kế theo phong cách minimalism với sự tối giản và sự sắp xếp logic trong không gian sẽ tạo nên một ngôi nhà hiện đại và thông thoáng.
Những mẫu thiết kế trên chỉ là một phần nhỏ trong vô vàn các ý tưởng sáng tạo và độc đáo mà bạn có thể áp dụng vào việc xây dựng ngôi nhà của mình.
Chi phí xây dựng nhà ngang 6m dài 25m bao nhiêu tiền trọn gói
Ngoài chi phí thiết kế, chi phí xây dựng nhà ngang 6m dài 25m cũng phụ thuộc vào nhiều yếu tố như vật liệu xây dựng, công năng của ngôi nhà, địa hình xây dựng, cũng như các yêu cầu riêng của gia chủ.
Hiện nay, đơn giá thi công hoàn thiện ngoại thất cho phong cách hiện đại nằm trong khoảng 5,5 triệu đến 7 triệu/m2
Ví dụ đối với căn nhà 3 tầng 6x25m, mái bằng bê tông cốt thép ta có
Tổng diện tích xây dựng sẽ được tính như sau:
- Phần móng = (6x25) x 30% = 45m2
- Tầng 1 = (6x25) x 100% = 150m2
- Tầng 2 = (6x25) x 100% = 150m2
- Tầng 3 = (6x25) x 100% = 150m2
- Mái bằng bê tông cốt thép = (6x25)*30%= 45m2
=> Tổng diện tích xây dựng: 45m2 + 150m2 + 150m2 + 150m2 +45m2 = 550m2
Do đó, chi phí xây dựng nhà 3 tầng 6m x 25m có diện tích 150m2 sẽ dao động từ 2,7 tỷ đến 3,5 tỷ (đây là chi phí chưa bao gồm khu vực hàng rào, cổng, tiểu cảnh và các thiết bị nội thất bên trong ngôi nhà)
Trong bài viết này, chúng ta đã cùng nhau tìm hiểu về mặt bằng và đặc điểm của mẫu nhà ngang 6m dài 25m, cũng như khám phá 3 cách thiết kế giúp ngôi nhà trở nên thông thoáng hơn. Chúng ta cũng đã chiêm ngưỡng những mẫu thiết kế đẹp và độc đáo cho loại hình nhà này, đồng thời tìm hiểu về chi phí thiết kế và xây dựng.
Hy vọng rằng thông tin trong bài viết sẽ giúp bạn có cái nhìn tổng quan và chuẩn bị tốt cho việc xây dựng ngôi nhà mơ ước của mình.