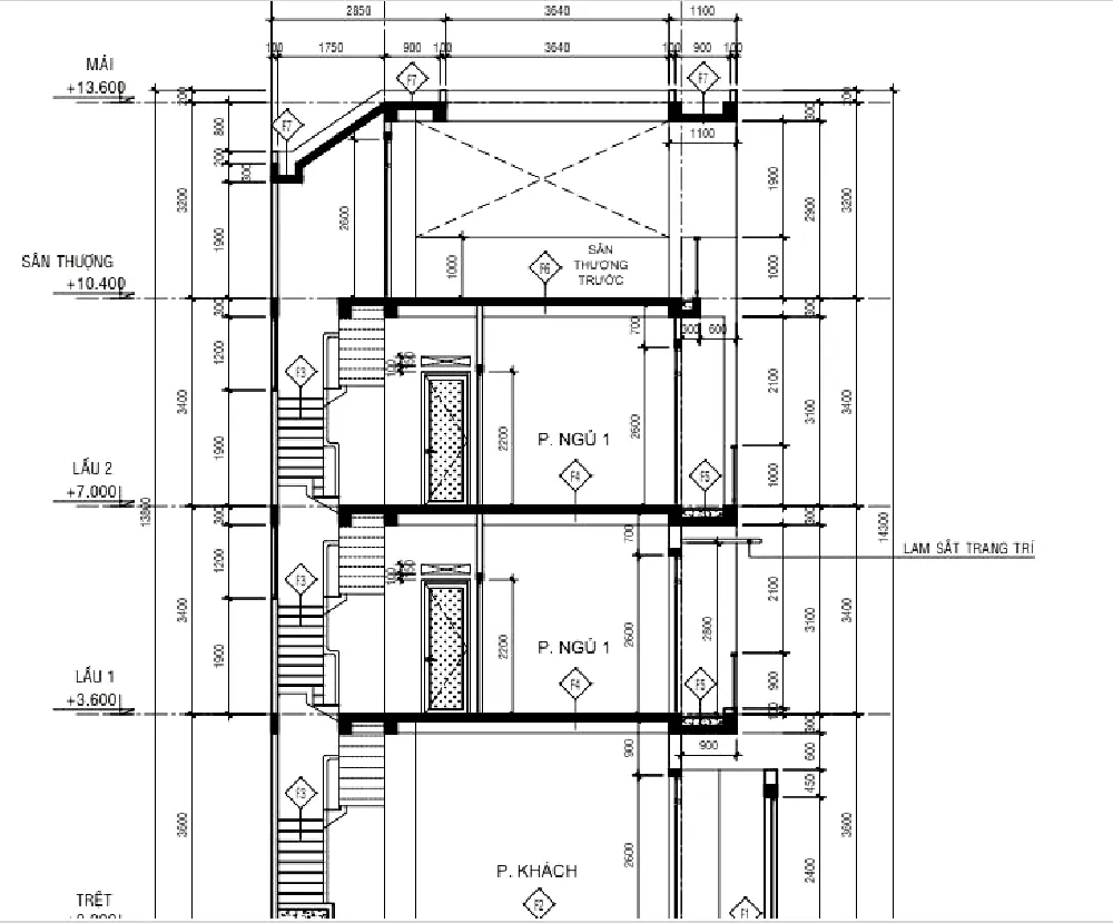
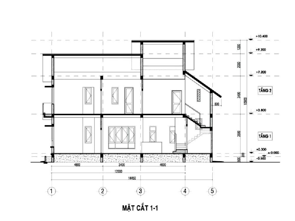
Chiều cao tầng 1 cho từng nhà theo phong thủy và tiêu chuẩn là bao nhiêu?
Chiều cao tầng 1 hợp lý là chiều cao đảm bảo không gian sống thoáng mát, rộng rãi, nhưng vẫn giữ được sự ấm cúng, hài hòa. Theo tiêu chuẩn xây dựng hiện hành, chiều cao tầng 1 thường dao động trong khoảng từ 3,5 - 3,9 m. Đây là chiều cao vừa đảm bảo yếu tố thẩm mỹ, vừa mang lại vượng khí cho gia đình.
Chiều cao tầng 1 các nhà theo phong thủy theo tiêu chuẩn là bao nhiêu?
Chiều cao tầng 1 nhà 2 tầng
- Chiều cao tầng 1 nhà 2 tầng thường dao động trong khoảng từ 3,6 - 3,9 m. Đây là chiều cao phù hợp với hầu hết các phong cách kiến trúc hiện đại, tân cổ điển và cổ điển. Chiều cao quá thấp sẽ khiến ngôi nhà trở nên tối tăm, tù túng, ảnh hưởng đến sức khỏe và tinh thần của các thành viên trong gia đình. Nếu quá cao sẽ khiến ngôi nhà trở nên trống trải, thiếu ấm cúng, không tốt cho phong thủy.
Chiều cao tầng 1 nhà ống
- Thường dao động trong khoảng từ 3,3 - 3,6m. Đây là chiều cao phù hợp với những ngôi nhà ống có diện tích nhỏ hẹp. Nếu quá thấp sẽ khiến không gian sống trở nên tối tăm, chật chội, thiếu thẩm mỹ. Chiều cao tầng 1 quá cao sẽ khiến không gian sống trở nên trống trải, mất cân đối.
Chiều cao tầng 1 có gác lửng
- Dao động trong khoảng từ 2,2m và tối đa là 3m. Đây là chiều cao phù hợp để bố trí gác lửng. Nếu quá thấp sẽ khiến gác lửng trở nên chật chội, khó di chuyển. Còn quá cao sẽ khiến gác lửng trở nên trống trải, thiếu ấm cúng.
Chiều cao tầng 1 nhà phố
- Chiều cao tầng 1 cho căn nhà phố thường dao động trong khoảng từ 3,5 - 3,9m. Đây là chiều cao phù hợp với hầu hết các phong cách kiến trúc nhà phố. Chiều cao tầng 1 quá thấp sẽ khiến không gian sống trở nên bí bách, chật chội. Chiều cao tầng 1 quá cao sẽ khiến không gian sống trở nên lạnh lẽo, thiếu ấm cúng.

Xem thêm: Tính toán chiều cao tầng nhà phố bao nhiêu là hợp lý nhất?
Tại sao cần phải tuân thủ quy định về chiều cao tầng 1 khi xây nhà
-
Đảm bảo an toàn: Chiều cao của tầng 1 ảnh hưởng trực tiếp đến khả năng chịu lực của ngôi nhà. Nếu chiều cao tầng 1 quá cao, ngôi nhà sẽ dễ bị đổ, sập, gây nguy hiểm cho gia chủ.
-
Đảm bảo mỹ quan đô thị: Quy định chiều cao tầng 1 hợp lý của các ngôi nhà trong một khu vực cần phải tương đồng nhau để đảm bảo mỹ quan đô thị. Nếu các ngôi nhà quá khác nhau sẽ gây mất cân đối, ảnh hưởng đến cảnh quan chung.
-
Tuân thủ quy hoạch xây dựng: Chiều cao tầng 1 của các ngôi nhà được quy định trong quy hoạch xây dựng của từng khu vực. Việc tuân thủ quy định này là cần thiết để đảm bảo sự đồng bộ, hài hòa trong quy hoạch đô thị.
Ngoài ra, tuân thủ quy định khi xây nhà còn giúp chủ nhà tránh được những rắc rối pháp lý sau này. Nếu vi phạm quy định này, chủ nhà có thể bị xử phạt hành chính hoặc thậm chí bị buộc tháo dỡ phần công trình xây dựng vi phạm.
Để tuân thủ quy định khi xây nhà, chủ nhà cần phải xin giấy phép xây dựng tại cơ quan có thẩm quyền. Trong hồ sơ xin giấy phép xây dựng, chủ nhà cần phải ghi rõ chiều cao tầng 1 của ngôi nhà.
Các yếu tố ảnh hưởng đến chiều cao tầng 1
Yếu tố kỹ thuật
-
Chiều cao tầng 1 hợp lý cần đảm bảo đủ để chịu được tải trọng của ngôi nhà, bao gồm tải trọng bản thân ngôi nhà, tải trọng sử dụng và tải trọng gió. Tải trọng bản thân ngôi nhà bao gồm trọng lượng của kết cấu, vật liệu xây dựng, nội thất,... Tải trọng sử dụng bao gồm trọng lượng của người, đồ đạc,... Tải trọng gió bao gồm lực tác dụng của gió lên ngôi nhà.
-
Tùy thuộc vào loại kết cấu của ngôi nhà, tải trọng của ngôi nhà và khả năng chịu lực của ngôi nhà mà có thể tính toán được chiều cao tối thiểu cần thiết. Cụ thể, đối với các ngôi nhà có kết cấu khung thép, chiều cao cho tầng 1 tối thiểu cần thiết là 3,2m. Đối với các ngôi nhà có kết cấu bê tông cốt thép, chiều cao tối thiểu cần thiết là 3,4m.
Đọc thêm: Quy định chiều cao nhà 2 tầng, 3 tầng, 1 tầng theo phong thủy
Yếu tố quy hoạch
-
Chiều cao nhà tầng 1 hợp lý của các ngôi nhà trong một khu vực cần phải tương đồng nhau để đảm bảo mỹ quan đô thị. Quy hoạch xây dựng của từng khu vực thường có quy định về chiều cao khác nhau
Yêu cầu sử dụng
-
Chiều cao tầng 1 cần đảm bảo đủ không gian sử dụng cho các mục đích như sinh hoạt, kinh doanh, dịch vụ,... Nếu tầng 1 được sử dụng làm không gian sinh hoạt chung, cần đảm bảo đủ để tạo cảm giác thông thoáng, thoải mái cho người sử dụng.
Yếu tố phong thủy
Theo phong thủy, chiều cao tầng nhà có ảnh hưởng lớn đến vận khí của gia chủ và các thành viên trong gia đình. Tầng nhà quá cao hoặc quá thấp đều không tốt, có thể dẫn đến những vấn đề sức khỏe, tài chính và hạnh phúc gia đình.
Về mặt phong thủy, kiến trúc ngôi nhà được chia thành 3 tầng:
-
Tầng thái âm: Nằm trong khoảng 40cm tính từ mặt sàn nhà, có nhiều khí âm. Tầng thái âm tượng trưng cho sự yên bình, ổn định.
-
Tầng thái dương: Nằm trong khoảng 60cm tính từ trần nhà, có nhiều khí dương. Tầng thái dương tượng trưng cho sự phát triển, thành công.
-
Tầng thái hòa: Nằm giữa tầng thái âm và thái dương, có độ cao khoảng 1,8m đến 2,5m so với bề mặt sàn. Tầng thái hòa là tầng sinh khí, là nơi giao thoa giữa khí âm và khí dương.
Tầng thái hòa được xem là tầng sinh khí, là tuyến thở cho con người. Khi xây nhà và thiết kế nhà ở, cần giữ cho tầng thái âm và thái dương không xâm lấn tầng thái hòa. Điều này sẽ giúp cân bằng âm dương trong ngôi nhà, tạo ra vượng khí tốt cho gia đình.
Cụ thể, chiều cao tầng nhà theo phong thủy được quy định như sau:
-
Nếu phòng có kích thước chiều rộng lớn hơn 30m2 trở lên, chiều cao tầng nhà trong khoảng 3,25m đến 4,1m. Chiều cao này sẽ giúp tầng thái hòa chiếm khoảng 50% tổng chiều cao tầng nhà, tạo ra sự cân bằng âm dương tốt nhất.
-
Nếu phòng có kích thước chiều rộng nhỏ hơn 30m2, chiều cao tầng nhà tối thiểu là 3,15m. Chiều cao này sẽ giúp tầng thái hòa chiếm khoảng 45% tổng chiều cao tầng nhà, vẫn đảm bảo sự cân bằng âm dương cho ngôi nhà.
Cách tính toán chiều cao tầng 1
Để tính toán hợp lý, có thể thực hiện theo các bước sau:
Chiều cao tầng 1 theo phong thủy: sẽ được tính dựa trên cung tốt trong Bát trạch.
-
Ví dụ, gia chủ thuộc mệnh Khôn sẽ có cung tốt là Tốn, Ly, Khôn. Do đó, chiều cao tầng 1 của ngôi nhà nên dao động trong khoảng từ 3,3m đến 3,6m.
Chiều cao tầng 1 theo tiêu chuẩn: được tính bằng tổng chiều cao từ sàn lên trần, từ hè lên ban công, theo ranh giới đường lộ giới.
Xác định các yếu tố ảnh hưởng đến chiều cao tầng 1
-
Trước khi tính toán cần xác định các yếu tố ảnh hưởng đến chiều cao tầng 1, bao gồm các yếu tố kỹ thuật, quy hoạch và sử dụng đã nêu ở trên.
Tính toán chiều cao tầng 1 theo yêu cầu kỹ thuật
-
Chiều cao tầng 1 tối thiểu cần thiết được tính theo công thức sau:
h = 3,2m + 0,2m * (1 + 1,5 * K)
Trong đó:
-
h là chiều cao tầng 1 tối thiểu cần thiết (m)
-
K là hệ số tải trọng, tùy thuộc vào loại kết cấu và vật liệu xây dựng của ngôi nhà
Ví dụ: Đối với một ngôi nhà có kết cấu bê tông cốt thép, sử dụng gạch ốp lát, hệ số tải trọng K = 1,5. Chiều cao tầng 1 tối thiểu cần thiết là:
h = 3,2m + 0,2m * (1 + 1,5 * 1,5) = 3,6m
Điều chỉnh chiều cao tầng 1 theo yêu cầu quy hoạch và sử dụng
Sau khi đã tính toán được chiều cao tầng 1 theo yêu cầu kỹ thuật, cần phải điều chỉnh theo yêu cầu quy hoạch và sử dụng.
- Nếu chiều cao nhà tầng 1 theo yêu cầu kỹ thuật nhỏ hơn theo quy hoạch, cần phải điều chỉnh cho phù hợp với quy hoạch.
- Nếu chiều cao tầng 1 theo yêu cầu kỹ thuật lớn hơn theo yêu cầu sử dụng, cần phải điều chỉnh cho phù hợp với yêu cầu sử dụng.
Kiểm tra lại chiều cao tầng 1
Sau khi đã điều chỉnh cần phải kiểm tra lại chiều cao tầng 1 đảm bảo các yêu cầu kỹ thuật, quy hoạch và sử dụng.
Nếu chiều cao tầng 1 không đảm bảo các yêu cầu kỹ thuật, quy hoạch và sử dụng, cần phải điều chỉnh lại cho phù hợp.
Trên đây là những thông tin cần lưu ý khi tính toán chiều cao tầng 1 theo phong thủy và tiêu chuẩn. Việc xác định chiều cao tầng 1 phù hợp sẽ giúp bạn có được một căn nhà đẹp và thoải mái, mang lại sự may mắn và thịnh vượng cho gia đình.