Tính toán chiều cao tầng nhà phố bao nhiêu là hợp lý nhất?

Phong thủy
0
34426
vinavic - 27/02/2023

Chiều cao tầng nhà phố có thể tính theo 4 cách:

  1. Tính chiều cao tầng nhà phố theo các thông số kiến trúc như số bậc cầu thang, diện tích, công năng, phong cách hiện đại hay cổ điển,...
  2. Tính độ cao tầng nhà theo quy hoạch địa phương về tầng trệt, tầng hầm, tầng gác lửng,...
  3. Tính chiều cao giữa các tầng nhà phố theo quy luật phong thuỷ như các kích thước thông thuỷ,...
  4. Tính chiều cao các tầng trong nhà phố theo thước lỗ ban. 
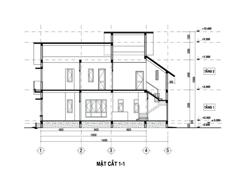
Cách tính chiều cao xây tầng của nhà phố chính xác và đầy đủ nhất
Cách tính chiều cao xây tầng của nhà phố chính xác và đầy đủ nhất

Chiều cao tầng nhà là gì?

Khái niệm

  • Khoảng cách tính từ sàn tầng dưới lên sàn tầng kế tiếp gọi là chiều cao của một tầng nhà. 

  • Chiều cao nhà là khoảng cách từ nền tầng trệt đến đỉnh cao nhất của mái, không bao gồm tầng hầm.

  • Chiều cao trần nhà là khoảng cách từ sàn nhà lên đến trần của một tầng.

Vì sao phải tính chiều cao tầng nhà?

  • Tính toán cẩn thận chiều cao các tầng trong nhà giúp gia chủ xác định được độ cao phù hợp khi xây nhà để tạo ra không gian sống thoải mái, thoáng đãng:

    • Ngôi nhà quá cao mang lại cảm giác trống trải, lạnh lẽo. 

    • Các tầng nhà phố có chiều cao quá thấp gây ngột ngạt, bí bách cho người ở.

  • Chiều cao tầng nhà phù hợp giúp tổng thể công trình nhà phố cân đối và hài hoà hơn, khoe được trọn vẹn nét đẹp phong cách kiến trúc.

  • Việc tính toán chiều cao nhà sai ảnh hưởng tới kết cấu và chức năng các phòng mỗi tầng. 

Tham khảo thêmChiều ngang nhà bao nhiêu là tốt theo phong thủy kiến trúc 

Chiều cao xây các tầng trong nhà phố là khoảng cách giữa mặt sàn dưới với sàn trên
Chiều cao xây các tầng trong nhà phố là khoảng cách giữa mặt sàn dưới với sàn trên

Cách tính chiều cao tầng nhà phố theo các thông số kiến trúc

Khi tính chiều cao từng tầng cho nhà phố cần cân nhắc các yếu tố sau.

Cách tính chiều cao tầng nhà theo số bậc cầu thang

Chiều cao một tầng tỷ lệ thuận với diện tích và số bậc cầu thang. 

  • Nhà phố thường xây cầu thang dốc 33 - 36 độ, chiều cao mỗi bậc 16.5cm - 18cm. 

  • Số bậc cầu thang phổ biến nhất là 13 bậc, 17 bậc và 21 bậc. Bậc quá cao sẽ khiến đi lại di chuyển bất tiện.

  • Xây nhà 2 tầng trở lên thì chiều cao tầng nhà tính theo thước lỗ ban tỷ lệ thuận với diện tích xây cầu thang.

  • Nhà có mặt tiền hẹp, nhà lô phố nhỏ thì số bậc cầu thang sẽ bị hạn chế, nên chọn chiều cao các tầng theo thước lỗ ban thấp 3m - 3.25m, mỗi tầng đều cao bằng nhau.

  • Nhà có mặt tiền rộng trên 5m nên chọn chiều cao tầng từ 3.2m - 3.4m.

Chiều cao tầng đo theo thước lỗ ban tỷ lệ thuận với số bậc cầu thang
Chiều cao tầng đo theo thước lỗ ban tỷ lệ thuận với số bậc cầu thang

Cách tính chiều cao tầng nhà theo diện tích

Một cách khác để xác định độ cao các tầng nhà là căn cứ theo diện tích.

  • Diện tích nhà khoảng 100m2 đến 150m2 nên xây chiều cao tường 3.6 - 4.5m.

  • Diện tích nhà lớn hơn xây tường cao trung bình 3m - 3.3m. 

Cách tính chiều cao tầng nhà theo công năng các phòng 

  • Chiều cao phòng khách nên để kích thước cao hơn phòng khác từ 1.5 - 2 lần, cụ thể chiều cao hợp lý nhất là 3.6m - 5m, bởi đây là không gian sinh hoạt quây quần và tiếp khách nên cần đảm bảo đủ rộng thoáng, bề thế, ấn tượng. 

  • Chiều cao phòng thờ không thua kém các phòng khác vì đây là nơi trang nghiêm nhất nhà.

  • Phòng bếp, phòng ăn và phòng ngủ cần mang lại không gian ấm cúng, không trống trải, lạnh lẽo, nên để chiều cao nhà trung bình khoảng 3m - 3.3m theo thước lỗ ban là hợp lý.

  • Các phòng chức năng phụ như kho, phòng tắm,... thường ít sử dụng, chỉ nên thiết kế chiều cao vừa đủ khoảng 2.4m - 2.7m để tiết kiệm kinh phí xây nhà.

Tham khảo thêmTìm hiểu Chiều rộng ngôi nhà bao nhiêu là tốt? 

Độ cao phòng khách nên để lớn hơn các phòng khác
Độ cao phòng khách nên để lớn hơn các phòng khác

Cách tính chiều cao tầng nhà theo đặc điểm khí hậu

  • Không gian nhà có đủ thông thoáng hay không dựa vào các phương án thông gió trôi chảy qua mỗi tầng hơn là phụ thuộc vào chiều cao các tầng.

  • Chiều cao các tầng ngôi nhà phố thuộc khu vực khí hậu nhiệt đới nên để xông xênh khoảng 3.6m - 4.5m để tạo sự đối lưu tốt, đồng thời gia chủ có thể cân nhắc sắp xếp vị trí cửa sổ và lỗ thông hơi để bổ trợ. 

  • Nhà hướng về phía đón nắng trực tiếp (như nhà hướng Tây) thì cần xây tầng cao khoảng 3m - 3.3m, chiều cao đủ để hỗ trợ điều hoà làm mát các phòng mà không lãng phí điện năng.

  • Nơi có khí hậu khô hơn, thông thoáng tự nhiên có thể để chiều cao một tầng khoảng hơn 3.6m - 4.5m, tuỳ theo quy tắc xây dựng nhà ở của cơ quan nhà nước.

Cách tính chiều cao tầng nhà để tiết kiệm điện năng

Khi bố trí chiều cao các phòng cần tính toán khoảng cách hợp lý để hỗ trợ điều hoà, máy sưởi làm mát hoặc sưởi ấm phòng nhanh nhất và đầy đủ nhất có thể. 

  • Các tầng nhà phố quá cao cần máy lạnh, máy sưởi công suất lớn hơn để điều hoà không khí trong phòng trong thời gian lâu hơn, tốn điện hơn.

Phòng ngủ không nên xây quá cao để tiết kiệm điện năng điều hoà
Phòng ngủ không nên xây quá cao để tiết kiệm điện năng điều hoà

Cách tính chiều cao tầng nhà phù hợp ngân sách

Chi phí xây dựng sẽ tăng đáng kể nếu tăng chiều cao tầng, bởi cột nhà cao cần nhiều thép hơn, nhiều bê tông, nhiều gạch hơn.

  • Thiết kế tầng nhà phố quá cao cũng kéo theo chi phí vận hành và bảo trì phát sinh cao, gia chủ tài chính eo hẹp cần xem xét kỹ về lâu dài. 

  • Để tiết kiệm chi phí xây dựng, chiều cao tầng được chia ra làm 3 mức thông dụng:

    • Phòng thấp có chiều cao từ 2.4m - 2.7m.

    • Phòng tiêu chuẩn có chiều cao từ 3m - 3.3m.

    • Phòng cao có khoảng cách các sàn từ 3.6m - 5m. 

Cách tính chiều cao tầng nhà theo phong cách chủ đạo

Một số quy tắc tính toán chiều cao một tầng nhà trên cơ sở phong cách kiến trúc chủ đạo cụ thể như sau:

Chiều cao nhà phố phong cách hiện đại

  • Chất liệu trần nhà được ưa chuộng nhất là thạch cao, lối trang trí tối giản, không quá cầu kỳ nên tầng 1 thường cao 3.6m - 3.9m, từ tầng 2 trở lên chiều cao dao động 3.3m - 3.6m. 

Chiều cao biệt thự phố tân cổ điển

  • Chiều cao tầng một nhà theo nguyên lý tân cổ điển thường có khoảng cách lớn hơn nhà hiện đại do có nhiều hoạ tiết trang trí cột và tường trong phòng khách hơn, chiều cao tầng 1 thường được lựa chọn là 3.9m, các tầng trên nhỏ dần 3.6m, tầng thượng có thể cao 3.3m.   

Chiều cao công trình nhà phố cổ điển 

  • Tuân thủ các nguyên lý tính toán chiều cao các tầng trong nhà tương tự phong cách tân cổ điển.

  • Nếu tầng 1 làm trần gỗ cầu kì theo chiều cao trần nhà khoảng 4m. 

Tham khảo thêm: Cách tính đơn giá xây dựng theo m2 chi tiết nhất 2023 

Phòng kiểu tân cổ điển sẽ cao hơn phòng kiến trúc hiện đại
Phòng kiểu tân cổ điển sẽ cao hơn phòng kiến trúc hiện đại

Cách tính chiều cao tầng nhà phố theo quy hoạch địa phương

Theo quy định của Bộ Xây dựng, chiều cao tầng nhà biệt thự, nhà liên kế, nhà vườn, nhà cấp 1 2 3 4 được tính như sau:

  • Độ cao sàn tối đa 3m: khoảng cách tính từ giữa mặt sàn dưới tới mặt sàn trên.

  • Độ cao sàn tối đa là 3.4m: chiều cao của mặt sàn dưới tới mặt sàn trên từ tầng 2 trở đi.

  • Độ cao sàn không vượt quá 3.5m: tính từ vỉa hè tới đáy ban công, sê nô trong trường hợp ban công nhô ra khỏi ranh lộ giới.

  • Độ cao sàn không vượt quá 3.8m: nếu đường lộ giới thấp hơn 3.5m. Khi đó, độ cao tầng nhà được xác định theo thước lỗ ban từ mặt sàn tầng trệt (tầng 1) đến sàn lầu 1  (tầng 2) và không được làm tầng lửng.

  • Chiều cao tầng trệt nhà phố không quá 5.8m: đối với đường lộ giới từ 3.5m đến dưới 20m thì được phép làm tầng lửng.

  • Tổng chiều cao từ sàn trệt (tầng 1) lên đến lầu 1 (tầng 2) được phép tối đa 7m: với đường lộ giới từ 20m trở lên, và được phép xây tầng lửng.

Độ cao tầng nhà được xác định theo đường lộ giới
Độ cao tầng nhà được xác định theo đường lộ giới

Cách tính chiều cao tầng trệt nhà phố theo quy hoạch

  • Việc tính toán chiều cao nhà và số tầng phụ thuộc vào quy hoạch chung của từng khu vực. 

  • Chiều cao tầng trệt tính từ mặt sàn tầng 1 đến mặt sàn tầng 2. Trường hợp xây nhà 1 tầng thì chiều cao trệt là độ cao từ nền tầng 1 đến đỉnh mái nhà.

Quy định xây dựng chiều cao tầng trệt các loại nhà phố
Quy định xây dựng chiều cao tầng trệt các loại nhà phố
  • Bảng số liệu quy định chiều cao xây tầng trệt chia làm 3 trường hợp cụ thể:

    • Chiều rộng lộ giới lớn hơn 20m: chiều cao tầng trệt tối đa là 7m

    • Chiều rộng lộ giới từ 7m đến 12m thì chiều cao tầng trệt theo quy định tối đa là 5.8m

    • Chiều rộng lộ giới dưới 3.5m thì chiều cao tầng trệt tối đa theo quy định là 3.8m

  • Chiều cao lý tưởng nhất cho tầng trệt nhà phố theo ý kiến chuyên gia là từ 3.6m đến 5m. 

Cách tính chiều cao tầng hầm nhà phố theo quy hoạch 

  • Phần nổi của tầng hầm (tính đến sàn tầng trệt) không quá 1,2m so với cao độ vỉa hè hiện hữu ổn định.

  • Vị trí đường xuống tầng hầm (ram dốc) cách ranh lộ giới tối thiểu 3m. Xây bán hầm độ sâu tối thiểu 1.5m so với mặt đường, xây hầm phải sâu trên 1.5m. 

  • Đối với nhà ở liên kế có mặt tiền xây dựng giáp với đường có lộ giới nhỏ hơn 6m, không thiết kế tầng hầm có lối lên xuống dành cho ô tô tiếp cận trực tiếp với đường.

  • Chiều cao tối thiểu của một tầng hầm là 2.2m, chiều cao đường dốc hầm phải lớn hơn 2.2m, để đảm bảo độ cao an toàn mà các phương tiện có thể lưu thông trong hầm.

  • Tầng hầm có nhiều đà thì cao độ sẽ bị giảm xuống 20 - 30cm, khiến không gian xe cộ di chuyển bị bít khó khăn.

Chiều cao tầng hầm không được dưới 2.2m
Chiều cao tầng hầm không được dưới 2.2m

Cách tính chiều cao tầng nhà có gác lửng theo quy hoạch

  • Chiều cao tầng gác lửng thấp hơn 50 - 80cm so với cao độ các tầng thông thường. Trước tầng lửng thường được chừa ra một khoảng trống nhỏ, tạo ra không gian đệm thông thoáng giữa gác lửng với tầng dưới.

  • Tầng gác lửng thường được xây với diện tích khoảng ⅔ chiều sâu ngôi nhà, chiều cao dao động từ 1.8m đến 2.5m.

Tầng gác lửng có chiều cao dao động 1.8 - 2.5m
Tầng gác lửng có chiều cao dao động 1.8 - 2.5m

Cách tính chiều cao tầng nhà phố theo quy tắc phong thủy

  • Các nước phương Đông quan niệm phong thuỷ ảnh hưởng tới nhiều kiến trúc tổng thể của một ngôi nhà từ chiều cao các tầng tới phương hướng. 

  • Xây tầng quá cao hay quá thấp rước tới nhiều vận rủi, làm suy giảm sức khoẻ, tiền của.

  • Phong thuỷ chia kiến trúc ngôi nhà thành 3 tầng:

    • Tầng thái âm: độ cao 40cm tính từ sàn nhà lên, tích tụ nhiều khí âm.

    • Tầng thái dương: chiều cao khoảng 60cm tính từ trần nhà xuống, quy tụ nhiều khí dương.

    • Tầng thái hòa: độ cao dao động trong khoảng 1,8m – 2,5m so với bề mặt sàn. Đây là tầng ở giữa. 

  • Để tầng khí thái dương và thái âm ở mức bình quân không xâm lấn vào tầng khí thái hoà là tuyến thở của con người thì chiều cao thông thuỷ của tầng được tính theo thông số sau:

    • Diện tích phòng > 30m2: chiều cao thông thuỷ từ 3.25m đến 4.1m.

    • Diện tích phòng <30m2: chiều cao thông thuỷ từ 3.15m trở lên.

  • Những thông số thông thuỷ các tầng như vậy sẽ không làm ảnh hưởng tới tuyến thở của người ở.

Tham khảo thêm: Nhà ở mặt phố kiểu kiến trúc như thế nào? 

Dùng thước lỗ ban đo chiều cao các tầng để lấy thông số vàng
Dùng thước lỗ ban đo chiều cao các tầng để lấy thông số vàng

Cách tính chiều cao tầng nhà phố theo thước lỗ ban

  • Thước lỗ ban là công cụ dùng để đo đạc các thông số khi xây nhà hay sửa chữa đồ vật. 

  • Thước lỗ ban mang lại thông số vàng cho nhà cửa, thu hút vận may, tài lộc cho chủ nhà.

  • Độ cao tầng nhà lý tưởng đo theo thước lỗ ban tính từ mặt sàn tầng dưới tới mặt sàn tầng trên là 3.4m, độ cao từ mặt sàn tới sàn mái là 3m, chiều cao từ vỉa hè đến đáy ban công là 3.5m. 

  • Xây nhà từ 2 tầng trở lên thì chiều cao nhà theo các tầng sẽ tỷ lệ thuận với diện tích xây dựng cầu thang bộ.

  • Phòng bếp, phòng ăn và phòng ngủ, những không gian cần xây thấp và ấm cúng thì độ cao theo thước lỗ ban từ 3m đến 3.3m.

  • Với đường lộ giới thấp hơn 3.5m thì độ cao sàn không vượt quá 3.8m. Khi đó, độ cao tầng nhà sẽ tính theo thước lỗ ban từ mặt sàn tầng trệt (tầng 1) đến sàn lầu 1 (tầng 2) và không được làm tầng lửng.

  • Nếu đường lộ giới từ 3.5m đến dưới 20m thì chiều cao tầng trệt nhà phố không vượt quá 5,8m, được phép làm tầng lửng. 

  • Nếu đường lộ giới từ 20m trở lên thì độ cao sàn được phép lên tới 7m, được phép bố trí tầng lửng.

Qua bài viết trên đây, Kiến trúc Vinavic đã đề ra những phương pháp tính toán chiều cao tầng nhà phố đa dạng và tiện nghi cho những gia chủ đang có ý định lên ý tưởng bản vẽ thiết kế thi công.

Để được tư vấn thêm về các thủ tục đo lường kích thước xây dựng khác, xin vui lòng liên hệ số hotline 0975678930 (khu vực Hà Nội) và 0982303304 (khu vực TP HCM).

By https://vinavic.vn/
https://vinavic.vn/

Đánh giá - Bình luận
0 bình luận, đánh giá về Tính toán chiều cao tầng nhà phố bao nhiêu là hợp lý nhất?
Nhấn vào đây để đánh giá
Thông tin người gửi
Phong thủy
Chúng tôi có thể hỗ trợ bạn!
1.27233 sec| 2513.641 kb