Top 9 bản vẽ nhà 3 tầng với thiết kế tiện nghi hiện đại
Bản vẽ nhà 3 tầng là một bản vẽ kỹ thuật thể hiện chi tiết về hình dáng, kích thước, bố cục và cách bố trí các phòng chức năng của một ngôi nhà 3 tầng. Bản vẽ này được sử dụng trong quá trình xây dựng nhà ở, giúp chủ nhà và nhà thầu có thể hình dung được chi tiết về ngôi nhà trước khi xây dựng, từ đó đảm bảo quá trình xây dựng diễn ra đúng kế hoạch và tránh được những sai sót không đáng có. Hãy cùng khám phá và lựa chọn cho mình một mẫu bản vẽ mẫu nhà 3 tầng ấn tượng nhé!

Tổng quan thiết kế bản vẽ nhà 3 tầng
Bản vẽ nhà 3 tầng là một bản vẽ kỹ thuật quan trọng trong quá trình xây dựng, giúp quý khách hàng có được cái nhìn tổng quan về toàn bộ công trình. Bản vẽ bao gồm toàn bộ thông tin chi tiết về diện tích, kiến trúc, cơ sở vật liệu, điện nước, nội thất, hệ thống thông gió và cách bố trí, vị trí các công trình khác như sân vườn, garage. Vì vậy, thiết kế bản vẽ cho nhà 3 tầng cần được thực hiện một cách chính xác, tỉ mỉ để đảm bảo tính an toàn, tiện nghi và độ bền của công trình sau này.
Vai trò của bản vẽ nhà 3 tầng
Giúp gia chủ hình dung được ngôi nhà của mình trong tương lai
-
Bản vẽ kiến trúc nhà 3 tầng là công cụ trực quan nhất giúp gia chủ hình dung được ngôi nhà của mình trong tương lai. Từ đó, gia chủ có thể đưa ra những điều chỉnh phù hợp để ngôi nhà đáp ứng được nhu cầu và sở thích của mình.
Giúp nhà thầu xây dựng thi công đúng theo thiết kế
-
Bản vẽ kỹ thuật nhà 3 tầng là tài liệu quan trọng giúp nhà thầu xây dựng thi công đúng theo thiết kế. Nếu nhà thầu thi công sai lệch so với bản vẽ, có thể dẫn đến những hậu quả nghiêm trọng như: ngôi nhà không đảm bảo chất lượng, an toàn, thậm chí là không thể sử dụng được.
Giúp gia chủ tiết kiệm chi phí xây dựng
-
Bản vẽ thiết kế nhà 3 tầng được thực hiện bởi các kiến trúc sư và kỹ sư xây dựng chuyên nghiệp, họ có kinh nghiệm và kiến thức để tính toán chính xác các chi phí xây dựng. Từ đó, gia chủ có thể ước tính được chi phí xây dựng một cách chính xác, tránh những phát sinh không đáng có trong quá trình xây dựng.
Giúp gia chủ xin giấy phép xây dựng
-
Trước khi tiến hành xây dựng nhà ở, gia chủ cần phải xin giấy phép xây dựng từ cơ quan chức năng. Bản vẽ thiết kế nhà 3 tầng là một trong những tài liệu quan trọng cần phải có để xin giấy phép xây dựng.
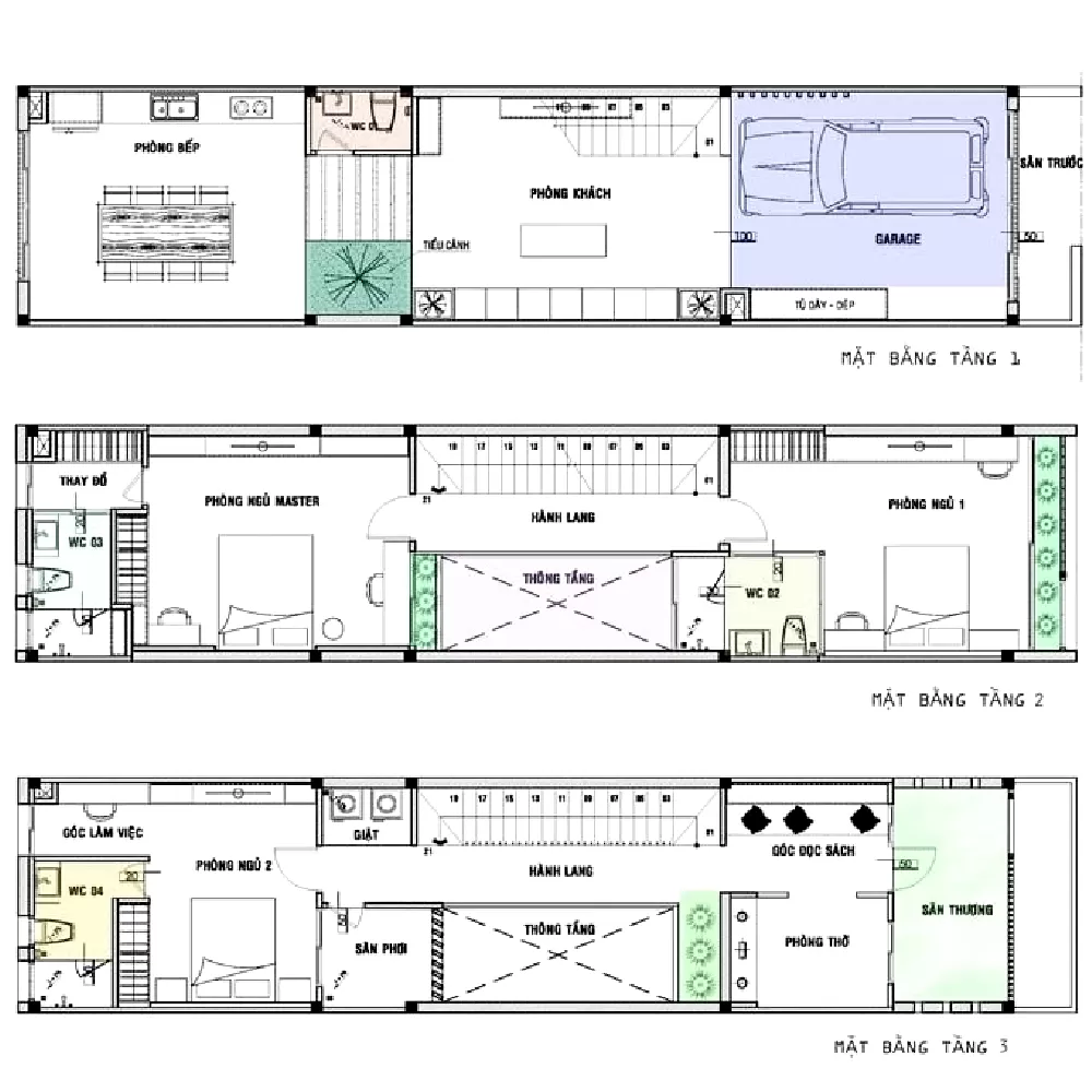
Bản vẽ nhà 3 tầng gồm những gì?
Phần kiến trúc
-
Bản vẽ mặt bằng tổng thể nhà 3 tầng: thể hiện tổng thể hình dáng, kích thước, vị trí của ngôi nhà trên lô đất.
-
Mặt bằng các tầng: thể hiện bố trí các phòng chức năng, kích thước, vị trí của các phòng, cửa, cầu thang,...
-
Mặt đứng: thể hiện hình khối, kích thước, vật liệu của các mặt đứng của ngôi nhà.
-
Mặt cắt: thể hiện hình dáng, kích thước, kết cấu của các mặt cắt của ngôi nhà.
-
Phối cảnh: thể hiện tổng thể hình dáng, màu sắc, chất liệu của ngôi nhà.
Phần kết cấu
-
Bản vẽ kết cấu nhà 3 tầng: thể hiện kết cấu móng của ngôi nhà.
-
Cột, dầm, sàn: thể hiện kết cấu cột, dầm, sàn của ngôi nhà.
-
Mái: thể hiện kết cấu mái của ngôi nhà.
-
Lan can, cầu thang: thể hiện kết cấu lan can, cầu thang của ngôi nhà.

Phần điện nước
-
Điện: thể hiện hệ thống điện chiếu sáng, điện dân dụng, điện công trình của ngôi nhà.
-
Nước: thể hiện hệ thống cấp nước, thoát nước của ngôi nhà.
Thời gian thực hiện bản vẽ thiết kế nhà 3 tầng
Thời gian thực hiện bản vẽ mẫu nhà 3 tầng phụ thuộc vào nhiều yếu tố, bao gồm:
-
Kích thước và diện tích ngôi nhà: Ngôi nhà càng lớn và phức tạp thì thời gian thực hiện càng lâu.
-
Phong cách kiến trúc: Ngôi nhà theo phong cách cổ điển hoặc tân cổ điển sẽ mất nhiều thời gian hơn ngôi nhà theo phong cách hiện đại.
-
Yêu cầu của gia chủ: Nếu gia chủ có nhiều yêu cầu về thiết kế thì thời gian thực hiện cũng sẽ lâu hơn.
Thông thường, thời gian thực hiện bản vẽ thiết kế mẫu nhà 3 tầng dao động từ 1-2 tháng. Tuy nhiên, nếu gia chủ có nhu cầu gấp thì thời gian có thể rút ngắn xuống còn 1 tháng.
Dưới đây là bảng ước tính thời gian thực hiện bản vẽ kiến trúc mẫu nhà 3 tầng theo từng hạng mục:
|
Hạng mục |
Thời gian thực hiện |
|---|---|
|
Kiến trúc |
10-15 ngày |
|
Kết cấu |
10-15 ngày |
|
Điện nước |
5-10 ngày |
|
Tổng cộng |
30-40 ngày |
Trong quá trình thực hiện bản vẽ, kiến trúc sư sẽ thường xuyên trao đổi với gia chủ để đảm bảo bản vẽ đáp ứng được nhu cầu và mong muốn của gia chủ.
Chi phí bản vẽ thiết kế nhà 3 tầng là bao nhiêu?
Chi phí để thiết kế bản vẽ mẫu nhà 3 tầng cũng phụ thuộc vào nhiều yếu tố như: diện tích ngôi nhà, độ phức tạp của thiết kế, số lượng phòng, …Một bản vẽ thiết kế nhà 3 tầng đẹp hoàn chỉnh có thể có chi phí từ 20 triệu đến 30 triệu đồng.
-
Kích thước và diện tích ngôi nhà: Ngôi nhà càng lớn và phức tạp thì chi phí càng cao.
-
Phong cách kiến trúc: Ngôi nhà theo phong cách cổ điển hoặc tân cổ điển sẽ có chi phí cao hơn ngôi nhà theo phong cách hiện đại.
-
Yêu cầu của gia chủ: Nếu gia chủ có nhiều yêu cầu về thiết kế thì chi phí cũng sẽ cao hơn.
Thông thường, chi phí bản vẽ thiết kế nhà 3 tầng dao động từ 100.000 - 200.000 VNĐ/m2.
Dưới đây là bảng ước tính chi phí bản vẽ thiết kế nhà 3 tầng theo diện tích:
|
Diện tích |
Chi phí |
|---|---|
|
50m2 |
5.000.000 - 10.000.000 VNĐ |
|
100m2 |
10.000.000 - 20.000.000 VNĐ |
|
150m2 |
15.000.000 - 30.000.000 VNĐ |
|
200m2 |
20.000.000 - 40.000.000 VNĐ |
Để biết chính xác chi phí bản vẽ thiết kế nhà 3 tầng, gia chủ nên liên hệ trực tiếp với các đơn vị thiết kế để được tư vấn và báo giá cụ thể.
Lưu ý khi thiết kế bản vẽ nhà 3 tầng
Để có một ngôi nhà 3 tầng đẹp, tiện nghi và phù hợp với nhu cầu sử dụng, gia chủ cần lưu ý một số vấn đề sau khi thiết kế bản vẽ:
Xác định nhu cầu sử dụng
-
Trước khi bắt đầu thiết kế bản vẽ nhà 3 tầng, gia chủ cần xác định rõ nhu cầu sử dụng của gia đình mình. Bao nhiêu người sẽ sống trong nhà? Các thành viên trong gia đình có sở thích và thói quen gì? Từ đó, kiến trúc sư sẽ đưa ra những phương án thiết kế phù hợp với nhu cầu của gia chủ.
Lựa chọn phong cách thiết kế
-
Phong cách thiết kế sẽ quyết định đến vẻ đẹp tổng thể của ngôi nhà. Hiện nay, có rất nhiều phong cách thiết kế nhà phố 3 tầng khác nhau, từ hiện đại, tân cổ điển đến cổ điển. Gia chủ nên lựa chọn phong cách thiết kế phù hợp với sở thích và cá tính của mình.
Cân nhắc diện tích đất xây dựng
-
Diện tích đất xây dựng sẽ ảnh hưởng đến quy mô và bố cục của ngôi nhà. Nếu diện tích đất nhỏ, gia chủ nên lựa chọn những mẫu nhà phố 3 tầng có thiết kế đơn giản, tối ưu công năng sử dụng.
Lựa chọn vật liệu xây dựng
-
Vật liệu xây dựng có ảnh hưởng đến độ bền, thẩm mỹ và chi phí xây dựng của ngôi nhà. Gia chủ nên lựa chọn những vật liệu chất lượng, phù hợp với điều kiện khí hậu và tài chính của gia đình.
Tính toán chi phí xây dựng
-
Trước khi bắt đầu xây dựng, gia chủ cần tính toán chi phí xây dựng một cách chính xác để tránh phát sinh chi phí ngoài ý muốn. Chi phí xây dựng nhà 3 tầng phụ thuộc vào nhiều yếu tố như diện tích xây dựng, vật liệu xây dựng, nhân công,...
Dưới đây là một số lưu ý cụ thể về thiết kế từng tầng của nhà 3 tầng:
-
Tầng 1: Tầng 1 thường là nơi dành cho các không gian sinh hoạt chung như phòng khách, phòng bếp, phòng ăn, gara ô tô,... Gia chủ nên bố trí các không gian này một cách hợp lý, đảm bảo sự thông thoáng và thuận tiện cho sinh hoạt.
-
Tầng 2: Tầng 2 thường là nơi dành cho các phòng ngủ và phòng vệ sinh. Gia chủ nên bố trí các phòng ngủ hợp lý với nhu cầu sử dụng của các thành viên trong gia đình.
-
Tầng 3: Tầng 3 thường là nơi dành cho các phòng chức năng như phòng thờ, phòng giặt, phòng kho,... Gia chủ có thể bố trí các phòng chức năng này theo nhu cầu sử dụng của gia đình.
Tìm kiếm đơn vị thiết kế uy tín
Để có một bản vẽ thiết kế mẫu nhà 3 tầng đẹp, đáp ứng được nhu cầu sử dụng và sở thích của gia chủ, gia chủ nên tìm kiếm đơn vị thiết kế uy tín. Một đơn vị thiết kế uy tín sẽ có đội ngũ kiến trúc sư có kinh nghiệm, chuyên môn cao, đảm bảo mang đến cho gia chủ những bản vẽ nhà ưng ý nhất.
Các mẫu bản nhà 3 tầng tiện nghi thiết kế hiện đại
Bản vẽ nhà ống 3 tầng đẹp hiện đại
Mẫu nhà ống 3 tầng với mái bằng thể hiện sự tập trung vào công năng sử dụng, có thiết kế đơn giản. Phần mái bằng thường được sử dụng để tạo sân thượng với không gian trồng cây hoặc làm sân phơi đồ.

Bản vẽ thiết kế nhà 3 tầng 4x20m
Ngôi nhà thể hiện một kiến trúc hiện đại với đường nét tinh tế và cân đối, sáng tạo hình dáng mạnh mẽ và sức khỏe. Màu sắc chính của ngôi nhà tập trung vào các tông màu trung tính bí ẩn, kết hợp với màu trắng tinh tế, tạo nên sự tươi mới và trẻ trung cho toàn bộ ngôi nhà.
Tầng 2 của kiến trúc được thiết kế với hình dạng bo tròn, mang đến sự mềm mại và sự uyển chuyển cho công trình. Đồng thời, khu vườn xanh được sắp xếp một cách tinh tế và tỷ mỉ, tạo ra một không gian sống xanh mát và thân thiện với thiên nhiên cho mọi thành viên trong gia đình.



Bản vẽ thiết kế nhà 3 tầng 5x15m
Mẫu nhà ống 3 tầng với kích thước 5x15m và 4 phòng ngủ, thiết kế theo phong cách hiện đại, sử dụng một cách tối ưu không gian và mở rộng diện tích sử dụng, đảm bảo đáp ứng đầy đủ các nhu cầu cho một gia đình 5 thành viên. Tầng hầm có phần mặt tiền được thiết kế dạng khối hộp mở. Không gian sinh hoạt chung bắt đầu từ tầng 1, với hệ cửa kính rộng và cao, tạo sự kết nối với bên ngoài và tận dụng ánh sáng tự nhiên. Mảng tường phía trước tầng 2 được tô màu vàng đậm, tạo hiệu ứng hấp dẫn cho toàn bộ ngôi nhà.
Xem thêm: Cẩm nang thiết kế nhà 3 tầng 7x11m cho gia đình đông thành viên
Bản vẽ thiết kế nhà 3 tầng có gác lửng
Một ngôi nhà ống 3 tầng với gác lửng là một lựa chọn hoàn hảo cho các gia đình sở hữu xe riêng, không chỉ về khía cạnh tính năng mà còn bởi vẻ đẹp hiện đại và sang trọng của nó. Ngôi nhà này thu hút hàng triệu khách hàng bởi không gian mở rộng, đầy ánh sáng tự nhiên, tạo ra một môi trường sống thoải mái và tươi mát.
Bản vẽ nhà ống 3 tầng 5x20m
Nhìn vào bề mặt trước của ngôi nhà hiện đại 3 tầng, bao gồm tầng hầm, bạn sẽ không thể không bị ấn tượng bởi sự lớn mạnh và sang trọng của nó. Bởi với việc sử dụng một sự kết hợp độc đáo, với màu trắng làm chủ đạo kết hợp một cách hài hòa với màu nâu gỗ mộc mạc.



Bản vẽ thiết kế nhà 3 tầng 4 phòng ngủ
Thiết kế hiện đại đã trở thành một xu hướng phổ biến trong thiết kế nhà ở hiện nay. Các ngôi nhà được xây dựng theo phong cách này thường có cấu trúc đơn giản và gọn gàng. Khi thiết kế một ngôi nhà hiện đại, các kiến trúc sư không chú trọng vào việc sử dụng các chi tiết trang trí để tôn vinh vẻ đẹp của ngôi nhà. Thay vào đó, họ tập trung vào việc tạo ra sự hài hòa thông qua sự kết hợp của các hình khối.


Hy vọng rằng thông tin trong bài viết đã giúp bạn có cái nhìn tổng quan về bản vẽ nhà 3 tầng và lựa chọn cho mình một mẫu thiết kế phù hợp. Hãy để ngôi nhà mới của bạn trở thành không gian sống thoải mái và tiện nghi nhất.