Chi Tiết Bản Vẽ Kết Cấu Móng Nhà 1 Tầng Chuẩn Kỹ Thuật
- 1. Vai Trò Của Bản Vẽ Kết Cấu Móng Trong Thi Công
- 2. Nội Dung Cần Có Trong Bản Vẽ Kết Cấu Móng Nhà 1 Tầng
- 3. Những Lưu Ý Khi Thiết Kế Chi Tiết Móng Nhà 1 Tầng
- 4. 3 Loại Móng Nhà Phổ Biến Trong Xây Dựng Nhà 1 Tầng
- 5. Tiêu Chuẩn Kỹ Thuật Cho Kết Cấu Móng Nhà 1 Tầng
- 6. Thông Số Cấu Tạo Móng Băng Cho Nhà 1 Tầng
- 7. Tải Mẫu Bản Vẽ Kết Cấu Móng Nhà 1 Tầng
- 8. Quy Trình Thi Công Móng Nhà 1 Tầng Đúng Kỹ Thuật
Trong thi công nhà ở dân dụng, móng nhà là cấu kiện quan trọng nhất, quyết định đến độ ổn định và tuổi thọ công trình. Đặc biệt với nhà 1 tầng, việc thiết kế và triển khai chi tiết Bản Vẽ Kết Cấu Móng Nhà 1 Tầng đúng chuẩn kỹ thuật là điều kiện tiên quyết để đảm bảo chất lượng thi công và tối ưu chi phí.
Vai Trò Của Bản Vẽ Kết Cấu Móng Trong Thi Công
Bản vẽ không chỉ là tài liệu thi công mà còn là căn cứ pháp lý, phục vụ nghiệm thu, kiểm tra chất lượng và quyết toán công trình. Nếu sai lệch dù nhỏ, có thể gây lún nứt, ảnh hưởng nghiêm trọng đến toàn bộ kết cấu nhà.

Nội Dung Cần Có Trong Bản Vẽ Kết Cấu Móng Nhà 1 Tầng
Một bản vẽ kết cấu móng nhà 1 tầng chuẩn kỹ thuật cần thể hiện rõ ràng, chính xác các hạng mục sau:
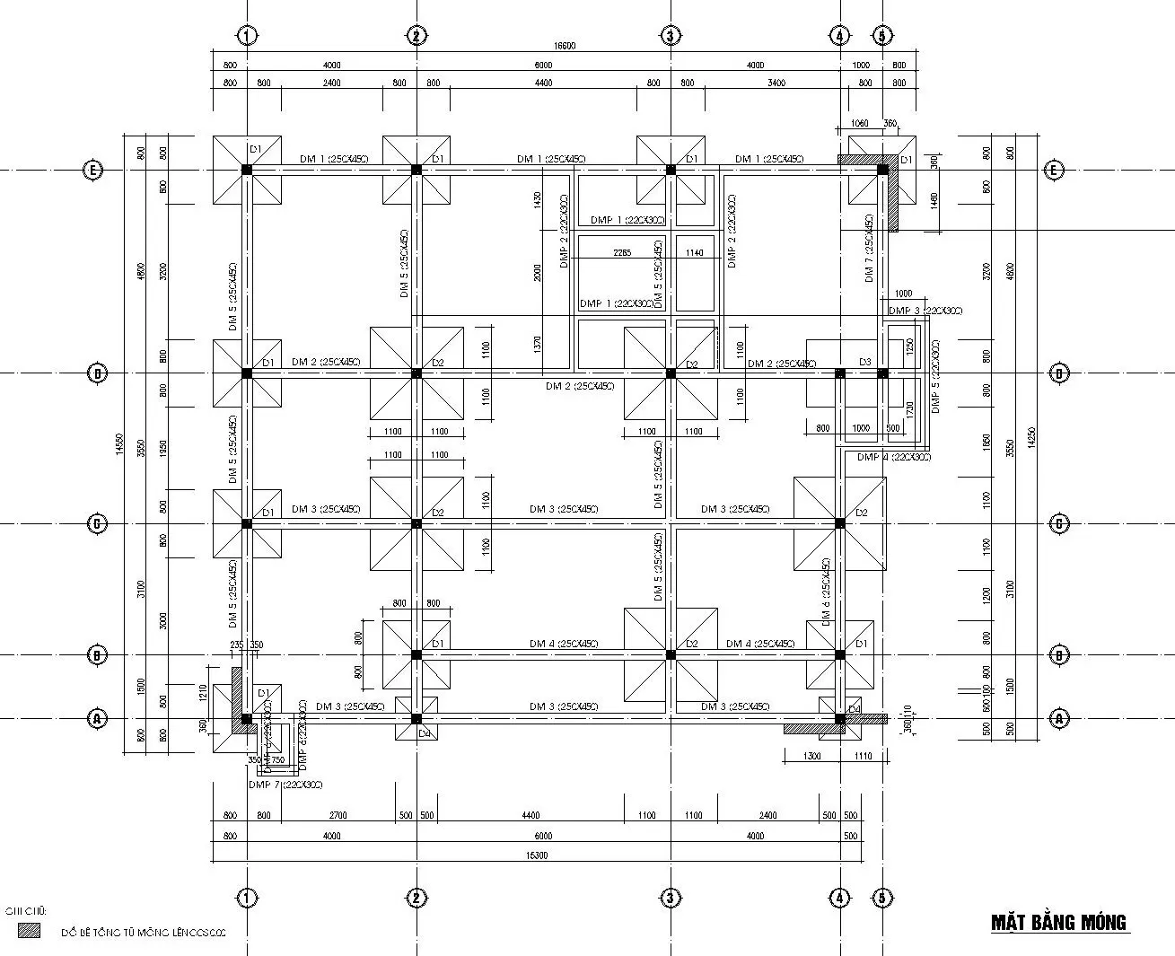
Bố Trí Móng Trên Mặt Bằng
-
Thể hiện vị trí, số lượng, kích thước móng
-
Thống kê các trục chịu lực chính
-
Xác định cao độ đáy móng theo cốt ±0.000
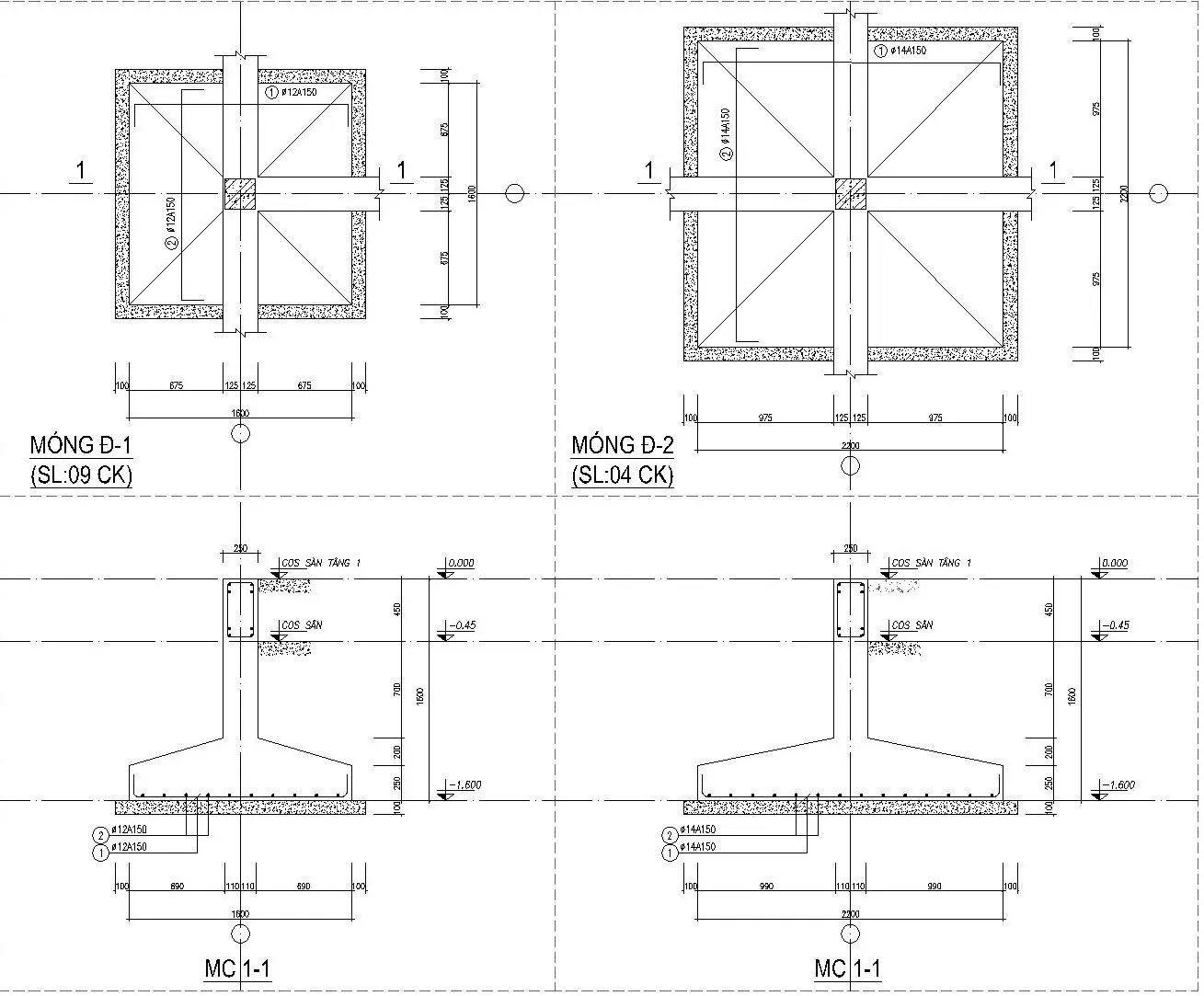
Chi Tiết Cốt Thép Móng
-
Cấu tạo thép móng (thép dọc, thép đai, thép chịu lực)
-
Ký hiệu, đường kính, khoảng cách bố trí thép
-
Bản vẽ cần tuân thủ tiêu chuẩn Việt Nam (TCVN) về cốt thép kết cấu
Ghi Chú Kỹ Thuật & Tiêu Chuẩn Thi Công
-
Cấp phối bê tông (thường dùng B20 trở lên)
-
Lớp bê tông lót, chống thấm móng
-
Ghi chú biện pháp bảo dưỡng, chống co ngót và thời gian tháo ván khuôn
Những Lưu Ý Khi Thiết Kế Chi Tiết Móng Nhà 1 Tầng
Để bản vẽ móng đạt chuẩn kỹ thuật, cần lưu ý:
-
Khảo sát địa chất đầy đủ trước khi thiết kế
-
Tính toán tải trọng truyền xuống móng theo tiêu chuẩn
-
Lựa chọn loại móng phù hợp để tránh lãng phí vật liệu
-
Bản vẽ phải đồng bộ với hồ sơ thiết kế kiến trúc, điện, nước
3 Loại Móng Nhà Phổ Biến Trong Xây Dựng Nhà 1 Tầng
Móng nhà 1 tầng thường được lựa chọn theo các loại phổ biến: móng đơn, móng băng, móng bè. Tùy thuộc vào điều kiện địa chất và tải trọng công trình, kỹ sư kết cấu sẽ đưa ra giải pháp phù hợp nhằm đảm bảo:
-
Chịu lực tốt theo phương đứng và phương ngang
-
Hạn chế lún lệch, mất cân bằng kết cấu
-
Tối ưu hóa chi phí vật liệu và thi công
Tiêu Chuẩn Kỹ Thuật Cho Kết Cấu Móng Nhà 1 Tầng
Việc thiết kế móng nhà 1 tầng cần tuân thủ nghiêm ngặt các tiêu chuẩn kết cấu tương ứng với từng loại móng. Dưới đây là các yêu cầu kỹ thuật cụ thể Bản Vẽ Kết Cấu Móng Nhà 1 Tầng giúp đảm bảo độ ổn định, an toàn và tuổi thọ công trình trong điều kiện sử dụng thực tế:
Tiêu Chuẩn Kết Cấu Móng Băng Cho Nhà 1 Tầng
Móng băng thường được sử dụng trên các nền đất có khả năng chịu lực trung bình đến yếu. Đặc biệt, tại các khu vực có nguy cơ sụt lún như đất bùn, đất ao cải tạo hoặc ven kênh rạch, việc khảo sát địa chất và đánh giá các yếu tố ngoại lực là bắt buộc.
-
Chiều rộng bản móng và độ sâu chôn móng cần được tính toán dựa trên tải trọng công trình và chiều rộng tường hoặc trục cột.
-
Phải bố trí thép chịu lực dọc liên tục và thép đai theo đúng tiêu chuẩn TCVN 5574:2018.
-
Sử dụng bê tông mác ≥ B20, đổ liền khối để hạn chế nứt móng do co ngót hoặc lún không đều.
Tiêu Chuẩn Kết Cấu Móng Bè Nhà 1 Tầng
Móng bè được áp dụng khi cần phân tán tải trọng lên toàn bộ bề mặt nền, thích hợp cho công trình xây trên nền đất yếu.
-
Cần đảm bảo độ ẩm nền đất ổn định trước và trong quá trình đổ bê tông để tránh co ngót gây nứt nền.
-
Chiều dày bản móng bè phổ biến từ 200–300mm, tăng cường cốt thép 2 lớp trên – dưới để chịu uốn và phân phối đều lực.
-
Trong trường hợp cần tăng cường độ cứng, có thể kết hợp móng bè với cọc tre hoặc cọc BTCT nhỏ nhằm gia cố nền.
Tiêu Chuẩn Kết Cấu Móng Đơn Nhà 1 Tầng
Móng đơn phù hợp với công trình tải trọng nhẹ và nền đất ổn định.
-
Trước khi thiết kế, cần khảo sát địa chất kỹ lưỡng để xác định chiều sâu chôn móng và kích thước đế móng hợp lý.
-
Móng thường có dạng hình vuông hoặc chữ nhật, với cốt thép bố trí theo phương song song và vuông góc với phương truyền lực chính.
-
Quá trình thi công phải có sự giám sát kỹ thuật thường xuyên để đảm bảo thi công đúng bản vẽ thiết kế, tránh lệch cốt hoặc sai kích thước hình học.
Tiêu Chuẩn Móng Cọc Dành Cho Nhà 1 Tầng
Mặc dù nhà 1 tầng thường không yêu cầu móng sâu, nhưng trong trường hợp nền đất yếu hoặc công trình đặc biệt (như có bể nước ngầm, tầng bán hầm…), móng cọc vẫn được ưu tiên.
-
Số lượng và chiều dài cọc cần được tính toán dựa trên biểu đồ địa chất và tải trọng thiết kế.
-
Đài móng phải đủ cứng, được thiết kế liên kết chắc chắn với đầu cọc, có khả năng chịu nén, cắt và uốn.
-
Đảm bảo chiều sâu chôn đài móng > 0,5m so với mặt đất tự nhiên để tránh ảnh hưởng bởi sự thay đổi nhiệt độ, độ ẩm bề mặt.
Thông Số Cấu Tạo Móng Băng Cho Nhà 1 Tầng
Khi áp dụng phương án móng băng trong thiết kế nhà 1 tầng, cần tuân thủ thông số kỹ thuật cụ thể để đảm bảo tính ổn định và hiệu quả chịu lực:
-
Chiều dày bản móng: từ 200mm đến 350mm tùy theo tải trọng
-
Chiều rộng bản móng: tối thiểu 900mm
-
Thép sàn móng: sử dụng thép D12 bố trí cách nhau 150mm (Φ12a150)
-
Kích thước dầm móng: rộng 300mm, cao 500mm (b300 × h500)
-
Cốt thép dầm: 6 thanh D18 làm thép chủ, đai D8 cách 150mm (6Φ18, Φ8a150)
Tải Mẫu Bản Vẽ Kết Cấu Móng Nhà 1 Tầng
Để hỗ trợ chủ đầu tư và kỹ sư thi công, chúng tôi cung cấp các mẫu bản vẽ móng nhà 1 tầng chuẩn kỹ thuật, bao gồm:
Quy Trình Thi Công Móng Nhà 1 Tầng Đúng Kỹ Thuật
Mỗi công trình sẽ có điều kiện thi công và yêu cầu kỹ thuật khác nhau, tuy nhiên quy trình thi công móng nhà vẫn cần tuân thủ các bước cơ bản để đảm bảo độ bền vững và chất lượng kết cấu. Dưới đây là quy trình thi công móng nhà 1 tầng được áp dụng phổ biến trong thực tế:
Bước 1: Đào hố móng theo thiết kế
Sử dụng máy đào hoặc thủ công để tạo hình hố móng theo đúng kích thước và cao độ quy định. Cần kiểm tra địa tầng, loại bỏ lớp đất yếu nếu cần.
Bước 2: San phẳng và đầm chặt đáy hố móng
Đáy móng cần được xử lý kỹ để đảm bảo độ bằng phẳng và khả năng chịu lực, tránh sụt lún cục bộ sau khi công trình đi vào sử dụng.
Bước 3: Căn chỉnh cao độ lớp bê tông lót móng
Trước khi lót bê tông, cần đo đạc và đánh dấu cốt chuẩn (±0.000), sau đó đổ bê tông mác thấp (B7.5–B10) tạo lớp lót dày 100mm.
Bước 4: Thi công cốt thép móng và cắt đầu cọc (nếu có)
Trong trường hợp sử dụng móng cọc, phần đầu cọc sẽ được cắt đúng cao trình để liên kết với đài móng. Sau đó tiến hành gia công, lắp dựng cốt thép theo bản vẽ kỹ thuật.
Bước 5: Ghép cốp pha cho móng và dầm móng
Cốp pha phải chắc chắn, đúng hình dạng kết cấu móng, đảm bảo kín khít để không bị rò rỉ vữa trong quá trình đổ bê tông.
Bước 6: Đổ bê tông móng và dầm móng
Bê tông móng phải được đổ liên tục, đảm bảo độ đồng nhất và không có mạch ngừng. Cần đầm dùi kỹ và tuân thủ thời gian ninh kết tiêu chuẩn.
Bước 7: Tháo dỡ cốp pha móng
Sau 2–3 ngày (tuỳ thời tiết và điều kiện), cốp pha có thể được tháo. Tuy nhiên cần tránh va chạm vào bê tông mới để không làm tổn hại kết cấu.
Bước 8: Bảo dưỡng bê tông
Duy trì độ ẩm bằng cách tưới nước hoặc phủ bao ẩm liên tục trong 7 ngày đầu. Đây là bước quan trọng giúp bê tông đạt cường độ thiết kế.
Việc tuân thủ các tiêu chuẩn kết cấu móng nhà 1 tầng là điều kiện bắt buộc để đảm bảo độ bền, an toàn và khả năng chịu lực của công trình. Chủ đầu tư cần làm việc với kỹ sư kết cấu có chuyên môn, kết hợp khảo sát địa chất kỹ lưỡng để lựa chọn giải pháp móng tối ưu nhất.
Nếu bạn đang tìm kiếm đơn vị thiết kế và thi công nhà trọn gói chuyên nghiệp, uy tín và am hiểu từng chi tiết kỹ thuật từ móng đến mái, thì Vinavic chính là lựa chọn hoàn hảo. Với đội ngũ kiến trúc sư, kỹ sư kết cấu giàu kinh nghiệm và quy trình làm việc bài bản, Vinavic cam kết mang đến giải pháp xây dựng tối ưu – đúng chuẩn kỹ thuật, tối ưu chi phí, bàn giao đúng tiến độ.
Tham khảo thêm
97+ Mẫu biệt thự 1 tầng tân cổ điển đẹp sang trọng đẳng cấp nhất
TOP 100+ mẫu biệt thự 1 tầng hiện đại đển đẳng cấp và tiện nghi
200+ Mẫu Biệt Thự 1 Tầng Cổ Điển Xu Hướng Thiết Kế 2025
55 Mẫu Biệt Thự 1 Tầng Địa Trung Hải Đẹp Hút Mọi Ánh Nhìn
Top 15+ mẫu nhà biệt thự 1 tầng mái thái 3 4 phòng ngủ thịnh hành nhất
19+ Mẫu Biệt Thự 1 Tầng Mái Nhật Ấn Tượng Bạn Không Nên Bỏ Qua