TOP 10 bản vẽ xây dựng nhà 2 tầng với bố trí công năng hoàn hảo

Bản vẽ mặt bằng
0
1291
Nhung - 09/01/2025

Khi một công trình xây dựng được hình thành để đảm bảo các yếu tố về công năng, thẩm mỹ, phong thủy và đúng tiêu chuẩn kỹ thuật thì đều cần đến các bản vẽ thiết kế kiến trúc. Chính vì thế bản vẽ xây dựng nhà 2 tầng đang được rất nhiều người tìm kiếm trong thời gian vừa qua. Hãy cùng chúng mình tìm hiểu chi tiết mẫu bản vẽ này đế công trình của bạn được hoàn mỹ nhất nhé!

Chia sẻ TOP 10 bản vẽ xây dựng nhà 2 tầng đẹp full công năng
Chia sẻ TOP 10 bản vẽ xây dựng nhà 2 tầng đẹp full công năng

>> Có thể bạn quan tâm:

Có nên thuê giám sát xây nhà trọn gói hay không?

Cách tính thuế xây dựng nhà ở năm 2025 chính xác nhất

Dự toán chi phí xây nhà nghỉ theo từng số lượng phòng chuẩn nhất

Bản vẽ xây dựng nhà 2 tầng là gì?

Bản vẽ xây dựng nhà 2 tầng là thuật ngữ chuyên nghành trong giới thiết kế xây dựng. Bản vẽ có tác dụng phác thảo lại các thông tin những hạng mục cần có cho công trình xây dựng.

Các thông tin trên bản vẽ thường được thể hiện bằng ký hiệu chuyên ngành nhưng khá đơn giản, dễ đọc, giúp cho gia chủ hay những người ngoài ngành vẫn có thể dễ dàng theo dõi được các thông tin về diện tích xây dựng, bản vẽ mặt bằng các tầng, ban công hay nội thất,....mà không quá khó khăn.

Do đó các gia chủ nên đọc kỹ bản vẽ trước khi tiến hành xây dựng trực tiếp công trình nhà ở.

Bản vẽ xây dựng nhà 2 tầng là gì?

Vì sao cần có bản vẽ xây dựng nhà 2 tầng

Bản vẽ giúp tiết kiệm chi phí

Gia chủ cần tính toán cẩn thận để đảm bảo tiết kiệm được tối đa các chi phí xây dựng. Do vậy công trình cần có bản vẽ cụ thể, hạn chế tối đa các sai sót cơ bản xảy ra.

Đội ngũ kiến trúc sư cũng có thể đưa ra các phương án phù hợp nhất cho công trình của chủ nhà. Hơn nữa sau khi xem xong bản vẽ gia chủ có thể thay đổi hoặc điểu chỉnh cũng sẽ dễ dàng hơn.

Bản vẽ giúp dự tính được khối lượng vật tư sử dụng

Hoàn thiện bản vẽ xây dựng nhà 2 tầng trước khi thi công không chỉ giúp tiết kiệm chi phí mà còn cung cấp việc ước tính khối lượng vật tư mà công trình cần sử dụng trong việc thi công sau này. Hạn chế tình trạng thừa thiếu vật tư tránh lãng phí.

Vì sao cần có bản vẽ xây dựng nhà 2 tầng

Bản vẽ giúp đảm bảo thẩm mỹ

Thông qua bản vẽ xây dựng nhà 2 tầng gia chủ có thể nắm được tổng thể không gian sinh sống của gia đình từ đó đưa ra các góp ý để kiến trúc sư thay đổi sao cho phù hợp nhất với nhu cầu của các thành viên.

Bản vẽ giúp đẩy nhanh tiến độ thi công

Khi có bản vẽ thiết kế nhà 2 tầng bạn có thể đảm bảo để công trình thi công được nhanh chóng, thuận tiện hơn. Hạn chế các vấn đề phát sinh ảnh hưởng đến tiến độ thi công. Giúp cho gia đình được nhanh chóng nhận nhà mới mà vẫn đảm bảo chất lượng.

Các mẫu thiết kế bản vẽ xây dựng nhà 2 tầng đẹp và khoa học

Bản vẽ xây dựng nhà 2 tầng mái Thái

Mẫu thiết kế nhà 2 tầng mái Thái cũng là một trong số những lựa chọn hoàn hảo cho các gia đình hiện nay bởi tính thẩm mỹ cũng như công năng được sắp xếp khoa học. Dưới đây là bản vẽ xây dựng nhà mái Thái mà bạn có thể tham khảo: 

Bản vẽ xây dựng nhà 2 tầng mái Thái tầng 1
Bản vẽ xây dựng nhà 2 tầng mái Thái tầng 2

Bản vẽ xây dựng nhà 2 tầng mặt tiền 7m

Với điểm nhấn là mặt tiền 7m đem lại không gian sống vô cùng rộng rãi, thiết kế hiện đại cùng hình khối kiến trúc vững chắc là lựa chọn của không ít gia đình. 

Bản vẽ xây dựng nhà 2 tầng mặt tiền 7m tầng trệt
Bản vẽ xây dựng nhà 2 tầng mặt tiền 7m lầu 1

Bản vẽ xây dựng nhà 2 tầng 3 phòng ngủ

Mẫu bản vẽ nhà 2 tầng 3 phòng ngủ cho gia đình có 3-4 thành viên sinh sống có công năng khoa học, thiết kế không gian mở và nội thất tiện nghi. 

Bản vẽ xây dựng nhà 2 tầng 3 phòng ngủ tầng 1
Bản vẽ xây dựng nhà 2 tầng 3 phòng ngủ tầng 2

Bản vẽ xây dựng nhà 2 tầng 4 phòng ngủ

Mẫu thiết kế nhà 4 phòng ngủ rộng rãi là mơ ước của nhiều gia đình hiện nay. Bạn có thể tham khảo ngay bản vẽ này nhé. 

Bản vẽ xây dựng nhà 2 tầng 4 phòng ngủ tầng 1
Bản vẽ xây dựng nhà 2 tầng 4 phòng ngủ tầng 2

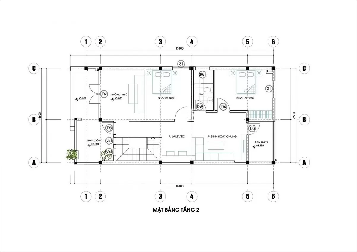
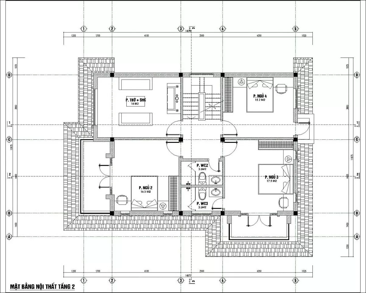
Bản vẽ xây dựng nhà 2 tầng 5 phòng ngủ

Tầng 1 chủ yếu tập trung vào tiếp đón khách và nấu nướng chung. Khu vực rộng nhất thường là phòng khách. Có 2 phòng ngủ kín ở sau phòng sinh hoạt chung, nối liền là WC. Tầng 2 được thiết kế phục vụ cho sinh hoạt cá nhân. Trong mỗi góc nhà là 3 phòng ngủ, bên cạnh mỗi phòng là nhà vệ sinh nhỏ để đảm bảo sinh hoạt cá nhân được riêng tư. 

Bản vẽ xây dựng nhà 2 tầng 5 phòng ngủ 100m2

Bản vẽ xây dựng nhà 2 tầng 7x14

Mẫu bản vẽ 2 tầng mặt tiền 7m sâu 14m là lựa chọn thích hợp cho những gia đình ưa thích sự đơn giản nhưng lại tiện nghi và tiết kiệm kinh phí. 

Bố trí công năng bản vẽ xây dựng nhà 2 tầng 7x14

Bản vẽ xây dựng nhà 2 tầng 9x11

Mẫu thiết kế này khá đơn giản chỉ dành cho những phòng chức năng cơ bản như khách, bếp ăn. Đồ nội thất thông minh và tiện nghi lối đi lại dễ dàng và thoải mái. 

Công năng bên trong nhà 2 tầng 9x11

Bản vẽ xây dựng nhà 2 tầng 8x12.5

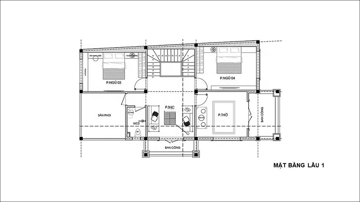
Mẫu thiết kế nhà tân cổ điển có phòng khách liền kề tiền sảnh, bên trong là bếp ăn để tiện cho việc đón khách và nấu nướng. Phòng ngủ tầng 1 dành cho người già để thuận tiện đi lại. Tầng lầu gồm 3 phòng ngủ, 1 phòng thờ và 1 WC. 

Bản vẽ xây dựng nhà 2 tầng 8x12.5

Thiết kế nhà ngang 2 tầng 100m2

Đây là sự lựa chọn cho gia chủ có cá tính thể hiện sự trẻ trung phóng khoáng và hiện đại. Với diện tích 100m2 gia chủ hoàn toàn sở hữu mẫu nhà bề thế vững chắc và thẩm mỹ. 

Thiết kế nhà ngang 2 tầng 100m2

Kinh nghiệm khi thiết kế bản vẽ xây dựng nhà 2 tầng

Xác định rõ các khu vực chức năng

Trước khi lên ý tưởng thiết kế bản vẽ xây dựng nhà 2 tầng bạn cần xác định rõ để phân chia các khu vực chức năng cho phù hợp với nhu cầu sử dụng của các thành viên trong gia đình. Ví dụ tầng 1 có thể bố trí phòng khách, phòng bếp và ăn, nhà vệ sinh chung hoặc phòng ngủ master cho người cao tuổi. Tầng 2 là khu vực phòng ngủ, phòng thờ, khu giặt phơi hoặc kho,...

Lựa chọn phong cách kiến trúc

Phong cách kiến trúc có ảnh hưởng đến chi phí, việc bố trí nội thất và các vật dụng trang trí khác. Do đó bạn cần lựa chọn kỹ theo yêu cầu từ gia đình hoặc sở thích của các thành viên.

Lựa chọn phong cách kiến trúc cho tổng thể ngôi nhà

Xác định rõ ràng diện tích đất xây dựng

Trước khi lên bản vẽ cần xác định rõ diện tích đất xây dựng để các kiến trúc sư bố trí công năng cũng như những khoảng sân vườn đi kèm sao cho hợp lý về thẩm mỹ, phong thủy và công năng.

Không gian sống đảm bảo thông thoáng

Các kiến trúc sư sẽ thiết kế phân chia các khu vực chức năng sao cho căn nhà cũng như nội thất được thông thoáng, rộng rãi. Hoặc sẽ tận dụng các thiết kế mở như giếng trời, sân trước, sân sau, để căn nhà trở nên sáng sủa, thoáng đãng hơn.

Đồ nội thất được bố trí thông minh tiện ích và hợp lý.

Vinavic - đơn vị thiết kế thi công trọn gói các mẫu nhà 2 tầng đẹp uy tín

Vinavic là đơn vị thiết kế và thi công uy tín chất lượng trong các lĩnh vực kiến trúc xây dựng. Đến với Vinavic bạn sẽ được:

– Đội ngũ kiến trúc sư giàu kinh nghiệm với ít nhất 10 năm hoạt động trong lĩnh vực thiết kế nội thất, thiết kế kiến trúc - thi công trọn gói

– Đã thi công cho hàng trăm khách hàng lớn nhỏ từ khắp cả nước

– Làm việc trực tiếp, không qua trung gian thương mại

– Xưởng sản xuất nội thất trực tiếp tại Hà Nội quy mô lớn, máy móc hiện đại, thợ lành nghề

- Trang bị đầy đủ máy móc thiết bị hiện đại, tân tiến, phù hợp thi công đồ gỗ theo công nghệ mới nhất. 

- Giá gốc tại xưởng – Thi công nhanh chóng

- Bảo hành dài lâu – Dịch vụ chuyên nghiệp

- Miễn phí khảo sát – Miễn phí thiết kế 3D

- Tặng gói phong thủy

- Cam kết đúng tiến độ thi công, chất lượng sản phẩm cao cấp, đa dạng về mẫu mã, bền bỉ theo thời gian.

- Đội ngũ Kiến trúc sư, kỹ sư với nhiều năm kinh nghiệm tư vấn

Bản vẽ xin giấy phép xây dựng nhà 2 tầng

Thông tin liên hệ

CÔNG TY CỔ PHẦN KIẾN TRÚC VINAVIC VIỆT NAM

- Địa chỉ: Tháp B1, Tòa Roman Plaza, Tố Hữu, Nam Từ Liêm, Hà Nội.

- Xưởng nội thất: Điếm số 8, Phương Trạch, Vĩnh Ngọc, Đông Anh Hà Nội

- Liên hệ tư vấn: SDT 0975.678.930 / 0982.303.304

Trên đây là bài viết của Vinavic về bản vẽ xây dựng nhà 2 tầng. Hy vọng rằng qua bài viết này anh chị có thêm nhiều ý tưởng trước khi xây lên tổ ấm của mình. Nếu có bất kỳ vấn đề gì anh chị hãy để lại bình luận cho Vinavic nhé!

>> Xem thêm:

Cách bố trí thiết kế phòng bếp nhỏ đẹp giúp “ăn gian” diện tích

Tìm hiểu phong cách bán cổ điển trong thiết kế nội thất

Thép râu tường là gì? Tiêu chuẩn khoan cấy thép râu xây tường

By https://vinavic.vn/
https://vinavic.vn/

Đánh giá - Bình luận
0 bình luận, đánh giá về TOP 10 bản vẽ xây dựng nhà 2 tầng với bố trí công năng hoàn hảo
Nhấn vào đây để đánh giá
Thông tin người gửi
Phong thủy
Chúng tôi có thể hỗ trợ bạn!
1.53828 sec| 2454.742 kb