Tổng hợp những bản vẽ thiết kế nhà 2 tầng 5x14m chi tiết nhất

Bản vẽ mặt bằng
0
4823
hathu - 16/07/2024

Nhà 2 tầng 5x14m là sự lựa chọn phù hợp đối với những gia đình vợ chồng trẻ, yêu thích không gian sống tiện nghi, thông thoáng. Sau đây Vinavic sẽ gợi ý tới quý khách hàng những bản vẽ thiết kế nhà 2 tầng 5x14m chi tiết nhất để dễ dàng, thuận lợi trên hành trình xây dựng tổ ấm. 

Tổng hợp những bản vẽ thiết kế nhà 2 tầng 5x14m chi tiết nhất
Tổng hợp những bản vẽ thiết kế nhà 2 tầng 5x14m chi tiết nhất

Thiết kế nhà 2 tầng 5x14m có đặc điểm gì?

Tiết kiệm thời gian, chi phí xây dựng

Mẫu nhà 2 tầng mặt tiền 5m sâu 14m có số tầng không quá cao, diện tích vừa phải nên sẽ rút ngắn được thời gian thi công cũng như tiết kiệm chi phí xây dựng.

Dễ dàng cải tạo sửa chữa 

Do không sở hữu phong cách thiết kế quá cầu kỳ nên thông thường, những mẫu nhà 5x14m 2 tầng có thể dễ dàng sửa chữa các chi tiết hoặc bố trí thêm nội ngoại thất tùy ý.

Gia đình có thể sửa chữa cải tạo ngôi nhà 2 tầng 5x14m một cách dễ dàng
Gia đình có thể sửa chữa cải tạo ngôi nhà 2 tầng 5x14m một cách dễ dàng

Chia sẻ những mẫu nhà kèm bản vẽ thiết kế nhà 2 tầng 5x14m chi tiết nhất

Nhà 2 tầng 5x14m hiện đại

Sự lược bớt những họa tiết trang trí nặng nề, tập trung vào hình khối và vật liệu độc đáo khiến ngôi nhà 2 tầng 5x14m phong cách hiện đại trở nên thông thoáng hơn. Mặt khác cũng giúp tiết kiệm chi phi xây dựng đáng kể.

Nhà 2 tầng mặt tiền 5m sâu 14m phong cách hiện đại
Nhà 2 tầng mặt tiền 5m sâu 14m phong cách hiện đại

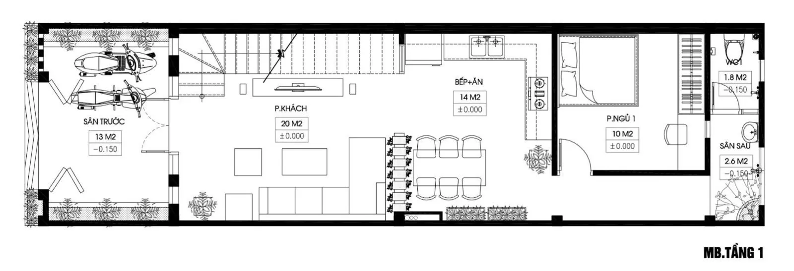
Mặt bằng thiết kế tầng 1 được bố trí phòng khách bố trí liền kề với phòng bếp và phòng ăn tạo nên một không gian sinh hoạt mở thông thoáng, hợp xu thế thiết kế hiện nay. Các không gian được ngăn với nhau bởi những vách ngăn tạo ra không gian riêng trong từng phòng nhưng vẫn đảm bảo sự thống nhất. Thiết kế cầu thang được đặt ở lối đi phía trước phòng khách nhằm tiết kiệm diện tích tối đa. Bên trong cùng là phòng ngủ đầy đủ tiện nghi, gần với khu vực sân sau và nhàvệ sinh dùng chung đảm bảo sự riêng tư.

Mặt bằng tầng 1 nhà 2 tầng 5x14m hiện đại
Mặt bằng tầng 1 nhà 2 tầng 5x14m hiện đại

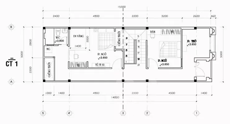
Tại tầng 2 có khu vực sảnh đệm gần cầu thang khá thoáng, gia chủ có thể tận dụng tạo một không gian sinh hoạt hoặc bố trí cây xanh tùy theo ý thích. Phòng ngủ master được thiết kế hướng ra ban công đón ánh sáng vào bên trong thoáng mát, có khu vực làm việc tiện lợi. Phòng ngủ nhỏ hơn cũng tiện tiện nghi được bố trí đầy đủ nội thất như TV, tủ quần áo và có cả khoảng ban công và thông tầng rộng thoáng.

Mặt bằng tầng 2 nhà 2 tầng 5x14m hiện đại
Mặt bằng tầng 2 nhà 2 tầng 5x14m hiện đại

Mẫu nhà 5x14m 2 tầng Tân Cổ Điển

Mặt tiền mẫu nhà ống 2 tầng 5x14m dưới đây sử dụng chi tiết trang trí tối giản, không quá rườm rà gây rối mắt mà vẫn giữ được nét đặc trưng của kiến trúc Tân Cổ Điển. Ban công sắt mỹ thuật tinh tế tại các tầng tạo sự uyển chuyển mềm mại cho tổng thể công trình.

Nhà phố Tân Cổ Điển 2 tầng 5x14m sang trọng
Nhà phố Tân Cổ Điển 2 tầng 5x14m sang trọng
Mặt bằng công năng tầng 1 nhà Tân Cổ Điển
Mặt bằng công năng tầng 1 nhà 2 tầng 5x14m Tân Cổ Điển
Mặt bằng công năng tầng 2 nhà Tân Cổ Điển
Mặt bằng công năng tầng 1 nhà 2 tầng 5x14m Tân Cổ Điển

Nhà ống 2 tầng 5x14m tối giản

Không sử dụng quá nhiều chi tiết trang trí cầu kỳ hay hình khối phức tạp, mẫu nhà ống 5x14m 2 tầng dưới đây được nhiều gia đình yêu thích sự đơn giản lựa chọn. 

Mẫu nhà ống 5x14m 2 tầng tối giản chi tiết thiết kế
Mẫu nhà ống 5x14m 2 tầng tối giản chi tiết thiết kế

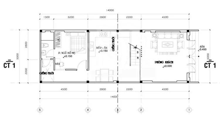
Tầng 1 của bản vẽ thiết kế nhà ống gồm sân trước, phòng khách, nhà bếp và khu vực bàn ăn, phòng ngủ và nhà vệ sinh. Bước lên tiền tiền sảnh, qua các bậc tam cấp là cửa chính ngôi nhà, mở ra không phòng khách rộng rãi bên trong. Nối với phòng khách và phòng bếp là hành lang và cầu thang. Phía dưới cầu thang được tận dụng thành khoảng không khép kín chứa đồ. Tiếp đến là phòng ngủ dành cho bố mẹ và nhà vệ sinh chung.

Bước lên cầu thang tới tầng là 2 phòng ngủ ở hai bên, phía trước gần ban công là phòng thờ. Đi theo hành lang về phía cuối nhà là khu vực nhà vệ sinh chung và khoảng không dành cho sinh hoạt gia đình giặt giũ phơi đồ, trồng cây.

Bản vẽ mặt bằng tầng 1 nhà 5x14m 2 tầng
Bản vẽ mặt bằng tầng 1 nhà 5x14m 2 tầng
Bản vẽ mặt bằng tầng 2 nhà 5x14m 2 tầng
Bản vẽ mặt bằng tầng 1 nhà 5x14m 2 tầng

Thiết kế nhà 2 tầng 5x14m ở nông thôn

Nhà 2 tầng mái thái mặt tiền 5m có hai tầng và sử dụng mái thái được thiết kế theo hình chữ A, với độ dốc lớn, giúp thoáng nước tốt, chống thấm, chống nóng hiệu quả.

Mẫu nhà 2 tầng mái thái ở nông thôn độc đáo
Mẫu nhà 2 tầng mái thái ở nông thôn độc đáo

Tại cổng đi tầng 1 là khu vực sân trước rộng để làm nơi đậu xe của gia đình. Với gia đình yêu thiên nhiên cũng có thể trồng cây cảnh, hoa cỏ tô điểm cho không gian này thêm rực rỡ. Tiếp đến là khu vực phòng khách được sắp xếp hài hòa, khoa học. Phòng bếp và phòng ăn liền kề nhau tại vị trí cuối nhà, đảm bảo sự riêng tư cũng như hạn chế mùi đồ ăn bay sang các phòng khác. Đặc biệt cuối nhà có khu sân rửa khá tiện lợi cùng nhà vệ sinh chung kín đáo.

Ngay tại vị trí trung tâm của tầng 2 của bản vẽ thiết kế là khu cầu thang lên xuống mở rộng, dẫn lối tới 2 phòng ngủ ở 2 bên. Các phòng ngủ đều có thiết kế khép kín thuận tiện, nội thất đầy đủ, có cửa hướng ra khu vực ban công nhằm tận dụng ánh sáng từ bên ngoài chiếu vào trong phòng.

Mặt bằng tầng trệt nhà 2 tầng nông thôn
Mặt bằng tầng trệt nhà 2 tầng nông thôn
Mặt bằng lầu 1 nhà 2 tầng nông thôn
Mặt bằng lầu 1 nhà 2 tầng nông thôn

Mẫu nhà 5x14m 2 tầng có gara

Đây là mẫu nhà 2 tầng mặt tiền 5m được ưa chuộng cực kỳ phổ biến tại Việt Nam. Thiết kế gara đủ rộng rãi để đỗ ô tô vô cùng thuận tiện cho việc di chuyển.

Thiết kế nhà 2 tầng 5x14m có gara tiện nghi
Thiết kế nhà 2 tầng 5x14m có gara tiện nghi

Bản vẽ thiết kế mặt bằng tầng 1 có một khoảng sân rộng rãi phía trước vừa dùng làm nơi để xe cho gia đình, vừa là khoảng đệm dùng để trồng cây trang trí với sân lát đá và tiểu cảnh sinh động. Phía trong là phòng khách có nội thất hiện đại, sắp xếp vừa vặn với diện tích phòng. Khu vực nấu nướng và ăn uống của gia đình khá thoải mái được tách thành 2 khu vực để thuận tiện cho sinh hoạt. Một phòng ngủ nhỏ được bố trí cạnh nhà bếp. Cuối nhà có lối ra sân sau nhỏ vừa làm khoảng lấy sáng vừa giúp cho không khi trong nhà luôn được lưu thông tốt hơn.

Tại tầng 2 bố trí 2 phòng ngủ lớn. Phòng ngủ master khá rộng rãi, có khu thay đồ có thiết kế tiện nghi. Để mọi người thoải mái trong sinh hoạt hàng ngày, mỗi phòng đều có vệ sinh riêng biệt rất thuận tiện. Cầu thang được đặt cuối nhà không chỉ giúp cho ngôi nhà trở nên rộng rãi hơn mà còn giúp gia chủ tạo thêm diện tích sử dụng.

Mặt bằng tầng trệt mẫu nhà 5x14m 2 tầng có gara
Mặt bằng tầng trệt mẫu nhà 5x14m 2 tầng có gara
Mặt bằng lầu 1 mẫu nhà 5x14m 2 tầng có gara
Mặt bằng lầu 1 mẫu nhà 5x14m 2 tầng có gara

Kinh nghiệm xây nhà 2 tầng 5x14m đúng như ý muốn

Lên ý tưởng bản thiết kế chi tiết nhất

Chủ đầu tư cần thể hiện những ý tưởng, mong muốn, nhu cầu của bản thân, gia đình với kiến trúc sư một cách rõ ràng. Từ đó kiến trúc sư sẽ đưa ra bản thiết kế ý tưởng chi tiết nhất, phù hợp với yêu cầu sử dụng cũng như thể hiện nét dấu ấn cá nhân vào ngôi nhà. 

Theo dõi sát sao tiến độ thiết kế, thi công

Để tránh mất thời gian cũng như tiến độ thi công bị kéo dài chậm trễ, gia chủ cần theo dõi, giám sát đội ngũ thi công thiết kế một cách sát sao, nhằm sửa chữa, bổ sung kịp thời những vướng mắc phát sinh trong quá trình xây nhà.

Lưu ý theo dõi kỹ lưỡng sát sao tiến độ thi công
Lưu ý theo dõi kỹ lưỡng sát sao tiến độ thi công

Dự trù chi phí trước khi xây dựng

Dựa vào điều kiện tài chính của gia đình mình để chọn lựa được diện tích xây dựng cũng như quy mô ngôi nhà phù hợp. Tính toán trước khoản chi phí sẽ giúp các chủ đầu tư chủ động hơn khi xây dựng tổ ấm.

Hi vọng những bản vẽ thiết kế nhà 2 tầng 5x14m chi tiết mà Vinavic chia sẻ sẽ giúp bạn có cái nhìn cụ thể hơn về mặt bằng xây nhà cũng như nắm được một số thông tin quan trọng khi thiết kế thi công ngôi nhà của mình. Chúc các bạn thành công. 

Tham khảo:

By https://vinavic.vn/
https://vinavic.vn/

Đánh giá - Bình luận
0 bình luận, đánh giá về Tổng hợp những bản vẽ thiết kế nhà 2 tầng 5x14m chi tiết nhất
Nhấn vào đây để đánh giá
Thông tin người gửi
Phong thủy
Chúng tôi có thể hỗ trợ bạn!
1.91759 sec| 2446.563 kb