Móng băng nhà phố là gì? Cấu tạo, Phân loại, Cách thi công

Cẩm nang xây nhà
0
536
Nhung - 25/02/2025

Móng là một bộ phận rất quan trọng trong xây dựng các công trình. Hiện nay móng có nhiều loại khác nhau như móng cọc, móng băng, móng đơn, móng bè.....Phương án móng nào cũng có những ưu và nhược điểm. Tuy nhiên kinh nghiệm của người kỹ sư là rất quan trọng trong việc lựa chọn kiểu móng phù hợp với nền đất. Hãy cùng tìm hiểu bài viết sau đây của Vinavic về móng băng nhà phố nhé!

Móng băng nhà phố là gì? Cấu tạo, Phân loại, Cách thi công

>> Xem thêm:

Chọn lọc 35 mẫu nhà ống 1 tầng 2 phòng ngủ đơn giản đẹp nhất

101+ Ý tưởng thiết kế nhà thông minh đẹp từng không gian

Hot nhất 35+ mẫu nhà phố 2 mặt tiền kinh doanh sinh lời cực VIP

Móng băng là gì?

Móng băng là loại móng có kết cấu là một dải dài có thể đặt hình chữ thập hoặc độc lập để chịu tải và đỡ cột nhà, bờ tường trong xây dựng nhà ở. Thực tế thì móng băng thường dùng trong công trình dân dụng do giá thành hợp lý và độ lún đều.

Móng băng là gì?

Những ưu và nhược điểm của móng băng

Ưu điểm khi thiết kế móng băng nhà phố

  • Móng băng có khả năng chịu lực tốt do vậy thường được dùng ở những công trình từ 3 tầng trở lên.
  • Làm cho công trình vững chắc hơn do móng băng tạo được sự liên kết giữa cột và tường.
  • Giảm áp lực đáy móng chống nghiêng và lún cho phần nền móng và các hệ cột tường.
  • Truyền trọng lượng đồng đều do có kết cấu bề mặt đông đều.

Nhược điểm khi thiết kế móng băng nhà phố

Chiều sâu nhỏ nên sẽ khiến móng băng không được ổn định dễ bị lật trượt.

Lớp bề mặt chịu tải kém và yêu cầu kỹ thuật cao nên đòi hỏi kỹ sư tay nghề cao và cần có kinh nghiệm dày dặn.

Móng băng có khả năng chịu lực tốt do vậy thường được dùng ở những công trình từ 3 tầng trở lên.

Móng băng phù hợp với những công trình nào?

Móng băng chỉ phù hợp với những công trình nhà phố nhất là những công trình xây dựng từ 3 đến 5 tầng. Những công trình nhà cấp 4 thì nên dùng móng cốc.

Các loại công trình khác như biệt thự nhà vườn cũng có thể dùng móng băng nhưng không quá phổ biến.

Móng băng chỉ phù hợp với những công trình nhà phố từ 3 đến 5 tầng

Kết cấu kỹ thuật của móng băng nhà phố

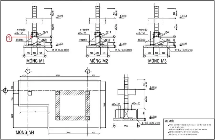
Kết cấu của móng băng nhà phố bao gồm lớp bê tông được lót mỏng, bản móng chạy liên tục nối móng thành một khối duy nhất chi tiết như sau: 

  • Độ dày của lớp lót bê tông: 100 mm.
  • Kích thước bảng móng phổ biến: (900-1200) x 350 (mm).
  • Kích thước dầm móng phổ biến: 300 x (500-700) (mm). 
  • Thép bản móng: Φ12a150.  
  • Thép dầm móng: thép dọc 6Φ(18-22), thép đai Φ8a150. 

Lưu ý rằng đây những con số tham khảo. Tùy thuộc vào địa chất của khu vực xây dựng và loại công trình mà điều chỉnh tỷ lệ sao cho phù hợp

Thi công móng băng nhà phố đúng quy chuẩn

Quá trình thi công móng băng đúng tiêu chuẩn bao gồm có 5 bước cơ bản sau đây mà Vinavic muốn chia sẻ đến bạn như sau:

Bước 1: Giải phóng mặt bằng

Đây là bước đầu tiên và rất quan trọng. Để thực hiện bước này cần có máy móc san mịn mặt bằng, sau đó chuyển bị phương tiện bảo hộ, nhân công...vật liệu khác như xi măng, cát, sỏi...để thi công.

Bước 2: San lấp mặt bằng móng băng

Những người thợ sẽ san lấp mặt bằng ở vị trí cao lắp vào vị trí thấp theo bản vẽ thiết kế móng của kiến trúc sư và việc này bao gồm 3 bước đó là đặt trục thi công xuống đất -> đào đất xung quanh trục đã cố định trước đó -> vệ sinh sạch móng vữa mới đào, hút nước nếu dưới hố có nhiều nước.

Bước 3: Chuẩn bị vật liệu cốt thép

Cốt thép cần được dọn rửa sạch sẽ, không có bùn và cặn sắt hơn nữa cần đáp ứng đầy đủ lượng thép tương ứng để thi công.

Bước 4: Lắp ráp cốp pha

Đây chính là nhiệm vụ quan trọng nhất khi thi công móng băng vì nó là yếu tố quyết định độ bền công trình. Đối với công đoạn này phải đảm bảo những tiêu chuẩn chắc chắn, đảm bảo độ dày, không biến dạng...trong quá trình thi công.

Bước 5: Đổ bê tông 

Đây là bước cuối cùng sau khi lắp đặt cốt pha. Móng cần đảm bảo đổ từ xa đến gần và không được đứng trên thành cốt pha. Bê tông cốt thép cần được đổ đầy, chắc chắn và không trộn lẫn những mảnh vụn.

Thi công móng băng nhà phố đúng quy chuẩn

Bản vẽ kết cấu móng băng nhà phố cơ bản

Sau đây là một số bản vẽ móng băng cho bạn tham khảo dành cho mẫu nhà 1 tầng, 2 tầng và 3 tầng:

Bản vẽ móng băng nhà 1 tầng

Bản vẽ cad kết cấu móng băng nhà phố 1 tầng

Bản vẽ móng băng nhà 2 tầng

Bản vẽ móng băng nhà phố 2 tầng

Bản vẽ móng băng nhà 3 tầng

Bản vẽ móng băng nhà phố 3 tầng

Lưu ý khi thiết kế kết cấu nhà phố móng băng

Móng băng được áp dụng tùy vào điều kiện địa chất, địa hình của khu đất mà bạn xây nhà. Do đó bạn cần lưu ý một số điểm sau đây để có một nền móng công trình vững chắc nhất.

Lựa chọn thiết kế phù hợp

Trước khi làm móng băng nhà phố bạn cần tính toán kỹ lưỡng và chọn dải móng phù hợp để đảm bảo không bị tốn kém chi phí và an toàn sử dụng.

Khảo sát khu đất trước xây dựng

Việc khảo sát khu đất giúp bạn đưa ra được những phương án giải phóng mặt bằng thi công hiệu quả.

Chú ý lựa chọn vật liệu

Đối với những móng băng cường độ cao thì nên sử dụng nên bê tông cốt thép.

Dự toán chi phí

Dự toán chi phí là một yếu tố không thể bỏ qua. Việc này giúp đo lường và chọn mẫu thiết kế nguyên liệu phù hợp với ngân sách gia đình.

Bài viết trên đây của Vinavic tổng hợp các thông tin cơ bản về nhà phố móng băng và những điều liên quan đến kết cấu móng băng nhà phố thường dùng. Hy vọng bài viết giúp bạn hiểu hơn về móng băng và chọn được mẫu thiết kế phù hợp cho gia đình. Bạn hãy cùng theo dõi Vinavic để biết thêm những kiến thức về xây dựng khác nhé!

Vinavic cung cấp giải pháp kiến trúc, nội thất cho không gian sống của bạn. Hãy liên hệ ngay cho Vinavic để được tư vấn về mẫu thiết kế mà bạn đang phân vân.

Vinavic cung cấp giải pháp kiến trúc, nội thất cho không gian sống của bạn

>> Gọi cho chúng tôi:

CÔNG TY CỔ PHẦN KIẾN TRÚC VINAVIC VIỆT NAM

- Địa chỉ: Tháp B1, Tòa Roman Plaza, Tố Hữu, Nam Từ Liêm, Hà Nội.

- Xưởng nội thất: Điếm số 8, Phương Trạch, Vĩnh Ngọc, Đông Anh Hà Nội

- Liên hệ tư vấn: SDT 0975.678.930 / 0982.303.304

- Email: tuvankientrucvinavic@gmail.com

>> Xem thêm:

Mẫu nhà 2 tầng 6x13m: 100+ ý tưởng thiết kế hot 2025

99+ Mẫu nhà phố 2 tầng cổ điển Sang trọng & Đẳng cấp

50+ mẫu nhà 2 tầng mái ngói đơn giản được yêu thích hiện nay

By https://vinavic.vn/
https://vinavic.vn/

Đánh giá - Bình luận
0 bình luận, đánh giá về Móng băng nhà phố là gì? Cấu tạo, Phân loại, Cách thi công
Nhấn vào đây để đánh giá
Thông tin người gửi
Phong thủy
Chúng tôi có thể hỗ trợ bạn!
3.22937 sec| 2424.297 kb