Sàn nấm là gì? Bản vẽ và cách bố trí thép sàn nấm đúng chuẩn

Cẩm nang xây nhà
0
2024
vinavic - 30/11/2024

Sàn nấm là loại sàn không có dầm, được đặt trực tiếp lên cột. Với khả năng chịu lực tốt và tiết kiệm vật liệu, sàn nấm ngày càng được ưa chuộng trong các dự án cao tầng, chung cư và công trình thương mại. Bài viết này sẽ cung cấp thông tin chi tiết về cấu tạo thép của sàn nấm và hướng dẫn lập bản vẽ thép sàn nấm chuẩn, giúp bạn hiểu rõ hơn về phương pháp thi công này.

Sàn nấm là gì? Bản vẽ và cách bố trí thép sàn nấm đúng chuẩn
Sàn nấm là gì? Bản vẽ và cách bố trí thép sàn nấm đúng chuẩn

Sàn nấm là gì, Chi tiết bản vẽ sàn nấm

Sàn nấm là sàn không dầm có cấu tạo khá đặc biệt bám sàn dựa trực tiếp trên các cột. Trong mỗi công trình xây dựng, sàn là một trong những bộ phận phải chịu lực phức tạp với diện tích chiếm tỷ lệ lớn nhất và có kết cấu đa dạng. Sàn nấm là sàn không dầm có cấu tạo khá đặc biệt bám sàn dựa trực tiếp trên các cột.

Sàn nấm là gì
Sàn nấm là gì

Bản vẽ thép sàn nấm là tài liệu kỹ thuật trong xây dựng, thể hiện cách bố trí lớp sàn thép cho công trình sử dụng sàn nấm. Nó giúp thợ thi công thực hiện đúng và chủ nhà theo dõi tiến độ.

Công cụ và phần mềm hỗ trợ thiết kế bản vẽ thép sàn nấm
Công cụ và phần mềm hỗ trợ thiết kế bản vẽ thép sàn nấm

Nội dung bản vẽ bao gồm:

  • Diện tích sàn: Tính toán khối lượng thép và vật liệu cần thiết.
  • Mật độ thép trên 1m2: Bố trí thép dọc và ngang để đảm bảo khả năng chịu tải và an toàn.
  • Kích thước và vị trí thép: Chi tiết về số lượng và kích thước thanh thép tại các khu vực, đặc biệt ở phần nấm.
  • Thông số kỹ thuật của sàn: Ghi chú về độ dày, loại bê tông và yêu cầu thi công.
  • Vị trí cột và kết nối: Thể hiện vị trí cột và kết nối giữa thép sàn và cột.

 

Nguyên tắc khi bố trí thép sàn nấm

Bố trí thép trong sàn nấm là bước quan trọng trong thiết kế và thi công. Sàn nấm là loại sàn bê tông cốt thép không có dầm, được đặt trực tiếp lên cột với mũ cột để tăng khả năng chịu lực. Bố trí thép hợp lý giúp sàn chịu tải tốt và chống lại ứng suất.

Các nguyên tắc bố trí thép sàn nấm gồm:

  • Bố trí theo hai phương: Thép cần được bố trí theo cả hai chiều, với lớp dưới (chịu kéo) và lớp trên (chịu nén).
  • Tăng cường thép tại mũ cột: Các vị trí giao giữa cột và sàn chịu lực lớn hơn, cần gia cường thêm thép.
  • Lớp thép dưới ở giữa nhịplớp thép trên gần cột để chịu ứng suất từ tải trọng tập trung.
Bố trí thép sàn hợp lý đảm bảo rằng sàn có khả năng chịu lực, tải trọng và ứng suất.
Bố trí thép sàn hợp lý đảm bảo rằng sàn có khả năng chịu lực, tải trọng và ứng suất.

Cấu tạo thép sàn nấm

Thép sàn nấm là yếu tố quan trọng trong thiết kế sàn không dầm. Đây là hệ kết cấu bê tông cốt thép, nơi sàn được hỗ trợ trực tiếp bởi cột mà không cần dầm. Để đảm bảo ổn định và khả năng chịu lực, cần bố trí thép đúng quy chuẩn. Dưới đây là chi tiết cấu tạo thép sàn nấm:

Thép chịu lực chính

Thép quan trọng nhất được đặt ở những khu vực chịu tải lớn như mũ cột và giữa nhịp. Sàn nấm chịu tải theo hai phương, nên thép được bố trí theo cả hai hướng để tăng khả năng chịu lực. Thép sàn nấm gồm 2 lớp: lớp trên chịu momen âm, lớp dưới chịu momen dương.

Lớp thép dưới (chịu kéo chính)

Thép lớp dưới chịu mô men uốn dương do tải trọng từ trên xuống.

  • Thép lớp dưới chủ yếu đặt giữa nhịp, nơi có lực kéo lớn nhất.
  • Đường kính thép lớp dưới thường lớn hơn và khoảng cách bố trí rộng hơn so với thép lớp trên, tùy thuộc vào chiều dài nhịp và tải trọng.
  • Sau khi buộc thép lớp dưới, sẽ đặt con kê và đổ bê tông cho sàn, sử dụng chân chó để phân cách hai lớp thép.
Thép chịu lực chính được bố trí ở các khu vực chịu tải trọng lớn như mũ cột và giữa nhịp.
Thép chịu lực chính được bố trí ở các khu vực chịu tải trọng lớn như mũ cột và giữa nhịp.

 

Lớp thép trên (chịu mô men uốn âm)

Tại các giao điểm giữa cột và sàn, mô men âm gây lực kéo ở lớp thép trên, do đó cần tăng cường thép ở đây.

  • Thép lớp trên dày hơn và đường kính lớn hơn tại mũ cột và mép sàn để chịu lực kéo từ mô men âm.
  • Thép mũ sàn ở lớp trên chịu mô men âm, được cắt tại 1/4L cạnh ngắn, bố trí vuông góc dưới thép mũ.
  • Lớp thép trên có khoảng cách nhỏ hơn để đảm bảo khả năng chịu lực.

Thép phân phối

Thép phân phối có đường kính nhỏ hơn thép chịu lực chính, hỗ trợ mà không chịu tải trọng chính của sàn.

Thép chịu lực chính được đặt theo chiều ngắn, còn thép phân phối nằm vuông góc với nó theo chiều dài, giúp phân tán lực đều và giữ cố định các thanh thép chính trong thi công.

Thép gia cường

Tại vị trí giao giữa cột và sàn, cần gia cường thép để chống hiện tượng đột phá. Thép cũng được bố trí ở mép sàn để ngăn biến dạng.

Thép lưới ở mũ cột giúp tăng khả năng chịu lực, đảm bảo sự ổn định cho kết cấu.

Lớp thép lưới quanh mũ cột phân tán lực, ngăn phá hoại do lực cắt và mô men, bảo vệ kết cấu khỏi nứt cục bộ và tăng độ bền của sàn.

Thép lưới ở mũ cột là gia cường khả năng chịu lực cho khu vực này, đảm bảo sự ổn định và an toàn của kết cấu tổng thể
Thép lưới ở mũ cột là gia cường khả năng chịu lực cho khu vực này, đảm bảo sự ổn định và an toàn của kết cấu tổng thể

Đặc điểm của thép trong sàn nấm

  • Đường kính thép: Thép cho sàn nấm có đường kính từ D10 đến D16, tùy vào yêu cầu chịu lực và chiều dài nhịp. Đường kính lớn giúp tăng khả năng chịu lực nhưng cần tính toán hợp lý để tiết kiệm vật liệu.
  • Khoảng cách bố trí: Khoảng cách giữa các thanh thép thường từ 150 mm đến 250 mm, dựa trên tải trọng và độ dày của sàn.
  • Chiều dài neo: Thanh thép phải được neo vào cột với chiều dài tối thiểu để đảm bảo không bị kéo ra khi có tải trọng.
Thép sàn nấm thường có đường kính từ D10 đến D16
Thép sàn nấm thường có đường kính từ D10 đến D16

Các bước cụ thể khi bố trí thép sàn nấm

Bố trí thép trong sàn nấm cần tuân thủ các tiêu chuẩn xây dựng như TCVN, ACI hoặc Eurocode để đảm bảo khả năng chịu lực và an toàn.

Các bước cơ bản bao gồm:

  1. Tính toán tải trọng: Xác định mô men uốn và lực cắt dựa trên tải trọng từ kết cấu trên.
  2. Bố trí thép lớp dưới giữa nhịp: Thép này chịu lực kéo từ mô men uốn dương.
  3. Bố trí thép lớp trên gần cột: Thép này chịu lực kéo từ mô men uốn âm, cần bố trí chặt chẽ.
  4. Gia cường thép tại mũ cột: Cần thêm nhiều lớp thép để chống lại lực cắt và tải trọng tập trung.
  5. Kiểm tra khoảng cách và vị trí thanh thép: Đảm bảo đúng theo thiết kế.
  6. Bảo vệ thép bằng bê tông: Đảm bảo độ dày bê tông xung quanh thép để tránh ăn mòn.
Đinh thép chống cắt chế tạo sẵn
Đinh thép chống cắt chế tạo sẵn

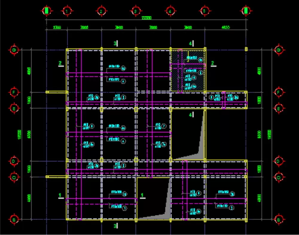
Bản vẽ bố trí thép sàn nấm đúng tiêu chuẩn

Bản vẽ bố trí cốt thép trong bản sàn nấm

Việc bố trí và cắt cốt thép cho bản chịu tải trọng phân bố đều có thể thực hiện theo quy tắc đơn giản như sau:

Cốt thép trên gối giữa được bố trí 100% trong khoảng 0.15*l, 50% kéo ra đến 0.3*l; cốt thép dưới 100% ở giữa nhịp và 40% kéo vào gối tựa.

Bản vẽ bố trí cốt thép trong bản sàn nấm
Bản vẽ bố trí cốt thép trong bản sàn nấm

Bản vẽ bố trí cốt thép trong mũ cột và trong bản đầu cột

Bố trí cốt thép trong mũ cột như hình dưới đây:

Nếu sàn không có mũ cột hoặc bản đầu cột mà khả năng chống đâm thủng không đạt yêu cầu, cần bổ sung cốt thép chịu cắt.

Bản vẽ bố trí cốt thép trong mũ cột và trong bản đầu cột
Bản vẽ bố trí cốt thép trong mũ cột và trong bản đầu cột

Công cụ và phần mềm hỗ trợ thiết kế bản vẽ thép sàn nấm

Có nhiều phần mềm hỗ trợ kỹ sư thiết kế bản vẽ thép sàn nấm nhanh chóng và chính xác, bao gồm:

  • AutoCAD: Thiết kế 2D/3D, bố trí thép.
  • Revit Structure: Mô hình 3D, tự động tạo bản vẽ.
  • Etabs: Phân tích kết cấu cao tầng, tính toán lực cho sàn nấm.
  • SAFE: Thiết kế sàn và móng, bố trí thép tự động.
  • SAP2000: Phân tích kết cấu phức tạp.
  • Tekla Structures: Mô hình hóa BIM cho bê tông cốt thép.
  • ProtaStructure: Thiết kế bê tông và thép, tự động tạo bản vẽ.
  • CSI Detailer: Tạo bản vẽ chi tiết từ ETABS và SAFE.
Công cụ và phần mềm hỗ trợ thiết kế bản vẽ thép sàn nấm
Công cụ và phần mềm hỗ trợ thiết kế bản vẽ thép sàn nấm

Lập bản vẽ thép sàn nấm chính xác rất quan trọng để đảm bảo chất lượng công trình và tối ưu chi phí. Vinavic hy vọng bạn đã hiểu cách bố trí thép hiệu quả, giúp công trình đạt hiệu quả kỹ thuật và kinh tế. Nên tham khảo ý kiến chuyên gia để đảm bảo an toàn và phù hợp với thực tế.

By https://vinavic.vn/
https://vinavic.vn/

Đánh giá - Bình luận
0 bình luận, đánh giá về Sàn nấm là gì? Bản vẽ và cách bố trí thép sàn nấm đúng chuẩn
Nhấn vào đây để đánh giá
Thông tin người gửi
Phong thủy
Chúng tôi có thể hỗ trợ bạn!
1.16621 sec| 2441.609 kb