Top 11 mẫu thiết kế nhà 3 tầng 7x10m đẹp nhất

Mẫu nhà đẹp
0
3965
loan - 17/11/2023

Mẫu thiết kế nhà 3 tầng 7x10m với phong cách đa dạng là sự lựa chọn hàng đầu cho những gia đình nhỏ muốn có không gian sống thoải mái và tiện nghi. Không gian nhà mặt tiền hẹp thường được sắp xếp mở hướng ra ngoài, giúp tận dụng tối đa hiệu quả ánh sáng mặt trời và thông gió. Với mức đầu tư chưa tới 2 tỷ, bạn đã có thể xây dựng một ngôi nhà 7x10m 3 tầng đẹp đáp ứng đủ nhu cầu sinh hoạt của gia đình.

Nhà 3 tầng kích thước 7x10m
Nhà 3 tầng kích thước 7x10m

Lý do các mẫu nhà 3 tầng 7x10m ngày càng thịnh hành

Trong những năm gần đây, các mẫu nhà 3 tầng 7x10m ngày càng trở nên phổ biến tại Việt Nam, đặc biệt là ở các thành phố lớn như Hà Nội và TP.HCM. Có rất nhiều lý do giải thích cho sự thịnh hành của loại hình nhà ở này, bao gồm:

  • Chi phí xây dựng hợp lý: Nhà 3 tầng 7x10 có diện tích tương đối vừa phải, dao động trên dưới 70m2. Kích thước mặt bằng phù hợp với nhu cầu sinh hoạt của gia đình từ 3-6 thành viên. Với mức chi phí xây dựng hiện nay, một căn biệt thự 3 tầng có giá dao động từ 1,5-2,5 tỷ đồng. Mức giá này thấp hơn nhiều so với các mẫu biệt thự hoặc nhà 4, 5 tầng có diện tích tương đương.

Các mẫu nhà 3 tầng 7x10m ngày càng trở nên phổ biến tại Việt Nam
Các mẫu nhà 3 tầng 7x10m ngày càng trở nên phổ biến tại Việt Nam
  • Thiết kế mở thoáng mát: Mô hình nhà 3 tầng với diện tích 7x10m được thiết kế với mỗi tầng thoáng đãng và nhiều cửa sổ, tối ưu hóa ánh sáng tự nhiên, giúp tạo ra một không gian sống mở, rộng rãi và thoải mái. Sự linh hoạt trong cấu trúc cho phép gia đình tận dụng không gian sân thượng để tạo khu vực giải trí gia đình hoặc khu vườn mini, là nơi trồng cây xanh và hoa trái, tạo không khí trong lành và thư giãn.

Nhà được thiết kế với mỗi tầng thoáng đãng và nhiều cửa sổ
Nhà được thiết kế với mỗi tầng thoáng đãng và nhiều cửa sổ
  • Khả năng tối ưu diện tích: Với diện tích 7x10m, mẫu nhà đẹp không chỉ đáp ứng nhu cầu về diện tích sống của gia đình mà còn giúp giải quyết vấn đề của những khu vực chật chội và đông dân. Chi phí xây dựng không quá lớn, đặc biệt là đối với những mô hình đơn giản với diện tích khoảng 35-50m2, chỉ tốn dưới 2 tỷ đồng. Điều này không chỉ làm giảm áp lực tài chính đối với gia chủ mà còn tạo cơ hội để họ có thể đầu tư vào nội thất và các tiện nghi khác một cách linh hoạt.

Nhà 3 tầng mặt tiền 7m thường có phong cách hiện đại
Nhà 3 tầng mặt tiền 7m thường có phong cách hiện đại
  • Thẩm mỹ hiện đại: Các mẫu nhà mặt tiền 7m 3 tầng hiện nay thường được thiết kế theo phong cách hiện đại, đơn giản nhưng sang trọng. Với kiến trúc trẻ trung, năng động, các mẫu nhà này phù hợp với sở thích của nhiều gia đình trẻ.

Nhìn chung, các mẫu nhà 7x10m 3 tầng là một lựa chọn hợp lý cho những gia đình có nhu cầu xây dựng nhà ở với chi phí hợp lý, diện tích vừa phải và thẩm mỹ hiện đại.

Xây dựng mẫu thiết kế nhà 3 tầng 7x10m, có nên hay không?

Việc lựa chọn xây dựng nhà 3 tầng 7x10m hay không phụ thuộc vào nhiều yếu tố, bao gồm nhu cầu sử dụng, điều kiện kinh tế và sở thích của gia chủ.

  • Về nhu cầu sử dụng, nếu gia đình có từ 3-6 thành viên và cần một không gian sống rộng rãi, tiện nghi thì kiến trúc nhà 3 tầng 7x10m là một lựa chọn phù hợp. Với diện tích này, gia chủ có thể bố trí đầy đủ các phòng chức năng cần thiết như phòng khách, phòng ngủ, phòng bếp, phòng vệ sinh,... Ngoài ra, gia chủ cũng có thể tận dụng sân thượng để làm khu vực vui chơi, giải trí hoặc trồng cây xanh.

Nhà 7x10m được xây dựng tiện nghi với đủ các phòng chức năng
Nhà 7x10m được xây dựng tiện nghi với đủ các phòng chức năng
  • Về điều kiện kinh tế, một ngôi nhà 7x10m 3 tầng có chi phí xây dựng tương đối hợp lý, dao động từ 1,5-2,5 tỷ đồng. Mức giá này thấp hơn nhiều so với các mẫu biệt thự hay nhà cao 4, 5, 6 tầng có diện tích tương đương.

  • Xét đến sở thích, nhà 3 tầng 7x10 có thể được thiết kế theo nhiều phong cách khác nhau, từ hiện đại đến cổ điển, hay nhà biệt thự tân cổ điển. Gia chủ có thể lựa chọn phong cách thiết kế phù hợp với sở thích và cá tính của mình.

Nhà 3 tầng 7x10 có thể được thiết kế theo nhiều phong cách khác nhau
Nhà 3 tầng 7x10 có thể được thiết kế theo nhiều phong cách khác nhau

Xây dựng một mẫu nhà 3 tầng mặt tiền 7m sâu 10m có thể là quyết định hợp lý với những yếu tố này được xem xét và điều chỉnh một cách cẩn thận. Tuy nhiên, gia chủ cần lưu ý một số nhược điểm của loại hình nhà này như diện tích bề ngang hẹp, có thể gây hạn chế về không gian sinh hoạt. Để khắc phục nhược điểm này, gia chủ cần có một thiết kế nhà 3 tầng khoa học, tối ưu hóa không gian sử dụng.

Xem thêm: 25 Mẫu nhà vuông 7x10m (3 - 4 phòng ngủ) cực đẹp cho gia đình nhỏ

Những bản phối cảnh mẫu thiết kế nhà 3 tầng 7x10m quan trọng không thể bỏ qua

Mẫu thiết kế nhà 3 tầng 7x10m hiện đại có giếng trời

Mẫu nhà này đã giải quyết được vấn đề ngôi nhà mặt tiền 7m có diện tích mặt tiền nhỏ, bị thiếu ánh sáng và bí bách. Kích thước và vị trí của giếng trời được tính toán chi tiết, phù hợp với diện tích và hình dạng của lô đất hình hộp. Phong cách nhà hiện đại không có quá nhiều chi tiết rườm rà, tăng cường sự thông thoáng mặt tiền.

Mẫu thiết kế nhà 3 tầng 7x10m hiện đại có giếng trời
Mẫu thiết kế nhà 3 tầng 7x10m hiện đại có giếng trời

Mẫu thiết kế nhà 3 tầng 7x10m tân cổ điển

Điểm ấn tượng thứ hai khi nhìn vào mẫu biệt thự đẹp là cách phối màu xuất sắc. Nước sơn màu trắng, cửa gỗ màu gỗ lim, mái ngói màu xanh than, cổng, lan can bằng sắt đen. Sự hòa quyện tông trắng đen đã mang đến hình ảnh đẹp nhất cho mẫu nhà tân cổ điển này.

Mẫu thiết kế nhà 3 tầng 7x10m tân cổ điển
Mẫu thiết kế nhà 3 tầng 7x10m tân cổ điển

Mẫu thiết kế nhà 3 tầng 7x10m cổ điển

Nhà 7x10m 3 tầng phong cách châu Âu cổ điển lưu truyền nét đẹp kiến trúc La Mã thể kỷ 17, 18 đặc trưng bởi các thức cột họa tiết phù điêu đắp vẽ cầu kỳ, tinh xảo, tỉ mỉ, màu sắc lấy cảm hứng từ mỹ thuật Trung cổ và Phục hưng ở những màu sắc bắt nguồn từ thiên nhiên.  

Nghệ thuật đối xứng cân bằng được sử dụng khéo léo, trục chính giữa được trang trí tập trung nhiều chi tiết đắt giá mang đến sự đăng đối, uy nghiêm cho tổng thể căn nhà.

Mẫu thiết kế nhà 3 tầng 7x10m cổ điển
Mẫu thiết kế nhà 3 tầng 7x10m cổ điển

Nhà phố 3 tầng 7x10m mái thái

Thiết kế dạng nhà ống 7x10m chính là lựa chọn tối ưu của những gia đình sở hữu không gian đất có phần hạn chế về chiều ngang, thoải mái về chiều dài. Giúp gia chủ đồng thời có thể giải quyết tốt cả vấn đề diện tích, lẫn việc đảm bảo các tiêu chí thẩm mỹ, công năng sử dụng cho các thành viên trong gia đình với chi phí xây dựng phù hợp, không cần lo ngại đến vấn đề lỗi mốt. 

Mẫu nhà ống 3 tầng tân cổ điển với gam màu sáng, trung tính được kết hợp một cách hài hòa cùng hệ thống mái Thái đầy ấn tượng trên đây đã thành công trong việc ghi điểm, chinh phục nhiều khách hàng cùng chủ đầu tư khó tính nhất. 

Nhà phố 3 tầng 7x10m mái thái
Nhà phố 3 tầng 7x10m mái thái

Nhà phố 3 tầng 7x10m mái nhật

Khu vực ngoại thất của ngôi nhà mái Nhật 3 tầng, diện tích 7x10m, với 3 phòng ngủ và 1 phòng thờ chắc chắn sẽ thu hút mọi ánh nhìn. Bằng sự kết hợp tinh tế giữa gam màu trắng chủ đạo và các hình khối vuông vắn, kiến trúc hiện đại luôn truyền đạt vẻ đẹp vững chắc và kiên cố. Đặc biệt, khu vực lan can ở tầng 2 và lối vào ở tầng 1 được bổ sung thêm nhiều chậu hoa mini, tạo điểm nhấn gần gũi với thiên nhiên, tăng cường sự kết nối giữa người và môi trường xung quanh.

Nhà phố 3 tầng 7x10m mái nhật
Nhà phố 3 tầng 7x10m mái nhật

Nhà phố 3 tầng 7x10m mái bằng

Biệt thự mái bằng 3 tầng 7x10m là một trong những mẫu thiết kế nhà ở được ưa chuộng nhất hiện nay. Bên cạnh thiết kế phong cách kiến trúc mới tuy sang trọng nhưng không quá cầu kỳ, nhà còn được kết hợp với không gian xanh mát được bố trí thông minh tại sân thượng, ban công đã mang đến cho gia chủ  không gian sống lý tưởng, vừa tiện nghi, vừa gần gũi với thiên nhiên.

Ngoại thất ngôi nhà được ốp đá xám và sơn mặt tiền trắng, kết hợp với lam gỗ tầng 2 tạo nê một mẫu thiết kế hài hoà gần gũi với thiên nhiên.

Nhà phố 3 tầng 7x10m mái bằng
Nhà phố 3 tầng 7x10m mái bằng

Thiết kế nhà ống 3 tầng 2 mặt tiền 7x10m hiện đại

Nhà 7x10m 2 mặt tiền thiết kế đơn giản thể hiện giá trị thẩm mỹ cao, với mặt tiền rộng, có thể khoe trọn đường nét kiến trúc hiện đại tinh tế. Dáng nhà này tạo vẻ đẹp vuông vức, cân bằng bề thế. Không gian mặt tiền sử dụng các chất liệu hiện đại để trang trí như đá ốp, lam trang trí, cửa kính, đá thông gió... 

Thiết kế nhà ống 3 tầng 2 mặt tiền 7x10m hiện đại
Thiết kế nhà ống 3 tầng 2 mặt tiền 7x10m hiện đại

Thiết kế nhà ống 3 tầng 1 tum 7x10m

Công trình này có phần ngoại thất được sơn màu trắng trang nhã, kết hợp với cửa sổ bằng kính với các mái ngói đen. Các chi tiết gạch ốp của hệ thống gạch lát sân, màu be giả đá của hệ thống gạch nhám ốp chân cột, hay màu đen của hệ thống cửa kính viền nhôm tạo điểm nhấn thu hút. 

Thiết kế nhà ống 3 tầng 1 tum 7x10m
Thiết kế nhà ống 3 tầng 1 tum 7x10m

Thiết kế nhà ống 3 tầng 7x10m có gara

Căn nhà phố 7x10m này được thiết kế thêm gara ô tô để thuận tiện cho việc di chuyển. Sự kết hợp giữa mái Nhật và các mặt tiền nhiều cửa sổ mang đến không gian hoài cổ nhưng vẫn đầy tươi mới. Các chi tiết truyền thống như cửa sổ lớn, cánh cửa với hoa văn tinh xảo, và bậc thang tạo điểm nhấn trên nền màu trắng, tạo nên một không gian sống sang trọng và đẳng cấp.

Thiết kế nhà ống 3 tầng 7x10m có gara
Thiết kế nhà ống 3 tầng 7x10m có gara

Thiết kế nhà ống 3 tầng 7x10m mái lệch

Kiến trúc hiện đại và kiểu dáng năng động là những điểm nhấn của mẫu nhà này. Mái nhà lệch là kiểu mái được biến điệu từ mái dốc truyền thống. Góc nghiêng 2 bên mái khác nhau, đem đến cá tính độc đáo và sự tươi mới cho không gian sống.

Thiết kế nhà ống 3 tầng 7x10m mái lệch
Thiết kế nhà ống 3 tầng 7x10m mái lệch

Mẫu nhà chữ L 3 tầng 7x10m có sân vườn

Thiết kế nhà kiểu chữ L, chủ đầu tư có thể tận dụng được khoảng trống triệt để để tạo sân vườn hay làm chỗ đậu xe, sân vui chơi cho trẻ nhỏ. Khoảng trống được tận dụng triệt để.

Những đường thẳng, khối hình học trong kiến trúc hiện đại được kết hợp bất đối xứng với vật liệu công nghiệp như kính, mảng tường giật cấp. Tạo cảm giác thoáng đãng, rộng rãi nhưng vẫn đảm bảo tính thẩm mỹ cao mà không hề đơn điệu.

Mẫu nhà chữ L 3 tầng 7x10m có sân vườn
Mẫu nhà chữ L 3 tầng 7x10m có sân vườn

Mẫu nhà chữ L 3 tầng 7x10m giá rẻ

Ngoại thất căn nhà 7x10m giá rẻ được thiết kế đơn giản, chú trọng vào tính năng so với thẩm mỹ. Nhà chữ L có 3 mặt tiền, nên các kiến trúc sư đã lên phương án bố trí cửa sổ, cửa thông gió ở nhiều nơi, tăng cường diện tích kiến trúc tiếp xúc cảnh quan để đón nhận được nhiều ánh sáng tự nhiên.

Mẫu nhà chữ L 3 tầng 7x10m giá rẻ
Mẫu nhà chữ L 3 tầng 7x10m giá rẻ

Mẫu nhà chữ L 3 tầng 7x10m mái nhật

Mẫu nhà này gây ấn tượng bởi kiểu dáng tiện nghi và độc đáo, đảm bảo được sự tiện lợi trong việc bố trí mặt bằng, công năng hợp lý. Ngôi nhà sử dụng màu trắng làm tông màu chủ đạo, kết hợp với màu xanh rêu của hệ mái nhật giúp công trình trở nên hài hòa cân đối hơn. 

Mẫu nhà chữ L 3 tầng 7x10m mái nhật
Mẫu nhà chữ L 3 tầng 7x10m mái nhật

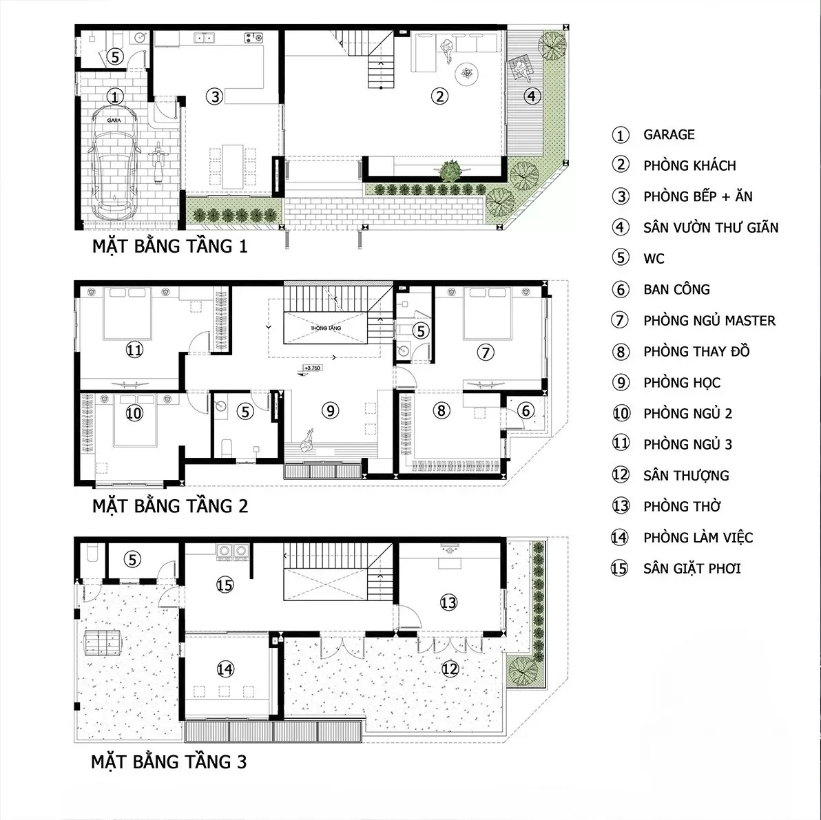
Cách thiết kế mặt bằng công năng nhà 7x10m 3 tầng hợp lý

Việc thiết kế mặt bằng công năng cho một ngôi nhà 3 tầng có diện tích 7x10m đòi hỏi sự tối ưu hóa không gian để đảm bảo tính tiện ích và thoải mái cho gia đình. Dưới đây là một gợi ý về cách thiết kế mặt bằng công năng hợp lý cho ngôi nhà này:

Tầng 1: Tiếp đón và sinh hoạt chung

Sảnh và phòng khách:

  • Thiết kế một sảnh rộng rãi và thoáng đãng làm nơi tiếp đón khách.

  • Phòng khách có thể được bố trí ở phía trước, gần cửa để tạo cảm giác mở cửa sổ ra thế giới bên ngoài.

Nhà bếp và phòng ăn:

  • Bố trí nhà bếp mở ra phòng ăn để tạo không gian mở và kết nối gia đình. Sử dụng cửa sổ lớn và cửa đi để tối ưu hóa ánh sáng tự nhiên và thông hơi.

Bản vẽ mặt bằng nhà 7x10m 3 tầng hiện đại
Bản vẽ mặt bằng nhà 7x10m 3 tầng hiện đại
  • Sử dụng đảo bếp để tăng diện tích làm việc và lưu trữ.

WC và khu vực giữ xe:

  • Thiết kế một WC tiện lợi và khu vực giữ xe ở sân sau/ sân trước nhà để tiết kiệm diện tích.

Tầng 2: Phòng ngủ và phòng tắm

Phòng ngủ chính có tủ thay đồ VIP và WC riêng:

  • Bố trí phòng ngủ chính ở phía trước nhà để tận dụng ánh sáng tự nhiên từ mặt trước.

  • WC riêng nằm ngay cạnh phòng ngủ chính.

Phòng ngủ phụ và phòng làm việc:

  • Bố trí phòng ngủ phụ ở phía sau hành lang để tạo ra sự riêng tư. Tuy nhiên vẫn đảm bảo có 1-2 cửa sổ để cung cấp ánh sáng và tầm nhìn cảnh quan cho phòng ngủ phụ. 

Nội thất phòng làm việc nhà 7x10m 3 tầng kiểu châu Âu hiện đại
Nội thất phòng làm việc nhà 7x10m 3 tầng kiểu châu Âu hiện đại
  • Sử dụng một phòng nhỏ làm phòng đọc sách hoặc văn phòng làm việc tại nhà. Cho phép gia chủ có thể điều hành công việc mọi lúc mọi nơi, hoặc có không gian tiếp khách doanh nghiệp chuyên nghiệp và riêng tư. 

Phòng tắm chung:

  • Thiết kế một phòng tắm chung dễ tiếp cận từ cả hai phòng ngủ.

Tầng 3: Sân thượng và phòng đa năng

Sân thượng và khu vực giải trí:

  • Sử dụng sân thượng làm không gian giải trí và vui chơi cho gia đình.

  • Bố trí khu vực trồng cây xanh hoặc có thể là khu vực barbecue.

Cách bố trí không gian tầng thượng
Cách bố trí không gian tầng thượng

Phòng đa năng:

  • Thiết kế một phòng đa năng có thể sử dụng làm phòng tập thể dục, phòng chơi cho trẻ, hoặc phòng khách nếu cần thiết.

Lối di chuyển thoải mái:

  • Tạo các lối đi chuyển linh hoạt và thoải mái giữa các khu vực để tối ưu hóa không gian.

Đối với mỗi tầng, quan trọng là tận dụng mọi khoảng trống nhỏ để tối ưu hóa không gian và đáp ứng nhu cầu sử dụng của gia đình. Đồng thời, việc tham khảo ý kiến của các chuyên gia trong lĩnh vực thiết kế nhà, thiết kế biệt thự có thể giúp bạn có một mẫu thiết kế nhà 3 tầng 7x10m đẹp hợp lý và đáp ứng đầy đủ nhu cầu dành cho gia đình bạn.

Không gian nội thất cao cấp đến từ các mẫu nhà 3 tầng mặt tiền 7m

Xây một ngôi nhà thiết kế 3 tầng 7x10m không chỉ là nơi ở mà còn là biểu tượng của không gian nội thất cao cấp, nơi kết hợp tinh tế giữa nét cổ điển và kiến trúc hiện đại. Ngắm nhìn không gian phòng khách, bạn sẽ nhận ra sự hài hòa trong nghệ thuật phối ngẫu giữa những bộ sofa dài trẻ trung với chiếc gối nhiều màu sắc bên cạnh những gam màu trầm của rèm cửa, của giấy dán tường và cả trần nhà sang trọng.

Nếu gia chủ ưa thích sự đơn giản, hiện đại đến từ màu sắc trang nhã thì có thể lựa chọn bộ ghế da trẻ trung dù đã qua nhiều thập kỉ vẫn được rất nhiều gia chủ yêu mến. Cả một không gian bừng sáng như được mở rộng hơn vì gia chủ đã rất tinh tế khi sử dụng vách kính trong suốt thay cho vách tường.

Phòng khách hiện đại và có nhiều cửa kính
Phòng khách hiện đại và có nhiều cửa kính

Một trong những điểm độc đáo là căn phòng bếp được thiết kế đối xứng và thông minh. Bố trí bàn nấu ăn và bồn rửa rau, bát một cách hợp lý trong không gian nhỏ hẹp nhưng vô cùng tiện nghi và linh hoạt. Kiểu thiết kế đối xứng hai bên với một bên là bàn bếp đun nấu, một bên là bồn nước rửa rau, rửa bát. Đât là một sự sắp xếp rất thông minh và nhất là hợp với phong thủy khi lửa và nước hỗn xung cần đặt xa nhau và đối nhau để tránh những lục đục, hỗn loạn trong sinh hoạt gia đình.

Phòng bếp đối xứng và thông minh
Phòng bếp đối xứng và thông minh

Phòng ngủ, nơi nghỉ ngơi của gia chủ, không chỉ là không gian thư thái mà còn là nơi nuôi dưỡng của tâm hồn. Chiếc giường được đặt ngay cạnh cửa sổ nhìn ra khu vườn xanh mát, gợi lên sự bình yên và thư thái. Để tối giản không gian sử dụng mà vẫn mang tính thẩm mĩ cao, đầu giường treo một bức tranh đơn sắc, ít họa tiết rất trang trọng cùng kệ để sách ở hai bên cân xứng rất phù hợp.

Nội thất gỗ phòng ngủ
Nội thất gỗ phòng ngủ

Trên đây là một số gợi ý cách thiết kế không gian nội thất cao cấp đến từ các mẫu thiết kế nhà 3 tầng 7x10m đẹp nổi bật. Hy vọng những gợi ý này sẽ giúp gia chủ có thêm ý tưởng để thiết kế ngôi nhà của mình.

Những lỗi thiết kế nhà 3 tầng 7x10m thường gặp và cách khắc phục

Khi bắt tay vào thiết kế nhà 3 tầng 7x10m, cần tránh được những lỗi sau để đảm bảo an toàn và tiện nghi cho gia đình:

  • Lỗi bố trí khu vực chức năng: Cần xác định rõ nhu cầu sử dụng của gia đình về diện tích, phòng ngủ, phòng bếp, phòng tắm, nhà vệ sinh... trước khi sắp xếp phân chia các không gian trong nhà. Đảm bảo mỗi tầng và mỗi khu vực có sự liên kết hài hòa, tận dụng ánh sáng và không gian một cách hiệu quả.

Mẫu nhà ống 7x10m 3 tầng hiện đại thiết kế không gian mở
Mẫu nhà ống 7x10m 3 tầng hiện đại thiết kế không gian mở
  • Thiết kế không phù hợp với diện tích sử dụng: Tính toán cẩn thận diện tích sử dụng, tránh lãng phí không gian bằng cách chọn các giải pháp thiết kế linh hoạt và hiệu quả. Bạn có thể tham khảo các bản vẽ thiết kế nhà 3 tầng với diện tích tương đương để hiểu rõ về cách tối ưu hóa không gian.

  • Không tuân thủ an toàn cháy nổ: Gia chủ cần chú ý đến việc lắp đặt, sử dụng và bảo trì định kỳ các trang thiết bị an toàn đầy đủ, bao gồm cả cửa sổ thoát hiểm, bình chữa cháy, và thiết bị an toàn điện tử để đảm bảo sự an toàn cho gia đình. Đọc kỹ các quy định và tiêu chuẩn an toàn xây dựng, đặc biệt là về hệ thống phòng cháy và cửa thoát hiểm.

Nhà 7x10m tân cổ điển 3 tầng 1 tum
Nhà 7x10m tân cổ điển 3 tầng 1 tum
  • Hệ thống vệ sinh kém chất lượng: Trước khi xây nhà 3 tầng 7x10m, cần nghiên cứu về các hệ thống vệ sinh môi trường trong xây dựng nhà để hiểu rõ về các yếu tố cần thiết. Đảm bảo lắp đặt đúng và hiệu quả hệ thống thoát nước, điện, và cấp thoát khí để duy trì môi trường sống sạch sẽ và an toàn. 

  • Thiết kế không đảm bảo ánh sáng và không khí: Nhà 3 tầng mặt tiền 7m cần được chiếu sáng tự nhiên và thông thoáng để đảm bảo sức khỏe và tinh thần cho các thành viên trong gia đình. Bạn có thể đạt được điều này bằng cách sử dụng một lượng lớn cửa sổ, cửa đi, và cửa sổ trần. Hoặc trồng cây xanh trong nhà để tạo bóng mát và lọc không khí.

Địa chỉ thi công mẫu thiết kế nhà 3 tầng 7x10m uy tín và lâu đời

Lựa chọn công ty thiết kế nhà 3 tầng đẹp 7x10m, biệt thự phố 3 tầng, nhà ống hiện đại,... uy tín để đảm bảo công trình bền, đẹp, công năng sử dụng tiện nghi.

Kiến trúc Vinavic luôn đặt chất lượng sản phẩm làm trọng tâm cho mỗi thiết kế và thi công. Tất cả các chi tiết được tạo ra với sự tỉ mỉ và tinh tế, nhằm thể hiện tâm huyết và tài năng của đội ngũ kiến trúc sư tài ba trong Vinavic.

Nhà 3 tầng 7x10m cổ điển với mặt tiền thông tầng
Nhà 3 tầng 7x10m cổ điển với mặt tiền thông tầng

Vinavic đảm bảo rằng các công trình hoàn thành sẽ mang lại vẻ đẹp bền vững và kéo dài theo thời gian. Để đạt được điều này, Kiến trúc Vinavic đã đề ra các chỉ dẫn kỹ thuật trong hồ sơ thiết kế cho từng giai đoạn công việc xây dựng, từ móng đến mái, từ công đoạn thô đến hoàn thiện. Điều này giúp đảm bảo rằng công trình xây dựng luôn đạt được chất lượng tốt nhất.

Nếu bạn cũng mong muốn sở hữu một mẫu thiết kế nhà 3 tầng 7x10m sang trọng và đẹp tiện nghi cho gia đình của mình, đừng ngần ngại liên hệ với Vinavic qua số hotline 0975678930 để nhận được tư vấn miễn phí. Hoặc có thể truy cập vào website chính thức của chúng tôi để xem thêm các mẫu thiết kế nhà 7x10m 1 tầng, thiết kế nhà 2 tầng 7x10m,... đẹp với chi phí tương tự.

Xem thêm: Thiết kế nhà 2 tầng 7x10m hiện đại - gợi ý mẫu đẹp và lưu ý

By https://vinavic.vn/
https://vinavic.vn/

Đánh giá - Bình luận
0 bình luận, đánh giá về Top 11 mẫu thiết kế nhà 3 tầng 7x10m đẹp nhất
Nhấn vào đây để đánh giá
Thông tin người gửi
Phong thủy
Chúng tôi có thể hỗ trợ bạn!
20.83004 sec| 2546.633 kb