Top 11 bản vẽ thiết kế nhà 2 tầng 8x10m với kiến trúc đẹp và hót nhất
- 1. Ưu điểm của bản vẽ thiết kế nhà 2 tầng 8x10m
- 2. Lợi ích của việc thuê kiến trúc sư thiết kế bản vẽ nhà 8x10m 2 tầng
- 3. Những yếu tố cần lưu ý khi thực hiện bản vẽ thiết kế nhà 8x10m 2 tầng
- 4. Top 11 bản vẽ thiết kế nhà 2 tầng 8x10m với kiến trúc đẹp và hót nhất
- 4.1. Mẫu nhà 2 tầng 8x10m hiện đại
- 4.2. Mẫu nhà 2 tầng 8x10m mái nhật
- 4.3. Mẫu nhà 2 tầng 8x10m mái thái
- 4.4. Mẫu nhà 2 tầng 8x10m mái bằng hiện đại
- 4.5. Mẫu nhà 2 tầng 8x10m tân cổ điển
- 4.6. Mẫu nhà 2 tầng 8x10m có gara
- 4.7. Mẫu nhà 2 tầng 8x10m có sân vườn
- 4.8. Mẫu nhà 2 tầng 8x10m có 4 phòng ngủ
- 4.9. Mẫu nhà 2 tầng 8x10m có 3 phòng ngủ
- 4.10. Mẫu nhà 2 tầng 8x10m có 3 phòng ngủ 1 phòng thờ
- 4.11. Mẫu nhà 2 tầng 8x10m 2 mặt tiền
- 5. Chi phí xây dựng nhà 8x10m 2 tầng
Bản vẽ thiết kế nhà 2 tầng 8x10m với những ưu điểm về diện tích vuông vức, công năng sử dụng và chi phí hợp lý, mẫu nhà này là một trong những lựa chọn phù hợp cho nhiều gia đình hiện nay, đặc biệt là gia đình có 4-5 thành viên.
Trong bài viết này, chúng ta sẽ cùng tìm hiểu về ưu điểm của bản vẽ thiết kế nhà 2 tầng 8x10m, lợi ích của việc thuê kiến trúc sư thiết kế, những yếu tố cần lưu ý khi thiết kế cũng như một số mẫu thiết kế và chi phí xây dựng phù hợp cho ngôi nhà của bạn.
Ưu điểm của bản vẽ thiết kế nhà 2 tầng 8x10m
Việc sở hữu một bản vẽ thiết kế biệt thự 2 tầng 8x10m sẽ mang lại nhiều lợi ích cho chủ nhà. Dưới đây là những ưu điểm của bản vẽ thiết kế nhà 2 tầng 8x10m.
Tối ưu không gian
-
Thiết kế nhà 2 tầng sẽ giúp bạn tối ưu hóa không gian sống, đặc biệt là khi diện tích đất có hạn. Với một diện tích 8x10m, bạn có thể tận dụng khoảng trống trên cao để xây dựng gác lửng hoặc phòng ngủ riêng cho các thành viên trong gia đình.
Tiết kiệm chi phí xây dựng
-
So với việc xây dựng một ngôi nhà 3 tầng hay 4 tầng, việc xây dựng một ngôi nhà 2 tầng 8x10m sẽ tiết kiệm được chi phí xây dựng và tiền bảo trì sau này. Điều này rất quan trọng đối với những gia đình có tài chính eo hẹp.
Kiến trúc đa dạng
-
Với một ngôi nhà 2 tầng mặt tiền 8m sâu 10m, bạn có thể tự do sáng tạo và thiết kế theo nhiều kiểu dáng khác nhau để tạo nên một ngôi nhà đẹp và ấn tượng. Kiểu dáng, màu sắc cũng như các chi tiết thiết kế khác sẽ giúp ngôi nhà của bạn trở nên độc đáo và thu hút.
Lợi ích của việc thuê kiến trúc sư thiết kế bản vẽ nhà 8x10m 2 tầng
Việc thuê một kiến trúc sư chuyên nghiệp để thiết kế bản vẽ cho ngôi nhà của bạn sẽ mang lại rất nhiều lợi ích, như sau:
Tư vấn chuyên nghiệp về thiết kế nhà 2 tầng và vật liệu xây dựng
-
Kiến trúc sư sẽ tư vấn cho bạn về các phong cách kiến trúc mới nhất, cũ nhưng vẫn đảm bảo tính thẩm mỹ, tiện ích và phù hợp với ngân sách của bạn. Họ sẽ giúp bạn lựa chọn các vật liệu xây dựng phù hợp để tiết kiệm chi phí và đảm bảo độ bền cho ngôi nhà của bạn.
Thiết kế không gian sao cho hợp lý và tiện nghi
-
Kiến trúc sư sẽ tạo ra một bản vẽ thiết kế nhà 2 tầng 8x10m sao cho không gian được sắp xếp hợp lý và tiện nghi. Họ sẽ tạo ra các phòng chức năng, phân chia không gian sao cho tối ưu hóa được diện tích đất và mang lại sự thoải mái cho cả gia đình.
Giúp bạn tiết kiệm thời gian và công sức
-
Việc thuê kiến trúc sư để thiết kế bản vẽ cho ngôi nhà của bạn sẽ giúp bạn tiết kiệm được rất nhiều thời gian và công sức. Bạn sẽ không phải mất nhiều thời gian tìm hiểu về kiến trúc và thiết kế, mà có thể tin tưởng vào chuyên gia để tạo ra một ngôi nhà hoàn hảo cho bạn.
Những yếu tố cần lưu ý khi thực hiện bản vẽ thiết kế nhà 8x10m 2 tầng
Nhà 8x10m 2 tầng là một trong những mẫu nhà được nhiều gia đình lựa chọn xây dựng hiện nay. Với diện tích vừa phải, mẫu nhà này đáp ứng được nhu cầu sinh hoạt và nghỉ ngơi của các gia đình từ 3-5 thành viên. Tuy nhiên, để có được một ngôi nhà đẹp, tiện nghi và phù hợp với nhu cầu sử dụng, gia chủ cần lưu ý một số yếu tố sau khi thiết kế:
Xác định nhu cầu sử dụng
-
Trước khi thiết kế nhà 2 tầng diện tích 80m2, gia chủ cần xác định rõ nhu cầu sử dụng của gia đình mình. Bao nhiêu người sẽ sống trong nhà? Gia đình có nhu cầu sử dụng các phòng chức năng nào? Từ đó, kiến trúc sư sẽ đưa ra phương án thiết kế phù hợp, đảm bảo đáp ứng được đầy đủ nhu cầu của gia đình.
Lựa chọn phong cách thiết kế
-
Phong cách thiết kế là yếu tố quan trọng ảnh hưởng đến thẩm mỹ của ngôi nhà. Hiện nay, có rất nhiều phong cách thiết kế nhà 2 tầng 80m2 để gia chủ lựa chọn như: hiện đại, tân cổ điển, cổ điển,... Mỗi phong cách thiết kế sẽ có những đặc trưng riêng, phù hợp với sở thích và gu thẩm mỹ của từng gia chủ.
Lựa chọn vật liệu xây dựng
-
Vật liệu xây dựng là yếu tố quan trọng quyết định chất lượng và giá thành của ngôi nhà. Gia chủ nên lựa chọn các vật liệu chất lượng, có độ bền cao để đảm bảo ngôi nhà được vững chắc và bền đẹp theo thời gian.
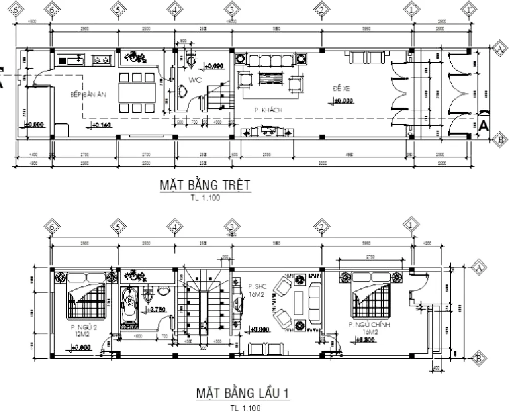
Bố trí công năng hợp lý
Với diện tích 8x10m, mẫu nhà 2 tầng gia chủ cần bố trí công năng sao cho hợp lý, đảm bảo không gian sinh hoạt thoải mái và tiện nghi. Một số lưu ý khi bố trí công năng nhà 2 tầng 8x10m:
-
Tầng 1: Phòng khách, phòng bếp + ăn, phòng ngủ, phòng vệ sinh.
-
Tầng 2: Phòng ngủ, phòng thờ, phòng sinh hoạt chung, phòng vệ sinh.
Chú ý đến yếu tố phong thủy
Phong thủy là yếu tố quan trọng không thể bỏ qua khi thiết kế nhà ở. Gia chủ nên tham khảo ý kiến của các chuyên gia phong thủy để đảm bảo ngôi nhà được hài hòa về mặt thẩm mỹ và mang lại may mắn, tài lộc cho gia chủ.
Top 11 bản vẽ thiết kế nhà 2 tầng 8x10m với kiến trúc đẹp và hót nhất
Mẫu nhà 2 tầng 8x10m hiện đại
Ý tưởng thiết kế nhà ống 2 tầng hiện đại và đẹp đã thu hút sự quan tâm của nhiều gia đình trẻ và người có nguồn tài chính hạn chế trong thời gian gần đây. Không gian bên trong được thiết kế rộng rãi, thoáng đãng và thoải mái, với sự sắp xếp thông minh của nội thất. Đặc biệt, điểm nổi bật của thiết kế này là hình vòm của cửa sổ, tạo ra một vẻ đẹp uốn lượn và mềm mại, thu hút ánh nhìn của mọi người.
Mẫu nhà 2 tầng 8x10m mái nhật
Mẫu thiết kế nhà 2 tầng có diện tích 7x11m đang thu hút sự quan tâm đặc biệt từ phía các chủ đầu tư, đang tìm kiếm ý tưởng phối cảnh và bố trí mặt bằng công năng cho dự án của họ. Với thiết kế trẻ trung và hiện đại, mẫu nhà này không chỉ tối ưu hóa việc sử dụng không gian mà còn thu hút mọi ánh nhìn bởi vẻ đẹp thẩm mỹ độc đáo.
Bên cạnh đó, việc bố trí mặt bằng cũng đã được kiến trúc sư thực hiện một cách linh hoạt và sáng tạo, để đáp ứng tất cả các yêu cầu của gia chủ. Điều này bao gồm số lượng phòng, mật độ không gian sống, và cách bố trí nội thất một cách khoa học và tiện nghi.
Mẫu nhà 2 tầng 8x10m mái thái
Ngôi nhà có diện tích 80m2 và gây ấn tượng mạnh với mặt tiền trắng tinh khôi, được kết hợp một cách hài hòa với các họa tiết trang trí độc đáo. Khuôn viên trước nhà đã được sắp đặt với nhiều cây xanh mini, tạo nên một diện mạo mới lạ hoàn toàn cho dự án nhà ở này.
Mẫu nhà 2 tầng 8x10m mái bằng hiện đại
Dự án xây dựng một căn nhà 2 tầng với diện tích 8x10m đã được thực hiện. Mái nhà thiết kế đơn giản, mang trong mình vẻ đẹp mạnh mẽ và bền vững. Kiến trúc sư đã tận dụng ánh sáng tự nhiên thông qua các ô cửa kính, tạo ra không gian sáng sủa, thoáng đãng và trong lành.
Màu sơn ngoại thất của căn nhà được lựa chọn là gam màu trắng, kết hợp hài hòa với cửa màu đen, tạo nên sự tương phản đầy ấn tượng.
Tham khảo thêm: Những mẫu biệt thự mái bằng đẹp ấn tượng được xây dựng nhiều nhất
Mẫu nhà 2 tầng 8x10m tân cổ điển
Mặt tiền của thiết kế đã được tối giản hoá bằng việc loại bỏ các chi tiết hoa văn, thể hiện sự tinh tế và sáng sủa. Các đường xào được thiết kế hài hòa với gam màu trắng, tạo nên cảm giác thanh thoát và hiện đại. Hệ thống cửa sổ kết hợp giữa nhôm và kính đã được sắp đặt một cách thông minh để tận dụng ánh sáng tự nhiên.
Mái nhà trong dự án cũng rất ấn tượng, thiết kế dưới dạng mái vòm vuông và được trang trí bằng nhiều họa tiết độc đáo.
Mẫu nhà 2 tầng 8x10m có gara
Mẫu nhà 2 tầng với gara theo phong cách hiện đại thường mang trong mình vẻ đẹp mạnh mẽ và tinh tế của các đường nét kiến trúc. Thiết kế của gara được tạo thành với hình dạng vuông vức, vị trí gara gần mặt tiền nhà giúp dễ dàng di chuyển xe vào bên trong.
Chất liệu và sự phối màu tinh tế trong thiết kế gara kết hợp hoàn hảo với bề ngoại thất của căn nhà, tạo nên một tổng thể cuốn hút và hài hòa cho ngôi nhà.
Mẫu nhà 2 tầng 8x10m có sân vườn
Mẫu mặt tiền 8m 2 tầng, với sắc trắng dịu dàng và đường nét mảnh mai, đang thu hút sự quan tâm của nhiều gia đình trẻ, bởi nó mang đậm dấu ấn trẻ trung. Các cửa sổ bằng kính không chỉ thêm phần sang trọng mà còn giúp ánh sáng tự nhiên len lỏi vào bên trong ngôi nhà. Kết hợp với các hệ lam che nắng phía trên và viền màu đen, chúng tạo nên điểm nhấn nổi bật, làm cho ngôi nhà trở nên đặc biệt hơn.


Mẫu nhà 2 tầng 8x10m có 4 phòng ngủ
Mặt tiền của ngôi nhà phố có diện tích 8m và 2 tầng đã được thiết kế với một gara để đỗ xe ô tô phía trước sân, còn phần diện tích trống lại đã được trang trí bằng cây xanh, tạo ra một không gian thoáng đãng và thú vị. Màu trắng và màu đen vẫn duy trì vai trò chính, mang lại sự hòa hợp cho tổng thể thiết kế. Với sự kết hợp của hai gam màu trung tính và tương phản này, gia chủ không cần lo lắng về việc ngôi nhà sẽ lỗi mốt theo thời gian.


Mẫu nhà 2 tầng 8x10m có 3 phòng ngủ
Nếu gia chủ muốn tạo sự độc đáo, họ có thể kết hợp giữa yếu tố hiện đại và cổ điển. Mẫu nhà phố mặt tiền 8m 2 tầng này mang chút hơi thở tân cổ điển, đặc biệt là qua việc sử dụng các cánh cửa gỗ cao cấp. Không chỉ có tác dụng che nắng hiệu quả và tạo ra sự riêng tư tuyệt đối.

Mẫu nhà 2 tầng 8x10m có 3 phòng ngủ 1 phòng thờ
Ngôi nhà kiểu mái Nhật thường được xây dựng tại các vị trí có diện tích đất lớn và mặt tiền rộng. Nhìn từ bên ngoài, những thiết kế nhà này tỏ ra hài hòa và thân thiện, thường sử dụng các gam màu trung tính. Vì vậy, gia chủ hoàn toàn có thể linh hoạt bố trí gara tùy theo lối sống và nhu cầu của gia đình mình.


Mẫu nhà 2 tầng 8x10m 2 mặt tiền
Mặt tiền của mẫu nhà 2 tầng 8x10m 2 mặt tiền thường được thiết kế đơn giản, hiện đại với các đường nét khỏe khoắn, chắc chắn. Các vật liệu xây dựng được sử dụng chủ yếu là gạch, bê tông, kính cường lực,...

Chi phí xây dựng nhà 8x10m 2 tầng
Chi phí xây dựng nhà 8x10m 2 tầng phụ thuộc vào nhiều yếu tố, bao gồm:
-
Diện tích xây dựng: Diện tích xây dựng là yếu tố quan trọng nhất quyết định chi phí xây dựng. Với diện tích 8x10m, tổng diện tích xây dựng của nhà 2 tầng là 220m2 (80m2 x 2 tầng).
-
Thiết kế: Thiết kế nhà cũng ảnh hưởng đến chi phí xây dựng. Nhà có thiết kế đơn giản, ít chi tiết sẽ tiết kiệm chi phí hơn nhà có thiết kế phức tạp, nhiều chi tiết.
-
Vật liệu xây dựng: Vật liệu xây dựng có chất lượng cao sẽ có giá thành cao hơn vật liệu xây dựng chất lượng thấp.
-
Giá nhân công: Giá nhân công xây dựng ở mỗi địa phương sẽ khác nhau.
-
Chi phí phát sinh: Chi phí phát sinh bao gồm chi phí cho các hạng mục như: điện nước, sơn bả, trang trí,...
Tính theo đơn giá xây dựng trung bình hiện nay, chi phí xây dựng nhà 2 tầng 8x10m dao động từ 4,5 - 6 triệu đồng/m2. Như vậy, tổng chi phí xây dựng nhà 2 tầng 8x10m sẽ dao động từ 990 - 1320 triệu đồng.
Dưới đây là bảng dự toán chi phí xây dựng nhà 2 tầng 8x10m:
|
Hạng mục |
Đơn giá |
Diện tích |
Tổng chi phí |
|---|---|---|---|
|
Móng |
3.000.000đ/m3 |
50m3 |
150.000.000đ |
|
Cốt thép |
2.500.000đ/m3 |
30m3 |
75.000.000đ |
|
Xi măng |
1.200.000đ/m3 |
100m3 |
120.000.000đ |
|
Cát |
100.000đ/m3 |
200m3 |
20.000.000đ |
|
Đá |
100.000đ/m3 |
200m3 |
20.000.000đ |
|
Gạch xây |
10.000đ/viên |
10.000 viên |
100.000.000đ |
|
Tôn lợp |
500.000đ/m2 |
100m2 |
50.000.000đ |
|
Ngói lợp |
200.000đ/m2 |
100m2 |
20.000.000đ |
|
Cửa chính |
10.000.000đ |
1 bộ |
10.000.000đ |
|
Cửa sổ |
5.000.000đ/bộ |
10 bộ |
50.000.000đ |
|
Cầu thang |
20.000.000đ |
1 bộ |
20.000.000đ |
|
Nội thất |
1.000.000.000đ |
- |
1.000.000.000đ |
|
Chi phí phát sinh |
100.000.000đ |
- |
100.000.000đ |
Tổng chi phí xây dựng | 2.675.000.000đ |
Như vậy, chi phí xây dựng nhà 2 tầng 8x10m với thiết kế đơn giản, sử dụng vật liệu xây dựng trung bình sẽ dao động từ 2,6 - 3 tỷ đồng. Chi phí xây dựng sẽ tăng lên nếu thiết kế nhà phức tạp, sử dụng vật liệu xây dựng cao cấp.
Một số lưu ý khi tính toán chi phí xây dựng nhà 2 tầng 8x10m
Để tính toán chi phí xây dựng nhà 2 tầng 8x10m chính xác, bạn cần lưu ý một số vấn đề sau:
-
Lựa chọn nhà thầu uy tín: Nhà thầu uy tín sẽ có kinh nghiệm và năng lực thi công tốt, giúp bạn đảm bảo chất lượng công trình và tiết kiệm chi phí.
-
Lập dự toán chi phí xây dựng: Dự toán chi phí xây dựng sẽ giúp bạn ước tính được tổng chi phí cần thiết, từ đó có kế hoạch tài chính phù hợp.
-
Lựa chọn vật liệu xây dựng phù hợp: Vật liệu xây dựng có ảnh hưởng lớn đến chất lượng và chi phí xây dựng nhà ở. Bạn nên lựa chọn vật liệu xây dựng phù hợp với nhu cầu và điều kiện tài chính của gia đình.
-
Theo dõi tiến độ thi công: Bạn nên thường xuyên theo dõi tiến độ thi công để đảm bảo công trình được thi công đúng tiến độ và chất lượng.
Dưới đây là một số mẹo giúp bạn tiết kiệm chi phí xây dựng nhà 2 tầng 8x10m:
-
Lựa chọn thiết kế đơn giản: Thiết kế nhà càng đơn giản thì chi phí xây dựng càng thấp.
-
Sử dụng vật liệu xây dựng thông thường: Vật liệu xây dựng thông thường có giá thành rẻ hơn vật liệu xây dựng cao cấp.
-
Lựa chọn nhà thầu thi công trọn gói: Nhà thầu thi công trọn gói sẽ giúp bạn tiết kiệm chi phí nhân công và quản lý.
-
Tự thi công một số hạng mục công trình: Bạn có thể tự thi công một số hạng mục công trình đơn giản để tiết kiệm chi phí.
Trên đây là những thông tin về bản vẽ thiết kế nhà 2 tầng 8x10m và các yếu tố cần lưu ý để tạo ra một ngôi nhà hoàn hảo. Hy vọng rằng những thông tin này sẽ giúp bạn có được một ngôi nhà đẹp và tiện nghi cho gia đình mình.