Hồ sơ thiết kế bản vẽ thi công gồm có những gì?

Bản vẽ mặt bằng
0
12339
vinavic - 27/02/2023

Hồ sơ thiết kế bản vẽ thi công, chi phí thẩm tra thiết kế bản vẽ thi công là vấn đề được quan tâm hàng đầu với những người đang có nhu cầu tìm hiểu thủ tục làm hồ sơ thiết kế và thẩm tra bản vẽ thi công. 

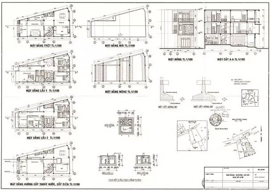
Bộ hồ sơ thiết kế gồm 3 phần chính - hồ sơ cơ sở, bản vẽ chi tiết và dự toán kinh phí
Bộ hồ sơ thiết kế gồm 3 phần chính - hồ sơ cơ sở, bản vẽ chi tiết và dự toán kinh phí

Hồ sơ thiết kế bản vẽ thi công bao gồm những gì? 

Khái niệm

  • Khoản 41, Điều 3 Luật Xây dựng năm 2014 quy định thiết kế bản vẽ thi công phải thể hiện đầy đủ các thông số kỹ thuật, vật liệu xây dựng, và chi tiết cấu tạo sản phẩm nội thất.

  • Những số liệu đề cập đến trong hồ sơ thiết kế bản vẽ thi công phải đảm bảo tuân theo tiêu chuẩn pháp luật và quy chuẩn kỹ thuật áp dụng trong thi công công trình thực tế. 

Hồ sơ thiết kế bản vẽ thi công gồm có những gì? 

Căn cứ theo các quy định TCVN 3827, TCVN 3990, TCVN 5570,... được nhà nước ban hành về tiêu chuẩn hồ sơ thiết kế áp dụng cho cá nhân, tổ chức có nhu cầu lập hồ sơ thiết kế phục vụ thi công xây dựng.

Một bộ hồ sơ thiết kế bản vẽ thi công bao gồm có:

  • Phần thuyết minh và hồ sơ thiết kế cơ sở: như nhau giữa các bộ hồ sơ, có thể tham khảo mẫu sẵn có của các bộ ban ngành.

  • Phần bản vẽ thi công: tuỳ thuộc vào loại công trình xây dựng có nhiều loại bản vẽ khác nhau, số lượng tối đa là 30 bản, bao gồm bản vẽ kiến trúc, bản vẽ kết cấu, bản vẽ lò sưởi,... Bản vẽ phải thể hiện kết cấu, thông số công trình xây dựng chính xác và phù hợp theo quy định nhà nước.

  • Phần dự toán thiết kế bản vẽ thi công: tiên lượng các số liệu kinh tế, kỹ thuật liên quan đến giá thành thi công từ giai đoạn chuẩn bị đến giai đoạn xây lắp trên thực tế. 

Quy định TCVN về danh mục trong ồ sơ thiết kế
Quy định TCVN về danh mục trong ồ sơ thiết kế 

Vai trò của bản vẽ thiết kế thi công

  • Bản vẽ thi công nằm trong hợp đồng thi công xây dựng nhà ở trọn gói cùng các chi tiết liên quan đến bản vẽ công trình, nhằm thống kê kích thước, vị trí, bộ phận, vật liệu, thiết bị sử dụng trên thực tế. 

  • Bản vẽ thi công giúp kiến trúc sư và chủ thầu xây dựng dễ dàng dự toán kinh phí và khối lượng nguyên vật liệu khi thi công. 

  • Nhờ có bản vẽ thiết kế thi công mà công việc giám sát tiến độ công trình diễn ra nhanh chóng, thuận lợi hơn.

Quy định khi lập hồ sơ thiết kế 

  • Trình tự lập và quy cách trình bày, thiết kế hồ sơ đảm bảo tuân thủ các yêu cầu được quy định trên văn bản pháp luật.

  • Phần thuyết minh và các tài liệu có liên quan trình bày trên giấy A4. Các hình vẽ còn lại có thể được thể hiện trên các khổ giấy khác, đảm bảo thực hiện theo các yêu cầu chung của nhà nước về trình bày, thiết kế. 

  • Tuân thủ TCVN 5571 năm 2012 về quy cách trình bày khung tên bản vẽ (bao gồm cả kích thước, nội dung, chữ viết,…). 

  • Tuân thủ quy định TCVN5570 (năm 2012) về đường nét thể hiện ở trên bản vẽ. Cụ thể, nét đậm phải từ 0.5mm đến 0.7mm. Trình bày nét vẽ phải căn cứ vào tỷ lệ bản vẽ.

  • Tỷ lệ bản vẽ thể hiện được chính xác, rõ ràng các chi tiết bên trong, đảm bảo không gây hiểu lầm cho người đọc. Tỷ lệ được chọn phải được thống nhất giữa tất cả bản vẽ sử dụng trong hồ sơ thiết kế. 

Tiêu chuẩn đối với từng thành phần trong hồ sơ thiết kế bản vẽ thi công

Nội dung hồ sơ thiết kế cơ sở 

  • Bản vẽ thiết kế xây dựng chi tiết về kết cấu hạ tầng và kỹ thuật công trình: thể hiện các giải pháp quy hoạch tổng mặt bằng, kiến trúc công trình, kết cấu, hệ thống kỹ thuật chính, hạ tầng,... với kích thước và khối lượng chính, các mốc định vị, tọa độ và cao độ xây dựng theo hệ tọa độ quốc gia VN-2000, bản vẽ kết nối với hạ tầng khu vực.

  • Bản vẽ hệ thống phòng cháy và chữa cháy.

  • Thuyết minh thiết kế cơ sở: được trình bày chi tiết và đầy đủ để người đọc có thể hình dung và thực hiện chính xác trên thực tế, bao gồm địa điểm, phương án thiết kế tổng mặt bằng, quy mô công trình, giải pháp kết nối hạ tầng; giải pháp kiến trúc, kết cấu, kỹ thuật và hạ tầng kỹ thuật, công nghệ; giải pháp bảo vệ môi trường; giải pháp phòng chống cháy nổ; danh mục các quy chuẩn và tiêu chuẩn áp dụng.

  • Tờ trình thẩm định dự án đầu tư xây dựng công trình.

  • Phần tóm tắt nhiệm vụ thiết kế giữa công trình với quy hoạch xây dựng khu vực theo quy định nhà nước bao gồm các số liệu về điều kiện tự nhiên, tác động cùng danh mục theo quy chuẩn, tiêu chuẩn được áp dụng. 

  • Dự toán về tổng kinh phí xây dựng và dự toán thi công. 

  • Thuyết minh công nghệ: giới thiệu về phương án công nghệ và sơ đồ công nghệ, danh mục cùng thiết bị công nghệ, bản vẽ chi tiết các bộ phận bao gồm thông số kĩ thuật, cấu tạo, kích thước các loại vật liệu. Để lập dự toán cho quá trình thi công. 

  • Các tài liệu pháp lý có liên quan.

TCVN về hồ sơ cơ sở
TCVN về hồ sơ cơ sở

Thành phần bản vẽ thi công

Thể hiện đầy đủ công năng các tầng, bao gồm mặt đứng, mặt cắt và mặt bằng kỹ thuật thi công của các tầng:  

  • Chi tiết về mặt bằng, mặt cắt các hạng mục công trình; thể hiện đầy đủ vị trí kích thước các chi tiết kết cấu, thiết bị công nghệ, có biểu liệt kê khối lượng xây lắp và thiết bị của hạng mục công trình đó, chất lượng, quy cách của từng loại vật liệu, cấu kiện điển hình được gia công sẵn, có thuyết minh hướng dẫn về trình tự thi công, các yêu cầu về kỹ thuật an toàn lao động trong thi công, gồm:

    • Tổng mặt bằng cách thức bố trí công trình

    • Mặt bằng bố trí công năng các tầng

    • Mặt bằng kĩ thuật thi công, mặt cắt kĩ thuật thi công

    • Mặt bằng kĩ thuật thi công tại các tầng

    • Mặt bằng thiết kế lát sàn của các tầng

  • Chi tiết các bộ phận công trình: thể hiện đầy đủ vị trí, kích thước, quy cách và số lượng từng loại vật liệu cấu kiện có ghi chú cần thiết cho người thi công, bao gồm:

    • Chi tiết tam cấp, tiền sảnh, mặt đứng, cổng, tường rào, cửa, thang máy, thang bộ

    • Chi tiết ban công, nhà vệ sinh. 

    • Chi tiết lắp đặt thiết bị công nghệ và hệ thống kỹ thuật đường xá.

    • Gia công cấu kiện và các chi tiết phải làm tại công trường.

  • Biếu tổng hợp khối lượng xây lắp, thiết bị, vật liệu của từng hạng mục công trình và toàn bộ công trình (thể hiện đầy đủ các quy cách, số lượng của từng loại vật liệu, cấu kiện, thiết bị).

  • Bảo vệ môi trường, phòng chống cháy, nổ, an toàn vận hành…

  • Quy trình kỹ thuật bảo hành, bảo trì công trình.

Mẫu bản vẽ thi công chi tiết
Mẫu bản vẽ thi công chi tiết

Tiêu chuẩn danh mục hồ sơ thiết kế và bố trí nội thất

Bao gồm phối cảnh cụ thể của công trình, giúp chủ thầu và kiến trúc sư hiểu rõ cách thức bố trí vị trí nội thất trong nhà. 

  • Mặt bằng cách bố trí và phối cảnh nội thất tại các tầng 

  • Mặt bằng của trần đèn, mặt bằng trang trí các tầng

  • Bản vẽ chi tiết và bảng thống kê đồ nội thất

  • Mặt cắt mặt đứng của đường.

Phối cảnh 3D trong danh mục bản vẽ thiết kế thi công
Phối cảnh 3D trong danh mục bản vẽ thiết kế thi công

Hồ sơ thiết kế kết cấu công trình bao gồm những gì?

Đây là bộ hồ sơ thiết kế thể hiện cấu tạo chi tiết các bộ phận trong nhà, gồm các hạng mục chính như sau:

  • Kết cấu bể nước ngầm, móng, kết cấu bể tự hoại

  • Kết cấu sàn, cột, dầm, bản thang, lanh to

  • Hồ sơ kết cấu thống kê cốt thép

Nội dung hồ sơ thiết kế kết cấu điện nước 

Là cơ sở giúp chủ đầu tư biết cách bài trí mạch điện và các đường dẫn trong nhà, bao gồm các danh mục:

  • Mặt bằng bố trí ổ cắm và công tắc các thiết bị điện, điện chiếu sáng tại các tầng 

  • Mặt bằng bố trí và lắp đặt điều hòa

  • Mặt bằng bố trí và lắp đặt các thiết bị viễn thông như điện thoại, internet, truyền hình cáp,...

  • Mặt bằng bố trí hệ thống chống sét, thu lôi 

  • Hệ thống sơ đồ nguyên lý cấp điện nước tại sàn nhà và trong toàn bộ công trình 

  • Thống kê về chi tiết và cấu tạo thiết bị nước bao gồm hồ sơ thiết kế cấp nước, hồ sơ thiết kế thoát nước, và thống kê vật tư.

Dự toán thiết kế bản vẽ thi công

Dự toán thiết kế thống kê chi tiết các chi phí, nguồn nguyên vật liệu của ngôi nhà bao gồm: 

  • Căn cứ và cơ sở để lập dự toán.

  • Khái quát tổng hợp dự toán chi phí xây dựng của tất cá các hạng mục công trình 

  • Bảng tiên lượng, dự toán chi phí xây dựng cho từng hạng mục công trình. 

Dự toán chi phí thiết kế không có phí phát sinh
Dự toán chi phí thiết kế không có phí phát sinh

Chi phí thẩm tra thiết kế bản vẽ thi công là gì?

Khái niệm thẩm tra thiết kế 

  • Là công tác bắt buộc được nhà nước quy định cụ thể theo Thông tư, Nghị định, và các Luật liên quan đến quy trình quản lý chất lượng xây dựng công trình tại Việt Nam. 

  • Công tác thẩm tra thiết kế công trình góp phần đảm bảo chất lượng đồ án thiết kế, giám sát và đưa ra giải pháp khắc phục sai sót còn tồn tại trong quá trình tư cấn thiết kế thi công một cách hiệu quả.

  • Bộ phận thẩm tra thiết kế giúp tiết kiệm tối đa chi phí đầu tư xây dựng và tăng độ tin cậy cho đồ án quy hoạch. 

  • Theo Nghị định số 12/2009/NĐ ban hành ngày 10/02/2009 quy định nội dung công tác thẩm tra thiết kế như sau: 

    • Kiểm tra và đánh giá mức độ phù hợp của bản vẽ thiết kế kỹ thuật và thiết kế cơ sở.

    • Kiểm tra đánh giá kết cấu công trình có phù hợp hay không.

    • Giám sát kiểm tra các quy chuẩn, tiêu chuẩn kỹ thuật xây dựng thi công công trình.

    • Giám sát các quy chuẩn an toàn phòng cháy chữa cháy, vệ sinh môi trường.

    • Thẩm định chất lượng dự án xây dựng, độ an toàn của công trình khi thi công và đưa vào sử dụng.

    • Kiểm tra đánh giá việc lựa chọn dây chuyền và thiết bị công nghệ phù hợp đối với các công trình có yêu cầu công nghệ,.

Khái niệm chi phí thẩm tra thiết kế xây dựng

Quy định theo bảng 2.16 theo Thông tư số 12/2021/TT-BXD (thay thế cho Thông tư 16/2019/TT-BXD) về chi phí thẩm tra thiết kế kỹ thuật có nội dung sau: 

  • Chi phí thẩm tra thiết kế xây dựng xác định theo định mức tỷ lệ phần trăm (%) nhân với chi phí xây dựng (chưa có thuế giá trị gia tăng) của công trình trong tổng mức đầu tư. Trường hợp công việc thiết kế thực hiện theo gói thầu thì chi phí thẩm tra thiết kế xác định theo định mức tỷ lệ phần trăm (%) (bảng 2.16 ) nhân với chi phí xây dựng (chưa có thuế giá trị gia tăng) trong dự toán gói thầu.

Bảng 2.17 theo Thông tư số 12/2021/TT-BXD quy định về chi phí thẩm tra dự toán xây dựng: 

  • Chi phí thẩm tra dự toán xây dựng xác định theo định mức tỷ lệ phần trăm (%) nhân với chi phí xây dựng (chưa có thuế giá trị gia tăng) của công trình trong tổng mức đầu tư. Trường hợp thẩm tra dự toán gói thầu thi công xây dựng thì chi phí thẩm tra dự toán xác định theo định mức tỷ lệ phần trăm (%) (bảng 2.17) nhân với chi phí xây dựng (chưa có thuế giá trị gia tăng) trong dự toán gói thầu.

Hướng dẫn áp dụng định mức chi phí thẩm tra thiết kế kỹ thuật  

  • Chi phí thẩm tra thiết kế của công trình có sử dụng thiết kế điển hình, thiết kế mẫu do cơ quan có thẩm quyền ban hành điều chỉnh với hệ số k = 0,36 đối với công trình thứ hai trở đi.

  • Chi phí thẩm tra thiết kế kỹ thuật đối với có yêu cầu thiết kế 3 bước và thẩm tra thiết kế bản vẽ thi công đối với công trình có yêu cầu thiết kế 1 bước và 2 bước được xác định theo định mức tỷ lệ % nhân với chi phí xây dựng (chưa tính thuế GTGT) trong dự toán công trình đã được duyệt ở bảng 2.16. Trường hợp việc thiết kế theo gói thầu thì chi phí thẩm tra thiết kế xác định theo định mức tỷ lệ % nhân với chi phí xây dựng (chưa tính thuế GTGT) trong dự toán gói thầu được duyệt và điều chỉnh với hệ số K=0,9.

Bảng định mức chi phí thẩm tra thiết kế kỹ thuật
Bảng định mức chi phí thẩm tra thiết kế kỹ thuật
  • Chi phí thẩm tra thiết kế bản vẽ thi công đối với công trình có yêu cầu thiết kế 3 bước được xác định bằng 40% chi phí thẩm tra kỹ thuật. Chi phí thẩm tra thiết kế công nghệ (nếu có áp dụng) được xác định bằng cách lập dự toán.

Bảng định mức chi phí thẩm tra dự toán công trình
Bảng định mức chi phí thẩm tra dự toán công trình
  • Chi phí thẩm tra thiết kế công trình san nền tính bằng 40% chi phí thẩm tra thiết kế công trình giao thông.

  • Chi phí thẩm tra thiết kế xác định theo định mức nhưng tối thiểu (chưa bao gồm thuế GTGT) không nhỏ hơn 2.000.000 đồng.

Hướng dẫn áp dụng định mức chi phí thẩm tra dự toán xây dựng

  • Đối với các dự án được dự kiến triển khai thực hiện theo các gói thầu, để dự trù kinh phí thẩm tra dự toán xây dựng khi xác định tổng mức đầu tư, chi phí thẩm tra dự toán xây dựng được xác định theo định mức tỷ lệ phần trăm (%) (ban hành tại bảng số 2.17 của Phụ lục số 2 kèm theo Thông tư 16/2019/TT-BXD) tương ứng với quy mô chi phí xây dựng của từng gói thầu dự kiến phân chia.

Phụ lục số 2 Thông tư 16/2019/TT-BXD quy định về định mức chi phí tư vấn đầu tư xây dựng
Phụ lục số 2 Thông tư 16/2019/TT-BXD quy định về định mức chi phí tư vấn đầu tư xây dựng
  • Trường hợp chi phí thiết bị ≥ 25% tổng giá trị chi phí xây dựng và chi phí thiết bị trong dự toán xây dựng công trình; dự toán gói thầu thì chi phí thẩm tra dự toán xây dựng được điều chỉnh với hệ số k = 1,2.

  • Chi phí thẩm tra dự toán xây dựng điều chỉnh; dự toán gói thầu mua sắm vật tư, thiết bị công trình; dự toán gói thầu tư vấn đầu tư xây dựng, dự toán gói thầu thuộc khoản mục chi phí khác (đối với trường hợp gói thầu tư vấn, gói thầu thuộc khoản mục chi phí khác được xác định bằng dự toán); dự toán gói thầu hỗn hợp xác định bằng dự toán theo hướng dẫn tại Phụ lục số 3 kèm theo Thông tư 16/2019/TT-BXD.

Phụ lục số 3 Thông tư 16/2019/TT-BXD quy định về hướng dẫn xác định dự toán chi phí tư vấn 
Phụ lục số 3 Thông tư 16/2019/TT-BXD quy định về hướng dẫn xác định dự toán chi phí tư vấn 

Qua bài viết trên đây, Kiến trúc Vinavic đã đề ra những giải pháp tư vấn pháp lý giải đáp thắc mắc về hồ sơ thiết kế bản vẽ thi công, chi phí thẩm tra thiết kế bản vẽ thi công với những người đang có nhu cầu lập hồ sơ thiết kế và thẩm tra.

Để được tư vấn thêm về các vấn đề thủ tục pháp lý khác, xin vui lòng liên hệ số hotline 0975678930 (khu vực Hà Nội) và 0982303304 (khu vực TP HCM). 

By https://vinavic.vn/
https://vinavic.vn/

Đánh giá - Bình luận
0 bình luận, đánh giá về Hồ sơ thiết kế bản vẽ thi công gồm có những gì?
Nhấn vào đây để đánh giá
Thông tin người gửi
Phong thủy
Chúng tôi có thể hỗ trợ bạn!
1.20388 sec| 2505.586 kb