Tìm hiểu các bước chính để xây dựng nhà ở gồm những gì?

Tin tức nhà đẹp
0
9678
vinavic - 20/02/2023

Quy trình xây nhà: Các bước chính để xây dựng nhà ở gồm cần nắm rõ khi xây nhà bao gồm:

Bước 1: Chuẩn bị: chọn kiểu nhà, chọn vật liệu, thiết kế,...

Bước 2: Thi công: dựng khung, xây móng, xây tường, lợp mái,...

Bước 3: Hoàn thiện và nghiệm thu: quét vôi, trát tường, lắp đặt điện, nước, nội thất,... 

Quy trình xây nhà hoàn thiện từ A đến Z gồm ba bước chính
Quy trình xây nhà hoàn thiện từ A đến Z gồm ba bước chính

Chuẩn bị xây dựng nhà bao gồm các công việc

Giai đoạn chuẩn bị xây nhà được tiến hành trước khi bắt đầy thi công xây dựng, có tính chất quyết định mặt bằng xây dựng, kinh phí, phong thuỷ, vẽ thiết kế và thủ tục pháp lý. 

Chuẩn bị mua đất nền 

Thế đất đẹp theo quan niệm phong thuỷ

  • Quan niệm “trạch mệnh phải tương phối” quy định bản mệnh gia chủ và thế đất phải hoà hợp, không được xung khắc:

    • Người thuộc Đông tứ mệnh hợp mua đất ở Đông tứ trạch.

    • Người thuộc Tây tứ mệnh hợp mua đất ở Tây tứ trạch.

  • Thế đất đẹp theo Tứ linh: mảnh đất có địa thế quý giá nhất để xây nhà phải hội tụ đủ 4 yếu tố: tả Thanh Long (nước chảy bên trái), hữu Bạch Hổ (đại lộ bên phải), tiền Chu Tước (ao, đầm phía trước), hậu Huyền Vũ (gò, đồi phía sau).

  • Đất phải nở hậu, có dáng hình hồ lô, kích thước đất phình ra vào phía sau thì theo phong thuỷ là thế đất quý giúp giữ gìn tài lộc chảy vào trong nhà, thường được quan chức, thương nhân ưa chuộng. 

  • Phía trước mặt tiền lô đất không nên có cột điện, cây xum xuê dễ chọc phải móng nhà hay con đường “xuyên tâm sát" đâm thẳng vào trong nhà.

  • Hướng đất chính đẹp theo ông bà ta là hướng Nam hoặc Đông Nam (“lấy vợ đàn bà, làm nhà hướng nam") bởi đây là hướng thời tiết ôn hoà nhất trong tất cả các hướng: sáng chiều không bị nắng xiên khoai, tránh được hướng Tây mặt trời chiếu gay gắt, hướng Đông bão tố và hướng Bắc gió mùa. Gió Nam thổi vào mùa nóng thì mát mẻ, ôn hoà.

Thế đất thuận lợi dưới góc nhìn kiến trúc

  • Xây nhà phố thì chú ý cân nhắc nên mua đất ở khu vực an ninh tốt, điện nước đầy đủ, đường rộng hè thoáng, đi lại ô tô dễ dàng, gần các khu vực chợ, siêu thị, bệnh viện, trường học,...

  • Đảm bảo tính pháp lý: Diện tích xây nhà phải được công nhận trong sổ hồng có thổ cư (hoặc sổ đỏ) và các giấy tờ hợp lệ có giá trị pháp lý tương đồng. 

  • Miếng đất phải có giá cả hợp lý. 

  • Tránh lựa chọn mua những miếng đất nằm trong diện cấm xây dựng hoặc không nằm trong dự án quy hoạch nào cả.   

Tham khảo thêm: Thiết kế nhà mục đích gì và thiết kế gồm mấy giai đoạn ? 

Thế đất quy tụ linh khí theo phong thuỷ
Thế đất quy tụ linh khí theo phong thuỷ

Lập hồ sơ thiết kế xây dựng

  • Bước tiếp theo trong quy trình xây dựng nhà ở bao gồm tiến hành lập hồ sơ thiết kế xây dựng để chuẩn bị cho việc xin giấy phép xây dựng nhà. 

  • Chủ đầu tư nên lựa chọn được bên đơn vị tư vấn thiết kế thi công uy tín để được tư vấn chuẩn về luật cách lập hồ sơ thi công, dự toán chi phí xây nhà cũng như tiến độ dự kiến khi xây dựng. 

Chuẩn bị thủ tục pháp lý

  • Để được phép xây nhà thì chủ nhà cần phải đi xin giấy cấp phép xây dựng cho công trình của mình. Việc hoàn thiện thủ tục pháp lý sẽ giúp chủ đầu tư chứng minh được quyền sử dụng đất của mình với các đơn vị thiết kế và thi công.

  • Chủ đầu tư cần chuẩn bị đầy đủ hồ sơ thiết kế xin phép xây dựng của đơn vị thiết kế có đủ tư cách pháp nhân cũng như chứng chỉ hành nghề tư vấn, thiết kế công trình. Bộ hồ sơ này sẽ do nhà tư vấn thiết kế xây dựng hợp pháp chuẩn bị cho chủ đầu tư chứ không thể tự làm được. 

  • Các bước xin giấy cấp phép xây nhà bao gồm: 

    • Lập hồ sơ xin cấp phép xây dựng.

    • Nộp hồ sơ tại cơ quan nhà nước có thẩm quyền cấp phép xây dựng.

    • Cơ quan cấp phép xây dựng kiểm tra hồ sơ.

    • Cơ quan cấp phép xây dựng đóng dấu bản vẽ và cấp giấy phép xây dựng cho các bộ hồ sơ hợp lệ.

    • Trước khi khởi công xây dựng 7 ngày, chủ nhà gửi thông tin ngày khởi công đến cơ quan cấp phép và UBND cấp phường/xã. 

Bố trí đi tham khảo các thầy phong thuỷ trước khi vẽ thiết kế

  • Xây nhà phải xem hướng. Hướng nhà có ba cách xác định, theo thế đất, theo cung mệnh chủ nhà và theo quy luật âm - dương. 

  • Khi xem hướng nhà cần xác định tính toán cụ thể cung mạng của gia chủ và con cháu để tránh phạm lỗi phong thuỷ nghiêm trọng dẫn đến hoạ về tình duyên, sức khoẻ, tiền tài, hôn nhân, sự nghiệp. 

  • Xem phong thuỷ trước khi xây nhà để xác định cách bố trí không gian sử dụng và đồ nội thất phù hợp với cung mệnh của từng thành viên trong gia đình.

  • Xem phong thuỷ còn giúp ấn định thời điểm khởi công và ảnh hưởng tới kết cấu căn nhà khi thi công. Ví dụ, nếu nhà được xây trên đất hình bị xéo (tam giác, hình thang, hình chữ L,...) thì cần phải xem xét để có phương án xác định tâm mảnh đất ở đâu, xây nhà hình vuông ở đâu, bo góc chỗ nào,... 

Hướng nhà đẹp xác định theo bản mệnh, thế đất và dương khí
Hướng nhà đẹp xác định theo bản mệnh, thế đất và dương khí 

Tham khảo tư vấn về phong cách thiết kế 

  • Chủ nhà phải cùng bàn bạc và thống nhất với gia đình về quy mô xây dựng phù hợp với nhu cầu thực tế: xây nhà mấy tầng, số phòng ngủ, phòng khách rộng bao nhiêu mét vuông, có xây thêm phòng ngủ cho trẻ em không, đầu tư khoảng bao nhiêu kinh phí,...

  • Bảng câu hỏi càng liệt kê tỉ mit càng giúp kiến trúc sư dễ dàng có cơ sở hình dung ra mong muốn và điều kiện sinh hoạt thực tế của chủ nhà, từ đó dẫn đến tìm ra giải pháp thiết kế phù hợp.

  • Từ những phương án gợi ý của đơn vị tư vấn thiết kế , chủ nhà có thể lựa chọn phong cách kiến trúc theo sở thích cá nhân: nhà vuông, nhà chữ L, mái tôn, mái thái, mái nhật, phong cách cổ điển và tân cổ điển, phong cách hiện đại,...

  • Việc chuẩn bị bảng liệt kê quy mô và nhu cầu xây nhà kỹ lưỡng giúp thúc đẩy quy trình thi công và xây dựng nhanh chóng, tiện lợi và tiết kiệm chi phí tối đa.

Dự trù kinh phí xây nhà tối đa

  • Kinh phí xây dựng ảnh hưởng trực tiếp đến quy mô cũng như tiến độ xây nhà nhanh chóng và chất lượng ra sao. 

  • Để xây dựng được một căn nhà thì chủ đầu tư cần phải bỏ ra rất nhiều chi phí phí. Nếu không xác định ngân sách một cách rõ ràng, thì gia chủ khó kiểm soát và quản lý, thậm chí còn gián đoạn quá trình thi công. Điều này còn ảnh hưởng đến thẩm mỹ, chất lượng thi công hay phát sinh chi phí sửa chữa lâu dài.

  • Dự trù trước ngân sách tối đa sẽ giúp chủ nhà đánh giá được phương án thiết kế có khả thi và phù hợp hay không.

  • Từ ý tưởng và nhu cầu ở bước chuẩn bị thiết kế, gia chủ nên xem xét tham khảo chi phí xây dựng ở địa phương mình như hỏi xin kinh nghiệm những nhà vừa mới xây xong hoặc tìm tới những công ty xây dựng để được tư vấn trọn gói giá thi công.

  • Các khoản chi phí thông thường bao gồm:

    • Chi phí phá dỡ nhà cũ (nếu có)

    • Chi phí khảo sát địa chất và gia cố móng

    • Chi phí xin giấy phép xây dựng

    • Chi phí thiết kế (nếu thuê ngoài)

    • Chi phí mua sắm vật tư, thiết bị, mua sắm nội thất.

    • Chi phí của nhân công xây dựng

    • Chi phí giám sát

    • Chi phí hoàn công 

    • Chi phí mềm: thanh tra xây dựng, đô thị, phòng cháy chữa cháy, an toàn lao động, hàng xóm,…

    • Chi phí dự phòng phát sinh.

  • Nếu chi phí thực tế lớn hơn kinh phí dự trù, gia chủ cần có phương án tính toán lại diện tích và công năng phù hợp, tránh trường hợp “vung tay quá trán".

  • Một số kinh nghiệm dự trù kinh phí xây nhà:

    • Lập dự toán chi tiết cho các khoản thanh toán để hoàn thiện nhà như chi phí xin phép, chi phí thiết kế, chi phí thi công, chi phí giám sát, chi phí hoàn công,... 

    • Lựa chọn nhà thầu xây dựng trọn gói hoặc phần thô để tránh chi phí phát sinh bởi những phần chi phí này sẽ được nhà thầu báo sớm ngay từ đầu để khách hàng dự trù kinh phí. Quy trình xây dựng chuẩn hoá của những đơn vị có uy tín sẽ tự động điều chỉnh thiết kế và quy mô nếu có dấu hiệu vượt kinh phí xây dựng. 

Tham khảo thêm: Làm nhà vừa thiết kế vừa thi công có được không? 

Chi phí xây nhà cần được dự trù trước tránh tình trạng vung tay quá trán
Chi phí xây nhà cần được dự trù trước tránh tình trạng vung tay quá trán

Xác định thời điểm khởi công

  • Khi tiến hành xây nhà, chủ đầu tư cần xem ngày động thổ, ngày làm nhà, ngày đổ mái,... để chọn được ngày lành tháng tốt đem lại nguồn tài lộc như nước chảy vào nhà.

  • Cần cân nhắc thêm các yếu tố về thời tiết và khí hậu các miền, tránh làm nhà vào mùa mưa bão, ngập lụt, dẫn đến thời gian thi công bị kéo dài, phát sinh nhiều chi phí, ảnh hưởng độ chắc chắn của móng nhà,...

  • Xác định rõ kế hoạch thi công giúp gia chủ quyết định được hạng mục nào cần châunr bị trước và lên kế hoạch cụ thể đến mức nào khi xây nhà.

Tham khảo đơn vị thiết kế kiến trúc và hồ sơ kỹ thuật

  • Tự thiết kế khi không có đủ chuyên môn sẽ phải gánh chịu những hệ quả nặng nề về chi phí và xử lý mặt bằng.

  • Lựa chọn hợp tác với một đơn vị có chuyên môn và được đào tạo bài bản qua trường lớp sẽ giúp chủ nhà:

    • Dễ hình dung ra ngôi nhà thực tế sau khi xây xong.

    • Có phương án bố trí công năng khoa học phù hợp với nhu cầu thực tế.

    • Tạo ra những bản vẽ đẹp và sang trọng dựa trên phong cách kiến trúc chủ đạo đã được thống nhất trước.

    • Giám sát và xử lý được các kỹ thuật xây dựng có được thực hiện đúng tiêu chuẩn, đúng quy trình hay không, đảm bảo sử dụng nhà lâu bền.

    • Lắp đặt hệ thống thoát nước khoa học, thông minh và đạt tiêu chuẩn thẩm mỹ cao. 

Lựa chọn nhà thầu uy tín

Các tiêu chí chọn nhà thầu xây dựng gồm có:

  • Nhà thầu phải có đầy đủ giấy tờ chứng minh tư cách pháp nhân và năng lực chuyên môn theo ràng buộc pháp lý hợp lệ.

  • Nhà thầu có năng lực tổ chức xây dựng, quy trình minh bạch và chuyên nghiệp.

  • Nhà thầu báo giá hợp lý, quy định rõ giá vật tư vật liệu sử dụng trong quá trình thi công.

  • Nhà thầu thực hiện đúng quy trình xây dựng theo cam kết đã đưa ra.

  • Nhà thầu có tâm với nghề.

Giá cả thi công sẽ khác nhau bởi cách tính bởi sự chênh lệch trong cách tính mét vuông trên bản vẽ và trên thực tế. Vì vậy cần xem xét các gói thầu để so sánh giá cả, cân nhắc các yếu tố:

  • Tổng giá trị hợp đồng

  • Cam kết bảo hành

  • Hạng mục thi công

  • Dịch vụ đi kèm

  • Vật liệu cung cấp 

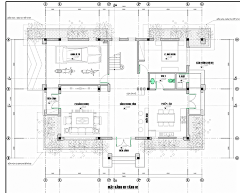
Bản vẽ kỹ thuật tầng 1 điển hình chia rõ chức năng các phòng
Bản vẽ kỹ thuật tầng 1 điển hình chia rõ chức năng các phòng

Chuẩn bị mặt bằng

  • Nếu trên miếng đất đã mua vẫn còn công trình nhà cũ thì phải tiến hành phá dỡ, đảm bảo vệ sinh sạch sẽ chuẩn bị mặt bằng xây dựng.

  • Chuẩn bị trước khi thi công bao gồm nguồn điện nước, hàng rào che chắn, lán trại cho công nhân ngủ nghỉ, bạt phủ,...

Lựa chọn vật liệu 

  • Chủ đầu tư nên bàn giao cho nhà thầu lựa chọn toàn bộ vật liệu. Đây là đơn vị có đủ năng lực chuyên môn thẩm định chất lượng các loại vật tư, đồng thời cũng hay nhận được giá tốt hơn so với các cá nhân tự đi mua.

  • Thông thường các gói dịch vụ xây nhà trọn gói hoàn thiện từ phần thô tới nội thất sẽ tự động cung cấp vật tư theo yêu cầu của chủ nhà, dựa trên số lượng và chủng loại xác định theo nhu cầu sử dụng thực tế.

Các bước chính để xây dựng nhà ở gồm

Thông báo ngày khởi công tới chính quyền địa phương

  • Pháp luật quy định chủ đầu tư phải thông báo ngày khởi công tới cơ quan cấp phép trước 7 ngày.

  • Nếu chủ nhà đảm bảo nộp đủ các loại giấy tờ xin phép xây dựng thì thông thường sẽ nhận được giấy cấp phép xây nhà trong vòng 10 - 20 ngày.

Khảo sát hiện trạng nhà lân cận

  • Nếu có ý định thi công xây nhà xen kẽ các công trình đang trong giai đoạn thi công khác, chủ đầu tư nên nhờ nhà thầu lập hồ sơ hiện trạng các nhà lân cận để có thể khiếu nại được sau này nếu có tai nạn nào xảy ra.

  • Trước khi lập sơ đồ, đo vẽ cần có sự xác nhận của các bên công trình đang thi công dở bên cạnh theo Điều 9 - Quyết đinh số 25/2002/QĐ- UB của UBND tp Hà Nội.

Tham khảo thêm: 45 thuật ngữ xây dựng phổ biến nhất mà ít ai biết 

Nên lập hồ sơ hiện trạng các nhà lân cận để có thể khiếu nại được sau này
Nên lập hồ sơ hiện trạng các nhà lân cận để có thể khiếu nại được sau này

Quy trình xây nhà từ móng đến mái

Thi công phần móng và kết cấu phần thô là hạng mục quan trọng nhất trong quy trình xây nhà, quyết định độ bền vững và tuổi thọ căn nhà.

Dựng sườn, đào móng:

  • Động thổ, ép cọc (bê tông cốt thép, cọc hỗ, cọc tre).

  • Đào móng: đào đất, đắp đất, thi công ván khuôn, cốt thép, đổ bê tông.

  • Lắp đặt hệ thống cấp nước, thoát nước, bể phốt, các hạng mục ngầm.

  • Dựng khung nhà: gia công cốp pha, ván khuôn, cốt thép, đổ bê tông cột, dầm, sàn, cầu thang. 

  • Xây thô và lắp đặt điện, nước, internet,... âm tường.

  • Đổ mái (lắp dựng xà gồ,...), thực hiện chống thấm mái và sàn nước trong ngoài nhà.  

  • Xây tô, cán nền, lắp khung bao cửa,... 

Hoàn thiện phần thô:

  • Là bước chính giúp hình thành khung cho mỗi ngôi nhà. 

  • Khoán vật liệu: Nhà thầu đảm nhiệm mua vật tư thì chủ nhà chỉ cần duyệt chủng loại và giám sát, kiếm tra tiến độ thi công. Chủ nhà tự mua vật liệu thì phải chịu trách nhiệm cung ứng và quản lý vật tư.

  • Khoán nhân công: Chủ đầu tư cần am hiểu kiến thức về quy trình xây dựng để có thể giám sát và giải quyết kịp thời những vấn đề phát sinh trong quá trình thi công. Bên nhà thầu chỉ có trách nhiệm cung cấp công nhân.

Hoàn thiện phần thô sườn nhà
Hoàn thiện phần thô sườn nhà

Các bước xây nhà hoàn thiện 

Là phần chiếm nhiều kinh phí xây dựng nhất trong quy trình xây nhà, ảnh hưởng trực tiếp tới tính thẩm mỹ của ngôi nhà, bao gồm:

  • Lắp trần thạch cao (nếu có).

  • Bả bột matit, sơn nước, sơn dầu, hoặc ốp đá…

  • Lắp hoàn thiện cửa đi, cửa sổ, của chính.

  • Lắp dựng tay vịn, lan can cầu thang, lan can ban công, sân thượng.

  • Ốp lát gạch nền, gạch tường, nhà vệ sinh, sân, mái.

  • Ốp lát gạch đá cho bếp, đá cầu thang,...

  • Lắp đặt thiết bị vệ sinh như bồn cầu, chậu lavabo, máy nước nóng, bồn nước, máy bơm.

  • Lắp đặt thiết bị điện chiếu sáng, công tắc, ổ cắm, thiết bị điện.

  • Hoàn thiện nội thất: tủ bếp, bàn ghế, giường, kệ tủ, rèm…

  • Một số hạng mục lắp đặt theo nhu cầu riêng: chống sét, dàn âm thanh, điện lạnh, nội thất thông minh,... 

Yêu cầu khi xây dựng sân vườn 

Áp dụng cho những mẫu đất có đủ khoảng trống cho phép, gồm các bước:

  • Lắp đặt tường rào, trụ cổng.

  • Lát nền sân.

  • Tạo ao hồ tiểu cảnh nước non, rãnh đất, bồn hoa.

  • Trồng thảm cỏ, cây ăn quả, cây cảnh.

Hoàn thiện sân vườn cần nhiều công đoạn chi tiết
Hoàn thiện sân vườn cần nhiều công đoạn chi tiết

Các bước chính nghiệm thu, bàn giao và đưa vào sử dụng

Trình bày các yêu cầu khi giám sát thi công

  • Công đoạn giám sát thi công đảm bảo việc xây dựng thực hiện đúng quy trình kỹ thuật và trình tự thi công.

  • Chủ đầu tư có đủ năng lực giám sát và kinh nghiệm, kiến thức mua nhà, sửa nhà có thể thực hiện tự giám sát. 

  • Phương án tối ưu nhất là thuê đơn vị có trình độ và năng lực chuyên môn để giám sát, đồng thời yêu cầu họ viết nhật ký thi công để theo dõi sát sao tiến độ thi công công trình.

  • Các bước giám sát thi công thông thường bao gồm:

    • Theo dõi sát sao chất lượng thi công xây dựng của nhà thầu.

    • Kiểm tra khối lượng, mẫu mã và chủng loại vật tư vật liệu đúng theo hợp đồng đã ký kết.

    • Thường xuyên kiểm tra công tác an ninh trong quá trình xây dựng.

    • Thúc đẩy nhà thầu thực hiện các hạng mục theo đúng tiến độ công trình.

Quy trình nghiệm thu hoàn thành bao gồm những việc gì? 

Công việc tổ chức nghiệm thu phải được chủ đầu tư và đơn vị giám sát thi công thực hiện sau khi hoàn thành từng hạng mục, bao gồm:

  • Lập biên bản nghiệm thu hạng mục.

  • Các bên cam kết sửa chữa, khắc phục nếu chưa đúng yêu cầu kỹ thuật và bản vẽ thiết kế.

  • Nghiệm thu hoàn thành công trình, bàn giao cho chủ đầu tư đưa vào sử dụng.

  • Làm hồ sơ hoàn công. 

Tham khảo thêm: Theo quy định xây nhà 1 tầng có phải xin giấy phép không? 

Nghiệm thu công trình xây dựng phải có biên bản
Nghiệm thu công trình xây dựng phải có biên bản

Trên đây là toàn bộ quy trình các bước chính để xây dựng nhà ở gồm có giai đoạn chuẩn bị, thi công và nghiệm thu. 

Kiến trúc Vinavic luôn đảm bảo cung cấp giải pháp tư vấn quy trình xây nhà sát với thực tế và tuân thủ đúng quy định của pháp luật nhất với khách hàng đang gặp phải vướng mắc khi tìm hiểu vấn đề này.  

Quý khách tin tưởng có thể liên hệ với chúng tôi tại: 

Công ty cổ phần kiến trúc Vinavic Việt Nam

Hà Nội: Zone 4.2, tầng 4, tháp B1, tòa Roman Plaza, Tố Hữu, Nam Từ Liêm, Hà Nội

Hotline Hà Nội: 0975678930

Hồ Chí Minh: 215K-215J Đường Nguyễn Trãi, P.Nguyễn Cư Trinh, Quận 1 TP.HCM

Hotline TPHCM: 0982303304


 

   

 

By https://vinavic.vn/
https://vinavic.vn/

Đánh giá - Bình luận
0 bình luận, đánh giá về Tìm hiểu các bước chính để xây dựng nhà ở gồm những gì?
Nhấn vào đây để đánh giá
Thông tin người gửi
Phong thủy
Chúng tôi có thể hỗ trợ bạn!
1.15784 sec| 2538.898 kb