Tìm hiểu mặt bằng kiến trúc nhà phố, biệt thự
Mặt bằng kiến trúc không chỉ đáp ứng nhu cầu chức năng mà còn tạo nên sự hài hòa thẩm mỹ cho công trình nhà đẹp. Trong bài viết này hãy cùng Kiến Trúc Vinavic tìm hiểu chi tiết về mặt bằng kiến trúc là gì dưới đây để hiểu rõ hơn nhé.
Mặt bằng kiến trúc là gì?
Mặt bằng kiến trúc là một bản vẽ hoặc mô hình hóa của một công trình, cho phép xem tổng quan về cấu trúc, hình dạng và các yếu tố thiết kế khác của tòa nhà hoặc không gian kiến trúc.
Mặt bằng thể hiện các chi tiết về một công trình, bao gồm kích thước, hình dạng, cấu trúc, vị trí của các phòng, các thông số kỹ thuật, và các yếu tố thiết kế khác.

Ý nghĩa của mặt bằng kiến trúc
-
Mặt bằng nhà ở thể hiện mặt cắt các tầng của ngôi nhà và quy định vị trí và kích thước các phòng trong quá trình xây dựng ngôi nhà trong tương lai.
-
Việc tưởng tượng và chuẩn bị mặt bằng sinh hoạt và xây dựng trước sẽ giúp bạn dễ hình dung không gian sống. Điều này bao gồm việc xác định sự rộng của các phòng và sắp xếp chúng một cách thuận tiện.
-
Biết trước vị trí và mặt bằng sử dụng sẽ giúp tạo ra một không gian phong thủy hợp lý và đẹp mắt, phù hợp với thiết kế tổng thể của ngôi nhà.
-
Mặt bằng sẽ giúp quá trình triển khai thi công và lập kế hoạch đầu tư tài chính của bạn trở nên chi tiết hơn, thuận tiện hơn và khoa học hơn.
Các mẫu mặt bằng kiến trúc đẹp
Mặt bằng kiến trúc biệt thự 3 tầng mái lệch
Đây là một công trình kiến trúc độc đáo và tinh tế, kết hợp giữa phong cách hiện đại và cổ điển. Với thiết kế nhà tinh tế và sáng tạo như thế này, biệt thự này tạo ra mộtt ngôi nhà đẳng cấp và thoải mái cho cả gia đình.
Mái lệch của biệt thự tạo điểm nhấn độc đáo, mang lại sự phá cách và sáng tạo. Thiết kế kiểu mái này cho nhà biệt thự 3 tầng hiện đại này không chỉ tạo nên vẻ đẹp mỹ thuật mà còn giúp cải thiện việc thông gió và tự nhiên giữ nhiệt độ trong nhà ổn định.
Tầng trệt của biệt thự được thiết kế với không gian mở, tạo sự liên kết giữa phòng khách, phòng ăn và ngoại thất. Với sàn nhà rộng rãi và cửa kính lớn, công trình tràn đầy ánh sáng tự nhiên và tầm nhìn hướng ra vườn hoa xanh mát. Điều này tạo ra một khu vực tiếp khách hoàn hảo và tận dụng tối đa ánh sáng tự nhiên.

Tầng trên cùng của biệt thự là nơi chứa các phòng ngủ riêng tư. Mỗi phòng ngủ đều được thiết kế sang trọng và tiện nghi, tạo không gian riêng biệt cho các thành viên trong gia đình. Tầng này cũng có một sân thượng rộng, nơi cung cấp không gian ngoại thất yên tĩnh để thư giãn và tận hưởng cảnh quan xung quanh.


Mặt bằng kiến trúc nhà phố
Thiết kế là một lựa chọn phổ biến và ưa thích trong thiết kế nhà ở hiện đại. Với sự kết hợp giữa tiện ích và thẩm mỹ, kiểu kiến trúc này mang lại không gian sống đa năng và thuận tiện cho cả gia đình.
Với diện tích nhỏ hơn so với các mô hình nhà phố truyền thống, mặt bằng này tận dụng mỗi mét vuông để tạo ra không gian sử dụng tối đa.
Tầng trệt thường được thiết kế nhà mở, với không gian phòng khách và bếp nằm trong một khu vực liền mạch, giúp tạo cảm giác thoáng đãng và rộng rãi. Ngoài ra, tầng trệt còn có thể bao gồm một phòng tắm và phòng làm việc nhỏ, tùy thuộc vào nhu cầu và sở thích của gia đình.

Tầng hai là nơi tập trung các phòng ngủ, giúp tạo ra không gian riêng tư cho các thành viên trong gia đình. Mỗi phòng ngủ trong ngôi nhà có thể được trang bị phòng tắm riêng, tạo điều kiện thuận lợi cho mỗi thành viên trong gia đình. Ngoài ra, tầng hai cũng có thể có một phòng gia đình hoặc phòng đọc sách, tạo không gian thư giãn và giải trí cho gia đình.

Mặt bằng kiến trúc nhà vườn hiện đại
Thiết kế nhà là một sự kết hợp tuyệt vời giữa kiến trúc và thiên nhiên, tạo nên một không gian sống đẹp mắt và thư giãn. Được xây dựng với ý tưởng chính là tận dụng tối đa các yếu tố thiên nhiên, nhà vườn mang đến không gian sống độc đáo và gần gũi với thiên nhiên.
Mặt bằng biệt thự nhà vườn thông thường thường bao gồm những yếu tố như những vườn hoa đầy màu sắc, khu vườn xanh mát, và các khu vực ngoài trời tạo cảm giác thoải mái và thư giãn. Các khu vực trong nhà thường được thiết kế với các cửa sổ lớn và cửa kính, tạo sự liên kết giữa không gian trong và ngoài.

Quy trình thiết kế mặt bằng kiến trúc
Thu thập thông tin
-
Bước đầu tiên của thiết kế mặt bằng kiến trúc là thu thập thông tin chi tiết về dự án. Điều này bao gồm việc nắm bắt yêu cầu của khách hàng, tìm hiểu về địa điểm và môi trường xung quanh, điều tra các quy định kiến trúc và xây dựng địa phương, và thu thập bản vẽ, hồ sơ liên quan.
Phân tích yêu cầu
-
Trong bước quy trình thiết kế bản vẽ mặt bằng kiến trúc này, các yêu cầu của khách hàng được phân tích và xác định rõ ràng. Điều này bao gồm xác định mục tiêu chung của công trình, yêu cầu chức năng và không gian, yêu cầu về ngân sách và thời gian, và các yếu tố khác cần được xem xét.
Nghiên cứu và lên ý tưởng
-
Thiết kế mặt bằng kiến trúc thường đòi hỏi quá trình sáng tạo và tìm kiếm ý tưởng. Trong giai đoạn này, kiến trúc sư tìm hiểu và nghiên cứu các ý tưởng, xu hướng thiết kế, và các dự án tương tự để lấy cảm hứng và phát triển các khái niệm thiết kế sơ bộ.
Thiết kế sơ bộ
-
Dựa trên yêu cầu và ý tưởng, kiến trúc sư bắt đầu thiết kế sơ bộ. Bước này bao gồm việc tạo ra các bản vẽ và mô hình ban đầu để trình bày các ý tưởng về không gian, bố trí, cấu trúc và hình dạng tổng thể của mặt bằng.
Thiết kế chi tiết
-
Khi thiết kế sơ bộ được chấp nhận, kiến trúc sư tiếp tục phát triển các thiết kế chi tiết hơn. Các yếu tố như cấu trúc, hệ thống điện, hệ thống cấp thoát nước, vật liệu và hoàn thiện được xem xét và tích hợp vào thiết kế.
Đánh giá và sửa đổi
-
Mặt bằng kiến trúc được đánh giá để đảm bảo rằng nó đáp ứng các yêu cầu và mục tiêu ban đầu. Kiến trúc sư sẽ làm việc cùng chủ đầu tư để thu thập phản hồi và đề xuất các điều chỉnh cần thiết.
-
Thiết kế có thể trải qua nhiều vòng lặp của quá trình này để đạt được sự hoàn thiện và sự đồng ý cuối cùng.
Bản vẽ thiết kế cuối cùng
-
Khi bản vẽ mặt bằng kiến trúc đã hoàn thiện và được chấp nhận, kiến trúc sư tiến hành tạo bản vẽ thiết kế cuối cùng.
-
Bản vẽ này cung cấp thông tin chi tiết và đầy đủ về mặt bằng kiến trúc, bao gồm các bản vẽ kiến trúc, bản vẽ kỹ thuật, bản vẽ mặt cắt, bản vẽ chi tiết các hạng mục công trình, và các thông số kỹ thuật khác.
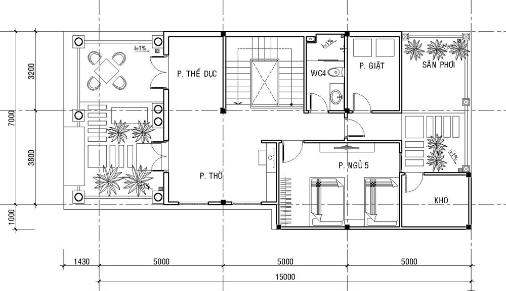
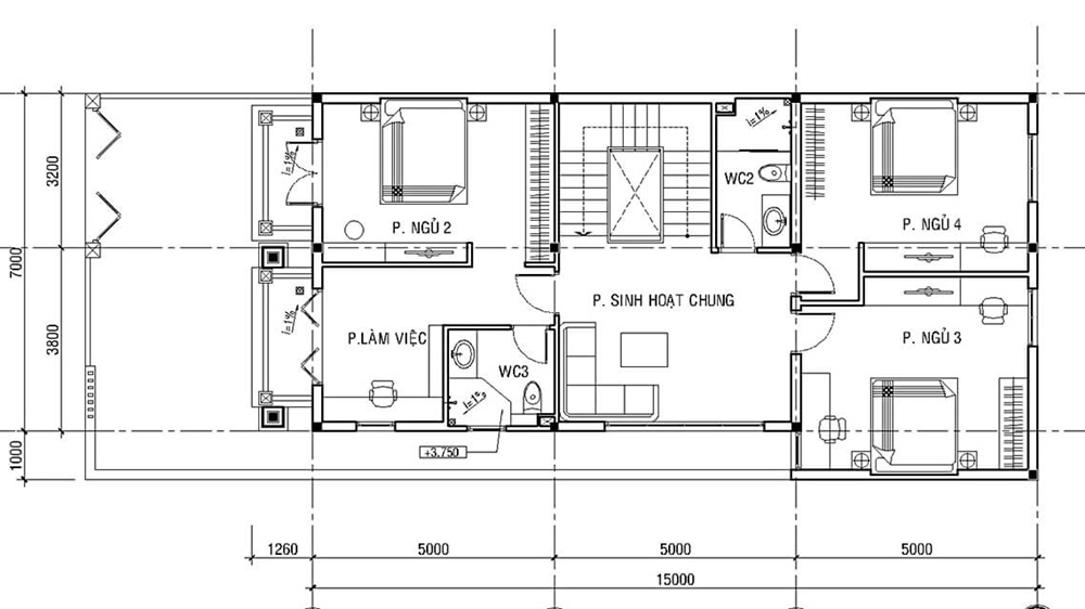
Bản vẽ mặt bằng kiến trúc gồm những gì?
Các kích thước và tỷ lệ
-
Bản vẽ mặt bằng nhà thường biểu thị tỷ lệ và kích thước của không gian. Các phòng, hành lang, cửa ra vào, cửa sổ và các yếu tố kiến trúc khác được định vị và kích thước trên mặt bằng.
Địa điểm và hướng nhà
-
Mặt bằng thường cho thấy vị trí của tòa nhà hoặc căn hộ trong một khu đất hoặc khu phố, bao gồm cả các đường hẻm và không gian xung quanh. Hướng đối tượng cũng có thể được chỉ ra, cho phép định vị dễ dàng hơn.
Phòng và không gian
-
Thiết kế kiến trúc tạo sự phân bố các phòng và không gian trong nhà. Các phòng ngủ, phòng khách, nhà bếp, phòng tắm và các phòng chức năng khác được đánh dấu và định vị trên mặt bằng.
Cửa, cửa sổ và cửa ra vào
-
Vị trí và kích thước của cửa, cửa sổ và cửa ra vào thường được chỉ ra trên mặt bằng kiến trúc. Điều này cho phép hiểu cách di chuyển trong không gian và quan hệ giữa các phòng và không gian khác nhau.
Ký hiệu và chú thích
Bản vẽ mặt bằng kiến trúc chứa các ký hiệu và chú thích để giải thích các yếu tố phức tạp hơn như hệ thống điện, hệ thống thoát nước, vị trí đèn, công trình nội thất, vv.
Yếu tố cơ bản của mặt bằng kiến trúc
Địa điểm và môi trường xung quanh
-
Trong thiết kế mặt bằng kiến trúc nhà địa điểm có ảnh hưởng đến mức độ tiếp cận với các dịch vụ công cộng và giao thông, và cũng có thể tạo điều kiện thuận lợi cho việc tận dụng tối đa ánh sáng tự nhiên và quang cảnh.
-
Môi trường xung quanh, bao gồm cả các yếu tố tự nhiên và nhân tạo như cây xanh, đồng cỏ, hồ nước, hay các công trình xây dựng khác, góp phần vào việc tạo ra không gian sống thoáng đãng, gần gũi hài hòa với thiên nhiên.
Kích thước và hình dạng
-
Kích thước và hình dạng của bản vẽ mặt bằng có ảnh hưởng đến trải nghiệm sử dụng của người dùng. Kích thước phải đảm bảo đủ không gian diện tích cho các hoạt động cần thiết mà không gây cảm giác chật chội hay lãng phí diện tích.
-
Hình dạng mặt bằng cũng ảnh hưởng đến cảm giác mở rộng hay hạn chế của không gian. Và có thể tạo nên sự hài hòa, cân đối trong tổng thể kiến trúc.
Bố trí các phòng và không gian chức năng
-
Bố trí các phòng và không gian chức năng là yếu tố quan trọng khác trong một thiết kế kiến trúc. Sự sắp xếp logic và hiệu quả của các phòng và không gian chức năng đảm bảo tính tiện ích và tiếp cận dễ dàng cho chủ đầu tư.
Ánh sáng và thông gió
-
Đây là yếu tố không thể thiếu trong thực hiện bản vẽ mặt bằng nhà. Ánh sáng tự nhiên không chỉ mang lại cảm giác thoáng đãng, mở rộng không gian, mà còn có tác động tích cực đến tinh thần và sức khỏe của người sử dụng.
-
Việc tận dụng ánh sáng mặt trời thông qua cửa sổ, kính hoặc khe hở giúp giảm thiểu việc sử dụng ánh sáng nhân tạo và tiết kiệm năng lượng. Thông gió đảm bảo không khí trong lành và sự lưu thông không khí trong không gian, giúp duy trì môi trường thoáng đãng và dễ chịu.
Sự tương tác giữa các yếu tố trong mặt bằng kiến trúc
-
Các yếu tố như địa điểm, kích thước, hình dạng, bố trí và ánh sáng cần được cân nhắc và điều chỉnh sao cho hợp lý và tạo nên sự cân bằng và tương quan cho ngôi nhà.
-
Sự tương tác này có thể được thể hiện qua việc tạo ra các khu vực liên kết, như sân vườn nội bộ hoặc ban công, để tạo ra sự giao lưu và gắn kết giữa các không gian.
Trê đây là một số kiến thức cơ bản về mặt bằng kiến trúc. Vinavic hy vọng rằng những thông tin giới thiệu này sẽ giúp bạn áp dụng chúng, để hiểu rõ hơn về bản vẽ công trình nhà ở và đưa ra quyết định chính xác khi thiết kế thi công nhà.