Quy trình thiết kế kết cấu nhà dân dụng từ A-Z

Cẩm nang xây nhà
0
8304
loan - 28/11/2023

Nhà là tổ ấm của mỗi gia đình, là nơi chúng ta sinh sống, nghỉ ngơi và gắn kết yêu thương. Để ngôi nhà được bền vững và an toàn, việc thiết kế kết cấu là vô cùng quan trọng.

Tuy nhiên, không phải ai cũng hiểu rõ về quy trình thiết kế kết cấu nhà dân dụng. Bài viết này sẽ cung cấp cho bạn những kiến thức cơ bản về quy trình thiết kế kết cấu từ A-Z, giúp bạn hiểu rõ hơn về tầm quan trọng của kết cấu và lựa chọn được đơn vị thiết kế uy tín.

Các bước tính kết cấu nhà dân dụng
Các bước tính kết cấu nhà dân dụng

Quy trình các bước thiết kế kết cấu nhà dân dụng

Quy trình thiết kế kết cấu nhà dân dụng bao gồm các bước sau: 1. Khảo sát và thu thập dữ liệu đầu vào; 2. Lập nhiệm vụ thiết kế; 3. Tính toán tải trọng; 4. Chọn sơ bộ kích thước tiết diện các cấu kiện của hệ chịu lực; 5. Lập mô hình kết cấu & Kiểm tra; 6. Thiết kế cột, sàn, dầm, vách; 7. Thiết kế móng; 8. Thuyết minh tính toán kết cấu.

Các bước trong quy trình thiết kế kết cấu nhà dân dụng:

Bước 1: Khảo sát hiện trạng và thu thập thông tin

Bước đầu tiên trong quy trình thiết kế kết cấu nhà dân là khảo sát hiện trạng và thu thập thông tin. Kỹ sư thiết kế sẽ tiến hành khảo sát địa điểm xây dựng, nắm bắt diện tích đất, địa chất, khí hậu,... Ngoài ra, kỹ sư cũng sẽ trao đổi với chủ đầu tư để nắm bắt nhu cầu, sở thích và yêu cầu về thiết kế kết cấu của ngôi nhà.

Một số dữ liệu đầu vào thông thường cần có:

Khảo sát địa chất - thuỷ văn

  • Đối với địa chất: Xác định mực nước ngầm và môi trường ăn mòn.

  • Đối với thủy văn: Xác định chiều dày lớp bê tông bảo vệ và loại xi măng phù hợp với môi trường ăn mòn.

Xem thêm: Chi tiết bản vẽ kết cấu nhà 3 tầng full (kết cấu và kiến trúc)

Khảo sát địa chất
Khảo sát địa chất

Môi trường xung quanh – địa điểm công trình:

  • Xác định vị trí đặt các thiết bị máy móc nặng và tải trọng của chúng.

  • Xác định chiều cao thông thủy yêu cầu từ bộ phận M&E và Kiến trúc.

  • Đánh giá công nghệ sử dụng trong thi công và tính khả thi trong điều kiện hiện có.

Bước 2: Lập nhiệm vụ thiết kế

Trên cơ sở những thông tin thu thập được, kỹ sư thiết kế sẽ lập nhiệm vụ thiết kế kết cấu nhà dân dụng. Nhiệm vụ thiết kế sẽ bao gồm các nội dung chính sau:

  • Mục đích, yêu cầu của thiết kế

  • Các thông số kỹ thuật của công trình

  • Các điều kiện tự nhiên, kinh tế, xã hội

  • Các yêu cầu về thẩm mỹ, phong thủy

Bước 3: Tính toán tải trọng

Sau khi có nhiệm vụ thiết kế, kỹ sư thiết kế sẽ tiến hành tính toán tải trọng. Quá trình tính toán tải trọng sẽ bao gồm các nội dung sau:

  • Tính toán tải trọng đứng: trọng lượng bản thân công trình, tĩnh tải sàn, tĩnh tải mái, tải trọng tường, vách ngăn, hoạt tải sàn, hoạt tải mái

  • Tính toán tải trọng ngang: tải trọng gió, tải trọng động đất

Tính toán tải trọng
Tính toán tải trọng

Bước 4: Chọn sơ bộ kích thước tiết diện các cấu kiện của hệ chịu lực

Trên cơ sở kết quả tính toán tải trọng, kỹ sư thiết kế sẽ tiến hành kích thước tiết diện sơ bộ.

Trong quá trình thiết kế kết cấu nhà dân dụng, việc chọn sơ bộ kích thước tiết diện các cấu kiện của hệ chịu lực là một bước quan trọng. Kích thước tiết diện sơ bộ sẽ được xác định dựa trên các yếu tố sau:

  • Tải trọng tác dụng lên cấu kiện

  • Cường độ chịu lực của vật liệu

  • Kích thước nhịp của cấu kiện

  • Loại kết cấu

  • Các yêu cầu về thẩm mỹ

4.1. Tính toán tải trọng sơ bộ lên một vị trí cột

Để tính toán tải trọng sơ bộ lên một vị trí cột, kỹ sư thiết kế cần tính toán các loại tải trọng tác dụng lên cột, bao gồm:

  • Trọng lượng bản thân cột

  • Tĩnh tải sàn

  • Tĩnh tải mái

  • Tải trọng tường, vách ngăn

  • Hoạt tải sàn

  • Hoạt tải mái

4.2. Chọn cường độ (mác) bê tông,cường độ(mác) thép + Tính sơ bộ diện tích tiết diện cột ở tầng dưới cùng

Sau khi tính toán tải trọng sơ bộ lên một vị trí cột, kỹ sư thiết kế sẽ chọn cường độ bê tông và cường độ thép. Cường độ bê tông và cường độ thép càng lớn thì tiết diện cột càng nhỏ.

Trên cơ sở tải trọng sơ bộ và cường độ bê tông, cường độ thép, kỹ sư thiết kế sẽ tính sơ bộ diện tích tiết diện cột ở tầng dưới cùng. Diện tích tiết diện cột sơ bộ cần đảm bảo khả năng chịu lực của cột.

Xem thêm: Chia sẻ toàn bộ bản vẽ nhà 2 tầng (mặt cắt, kết cấu, cad 2D, 3D)

Tiết diện cấu kiện
Tiết diện cấu kiện

4.3. Chọn tiết diện sơ bộ của dầm khung

Dầm khung chịu momen dương lớn ở nhịp giữa và momen âm lớn ở đầu dầm. Do đó, tiết diện dầm khung ở nhịp giữa cần lớn hơn tiết diện dầm khung ở đầu dầm.

Trên cơ sở tải trọng sơ bộ, cường độ bê tông, cường độ thép, kỹ sư thiết kế sẽ tính sơ bộ tiết diện dầm khung. Diện tích tiết diện dầm khung sơ bộ cần đảm bảo khả năng chịu lực của dầm khung.

4.4. Chọn chiều dày sàn

Chiều dày sàn cần đảm bảo khả năng chịu lực của sàn và khả năng chống thấm của sàn.

Trên cơ sở nhịp của sàn, tải trọng tác dụng lên sàn, kỹ sư thiết kế sẽ chọn chiều dày sàn. Chiều dày sàn càng lớn thì khả năng chịu lực và khả năng chống thấm của sàn càng tốt.

Bước 5: Lập mô hình kết cấu & Kiểm tra

Mô hình kết cấu sẽ được sử dụng để tính toán nội lực và kiểm tra độ ổn định của kết cấu.

  • Trên cơ sở tiết diện dầm, cột, sàn sơ bộ đã chọn, kỹ sư thiết kế sẽ tiến hành lập mô hình kết cấu. Mô hình kết cấu sẽ được xây dựng bằng phần mềm phân tích kết cấu.

  • Kỹ sư thiết kế sẽ xác định vật liệu cho cấu kiện, tải trọng tác động, và xây dựng các tổ hợp tải trọng để đảm bảo mô hình phản ánh đầy đủ các yếu tố ảnh hưởng

  • Xác định tiết diện cụ thể của dầm và cột cho từng tầng, cũng như định rõ tiết diện của vách và sàn cho từng cấp độ.

  • Gán các loại tiết diện cho mỗi cấu kiện tương ứng và áp dụng tải trọng đứng vào mô hình.

  • Thực hiện các bước kiểm tra thường xuyên sau mỗi thao tác để đảm bảo tính chính xác và đồng nhất của mô hình.

  • Tích hợp các bước quan trọng khác trong quá trình mô hình hóa để đáp ứng đặc trưng cụ thể của công trình.

Lập mô hình kết cấu nhà
Lập mô hình kết cấu nhà
  • Kiểm tra mô hình thường xuyên, đặc biệt sau mỗi thay đổi, để đảm bảo rằng nó luôn đáp ứng các yêu cầu và điều kiện.

  • Thực hiện các bước kiểm tra chéo và rà soát lỗi sau mỗi lần chạy để phát hiện và sửa chữa bất kỳ lỗi nào xuất hiện trong lần chạy phân tích log trước đó.

  • Thiết kế sơ bộ và lựa chọn lại tiết diện nếu cần, đặc biệt là nếu thiếu hoặc hàm lượng thép quá lớn.

  • Tính toán tải trọng ngang, bao gồm gió và động đất, và nhập dữ liệu tải trọng ngang sau khi kiểm tra mô hình và chu kỳ.

  • Kiểm tra chuyển vị, momen xoắn ở các tầng trên cùng, mode cơ bản, và chu kỳ T để đảm bảo chúng hợp lý theo yêu cầu.

  • Thử nghiệm thiết kế và lựa chọn lại tiết diện của dầm và cột một cách hợp lý và đáp ứng các yêu cầu kết cấu.

  • Kiểm tra lại mọi sai sót có thể xuất hiện trong quá trình lập mô hình, bao gồm tải trọng, tiết diện, kiến trúc, mode cơ bản, chu kỳ T, và sàn có tuyệt đối cứng hay không.

Bước 6: Thiết kế cột, sàn, dầm, vách

Các cấu kiện này cần được thiết kế đảm bảo khả năng chịu lực, độ ổn định và tính thẩm mỹ.

6.1. Xuất dữ liệu nội lực theo các tổ hợp:

Trong quá trình thiết kế, ta xuất dữ liệu nội lực theo các tổ hợp tải trọng tĩnh/ động/ bất thường để đánh giá hiệu suất và ổn định của kết cấu.

6.2 Kiểm tra dữ liệu hợp lý, bất thường tại các vị trí điển hình, vị trí kết cấu nghi ngờ

Kiểm tra tính hợp lý của dữ liệu, đặc biệt tại các vị trí chịu tải trọng lớn và những vị trí kết cấu có thể gây nghi ngờ, để đảm bảo sự đồng nhất và chính xác.

6.3. Kiểm tra dữ liệu chuyển vị, xoắn, lực dọc so với tính sơ bộ

Kiểm tra dữ liệu chuyển vị, xoắn, và lực dọc so với kết quả tính toán sơ bộ để đảm bảo tính đồng nhất và đáng tin cậy của dữ liệu.

Xem thêm: Dầm nhà là gì? Kích thước, kết cấu, yếu tố phong thủy bạn cần biết

Bản vẽ định vị cột
Bản vẽ định vị cột

6.4. Lập bảng tính dầm, cột, sàn

Tạo bảng tính chi tiết cho dầm, cột, và sàn, bao gồm cả các thông số quan trọng như kích thước, hàm lượng thép, và các yếu tố khác liên quan đến thiết kế cấu kiện.

6.5. Kiểm tra hàm lượng cốt thép cho dầm, cột, sàn

Kiểm tra hàm lượng cốt thép của các cấu kiện để đảm bảo hàm lượng cốt thép phù hợp với yêu cầu thiết kế. Đối với công trình thiết kế kháng chấn, hàm lượng cốt thép cần được kiểm tra theo TCXDVN 5574-2018.

6.6. Độ lớn đường kính cốt thép chịu lực sàn không lớn hơn h/10, h -chiều dày sàn (theo tiêu chuẩn ACI)

Đảm bảo rằng đường kính cốt thép chịu lực của sàn không vượt quá h/10, với h là chiều dày của sàn, theo quy định của tiêu chuẩn ACI.

Bước 7: Thiết kế móng

7.1. Dựa trên thông tin về điều kiện địa chất và thủy văn, xác định phương án móng phù hợp để đảm bảo sự ổn định và an toàn. Các phương án móng thường được sử dụng trong xây dựng nhà dân dụng bao gồm:

  • Móng cọc

  • Móng băng

  • Móng đơn

7.2. Xác định mực nước ngầm và áp lực mực nước ngầm khi đào sâu, để đảm bảo tính ổn định của móng. Mực nước ngầm cao sẽ ảnh hưởng đến thiết kế móng.

7.3. Xem xét ảnh hưởng của điều kiện địa chất đến quá trình thi công và kiểm tra có hiện tượng thấu kính và cát chảy có ảnh hưởng gì không.

7.4. Thực hiện tính toán cho móng và kiểm tra hàm lượng thép để đảm bảo sự ổn định và an toàn của móng. 

Xem thêm: Cách làm móng nhà 2 tầng: Chi tiết kết cấu, độ sâu, kích thước

Bản vẽ mặt bằng móng
Bản vẽ mặt bằng móng

Bước 8: Bảng thuyết minh tính toán kết cấu

Bảng thuyết minh kết cấu sẽ trình bày các nội dung chính sau:

8.1. Giải thích các tiêu chuẩn và vật liệu áp dụng

Trong phần này, chúng ta sẽ giải thích chi tiết về các tiêu chuẩn được áp dụng trong quá trình thiết kế cũng như vật liệu được sử dụng, chẳng hạn tiêu chuẩn tải trọng và tác động, tiểu chuẩn thiết kế kết cấu bê tông cốt thép, cường độ bê tông, cường độ thép,... Điều này bao gồm việc tuân thủ các tiêu chuẩn quốc gia và quốc tế, đồng thời mô tả lựa chọn và tính chất của vật liệu trong dự án.

8.2. Thuyết minh về tải trọng

Trong thuyết minh về tải trọng, chúng ta đặc biệt chú trọng vào việc bảo đảm sự đồng nhất trong mô hình kết cấu theo các vị trí và giá trị khác nhau. Đồng thời, đảm bảo rằng tải trọng được mô tả phù hợp với các tiêu chuẩn tải trọng và tác động cụ thể được áp dụng trong dự án.

Bản vẽ CAD kết cấu nhà 2 tầng dân dụng
Bản vẽ CAD kết cấu nhà 2 tầng dân dụng

8.3. Thuyết minh nội lực và bảng tính chi tiết

Trình bày chi tiết về nội lực trong dự án, bao gồm bảng tính dầm, cột, và sàn. Điều này bao gồm việc đảm bảo rằng nội lực trong thuyết minh đồng nhất với nội lực trong mô hình kết cấu cuối cùng. Hàm lượng thép cũng được bảo đảm tuân thủ theo các tiêu chuẩn kỹ thuật cụ thể.

8.4. Thuyết minh về tính toán móng

Trong phần này, chúng ta giải thích quá trình tính toán móng và đảm bảo sử dụng dữ liệu đồng nhất trong mô hình kết cấu sau cùng. Các thông số như cường độ, chuyển vị, và ổn định cũng được mô tả và phân tích, đảm bảo tuân thủ các tiêu chuẩn áp dụng trong lĩnh vực thiết kế kết cấu.

Bước 9: Ghi chú

Khi thiết kế kết cấu, cần đảm bảo các yêu cầu sau:

9.1. Thoả mãn yêu cầu tiêu chuẩn

Khi thực hiện tính kết cấu nhà dân dụng theo từng cấu kiện, chúng ta cần đảm bảo tuân thủ mọi yêu cầu của tiêu chuẩn liên quan đến cường độ, chuyển vị, ổn định, và hàm lượng thép. Điều này đảm bảo rằng mọi khía cạnh của thiết kế đều đáp ứng các tiêu chuẩn an toàn và kỹ thuật.

9.2. Đầu vào và đầu ra kỹ thuật chính xác

Các thông số kỹ thuật là các dữ liệu được sử dụng trong thiết kế kết cấu. Thông số này cần phải có đầu vào, đầu ra rõ ràng để đảm bảo tính chính xác và khả thi của kết quả thiết kế. Nguồn trích dẫn cần phải có cơ sở là tiêu chuẩn hoặc tài liệu phổ biến rộng rãi, tác giả có uy tín để đảm bảo tính tin cậy.

Ghi chú trong hồ sơ bản vẽ kết cấu
Ghi chú trong hồ sơ bản vẽ kết cấu

Bước 10: Hồ sơ thiết kế kết cấu nhà dân dụng

Một bộ hồ sơ thiết kế kết cấu nhà dân bao gồm các loại bản vẽ sau:

Bản vẽ kiến trúc:

  • Mặt bằng tổng thể

  • Mặt bằng các tầng

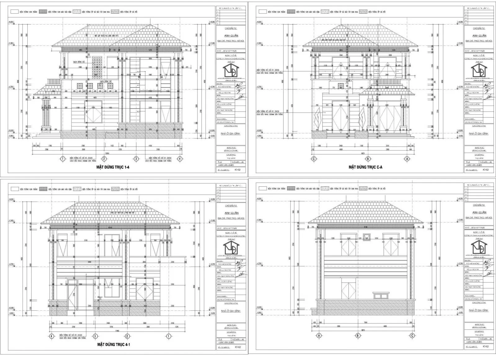
  • Mặt đứng chính và mặt đứng bên

  • Mặt cắt chi tiết

  • Bản vẽ chi tiết cầu thang, lan can, ban công, nhà vệ sinh

  • Bản vẽ chi tiết phòng khách, phòng ngủ, nhà bếp

  • Bản vẽ chi tiết cổng, cửa chính và cửa phòng, cửa sổ

  • Phối cảnh 3D mặt tiền

  • Mặt bằng lát gạch chi tiết cho sân, sân thượng và các phòng

Bản vẽ kết cấu nhà dân
Bản vẽ kết cấu nhà dân

Bản vẽ kết cấu:

  • Bản vẽ mặt bằng định vị lưới cột, bố trí cọc

  • Mặt bằng kết cấu các tầng, kiến trúc mái

  • Chi tiết móng, móng bó nền, dầm móng

  • Chi tiết cầu thang và mặt cắt dầm, sàn, mái

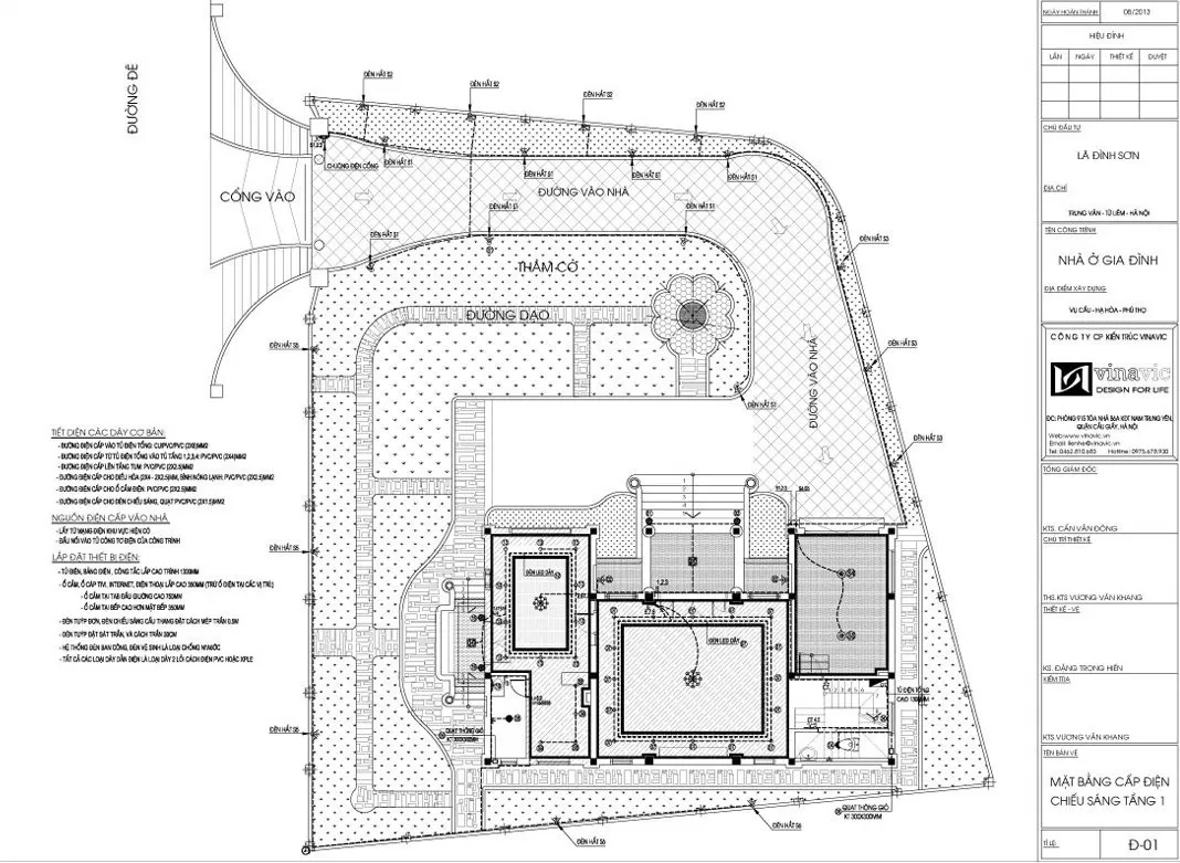
Bản vẽ kỹ thuật điện nước:

  • Sơ đồ hệ thống điện của công trình

  • Mặt bằng bố trí điện các tầng, điện trang trí và cầu thang

  • Hệ thống báo cháy, lắp đặt cột chống sét và camera quan sát

  • Sơ đồ hệ thống nước

  • Hệ thống thoát nước các tầng và cấp thoát nước cho nhà tắm, nhà vệ sinh

Bản vẽ thể hiện sơ đồ điện
Bản vẽ thể hiện sơ đồ điện

Bản vẽ lắp đặt hệ thống mạng, truyền hình cáp và điện thoại:

  • Bản vẽ chi tiết lắp đặt hệ thống điện thoại, internet, truyền hình cáp ở tất cả các tầng

  • Bản vẽ một số hệ thống kỹ thuật khác nếu có

Bảng báo giá thiết kế kết cấu nhà dân 2023

Do nhu cầu ngày càng tăng về thiết kế kết cấu nhà dân dụng, nhiều đơn vị thiết kế kiến trúc mới ra đời. Sự xuất hiện đồng loạt của các công ty thiết kế có thể ảnh hưởng đến chi phí thiết kế, đặc biệt là đối với những doanh nghiệp mới thành lập. Thông thường, chi phí của những công ty này thấp hơn so với các đơn vị có kinh nghiệm lâu năm. Việc lựa chọn đơn vị thiết kế quyết định đến chất lượng cuộc sống tương lai, và do đó, việc tìm hiểu, tham khảo ý kiến của người thân, bạn bè hay Internet là quan trọng để tránh rủi ro.

Trong bối cảnh hỗn độn này, báo giá thiết kế kết cấu nhà dân dụng là một yếu tố được quan tâm. Đối với nhiều gia đình, việc biết trước giá cả là quan trọng để xác định khả năng thuê thiết kế. Trong khi đó, những chủ nhà có điều kiện kinh tế thì lựa chọn kiến trúc sư chuyên nghiệp để có ngôi nhà tốt nhất.

Dựng 3D khung kết cấu nhà dân
Dựng 3D khung kết cấu nhà dân

Chi phí thiết kế thường được tính bằng đơn vị diện tích (m2), và đơn giá thiết kế kết cấu nhà dân dao động tùy thuộc vào nhiều yếu tố.

Mức giá chung

  • Nhà dân thông dụng: 135.000 - 270.000 đồng/m2

  • Nhà hiện đại: 270.000 - 290.000 đồng/m2

  • Nhà cổ điển: 290.000 - 400.000 đồng/m2

Tuy nhiên, giá này có thể thay đổi dựa trên quy mô, diện tích, loại hình kiến trúc, địa điểm xây dựng, và nhiều yếu tố khác. Ví dụ, những công trình xây dựng trên đất yếu có chi phí cao hơn do cần phải gia cố nền đất. Diện tích xây dựng lớn thì chi phí càng thấp so với công trình nhỏ.

Bản vẽ mặt cắt nhà phố 2 tầng
Bản vẽ mặt cắt nhà phố 2 tầng

Một số nhà thầu có thể tính giá theo gói, bao gồm gói sơ bộ và gói thông dụng. Gói sơ bộ hoàn thành trong 15 ngày, bao gồm bản vẽ phác thảo và phối cảnh mặt tiền. Đối với nhà dưới 250m2, chi phí là 9 triệu đồng/bộ, và 11 triệu đồng/bộ cho những công trình từ 250m2 – 500m2.

Gói thông dụng, hoàn thành trong 30 ngày, bao gồm bản thiết kế hoàn chỉnh từ thẩm mỹ đến kỹ thuật. Giá của gói này tính theo đơn vị m2. Đối với công trình từ 30m2 - 100m2, chi phí là 120.000 đồng/m2; từ 100m2 - 200m2 giảm 10.000 đồng/m2, tức là 110.000 đồng/m2. Các mức giá tiếp theo giảm dần theo diện tích, với giá thấp nhất là 80.000 đồng/m2 cho công trình trên 400m2.

Tóm lại, giá thiết kế kết cấu nhà dân dụng có sự biến động tùy theo khu vực, và việc lựa chọn đơn vị thiết kế phù hợp là quyết định quan trọng để đảm bảo dịch vụ tốt nhất và giá cả hợp lý.

Câu hỏi thường gặp

Câu 1: Làm thế nào để chọn một đơn vị thiết kế kết cấu phù hợp cho ngôi nhà của tôi?

Quan trọng nhất là phải thực hiện nghiên cứu kỹ lưỡng về các đơn vị có uy tín. Tìm hiểu thông tin trực tuyến, đọc đánh giá của khách hàng trước đây, và thậm chí là hỏi ý kiến của người thân, bạn bè có kinh nghiệm. Lựa chọn một đơn vị có kinh nghiệm và có các dự án tương tự sẽ giúp đảm bảo chất lượng.

Câu 2: Cách tính chi phí thiết kế kết cấu cho ngôi nhà của mình?

Chi phí thiết kế kết cấu thường được tính theo đơn vị diện tích (m2). Bạn cần xác định diện tích xây dựng của ngôi nhà và tham khảo đơn giá m2 từ các đơn vị thiết kế uy tín. Nhớ rằng chi phí có thể thay đổi dựa trên nhiều yếu tố như loại hình kiến trúc, địa điểm xây dựng, và diện tích đất. 

Câu 3: Thời gian bình thường để hoàn thành một bộ hồ sơ thiết kế kết cấu là bao lâu?

Thời gian hoàn thành bộ hồ sơ thiết kế thường phụ thuộc vào quy mô và phức tạp của công trình. Gói sơ bộ thường mất khoảng 15 ngày, trong khi gói thông dụng có thể kéo dài hơn, khoảng 30 ngày. Quan trọng nhất là đảm bảo rằng thời gian làm việc được thống nhất trước khi bắt đầu.

Câu 5: Có thể đảm bảo rằng thiết kế kết cấu đáp ứng đúng các tiêu chuẩn xây dựng được không?

Chọn một đơn vị có kinh nghiệm và am hiểu rõ về các tiêu chuẩn xây dựng hiện hành. Họ cần phải tuân theo và áp dụng các quy định, tiêu chuẩn trong quá trình thiết kế. Việc kiểm tra và đảm bảo rằng công trình đáp ứng mọi yêu cầu là quan trọng.

Câu 6: Làm thế nào để giảm chi phí thiết kế kết cấu mà vẫn đảm bảo chất lượng?

Có thể giảm chi phí bằng cách lựa chọn gói thiết kế phù hợp với quy mô và nhu cầu của công trình. Ngoài ra, thảo luận với đơn vị thiết kế kết cấu nhà dân dụng về các giải pháp tối ưu, tối giản nhằm tiết kiệm chi phí mà vẫn đảm bảo tính ổn định và an toàn của công trình.

Xem thêm: Một số bản vẽ hồ sơ thiết kế kỹ thuật thi công công trình kiến trúc

By https://vinavic.vn/
https://vinavic.vn/

Đánh giá - Bình luận
0 bình luận, đánh giá về Quy trình thiết kế kết cấu nhà dân dụng từ A-Z
Nhấn vào đây để đánh giá
Thông tin người gửi
Phong thủy
Chúng tôi có thể hỗ trợ bạn!
1.76381 sec| 2523.063 kb