35 Mẫu thiết kế nhà ống 3 tầng hiện đại đầy đủ mặt bằng

Tin tức nhà đẹp
0
4085
loan - 03/11/2023

Nét hấp dẫn nhất của nhà ống 3 tầng hiện đại là sự kết hợp giữa vẻ đẹp hiện đại, trẻ trung và tiện nghi. Với thiết kế tối giản, sử dụng các vật liệu hiện đại, mẫu nhà này mang đến vẻ đẹp sang trọng, tinh tế và rất thu hút đối với những gia chủ ưa chuộng phong cách sống mới.

Ngoài ra, nhà ống hiện đại 3 tầng còn được đánh giá cao về tính tiện nghi. Với diện tích sử dụng hợp lý, nhà ống 3 tầng hiện đại có thể đáp ứng đầy đủ nhu cầu sinh hoạt của các gia đình 3-5 người.

Tổng quan thiết kế nhà ống 3 tầng hiện đại

Thiết kế nhà ống 3 tầng hiện đại đơn giản về hình khối và vật liệu, tối ưu ánh sáng tự nhiên từ các chất liệu mới như gạch, kính,... rất phù hợp với các gia đình nhỏ sống ở đô thị. Về hình dáng, nhà ống được xây trên mảnh đất hình chữ nhật với kết cấu 3 tầng, có mặt tiền hẹp 4-8m nhưng mở rộng về chiều sâu. Nhà có công năng tiện nghi thoả mãn nhu cầu của gia đình 3-5 thành viên, với không gian tiếp khách và bếp núc ở tầng 1, 2-4 phòng ngủ rải rác trên tầng 2 và 3, cùng phòng thờ và không gian phơi phóng ở tầng áp mái. 

Thiết kế nhà ống 3 tầng hiện đại đơn giản và gọn gàng
Thiết kế nhà ống 3 tầng hiện đại đơn giản và gọn gàng

Có thể bạn cũng quan tâm: Chọn lựa 25 mẫu nhà ống 2 tầng 1 tum 3 phòng ngủ đẹp 2023

Lợi ích khi xây dựng mẫu nhà ống hiện đại 3 tầng

Phù hợp với đất hẹp ở đô thị

Song hành cùng tốc độ đô thị hoá tăng trưởng chóng mặt, diện tích đất xây nhà dần thu hẹp lại, thì các mẫu nhà ống hiện đại được đánh giá là một giải pháp xây nhà nhanh chóng, hiệu quả và tiết kiệm chi phí. Nhà ống 3 tầng kiểu hiện đại rất được ưa chuộng tại các phố thị lớn hiện nay, khi cần cải tạo cơi nới cũng sẽ mở nhiều tầng thêm theo chiều cao, giải quyết được tình trạng mặt bằng đất xây nhà hạn chế.

Dễ dàng thay đổi thiết kế

Với lợi thế không gian 3 tầng, gia chủ có thể dễ dàng cải tạo các phương án thiết kế nhà ống hiện đại theo sở thích riêng và nhu cầu của từng thành viên trong gia đình, tạo nên công trình có cá tính riêng và tiện nghi nhất.

Nhà ống phù hợp với đất hẹp ở đô thị
Nhà ống phù hợp với đất hẹp ở đô thị

Xem thêm: Nguyên tắc thiết kế nhà phố 3 tầng mái thái đẹp sang trọng thoáng mát

Đa dạng về mẫu mã

Hiện nay, có rất nhiều mẫu thiết kế nhà ống 3 tầng đẹp hiện đại với các kiểu dáng và kiến trúc khác nhau cho quý gia chủ lựa chọn, chẳng hạn như nhà ống hiện đại tối giản, nhà hiện đại Nhật Bản, mẫu biệt thự 3 tầng hình ống phong cách châu Âu hiện đại,... 

Bên cạnh đó, chủ đầu tư nhà ống 3 tầng vẫn cần chú ý rằng đây là những căn nhà được xây dựng trên đất đã phân lô sẵn. Nên có khả năng nhà bạn sẽ chung tường với các nhà bên cạnh. Điều này gây khó khăn trong việc thiết kế cửa sổ bên hông. Ngoài ra, nhà cao tầng ở hướng Tây có thể phải chịu nắng ban chiều hắt vào mặt tiền. Bở vậy gia chủ cần chú ý tới các biện pháp làm thoáng khí cho nhà như xây giếng trời, thiết kế thông tầng, hoặc các biện pháp che chắn mặt tiền như xây mặt tiền giật cấp.

7 yếu tố tạo nên mặt tiền nhà ống 3 tầng hiện đại đẹp

Mặt tiền nhà ống 3 tầng là bộ mặt của ngôi nhà, thể hiện gu thẩm mỹ và phong cách sống của gia chủ. Kích thước mặt tiền nhà ống khá khiêm tốn, dao động từ 4-8m, kết hợp với chiều sâu 12-20m. Để tạo nên một mặt tiền nhà ống 3 tầng hiện đại và thu hút, cần chú ý đến 7 yếu tố sau:

  • Kết cấu hiện đại và chắc chắn: Sử dụng các vật liệu xây dựng mới, bền vững và có tính thẩm mỹ cao.

  • Thiết kế không gian hợp lý: Tạo không gian sống tiện nghi và thuận tiện cho cả gia đình.

  • Phối màu mặt tiền đồng nhất: Sử dụng màu sắc hài hòa, tạo sự cân đối và thẩm mỹ để phối màu cho mặt tiền.

  • Cửa và cửa sổ hiện đại: Tăng tính thẩm mỹ và khả năng lấy sáng cho ngôi nhà.

Tạo không gian xanh mát, trong lành trước căn nhà ống hiện đại
Tạo không gian xanh mát, trong lành trước căn nhà ống hiện đại

Đón đọc thêm: Top 55+ ý tưởng thiết kế nhà phố 3 tầng hiện đại mới nhất 2023

  • Sân vườn tươi sáng: Tạo không gian xanh mát, trong lành trước nhà, rất dễ gây thiện cảm và có lợi cho sức khoẻ.

  • Chiếu sáng tốt: Đảm bảo đủ ánh sáng cho các hoạt động sinh hoạt trong nhà.

  • Hoạ tiết trang trí phù hợp: Lựa chọn các loại gạch ốp lát có hoạ tiết đồng nhất với kiến trúc tổng thể của ngôi nhà và màu sắc nhã nhặn để tạo điểm nhấn cho mặt tiền nhà.

Ứng dụng 7 yếu tố trên một cách sáng tạo khi thiết kế mẫu nhà đẹp cho mình, bạn có thể sở hữu một mặt tiền nhà ống 3 tầng hiện đại và thu hút mọi ánh nhìn.

Lưu ý khi thiết kế mặt bằng nhà ống hiện đại 3 tầng đẹp trên đất hẹp

Tính toán phương án thông gió và hứng nắng

  • Nhà ống hiện đại đẹp 3 tầng có đặc trưng dài và hẹp, diện tích mặt tiền hạn chế 4-8m, đồng thời có ít cửa sổ bên hông nên đón được ít ánh sáng tự nhiên. Có thể lựa chọn bố trí thêm giếng trời hứng sáng từ mái xuống tầng 1 hoặc sử dụng nhiều vách kính ở mặt tiền. 

  • Cần lắp đặt thêm hệ thống đèn nội thất và ngoại thất, sử dụng nhiều bóng đèn LED quanh trần thay vì một bóng đèn tuýp để tăng khả năng chiếu sáng trong nhà.

  • Ngoài ra trồng thêm các chậu cây trong góc nhà, góc bàn; lắp đặt hệ thống máy hút mùi, hút khói giúp tăng cường đối lưu không khí. 

Thiết kế thông gian để giải phóng mặt bằng

Kiểu xây phòng nối liền không gian khiến khu vực đi lại trong nhà ống kiểu hiện đại rộng thoáng hơn. Có thể bố trí các phòng chung chức năng vào cùng một gian (ví dụ xây phòng khách nối liền phòng bếp), hoặc dỡ bỏ tường bê tông ngăn vách giữa các phòng. Chẳng hạn như, giữa nhà bếp và phòng khách có thể thay thế tường bằng quầy bar mini, tủ rượu, chậu cây, tủ sách,... 

Bố trí nội thất thông minh gọn gàng

Việc lạm dụng bày trí quá nhiều đồ decor làm diện tích phòng trở nên bức bối. Kiến trúc nhà ống 3 tầng điển hình vốn có chiều rộng hẹp, nên trong phòng cần nhiều khoảng thông thoáng, tiết chế trưng bày 5-6 đồ nội thất là hợp lý và đủ thoả mãn các nhu cầu cơ bản.

Tính toán phương án thông gió và hứng nắng hợp lý cho nhà ống
Tính toán phương án thông gió và hứng nắng hợp lý cho nhà ống

Tham khảo thêm: Các mẫu nhà ống đẹp nhất hiện nay hot nhất 2023

Sắp xếp phòng ốc lấn sang chiều dài

Thiết kế nhà ống đẹp hiện đại 3 tầng thường chỉ có diện tích 60-100m2, không nên nhồi nhét quá nhiều phòng chức năng không thiết yếu. 

Thiết kế có kết cấu hạn chế về mặt tiền, công năng lấn sang chiều sâu, nên các khoảng không gian mở như hành lang, sân vườn, sân thượng cần được tối ưu để giải phóng không gian nội thất, tránh lãng phí góc chết.

Tận dụng khéo léo những khoảng trống    

Nhà ống hiện đại 3 tầng đẹp đều bị hạn chế về chiều rộng mặt tiền, nên gia chủ cần tính toán kỹ các phương án thiết kế nội thất với kiến trúc sư để tận dụng tối ưu mọi khoảng trống trong nhà, biến thành các giải pháp tích trữ thông minh. Ví dụ, những góc khuất như gầm cầu thang, góc tường,... có thể kết hợp làm tủ giày hoặc kệ trang trí.

Các mẫu thiết kế nhà ống 3 tầng hiện đại 2023 đầy đủ mặt bằng

Mẫu thiết kế nhà ống 3 tầng hiện đại mái bằng

Ngôi nhà tuy đơn giản, không cần trang trí cầu kỳ, nhưng vẫn mang nét độc đáo nhờ cách sắp xếp bố cục bằng các hình khối lớn nhỏ lồng ghép vào nhau. Điểm nhấn của ngôi nhà là cấu trúc hình học không gian với nhiều tầng lớp tại tầng 2.

Mẫu thiết kế nhà ống 3 tầng hiện đại mái bằng
Mẫu thiết kế nhà ống 3 tầng hiện đại mái bằng

Nhà có sân rộng ở bên hông, thay thế cửa sổ hút gió làm thông thoáng không gian sống. Tầng 1 bắt đầu bằng một phòng khách nhỏ, được trang bị rèm cửa và sofa xinh xắn. Kế tiếp là bếp ăn ngay sau cầu thang gỗ, với bàn ăn 6 chỗ nhỏ gọn. Sau cùng là một phòng ngủ nhỏ dành cho người độc thân. Ngay kề vách là một nhà vệ sinh nhỏ.

Mặt bằng nội thất tầng 1
Mặt bằng nội thất tầng 1

Mặt tiền tầng 2 là phòng ngủ master ngập tràn ánh nắng. Ở phía đối diện là một phòng ngủ khép kín cùng kích thước. Xen giữa là cầu thang, một vườn nhỏ trong nhà và không gian sinh hoạt chung.

Mặt bằng nội thất tầng 2
Mặt bằng nội thất tầng 2

Tầng trên cùng gồm một phòng thờ và một phòng ngủ dành cho con trai. Nhưng chiếm đa số diện tích tầng là các khoảng ban công và hành lang thông thoáng, như một giải pháp thông gió tự nhiên vào nhà.

Mặt bằng nội thất tầng 3
Mặt bằng nội thất tầng 3

Mẫu thiết kế nhà ống 3 tầng hiện đại mái nhật

Mẫu nhà này có thiết kế đơn giản, gọn gàng, sử dụng các đường nét và hình khối hiện đại, kết hợp với mái Nhật mang đến vẻ đẹp thanh thoát, nhẹ nhàng. Nhà ống 3 tầng mái Nhật hiện đại thường sử dụng cửa kính cường lực kết hợp với cửa gỗ tự nhiên, tạo hiệu ứng thẩm mỹ tốt, đồng thời tối ưu hoá ánh sáng tự nhiên vào nhà.

Mẫu thiết kế nhà ống 3 tầng hiện đại mái nhật
Mẫu thiết kế nhà ống 3 tầng hiện đại mái nhật

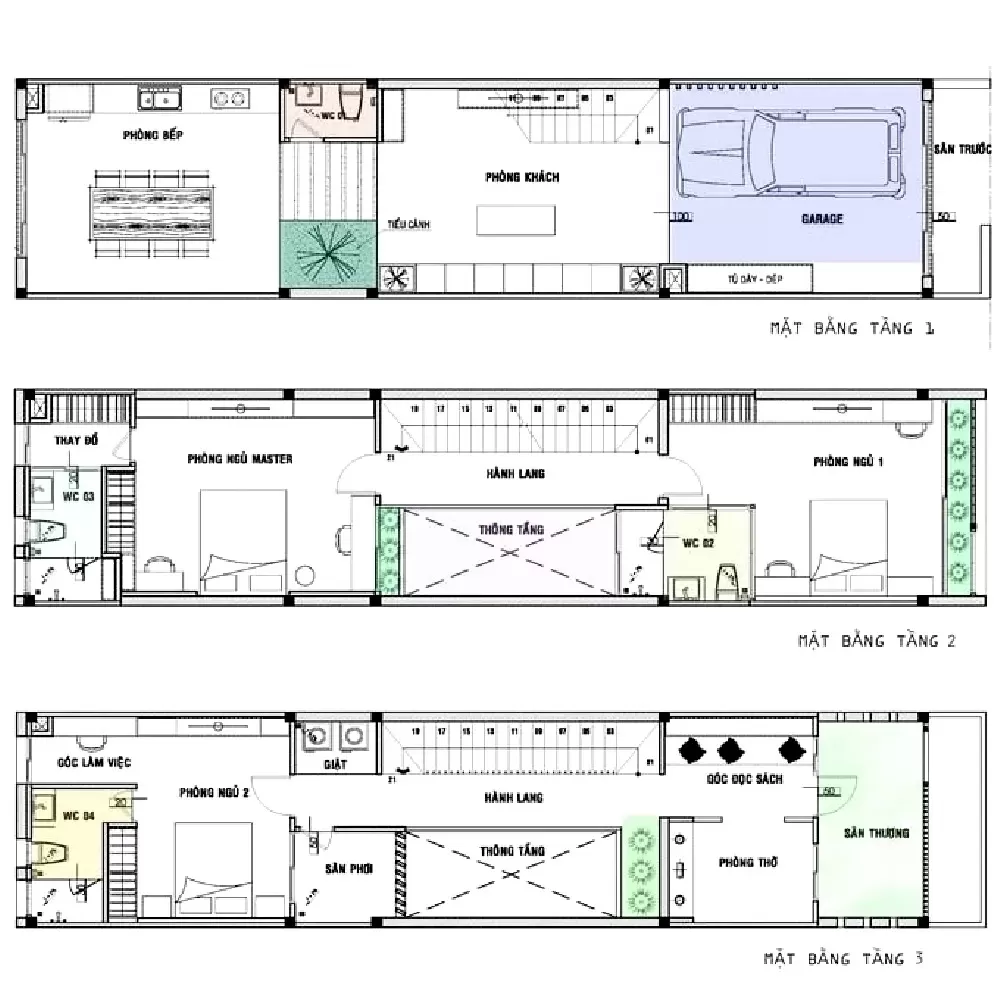
Tầng 1 gồm sân trước, không gian tiếp khách, bếp núc và một gara nhỏ. Trong nhà có trồng một không gian cây xanh nhỏ ngay trước nhà bếp. Cầu thang bố trí sau gara tiện lợi cho việc di chuyển lên tầng để tắm rửa và nghỉ ngơi. Tầng 2 và 3 bố trí 3 phòng ngủ và 1 phòng thờ, Trong đó có 2 phòng ngủ master tích hợp phòng thay đồ và nhà vệ sinh riêng, Để giải quyết vấn đề nhà ống hẹp, các kiến trúc sư đã thiết kế thêm không gian thông tầng ở 2 lầu.

Bản vẽ mặt bằng nhà ống 3 tầng hiện đại mái nhật
Bản vẽ mặt bằng nhà ống 3 tầng hiện đại mái nhật

Mẫu thiết kế nhà ống 3 tầng hiện đại mái thái

Kiến trúc nhà ống 3 tầng mái thái hiện đại thường được thiết kế với các đường nét sang trọng khiến nhiều người dễ lầm tưởng với phong cách bán cổ điển. Mái nhà được thiết kế theo kiểu mái thái, với độ dốc vừa lớn, giúp thoát nước nhanh chóng và tạo nên vẻ đẹp truyền thống cho ngôi nhà.

Mẫu thiết kế nhà ống 3 tầng hiện đại mái thái
Mẫu thiết kế nhà ống 3 tầng hiện đại mái thái

Công năng nhà ống 3 tầng mái thái hiện đại được bố trí hợp lý, khoa học, đáp ứng đầy đủ nhu cầu sinh hoạt của các gia đình. Tầng 1 được sử dụng làm không gian sinh hoạt chung, bao gồm phòng khách, phòng bếp, phòng ăn và nhà kho. Tầng 2 và tầng 3 được sử dụng làm phòng ngủ, phòng làm việc và phòng thờ. Ngoài ra còn có một sân thượng để làm không gian phơi phóng.

Phối cảnh công năng nhà ống 3 tầng hiện đại mái thái
Phối cảnh công năng nhà ống 3 tầng hiện đại mái thái

Nhà ống hiện đại 3 tầng mặt tiền 6m

Bên cạnh kiến trúc hiện đại và tưoi sáng, mẫu biệt thự phố này còn được nhiều người quan tâm bởi khoảng sân trước rộng có thể chứa 1 ô tô con và 2 xe máy. Thiết kế mặt tiền giật cấp cũng khiến ngôi nhà trở nên thoáng mát hơn, tránh được nắng gắt về trưa và chiều. Màu sơn trắng chủ đạo khiến công trình thêm trang nhã, hợp với thị hiếu những gia chủ có lối sống hiện đại.

Nhà ống hiện đại 3 tầng mặt tiền 6m
Nhà ống hiện đại 3 tầng mặt tiền 6m

Công năng nhà ống hiện đại với 3 tầng và mặt tiền 6m bao gồm:

  • Tầng 1: phòng khách, bếp ăn, 1 phòng ngủ, 1 nhà vệ sinh chung

  • Tầng 2: 2 phòng ngủ (trong đó 1 ngủ master tích hợp tủ thay đồ và nhà tắm nhỏ), khu thông tầng, 1 vệ sinh chung

  • Tầng 3: phòng thờ, 1 phòng ngủ khép kín, nhà kho, khu vực giặt phơi 

Bản thiết kế các phòng chức năng 3 tầng
Bản thiết kế các phòng chức năng 3 tầng

Nhà ống hiện đại 3 tầng mặt tiền 7m

Mẫu nhà này này có mặt tiền thông thoáng. Cửa kính mặt tiền giúp tối ưu ánh sáng tự nhiên cũng như gió thoáng cho không gian các phòng trước. Ban công được phối hợp khoảng xanh tưoi mới và trong lành. Hình khối kiến trúc hình thành từ những nét thẳng mạnh mẽ, dứt khoát. Hệ vật liệu bền đảm bảo tuổi thọ cho công trình. Công trình còn được kết hợp với mái nhật xám khói vô cùng trẻ trung và sang trọng.

Nhà ống hiện đại 3 tầng mặt tiền 7m
Nhà ống hiện đại 3 tầng mặt tiền 7m

Mặc dù diện tích khiêm tốn, nhưng các kiến trúc sư đã cố gắng thiết kế công năng trong nhà đầy đủ và phù hợp với gia đình nhỏ từ 4-6 thành viên. Tầng trệt gồm phòng khách, phòng ăn, phòng bếp, nhà vệ sinh nhỏ gần sân sau và sân ướt sau nhà. Nội thất các phòng chủ yếu bằng gỗ tự nhiên, làm tăng giá trị cho ngôi nhà.

Phối cảnh công năng tầng 1
Phối cảnh công năng tầng 1

Tầng 2 có 3 phòng ngủ, 1 vệ sinh chung và khoảng thông tầng. Trong đó phòng ngủ master nằm ở mặt tiền, có ban công và cửa kính vô cùng sáng sủa. 2 phòng ngủ nhỏ tuy diện tích không rộng bằng phòng master nhưng đều có cửa sổ hông.

Phối cảnh công năng tầng 2
Phối cảnh công năng tầng 2

Tầng 3 không xây phòng chức năng mà dùng làm sân trước và sau để cung cấp không gian nghỉ ngơi, ngắm cảnh cho ngôi nhà. 

Phối cảnh công năng tầng 3
Phối cảnh công năng tầng 3

Nhà ống hiện đại 3 tầng 2 mặt tiền 5x20m 

Mặt tiền được kết hợp các mảng tường thạch cao trắng sứ và các vòm vòng cung mảng gỗ hài hòa tạo nên ngôi nhà rất bắt mắt. Kiến trúc sư bố trí kính có hoạ tiết chéo cho khoảng thông tầng trông sang trọng không kém một nhà hàng. Màu sắc được bố trí 3 gam màu cơ bản là trắng, nâu và đen cẩm thạch rất tự nhiên. Thiết kế không quá cầu kỳ như 1 căn nhà tân cổ điển, nhưng cách bố trí lan can và ban công theo các đường vòng cung rất sáng tạo.

Nhà ống hiện đại 3 tầng 2 mặt tiền 8m 
Nhà ống hiện đại 3 tầng 2 mặt tiền 8m 

Tuy kích thước lô đất 5x20m khá phổ biến nhưng rất khó lên phương án mặt bằng thoả mãn được nhu cầu của gia đình 3-5 người. Vì vậy, các kiến trúc sư đã nghĩ ra ý tưởng thiết kế thông gian cả tầng trệt từ phòng khách ra sân vườn. Ô thông tầng 2,2 x 2,5m được khéo léo đặt ở giữa nhà. Tăng thêm sự thông thoáng cho không gian nhà 2 mặt tiền.

Phối cảnh phòng chức năng trong nhà ống hiện đại 3 tầng 2 mặt tiền 8m 
Phối cảnh phòng chức năng trong nhà ống hiện đại 3 tầng 2 mặt tiền 8m 

Dự toán chi phí thi công và thiết kế nhà ống hiện đại 3 tầng đầy đủ nhất

Để có thể dự toán chi tiết và chính xác được chi phí xây dựng nhà ống 3 tầng hiện đại thì bạn cần cân nhắc kỹ các yếu tố ảnh hưởng đến giá xây nhà sau đây:

  • Diện tích xây dựng: Diện tích xây dựng nhà ống kiểu hiện đại 3 tầng càng rộng thì chi phí xây dựng càng cao.

  • Địa điểm: Chi phí xây nhà ống 3 tầng trong hẻm sẽ ít hơn đáng kể so với giá xây nhà ống ở các vị trí đắc địa như ngoài mặt đường thuận lợi kinh doanh buôn bán, hoặc trong ngõ nhưng ô tô dễ đi lại. 

  • Thời điểm xây dựng: Tùy vào từng thời điểm khác nhau mà chi phí xây dựng và thiết kế nhà ống 3 tầng kiểu hiện đại sẽ tăng hay giảm phụ thuộc vào sự biến động của thị trường, bao gồm cả thị trường nhân công xây dựng và thị trường buôn bán vật tư.

  • Nguyên vật liệu: Nếu bạn muốn xây dựng nhà ống 3 tầng đẹp, nền móng vững chắc, sử dụng vật tư nhập khẩu đắt đỏ, có chất lượng thì chi phí xây nhà phải bỏ ra sẽ cao hơn rất nhiều so với xây nhà ống vật liệu cơ bản.

  • Phong cách thiết kế: Nhà ống hiện đại lựa chọn thiết kế đơn giản, chú trọng sự tiện nghi thay vì trang trí cầu kỳ sẽ có chi phí thấp hơn so với những mẫu nhà hiện đại châu Âu sang trọng. 

Dựa trên những yếu tố tác động đến chi phí xây nhà, bạn có thể bàn bạc với kiến trúc sư vạch ra dự toán các hạng mục xây dựng cơ bản như xây thô, hoàn thiện nội thất và kiến trúc cùng mức giá chi tiết cho từng phần bên cạnh để có cái nhìn tổng quát và kiểm soát được nguồn kinh phí phát sinh ở mức phù hợp khi thi công sau này.

Phong cách nhà ống mái bằng trẻ trung
Phong cách nhà ống mái bằng trẻ trung

Tham khảo thêm: Nội thất nhà ống mang phong cách hiện đại trẻ trung

Theo khảo sát chung thị trường, bạn chỉ cần tốn 500-600 triệu đồng là đã xây được một căn nhà ống 3 tầng với thiết kế hiện đại giá rẻ khang trang. Tuy nhiên với mức giá này thì nhà sẽ bị hạn chế về diện tích và nhạt nhoà trong thiết kế. Bạn cần ít nhất 1 tỷ đồng để xây được một công trình hoàn thiện ở mức đẹp về thẩm mỹ và thoả mãn được những nhu cầu sinh hoạt cơ bản của từng thành viên trong gia đình.

Báo giá thiết kế và thi công nhà ống 3 tầng đẹp hiện đại hiện nay có 2 hình thức chính: xây nhà trọn gói và xây dựng phần thô. 

Chi phí xây nhà trọn gói - Chìa khoá trao tay:

Công ty xây dựng sẽ thực hiện mọi công việc từ xin giấy phép, thiết kế bản vẽ đến xây thô và hoàn thiện nội thất. Gia chủ chỉ cần sử dụng nhà sau khi xây dựng xong.

  • Đơn giá xây nhà trọn gói dùng vật tư trung bình: 6.500.000đ/ m2.

  • Đơn giá xây nhà nhanh trọn gói dùng vật tư khá: 7.500.000đ/ m2.

  • Đơn giá xây nhà nhanh trọn gói dùng vật tư tốt: 8.000.000đ/ m2.

Mẫu nhà ống hiện đại 2 mặt tiền 4x15m 3 tầng
Mẫu nhà ống hiện đại 2 mặt tiền 4x15m 3 tầng

Cùng chủ đề: Tính chi phí xây nhà ống 1 tầng, 2 tầng, 3 tầng cho từng diện tích cụ thể nhất

Chi phí gói nhân công và xây thô hoàn thiện

Với gói này thì nhà thầu sẽ cung cấp toàn bộ nhân công hoàn thiện ngôi nhà, còn nguyên vật liệu do chủ đầu tư tự mua. Vì vậy gia chủ cần tìm hiểu và chọn đúng bên cung ứng vật tư uy tín, đúng chủng loại để mua được hàng chính hãng, chất lượng tốt phù hợp với công trình. Hiện nay đơn giá xây thô nhà ống hiện đại dao động khoảng 2 triệu - 3 triệu chưa bao gồm chi phí làm móng.

Nhà ống 3 tầng mặt tiền giật cấp với phong cách hiện đại
Nhà ống 3 tầng mặt tiền giật cấp với phong cách hiện đại

Với những chia sẻ về kinh nghiệm thiết kế nhà trên đất hẹp và mặt tiền nhà ống trong bài viết này, Vinavic mong rằng bạn đã có thể tự tin để thiết kế nhà ống 3 tầng hiện đại đẹp thoáng mát giành riêng cho gia đình mình. Hãy đặt ra mục tiêu, lên kế hoạch về chi phí, công năng và kiến trúc, đồng thời liên hệ với những chuyên gia có kinh nghiệm trong lĩnh vực này để mang đến cho bạn một ngôi nhà tuyệt vời và hoàn hảo nhất.

Xem thêm: 27 Mẫu nhà ống tân cổ điển 3 tầng đẹp tiện nghi

By https://vinavic.vn/
https://vinavic.vn/

Đánh giá - Bình luận
0 bình luận, đánh giá về 35 Mẫu thiết kế nhà ống 3 tầng hiện đại đầy đủ mặt bằng
Nhấn vào đây để đánh giá
Thông tin người gửi
Phong thủy
Chúng tôi có thể hỗ trợ bạn!
8.42508 sec| 2535.242 kb