Top 15 phối cảnh nhà vườn đẹp đầy đủ mặt bằng công năng

Bản vẽ mặt bằng
0
7409
loan - 20/11/2023
Mục lục nội dung
[xem]
  1. 1. Các tiêu chí cần có trong bản phối cảnh nhà vườn đẹp
    1. 1.1. Không gian gắn kết tình thân
    2. 1.2. Trang trí tiểu cảnh sân vườn đa dạng và hài hoà
    3. 1.3. Yếu tố cân bằng và cân đối
    4. 1.4. Thiết kế bản vẽ phối cảnh nhà vườn đẹp hoà quyện thiên nhiên
    5. 1.5. Bản phối tiểu cảnh sân vườn đẹp đáp ứng đủ nhu cầu sinh hoạt
    6. 1.6. Phù hợp với kiến trúc tổng thể ngôi nhà
    7. 1.7. Phong thuỷ phối cảnh sân vườn trước nhà
  2. 2. Nguyên tắc phối cảnh nhà vườn đẹp thu hút tài lộc
    1. 2.1. Chọn hướng vườn và cổng chính hợp phong thuỷ
    2. 2.2. Chọn gạch lót sân vườn đẹp
    3. 2.3. Những nguyên tắc bố trí sân vườn trong nhà đẹp
  3. 3. Các loại cây trồng cho nhà vườn đẹp thu hút sinh khí tài lộc
  4. 4. Các ý tưởng phối cảnh khuôn viên nhà vườn đẹp và hợp phong thuỷ
    1. 4.1. Bàn ghế sân vườn
    2. 4.2. Hàng rào và hoa
    3. 4.3. Giàn hoa leo mái vòm 
    4. 4.4. Trồng cỏ nhân tạo
    5. 4.5. Thiết kế hàng rào đá
    6. 4.6. Sử dụng lu nước trang trí 
    7. 4.7. Đá cuội trang trí sân vườn
    8. 4.8. Lắp đèn trang trí 
    9. 4.9. Trồng cây cảnh
    10. 4.10. Bố trí tiểu cảnh
    11. 4.11. Thiết kế hồ cá 
  5. 5. Top các bản phối cảnh nhà vườn đẹp đầy đủ mặt bằng công năng
    1. 5.1. Phối cảnh nhà vườn đẹp mái thái
    2. 5.2. Bản phối cảnh nhà vườn đẹp mái nhật
    3. 5.3. Thiết kế phối cảnh nhà vườn đẹp mái bằng
    4. 5.4. Phối cảnh nhà vườn đẹp 1 tầng
    5. 5.5. Phối cảnh nhà vườn đẹp 2 tầng
    6. 5.6. Bản vẽ phối cảnh nhà vườn đẹp hiện đại
    7. 5.7. Bản vẽ phối cảnh nhà vườn đẹp tân cổ điển
  6. 6. Chi phí thuê kiến trúc sư phối cảnh nhà vườn trọn gói bao nhiêu?
    1. 6.1. Chi phí trọn gói
    2. 6.2. Chi phí thi công phần thô và nhân công hoàn thiện

Bản phối cảnh nhà vườn đẹp từ kiến trúc tới mặt bằng công năng góp phần đem đến một không gian sống thư giãn, trong lành và tiện nghi cho ngôi nhà của bạn. Đây là thiết kế nhận được rất nhiều sự ưa chuộng. Tuy nhiên. phối cảnh sân vườn nhà đẹp thế nào là hoàn hảo? Có những nguyên tắc gì cần lưu ý? Giá thiết kế bản phối cảnh mặt bằng và kiến trúc nhà vườn là bao nhiêu? Hãy cùng Kiến trúc Vinavic tìm hiểu dưới đây. 

Các tiêu chí cần có trong bản phối cảnh nhà vườn đẹp

Quá trình thiết kế phối cảnh nhà vườn đẹp là quá trình ý tưởng hóa và lên kế hoạch cho không gian ngoại thất của ngôi nhà, xem xét các yếu tố như diện tích, hình dáng, hướng, và kiểu kiến trúc. Mục tiêu là tạo ra một khu vườn đẹp mắt, đáp ứng nhu cầu sử dụng của chủ nhân như khu vui chơi, nơi thư giãn, trồng cây ăn quả,... và phù hợp với phong cách kiến trúc của ngôi nhà.

Không gian gắn kết tình thân

Mô hình phối cảnh nhà vườn đẹp thoáng đãng với không gian sinh động và tiểu cảnh đa dạng sẽ mang đến một cuộc sống thoải mái, là điểm hẹn hò lý tưởng trong nhà, là nơi mỗi người phải dừng chân một lần mỗi ngày để nuôi dưỡng tâm hồn. Nhờ những phút giây thư giãn và nghỉ ngơi bên nhau, cùng nhau trồng vườn, đơm trái mà tình cảm gia đình thêm bền chặt, gắn bó. 

Xem thêm: Cách bố trí sân vườn trước nhà đẹp hút sinh khí tài lộc

Không gian gắn kết tình thân
Không gian gắn kết tình thân

Trang trí tiểu cảnh sân vườn đa dạng và hài hoà

Khu vườn sau khi phối cảnh đẹp cần có sự đa dạng để tạo nên một không gian sinh động và hấp dẫn. Điều này được thể hiện qua bố cục, phối màu, cách sử dụng cây cối, hoa cỏ, tiểu cảnh, đèn và ánh sáng,... Có thể thiết kế đa dạng hình học để tránh lặp lại quá mức, tạo sự độc đáo và có yếu tố bổ trợ lẫn nhau trong sắp xếp không gian cảnh quan.

Yếu tố cân bằng và cân đối

Gia chủ cần chú ý thiết kế phối cảnh 3D cho sân vườn phải đạt được sự hài hoà về mặt tổng thể, tránh các bố cục quá rườm rà, rối mắt và sự cân đối về các yếu tố như: kích thước, màu sắc, ánh sáng,...

Phối cảnh sân vườn cân bằng và cân đối
Phối cảnh sân vườn cân bằng và cân đối

Thiết kế bản vẽ phối cảnh nhà vườn đẹp hoà quyện thiên nhiên

Không gian trong vườn với nhiều cây xanh, hoa cỏ tươi mới giúp tạo không gian xanh mát, trong lành, tạo cơ hội cho gia chủ hoà mình với thiên nhiên và làm trẻ tâm hồn cùng sức khoẻ thân thể. 

Bản phối tiểu cảnh sân vườn đẹp đáp ứng đủ nhu cầu sinh hoạt

Khu vườn phải đáp ứng được nhu cầu sử dụng của gia chủ, như: khu vui chơi, thư giãn, trồng cây ăn quả,...

Bản vẽ phối cảnh nhà vườn đẹp hoà quyện thiên nhiên
Bản vẽ phối cảnh nhà vườn đẹp hoà quyện thiên nhiên

Phù hợp với kiến trúc tổng thể ngôi nhà

Phối cảnh đẹp sân vườn phải có sự thống nhất về phong cách với ngôi nhà, tạo nên một tổng thể hài hòa, ấn tượng. 

Phong thuỷ phối cảnh sân vườn trước nhà

Xác định vị trí cho ghế bàn, bình hoa, và đèn chiếu sáng phù hợp với phong cách sân vườn. Đảm bảo đất và nước đủ cho cây cỏ để phát triển khỏe mạnh. Như vậy mới có phong thuỷ tích cực, tạo không gian với giá trị tinh thần, sinh khí, và may mắn cho gia chủ.

Có thể bạn sẽ quan tâm: Bộ sưu tập 37+ mẫu nhà mái thái sân vườn đẹp lung linh

Trang trí sân vườn phù hợp với kiến trúc tổng thể ngôi nhà
Trang trí sân vườn phù hợp với kiến trúc tổng thể ngôi nhà

Với những tiêu chí trên, bản phối cảnh nhà vườn đẹp không chỉ là một bản vẽ kỹ thuật mà còn là một bức tranh thuỷ mặc tại gia, thông qua cách bố trí các chi tiết trong sân vườn, phần nào bộc lộ rõ gu thẩm mỹ của chủ nhân căn nhà và mang đến giá trị tinh thần cao cho gia đình.

Nguyên tắc phối cảnh nhà vườn đẹp thu hút tài lộc

Phối cảnh vườn đẹp trong khuôn viên ngôi nhà có tác dụng thẩm mỹ mà còn có vai trò quan trọng trong phong thủy. Một ngôi nhà vườn đẹp, hợp phong thủy sẽ mang lại sinh khí, tài lộc cho gia chủ. Dưới đây là một số cách bố trí nhà vườn đẹp hút sinh khí tài lộc như: chọn hướng vườn và cổng chính hợp phong thuỷ, trang trí vật phẩm phong thuỷ, thiết kế lối đi qua vườn, chọn mẫu gạch lát đẹp, bố trí sân vườn theo các nguyên tắc cân đối, và thi công đúng kỹ thuật.

Chọn hướng vườn và cổng chính hợp phong thuỷ

Hướng vườn

Thiết kế sân vườn trong nhà đẹp có yêu cầu kỹ về phương hướng. Theo phong thủy, sân vườn hướng Nam sẽ mang lại nhiều năng lượng và may mắn cho gia chủ. Trồng vườn hướng Đông là hướng mặt trời mọc, giúp khu vườn đón ánh nắng ban mai, thu hút được nhiều vượng khí và nguồn năng lượng khởi đầu tích cực.

Xem thêm: Thiết kế lối đi vào nhà theo phong thủy 'hút tài lộc'

Chọn hướng vườn và cổng chính hợp phong thuỷ
Chọn hướng vườn và cổng chính hợp phong thuỷ

Ngược lại, người ta kỵ xoay vườn xoay về hướng Tây. Tuy nhiên, nhà hướng Tây vẫn có thể trồng vườn ở sân trước. Hãy lựa chọn các giải pháp trồng vườn tĩnh hoặc ưu tiên các loại cây có gai, sinh trưởng chậm. Trồng vườn hướng Tây Bắc không hẳn là quá ý nghĩa về mặt phong thuỷ, bởi đây cũng là hướng nắng ban chiều khá gắt. Bạn làm vườn hướng này nên tham khảo trồng các loại cây có khả năng chịu nắng tốt và có tán rộng.

Một vài hướng khác cũng khá kiêng kỵ để làm vườn trước hay sau nhà là hướng Bắc/ Đông Bắc. Nếu nhà bạn bất đắc dĩ phải trồng vườn hướng này, có thể cải thiện phong thuỷ bằng cách bài trí nhiều thuỷ cảnh như hòn non bộ, hồ cá Koi, đài phun nước,... kết hợp các loại cây lá phong, lá dài hoặc lá màu sáng.

Hướng cổng chính dẫn vào vườn

Phong thuỷ làm nhà cho rằng hướng cổng chính có ảnh hưởng lớn đến thiết kế và nguồn năng lượng của ngôi nhà vườn. Cổng chính không được có kích thước quá rộng, sẽ làm sức khoẻ gia chủ suy yếu. Làm cổng chính hướng Nam và hướng Đông là đẹp nhất về mặt phong thuỷ, giúp mang lại vượng khí dồi dào. 

Cổng chính không được có kích thước quá rộng
Cổng chính không được có kích thước quá rộng

Cũng theo quan niệm dân gian, bạn cần hạn chế thiết kế cổng nhà vườn hướng Tây. Nếu trồng vườn theo cổng phía Tây thì nên trồng các cây rậm rạp để cản bớt nắng ban trưa gay gắt và luồng khí không tốt. Vườn có cổng chính hướng Bắc cần xây lối đi thẳng, tiết chế đường cong để đẩy nhanh luồng khí lành vào nhà.

Kiểu dáng lối đi vào vườn theo phong thuỷ

Lối đi nối từ cổng qua vườn vào nhà được coi là đường sinh khí trong phong thuỷ. Nhiều người lo ngại xây lối đi thẳng tắp sẽ khiến khí vào nhà quá nhanh và mạnh, gây mất cân đối sau khi luồng khí di chuyển được tới các nơi khác trong nhà. Bởi vậy, người ta chuộng lối đi quanh vườn có độ uốn khúc, cong cong. Vừa tạo điểm nhấn mềm mại cho khu vườn trong nhà đẹp, đồng thời tăng thêm chiều sâu cho sân vườn. Trường hợp phải làm lối đi qua vườn thẳng như nhà hướng Bắc ở trên, có thể thay vì dải nhựa phẳng phiu thì thiết kế lối đi theo kiểu các ô rải sỏi to nhỏ phối hợp.

Lối đi nối từ cổng qua vườn vào nhà được coi là đường sinh khí trong phong thuỷ
Lối đi nối từ cổng qua vườn vào nhà được coi là đường sinh khí trong phong thuỷ

Đặt vật phẩm phong thuỷ trong vườn

Gia chủ có thể lựa chọn trang trí nhà vườn đẹp bằng các vật phẩm may mắn, thu hút nhiều vượng khí, chẳng hạn như những bình gốm lớn. Các vật phẩm này có rất nhiều kích thước và hoa văn độc đáo, nếu được sắp xếp theo quy tắc thẩm mỹ như đối xứng hay so le, tăng dần,... sẽ đạt được hiệu ứng không gian đẹp mắt và ấn tượng.

Trang trí nhà vườn bằng vật phẩm phong thuỷ may mắn như các bình gốm lớn
Trang trí nhà vườn bằng vật phẩm phong thuỷ may mắn như các bình gốm lớn

Chọn gạch lót sân vườn đẹp

  • Chọn gạch chống trượt: Sân vườn ở ngoài trời, không tránh được sự trơn ướt từ thuỷ cảnh và thời tiết. Gạch ốp nền thường có bề mặt nhám, không quá bóng, có tính ma sát cao. Một số loại gạch đẹp có bề mặt sần, hoa văn nổi hoặc kẽ rãnh.

  • Gạch lát sân vườn chống thấm tốt: Gạch luôn khô ráo sẽ ngăn chặn sự phát triển của rêu mốc. Đồng thời giúp làm giảm tình trạng trơn trượt nguy hiểm cho người qua lại trong vườn.

Chọn gạch lót sân vườn đẹp
Chọn gạch lót sân vườn đẹp
  • Loại gạch vật liệu thân thiện môi trường: Thành phần "xanh" trong gạch ngăn ngừa tia UV tốt, có độ bền cao, khả năng phân huỷ bị hạn chế, không ảnh hưởng đến môi trường cũng như sức khỏe gia đình. Một số loại gạch lát vườn "xanh" phổ biến và đẹp trên thị trường bao gồm gạch đất nung, gạch men không nung, hay gạch bê tông tự chèn.

  • Chọn gạch có hoa văn: Hoạ tiết trên gạch ốp lát sân vườn trước nhà phải đồng nhất với hoạ tiết ở những không gian khác trong nhà. 

  • Tìm đại lý bán gạch chất lượng tốt: Hiện nay trên thị trường có nhiều loại gạch ốp sân vườn với nhiều mẫu mã và nhiều mức giá. Nên tìm hiểu hay tham khảo ý kiến của những người có kinh nghiệm và chuyên môn để chọn được đại lý bán gạch có chất lượng tốt xứng tầm với căn nhà.

Những nguyên tắc bố trí sân vườn trong nhà đẹp

  • Bố trí cân bằng đối xứng: Cách này được sử dụng phổ biến trong các khu biệt thự nghỉ dưỡng nhà vườn rộng. Các loại cây cảnh, tượng đá, hồ nước hay thảm cỏ sẽ được bố trí cân đối hài hòa với lối đi và được xem như là trục đối xứng.

  • Bố trí cân bằng đối tâm: Lấy yếu tố nào đó làm tầm như hồ nước, các yếu tố còn lại sẽ bố trí xung quanh sao cho hài hòa thuận mắt. Cách làm này thường được áp dụng cho sân vườn biệt thự phong cách Châu âu hiện đại.

Nhà vườn bố trí đối xứng
Nhà vườn bố trí đối xứng
  • Bố trí cân bằng bất đối xứng: Kiểu bố trí này không xác định trục đối xứng để thiết kế cảnh vật hai bên giống nhau mà tạo ra khoảng trống thích hợp để bố trí tiểu cảnh, trồng xây hay xây chòi thư giãn.

  • Bố trí mang tính nhấn mạnh trọng điểm: Nhiều khu vực với các mảng chính phụ rõ ràng, tùy theo sự sáng tạo và sở thích từ gia chủ mà thiết kế sẽ làm nổi bật cho khu vực nào.

Các loại cây trồng cho nhà vườn đẹp thu hút sinh khí tài lộc

Cây cau cảnh

Cây cau cảnh là một loại cây rất phổ biến và dễ chăm sóc. Lá của cau cảnh có những đường vân duyên dáng giúp căn nhà sẽ đẹp và bắt mắt hơn, đồng thời giúp tăng năng lượng dương và giảm bớt các năng lượng âm.

Cây cau cảnh
Cây cau cảnh

Cây cau có khả năng loại bỏ độc tố không khí, mang đến môi trường trong lành hơn cho gia đình. Theo phong thủy, khi trồng cây cảnh trước nhà, bạn nên trồng theo số lẻ thay vì số chẵn bởi số chẵn đại diện cho sinh, lão, bệnh, tử. Duy nhất chỉ có số 2 là tốt vì số 2 thể hiện sự hài hòa của âm dương và đất trời.

Cây tre, trúc cảnh

Cây tre hoặc trúc cảnh mang lại cảm giác yên bình và thoải mái cho gia chủ, loài cây này còn chống lại các công trùng xâm nhập vào nhà.

Cây trúc cảnh
Cây trúc cảnh

Tre và trúc theo phong thủy là những loại cây mang lại những điều may mắn và tốt lành. Trồng trúc trong nhà sẽ giúp cho gia đạo yên vui trong khi cây tre đại diện cho sự quân tử và kiên cường bất khuất.

Cây trúc Phật bà

Cây trúc Phật bà là một trong những loại cây nên được trồng trước nhà theo phong thủy giúp mang lại may mắn cho gia chủ.

Trúc Quan Âm
Trúc Quan Âm

Tuy nhiên quan trúc âm thường khó trồng hơn những loại khác vì bạn phải trồng chúng trong nhiệt độ ổn định từ 15 – 26 độ C. Vậy nên gia chủ cần xem xét loại cây này có phù hợp với nhiệt độ khu vực sinh sống hay không.

Cây ngũ gia bì

Cây ngũ gia bì là một trong những cây cảnh phong thủy cho nhà vườn tốt nhất. Loại cây này khi đặt ở vị trí tốt sẽ mang lại vận may cho gia đình.

Ngũ gia bì
Ngũ gia bì

Ngoài ra, cây ngũ gia bì còn có khả năng làm giảm các chất ô nhiễm không khí như nấm mốc và các chất độc hại khác.

Cây hoa hồng leo

Hoa hồng leo là sự lựa chọn thích hợp cho những ai yêu thích sự bắt mắt, thơ mộng, lãng mạn. Loại hoa hồng này có sức sống cao hơn so với những cây hoa hồng mọc trong chậu.

Xem thêm: Hướng dẫn cách bố trí cây cảnh trong sân vườn biệt thự đẹp nhất

Hoa hồng leo
Hoa hồng leo

Hoa hồng được xem là một loại hoa mang lại năng lượng dương cho căn nhà, giúp ngôi nhà bạn sáng sủa, vui tươi và ấm áp hơn.

Cây vạn niên thanh

Cây vạn niên thanh còn được biết với cái tên thân thuộc hơn là cây Trầu Bà. Cây có lá hình trái tim sáng bóng sắc thái khác nhau của màu xanh lá. Theo phong thủy, người ta tin rằng trồng cây xanh trước nhà sẽ mang lại may mắn, hạnh phúc và thịnh vượng.

Cây vạn niên thanh
Cây vạn niên thanh

Cây thiết mộc lan

Không giống như cây kim ngân là cây thường trồng ở trong nhà thì thiết mộc lan là một trong những cây trồng trong nhà vườn hợp phong thủy. Theo phong thủy loại cây này đại diện cho sự may mắn đặc biệt là khi cây bắt đầu ra hoa.

Thiết mộc lan
Thiết mộc lan

Người ta tin rằng sự nở rộ của những bông hoa là biểu hiện của tài lộc và sự thịnh vượng sẽ tìm đến chủ ngôi nhà.

Cây tùng

Cây tùng là biểu tượng hùng vĩ về tuổi thọ và sức khỏe bởi trong khi các loài hoa và cây khác không chịu được cái lạnh khắc nghiệt của mùa đông, cây tùng vẫn phát triển.

Cây tùng
Cây tùng

Theo phong thủy, cây tùng được xem là vật may mắn, giúp thu hút những năng lượng tích cực đến với ngôi nhà.

Cây bồ đề

Cây bồ đề không chỉ là cây phong thủy tốt mà còn tạo bóng mát, giúp không khí luôn mát mẻ, thơm nhẹ và thoáng khí hơn. Chưa kể lá của bồ đề còn được xem là một loại thảo dược tốt cho gia súc và thú cưng trong nhà.

Cây bồ đề
Cây bồ đề

Các ý tưởng phối cảnh khuôn viên nhà vườn đẹp và hợp phong thuỷ

Khuôn viên nhà vườn được phối cảnh đẹp sẽ mang lại giá trị thẩm mỹ cũng như nâng cao đời sống tinh thần cho gia đình. Các ý tưởng để thiết kế khuôn viên vườn đẹp và hợp phong thủy như bố trí thêm bộ bàn ghế sân vườn, tạo hàng rào, trồng hoa, cây cảnh hay lắp đèn trang trí, xây hồ cá, tiểu cảnh... Những ý tưởng này góp phần làm không gian sống tiện nghi hơn, đẹp hơn và phù hợp phong cách thiết kế mỗi ngôi nhà. 

Bàn ghế sân vườn

Bàn ghế sân vườn là món đồ ngoại thất không thể thiếu trong trang trí phối cảnh nhà vườn đẹp. Gia chủ có thể tận dụng bộ bàn ghế để tạo thành một góc thư giãn hay thưởng thức trà cafe. Đặc biệt, nên đặt bàn ghế ở các khu vườn gần hồ cá hoặc cây cảnh nhằm tạo cảm giác gần gũi với thiên nhiên.

Bàn ghế sân vườn là món đồ ngoại thất không thể thiếu
Bàn ghế sân vườn là món đồ ngoại thất không thể thiếu

Hiện nay có rất nhiều mẫu bàn ghế sân vườn với chất liệu và kiểu dáng khác nhau. Gia chủ có thể lựa chọn các bộ bàn ghế có chất liệu bằng đá hay nhựa có độ bền cao nếu bố trí ngoài trời. Còn nếu bạn đặt ở khu vực có mái che thì có thể mua sản phẩm từ gỗ có tính thẩm mỹ.

Hàng rào và hoa

Phối cảnh biệt thự nhà vườn đẹp với các hàng rào và hoa giúp mang lại vẻ đẹp cho toàn bộ không gian sống cũng như là nơi lý tưởng để nghỉ ngơi sau ngày dài mệt mỏi.

Có thể tạo hàng rào với các vật liệu đa dạng như tường đá, gỗ miếng,...
Có thể tạo hàng rào với các vật liệu đa dạng như tường đá, gỗ miếng,...

Bạn có thể tạo hàng rào với các vật liệu đa dạng như tường đá, gỗ miếng, sắt thép,...  thậm là từ hoa và bụi cây lớn. Đây là phương pháp được nhiều gia chủ áp dụng để tạo sự gần gũi với thiên nhiên.

Giàn hoa leo mái vòm 

Thông thường, mái vòm được sử dụng để che nắng che mưa hoặc trang trí phối cảnh khu vườn đẹp. Đây là phương pháp mang lại giá trị thẩm mỹ cao. Một số gia đình trồng thêm giàn hoa leo để trang trí cho mái vòm vừa tạo vẻ đẹp vừa làm không khí trong lành hơn. 

Giàn hoa leo mái vòm 
Giàn hoa leo mái vòm 

Trồng cỏ nhân tạo

Hiện nay, cỏ nhân tạo ngày càng được nhiều gia chủ ưa chuộng trong bản phối cảnh thiết kế nhà vườn đẹp. Sản phẩm này có thể giúp bạn tiết kiệm thời gian chăm sóc cũng như không cần máy cắt cỏ, tiết kiệm được nhiều chi phí. 

Trồng cỏ nhân tạo
Trồng cỏ nhân tạo

Thiết kế hàng rào đá

Nhà vườn có phối cảnh đẹp sử dụng hàng rào đá góp phần mang lại giá trị thẩm mỹ cao. Những phiến đá được xếp chồng với nhau mang lại cảm giác vững chãi, an toàn cho các thành viên. Đặc biệt, hàng rào đá còn thể hiện được sự sáng tạo và gu thẩm mỹ trong thiết kế của gia chủ.

Thiết kế hàng rào đá
Thiết kế hàng rào đá

Sử dụng lu nước trang trí 

Hiện nay, lu nước trang trí và phối cảnh quan nhà vườn đẹp ngày càng có nhiều mẫu mã khác nhau phù hợp với nhu cầu và xu hướng hiện đại. Đặc biệt, mẫu sản phẩm có thể tôn lên vẻ đẹp sang trọng và thể hiện cá tính của gia đình.

Sử dụng lu nước trang trí 
Sử dụng lu nước trang trí 

Đá cuội trang trí sân vườn

Phối cảnh quan nhà vườn bằng đá cuội ngày càng trở nên phổ biến. Đá cuội mang đến vẻ mới lạ từ thiên nhiên. Do nguồn gốc là từ tự nhiên và có màu sắc mộc mạc, giản dị, đây sẽ là điểm nhấn thu hút ấn tượng trong khu vườn.

Đá cuội trang trí sân vườn
Đá cuội trang trí sân vườn

Ngoài ra, đá cuội có thể dễ dàng kết hợp những vật liệu khác trang trí sân vườn, bạn có thể dùng đá cuội để lát lối đi hay đặt trong các hồ cảnh quanh vườn.

Lắp đèn trang trí 

Đèn trang trí nhà vườn vừa chiếu sáng vừa mang lại bầu khí trong lành, bạn có thể lắp đặt đèn ở lối đi để không gian trở nên lung linh hơn vào buổi tối. Ánh sáng của đèn sẽ làm khu vườn thật ấm áp và thu hút hơn.

Lắp đèn trang trí 
Lắp đèn trang trí 

Có rất nhiều mẫu đèn trang trí đa dạng như đèn tường, đèn lồng thủy tinh, đèn sợi led. Tùy vào sở thích và nhu cầu của mình mà gia đình có thể lựa chọn mẫu đèn phù hợp với không gian sống.

Trồng cây cảnh

Cây cảnh là ý tưởng không thể thiếu trong bản phối cảnh nhà sân vườn đẹp. Bạn có thể đặt những chậu cây nhỏ ở các góc vườn, cây cảnh sẽ giúp thanh lọc không khí và tạo sự mát mẻ từ tự nhiên. 

Trồng cây cảnh
Trồng cây cảnh

Bố trí tiểu cảnh

Tiểu cảnh là nơi thu hút sự chú ý trong khuôn viên sân vườn mỗi căn nhà. Tiểu cảnh được chia thành 2 loại để thiết kế và trang trí sân vườn:

  • Tiểu cảnh khô: Bao gồm những vật trang trí như hoa lá, cây cối, sỏi đá... được bố trí theo nhiều phong cách khác nhau tạo nên không gian thiên nhiên thơ mộng cho không gian sân vườn.

Tiểu cảnh là nơi thu hút sự chú ý trong khuôn viên sân vườn
Tiểu cảnh là nơi thu hút sự chú ý trong khuôn viên sân vườn
  • Tiểu cảnh nước: Gồm 2 loại là tiểu cảnh động và tiểu cảnh tĩnh. Đối với tiểu cảnh tĩnh, mặt nước phải luôn ở trạng thái phẳng lặng. Còn đối với tiểu cảnh động thì phần nước sẽ luôn chuyển động không ngừng nhằm tạo ra những âm thanh vui tai hay róc rách của nước.

Thiết kế hồ cá 

Hồ cá cũng là ý tưởng tốt để thiết kế và trang trí khuôn viên nhà vườn. Gia chủ có thể tạo các tiểu cảnh động cho hồ cá thêm phần sinh động, âm thanh róc rách của nước chảy. Đây sẽ là một liệu pháp chữa lành căng thẳng vô cùng hiệu quả.

Thiết kế hồ cá 
Thiết kế hồ cá 

Top các bản phối cảnh nhà vườn đẹp đầy đủ mặt bằng công năng

Phối cảnh nhà vườn đẹp mái thái

Phối cảnh kiến trúc

Nhà vườn mái thái hiện đại sử dụng vật liệu xây dựng cao cấp, tạo nên vẻ đẹp sang trọng và đẳng cấp. Mặt tiền nhà thiết kế nhiều cửa kính, kết hợp với hệ thống trụ cột tròn trắng và sơn tường màu đồng, tạo nên điểm nhấn ấn tượng. Kiến trúc mái thái cao ráo, màu mái ngói ghi xám, cùng với ngoại thất màu trắng sáng, tạo nên tổng thể hài hòa và tinh tế.

Phối cảnh 3D nhà vườn mái thái
Phối cảnh 3D nhà vườn mái thái

Phối cảnh mặt bằng công năng

Tọa lạc trên mảnh đất rộng 200 m2, ngôi nhà vườn hiện đại này là nơi sinh sống của một gia đình trẻ. Diện tích xây dựng chỉ 100 m2, phần còn lại dành cho sân vườn, tạo không gian thoáng đãng, thoải mái cho các thành viên trong gia đình.

Bên trong, ngôi nhà có một không gian mở kết hợp giữa phòng khách và bếp, ba phòng ngủ cho trẻ, một phòng ngủ chính và một phòng thờ.

Bố cục mở và hệ thống tường kính rộng lớn không chỉ mang lại giá trị thẩm mỹ mà còn có tác dụng chức năng. Chúng không chỉ giúp phòng khách và phòng bếp trở nên thoải mái và nghệ thuật hơn mà còn đưa ánh sáng và không khí vào từng ngóc ngách của ngôi nhà. Ngoài ra, thiết kế không gian mở còn giúp các thành viên trong gia đình dễ dàng tương tác với nhau.

Để tăng cường kết nối giữa con người, phòng bếp được bố trí với hệ cửa kính mở ra trực tiếp ra khu vườn, giúp bố mẹ dễ dàng quan sát con cái đang vui chơi bên ngoài.

Mặt bằng công năng nhà vườn mái thái
Mặt bằng công năng nhà vườn mái thái

Bản phối cảnh nhà vườn đẹp mái nhật

Phối cảnh kiến trúc

Mái Nhật là một trong những kiểu mái được ưa chuộng nhất hiện nay, đặc biệt là trong kiến trúc biệt thự nhà vườn tân cổ điển 2 tầng. Phong cách tân cổ điển mang đến vẻ đẹp sang trọng, quý phái, còn mái Nhật lại mang đến sự hiện đại, tiện nghi. Sự kết hợp này tạo nên một tổng thể hài hòa, ấn tượng, phù hợp với nhiều gia đình Việt Nam.

Nhà vườn đẹp mái nhật tân cổ điển
Nhà vườn đẹp mái nhật tân cổ điển

Phối cảnh mặt bằng công năng

Thay vì chỉ tạo ra một sân vườn phẳng ở tầng trệt như nhiều ngôi nhà khác, nhóm kiến trúc sư đã sắp xếp các khu vườn ở các độ cao khác nhau để tạo ra một không gian xanh từ tầng trệt đến mái.

Tầng trệt được thiết kế theo kiểu nửa kín nửa mở. Khu vườn với hồ cá Koi ở phía trước kết nối trực tiếp với khu vui chơi đa năng bên trong.

Ở tầng hai, các khu vườn ngoại thất tiếp tục mang thiên nhiên gần gũi với không gian sống và dẫn lên đến khu vườn trên mái qua cầu thang bậc rỗng được giấu kín cấu trúc.

Khu vườn trên mái có diện tích rộng 70m2, là nơi mà gia chủ trồng rau, cây ăn quả và nuôi gà. Không chỉ cung cấp đủ thực phẩm hàng ngày, mà còn tạo ra sản phẩm dư để tặng hàng xóm. Mái vườn cũng đóng vai trò cách nhiệt cho ngôi nhà, giúp làm mát hiệu quả hơn so với những công trình mái tôn hoặc mái bê tông xung quanh.

Bản vẽ công năng 2 tầng nhà vườn đẹp mái nhật
Bản vẽ công năng 2 tầng nhà vườn đẹp mái nhật

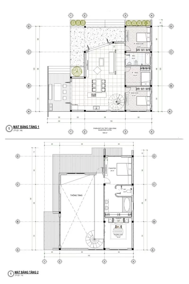
Thiết kế phối cảnh nhà vườn đẹp mái bằng

Phối cảnh kiến trúc

Không gian cảnh quan đặc biệt phong phú, bao gồm khu vườn riêng cùng ngoại thất được trang trí bằng 2 màu chủ đạo trắng và xanh. Bên cạnh đó, để làm giảm bức xạ nhiệt khi tia nắng chiếu trực tiếp vào nhà, các kiến trúc sư đã sử dụng linh hoạt những vật liệu có khả năng hấp thụ nhiệt tốt như: gỗ, bê tông, thanh lam, kính cường lực. 

Bản vẽ 3D nhà vườn đẹp mái bằng
Bản vẽ 3D nhà vườn đẹp mái bằng

Phối cảnh mặt bằng công năng

Bản vẽ thiết kế bên trong ngôi nhà cho thấy một bố cục với gara và phòng khách. Gara được đặt ở bên trái của ngôi nhà, và phòng khách được đặt ở bên phải của ngôi nhà.

Mặt bằng tổng thể nhà vườn mái bằng
Mặt bằng tổng thể nhà vườn mái bằng

Bếp có bàn đảo bếp nằm ở phía sau cùng của ngôi nhà, sau bàn billiards và sân trong. Cạnh phòng bếp là nhà vệ sinh chung, đảm bảo sự riêng tư cho người sử dụng.

Mặt bằng nội thất tầng 1 nhà vườn mái bằng
Mặt bằng nội thất tầng 1 nhà vườn mái bằng

Phòng ngủ master nằm ở mặt tiền, có tủ thay đồ VIP, ban công rộng và phòng tắm riêng. Kế bên, ngay chính giữa nhà là khu thông tầng thoáng mát. 2 phòng ngủ khép kín còn lại nằm ở mặt sau ngôi nhà, nhưng không vì thế mà thiếu đi sự tươi sáng nhờ các ô cửa sổ kính to bản.

Phối cảnh mặt bằng các phòng tầng 2 nhà vườn mái bằng
Phối cảnh mặt bằng các phòng tầng 2 nhà vườn mái bằng

Phối cảnh nhà vườn đẹp 1 tầng

Phối cảnh kiến trúc

Mẫu biệt thự 1 tầng kiểu Nhật Bản kết hợp sân vườn nghỉ dưỡng tọa lạc ở những nơi có khí hậu, cảnh quan thiên nhiên phong phú và trong lành. Môi trường trong xanh giúp cải thiện chất lượng cuộc sống. Đây là điểm độc đáo tạo sự đẳng cấp khác biệt với những mô hình nhà còn lại.

Bản vẽ phối cảnh 3D nhà vườn 1 tầng
Bản vẽ phối cảnh 3D nhà vườn 1 tầng

Phối cảnh mặt bằng công năng

Phương án thiết kế căn nhà tạo điều kiện cho lưu thông không khí 2 chiều hiệu quả và sân vườn rộng mang đến sự thoải mái cho tất cả thành viên trong gia đình. Căn biệt thự này được xây dựng với lối đi thông thoáng, kiến trúc đơn giản và hình dáng nhà gồm 3 gian. Phòng ngủ được bố trí cho chủ nhân và giúp việc, một phòng khách, 1 phòng ăn, 1 bếp nấu, 1 bàn trà ngoài hiên, và sân vườn rộng đủ đỗ 2 xe ô tô.

Bản vẽ phối cảnh nội thất nhà vườn 1 tầng
Bản vẽ phối cảnh nội thất nhà vườn 1 tầng

Phối cảnh nhà vườn đẹp 2 tầng

Phối cảnh kiến trúc

Ngôi nhà được sơn màu trắng với các cửa chớp màu đen. Mái nhà được lợp bằng những tấm lợp màu xám đậm. Chiếc ô tô màu đỏ đậu trước cửa nhà là một chiếc sedan. Nó có bốn cửa và một cánh lướt gió trên cốp xe.

Phối cảnh hình vẽ 3D nhà vườn 2 tầng
Phối cảnh hình vẽ 3D nhà vườn 2 tầng

Phối cảnh mặt bằng công năng

Mặt bằng công năng chi tiết của nhà vườn đẹp 2 tầng 3 phòng ngủ bao gồm:

  • Tầng 1: 01 phòng khách; 01 phòng bếp; 01 phòng ăn; 01 phòng ngủ; 01 vệ sinh; sảnh phụ và sân trước.

  • Tầng 2: 02 phòng ngủ; 02 WC; sân phơi; phòng thờ; khu đọc sách và ban công.

Phối cảnh các phòng chức năng nội thất nhà vườn 2 tầng
Phối cảnh các phòng chức năng nội thất nhà vườn 2 tầng

Bản vẽ phối cảnh nhà vườn đẹp hiện đại

Phối cảnh kiến trúc

Mảnh đất có tổng diện tích gần 450m2, nhưng các kiến trúc sư chỉ xây dựng ngôi nhà với diện tích khiêm tốn với tổng diện tích sàn là 180m2 (tầng trệt chỉ 80m2). Phần còn lại làm không gian cho cảnh quan, bể bơi và vườn trồng. Kiến trúc ngôi nhà đã kết nối hoàn toàn với không gian cảnh quan lớn xung quanh, không được rời rạc. 

Bản vẽ phối cảnh nhà vườn đẹp hiện đại
Bản vẽ phối cảnh nhà vườn đẹp hiện đại

Phối cảnh mặt bằng công năng

Sân vườn được thiết kế với hình thức đơn giản nhất có thể, là sự tiếp nối theo chiều ngang từ bức tường rào, trải dài trên mặt đất theo chiều ngang, chia khu vườn thành 2 phần: phía trước là lối vào với bãi đậu xe, bể bơi, khu vực tiệc tùng ngoài trời, phía sau là khu vườn trồng rau và cây ăn quả.

Thiết kế phối cảnh tổng thể nhà vườn đẹp hiện đại
Thiết kế phối cảnh tổng thể nhà vườn đẹp hiện đại

Tầng lầu được bố trí vuông góc với tầng trệt và trải dài theo chiều dài khu đất để có tầm nhìn ra cả khu vườn phía trước và phía sau đã được đề cập ở trên. Với kết cấu nhô ra 2,5m, khối phòng ngủ phía trên trở thành một mái hiên lớn che chắn cho khu vực tầng trệt. Mái hiên là một yếu tố cực kỳ quan trọng trong kiến trúc nhiệt đới, nó giúp ngăn chặn ánh nắng mặt trời nóng chiếu trực tiếp vào nhà cũng như mưa vào mùa đông.

Thiết kế mặt bằng sân vườn nhà đẹp hiện đại
Thiết kế mặt bằng sân vườn nhà đẹp hiện đại

Kiến trúc sư đã trồng một cây lớn tỏa bóng trên tầng trệt, xuyên qua ban công trên gác để làm mát khu vực vào mùa hè. Ngoài ra, họ cũng sử dụng kỹ thuật đối lập rỗng-đặc. Tầng trệt được thiết kế mở nhất có thể, để kết nối cảnh quan trước sau, và để khuyến khích các yếu tố tự nhiên và thông gió. Tầng lầu là khối đặc với các cửa sổ được thiết kế riêng.

Phối cảnh công năng tầng trệt nhà vườn hiện đại
Phối cảnh công năng tầng trệt nhà vườn hiện đại

Trong thế giới hiện đại ngày nay, không gian sống của cây cối ngày càng nhỏ lại, và các kiến trúc sư của ngôi nhà này muốn hướng dẫn người ở đến với thiên nhiên, cùng tồn tại và tôn trọng thiên nhiên.

Bản vẽ công năng tầng lầu nhà vườn hiện đại
Bản vẽ công năng tầng lầu nhà vườn hiện đại

Bản vẽ phối cảnh nhà vườn đẹp tân cổ điển

Phối cảnh kiến trúc

Thiết kế biệt thự có kiến trúc vững chắc và tỉ mỉ, với những đường nét tinh tế, đẹp mắt và chi tiết hoa văn phức tạp. Sử dụng các chất liệu cao cấp như đá, gỗ và thép không gỉ, tạo nên vẻ đẹp lâu bền và sang trọng cho ngôi nhà.

Hình dựng 3D mẫu nhà vườn tân cổ điển
Hình dựng 3D mẫu nhà vườn tân cổ điển

Phối cảnh mặt bằng công năng

Tầng 1 của biệt thự nhà vườn 2 tầng được thiết kế để phục vụ cho các hoạt động sinh hoạt chung của gia đình. Phòng khách và phòng thờ được đặt ngay cạnh cửa chính, tạo không gian rộng rãi và thoáng mát. Cầu thang được đặt ở vị trí trung tâm, giúp kết nối các không gian với nhau. Phòng bếp và phòng ăn được thiết kế liên thông ở góc trong cùng, đảm bảo sự riêng tư và yên tĩnh. Có 1 phòng ngủ cho ông bà.

Tổng quan công năng các phòng trong nhà vườn phong cách tân cổ điển
Tổng quan công năng các phòng trong nhà vườn phong cách tân cổ điển

Tầng 2 được thiết kế với 2 phòng ngủ, trong đó có 1 phòng ngủ master và 1 phòng ngủ đơn. Ngoài ra, tầng 2 còn có nhà vệ sinh và ban công. Ban công được thiết kế ở phía cầu thang, là nơi lý tưởng để thư giãn và nghỉ ngơi.

Chi phí thuê kiến trúc sư phối cảnh nhà vườn trọn gói bao nhiêu?

Chi phí thuê kiến trúc sư để phối cảnh nhà vườn có thể thay đổi tùy thuộc vào nhiều yếu tố, bao gồm vị trí, quy mô của dự án, cấp độ chuyên nghiệp của kiến trúc sư, và dịch vụ cụ thể mà bạn yêu cầu. Dưới đây là một con số ước tính chung, nhưng lưu ý rằng giá cả có thể thay đổi tùy thuộc vào điều kiện cụ thể của từng ngôi nhà:

Chi phí trọn gói

Với hình thức trọn gói, chi phí thuê kiến trúc sư phối cảnh nhà vườn bao gồm tất cả các chi phí từ thiết kế đến thi công hoàn thiện. Chi phí này thường được tính theo m2, dao động từ 150.000 đồng/m2 đến 300.000 đồng/m2.

Ví dụ, với diện tích sân vườn 100 m2, nếu sử dụng phong cách thiết kế hiện đại, sử dụng các chất liệu phổ biến thì chi phí thuê kiến trúc sư thiết kế và phối cảnh trọn gói sẽ dao động từ 15.000.000 đồng đến 30.000.000 đồng.

Cùng chủ đề: Đơn giá thiết kế nhà vườn đẹp giá rẻ mới nhất năm 2023

Một bản phối cảnh sân vườn biệt thự 2 tầng đẹp truyền thống
Một bản phối cảnh sân vườn biệt thự 2 tầng đẹp truyền thống

Chi phí thi công phần thô và nhân công hoàn thiện

  • Chi phí phần thô: Đối với việc chỉ thuê kiến trúc sư để thực hiện thiết kế cảnh quan nhưng không bao gồm việc thi công hoàn thiện, chi phí có thể thấp hơn, thường ở mức khoảng 48,340,000 VNĐ ($2000) đến 241,700,000 VNĐ ($10,000), phụ thuộc vào phức tạp của kế hoạch.

  • Chi phí nhân công hoàn thiện: Chi phí để thi công hoàn thiện như lắp đặt cây cảnh, đá, hệ thống tưới nước, đèn chiếu sáng, và các yếu tố khác có thể tăng thêm một khoản tương ứng, thường nằm trong khoảng 20% đến 80% của tổng chi phí dự án.

Lưu ý rằng những bản phối cảnh nhà vườn đẹp cao cấp, biệt thự nhà vườn có quy mô lớn, có yếu tố phức tạp cao và yêu cầu nhiều dịch vụ chi tiết sẽ có chi phí cao hơn. Để xác định chi phí chính xác cho dự án của bạn, nên liên hệ trực tiếp với các kiến trúc sư hoặc công ty thiết kế cảnh quan để nhận báo giá cụ thể dựa trên yêu cầu và điều kiện cụ thể của bạn.

Tìm hiểu thêm: 33 Mẫu thiết kế biệt thự nhà vườn hiện đại xuất sắc nhất hiện nay

By https://vinavic.vn/
https://vinavic.vn/

Đánh giá - Bình luận
0 bình luận, đánh giá về Top 15 phối cảnh nhà vườn đẹp đầy đủ mặt bằng công năng
Nhấn vào đây để đánh giá
Thông tin người gửi
Phong thủy
Chúng tôi có thể hỗ trợ bạn!
4.53567 sec| 2642.695 kb